// Check if the article Layout ?>
Schiffscontainer umgenutzt: Ein Weingut wird zur Attraktion
Foto: Tanja Milbourne
Lange schützte nur ein zerlegbarer Bau die Tür hinab in den Weinkeller. Nun wurde eine neue Lösung angestrebt. Das spektakuläre Bauwerk dient gleichzeitig als Touristenattraktion und als Ort für die Verkostung der dort produzierten Weine. Der Eingang zum Keller umschreibt mit den Räumen für die Verkostung, einem Laden und einer Tourismusinformation den Innenhof, der für wechselnde Veranstaltungen genutzt wird. Von einem großen Sonnensegel geschützt, dient er aber auch als Ruhepol und lädt mit Sitzgelegenheiten zum Verweilen ein.
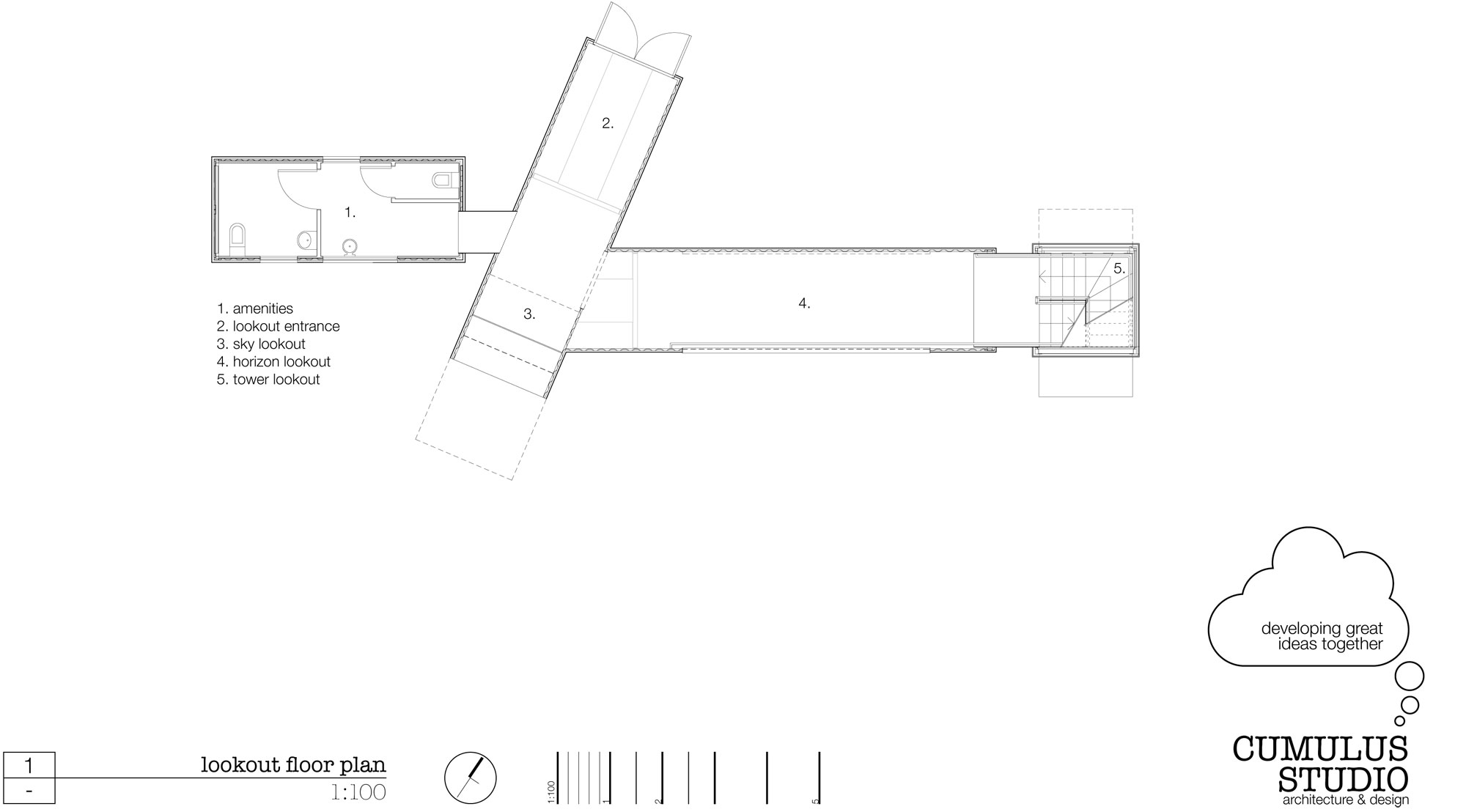
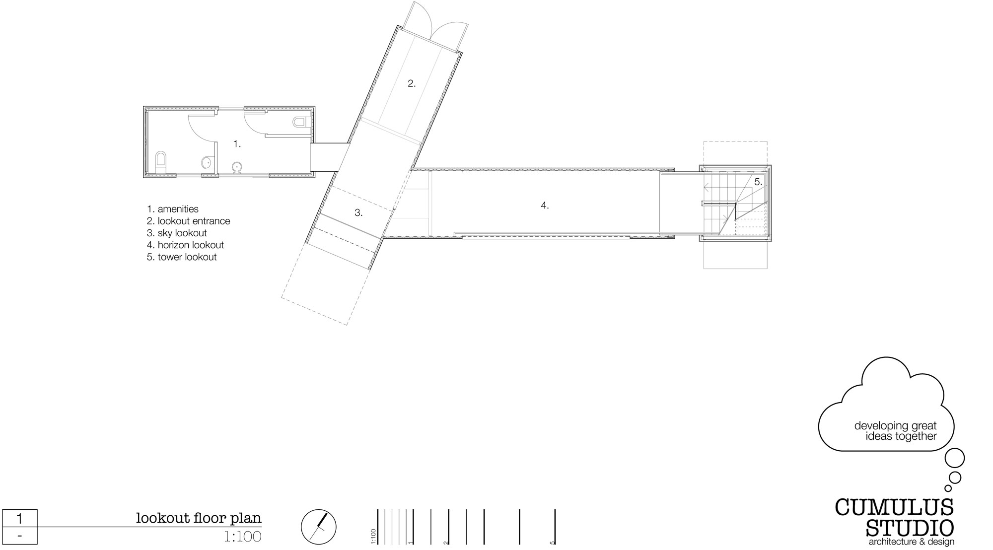
Abseits davon befindet sich der Aussichtspunkt. Drei ineinander verschränkte Baukörper, zwei liegende und ein Turm, bilden das Gebäude. Ausgewählte, gerahmte Ausblicke ermöglichen es, die Landschaft visuell zu entdecken – den Himmel, den Horizont und die Bucht zu Füßen des Weinbergs. Der Turm gipfelt in einer offenen Aussichtsterrasse. Besucher können also auf dem Gelände den Wein durch kulinarische und visuelle Bezüge kennenlernen.
Für die Gebäude wurden insgesamt zehn Schiffscontainer wiederverwendet – fünf davon für den Ausguck und weitere fünf für die Räume um den Innenhof. Auch die restliche Tragstruktur wurde in Stahl realisiert. Die Materialwahl bot vor allem den Vorteil der industriellen Vorfertigung. Die Container sind durch ihre Modulgröße gut zu transportieren und dank ihrer Stabilität auch flexibel einzusetzen. Häufig nutzten die Architekten nur Teile eines Containers oder setzten zwei aufgeschnittene neu zusammen, wie beim Aussichtsturm. An die neue Nutzung angepasst, waren sie vor Ort schnell montiert. Somit verkürzte sich die Zeit, in der das Weingut schließen musste, stark. Im Aussichtsturm windet sich außerdem eine vorgefertigte Treppe aus Stahlplatten empor, die an jedem Treppenabsatz die mit Holz verkleidete Gebäudehülle durchbricht. Dadurch ergeben sich Blickachsen in variierende Richtungen und das tragende Material wird nach außen sichtbar. In der Holzverkleidung deutet sich die Anlehnung an einen traditionellen Bauernhof an, die sich auch in der losen Anordnung demonstriert, in der sich die Baukörper zueinander befinden. Wie bei einer ländlichen Siedlung gleichen sich die einzelnen Teile zwar in ihrer Ästhetik, könnten aber genauso auch jedes für sich bestehen. Die Architektur des Devil’s Corner Weingutes spielt mit dem Kontrast aus natürlichen Materialien und den immer wieder durchscheinenden Hinweisen auf die industrielle Herkunft der Tragstruktur.
Abseits davon befindet sich der Aussichtspunkt. Drei ineinander verschränkte Baukörper, zwei liegende und ein Turm, bilden das Gebäude. Ausgewählte, gerahmte Ausblicke ermöglichen es, die Landschaft visuell zu entdecken – den Himmel, den Horizont und die Bucht zu Füßen des Weinbergs. Der Turm gipfelt in einer offenen Aussichtsterrasse. Besucher können also auf dem Gelände den Wein durch kulinarische und visuelle Bezüge kennenlernen.
Für die Gebäude wurden insgesamt zehn Schiffscontainer wiederverwendet – fünf davon für den Ausguck und weitere fünf für die Räume um den Innenhof. Auch die restliche Tragstruktur wurde in Stahl realisiert. Die Materialwahl bot vor allem den Vorteil der industriellen Vorfertigung. Die Container sind durch ihre Modulgröße gut zu transportieren und dank ihrer Stabilität auch flexibel einzusetzen. Häufig nutzten die Architekten nur Teile eines Containers oder setzten zwei aufgeschnittene neu zusammen, wie beim Aussichtsturm. An die neue Nutzung angepasst, waren sie vor Ort schnell montiert. Somit verkürzte sich die Zeit, in der das Weingut schließen musste, stark. Im Aussichtsturm windet sich außerdem eine vorgefertigte Treppe aus Stahlplatten empor, die an jedem Treppenabsatz die mit Holz verkleidete Gebäudehülle durchbricht. Dadurch ergeben sich Blickachsen in variierende Richtungen und das tragende Material wird nach außen sichtbar. In der Holzverkleidung deutet sich die Anlehnung an einen traditionellen Bauernhof an, die sich auch in der losen Anordnung demonstriert, in der sich die Baukörper zueinander befinden. Wie bei einer ländlichen Siedlung gleichen sich die einzelnen Teile zwar in ihrer Ästhetik, könnten aber genauso auch jedes für sich bestehen. Die Architektur des Devil’s Corner Weingutes spielt mit dem Kontrast aus natürlichen Materialien und den immer wieder durchscheinenden Hinweisen auf die industrielle Herkunft der Tragstruktur.
Weitere Informationen:
Projektteam: Peter Walker, Liz Walsh, Andrew Geeves, Fiona McMullen, Todd Henderson
Tragwerksplanung: Aldanmark
Bauzeit: August - Dezember 2015
Baufläche: 572 m² gesamt, 112 m² Aussichtspunkt, 460 m² Kellereingang und Marktareal
Tragwerksplanung: Aldanmark
Bauzeit: August - Dezember 2015
Baufläche: 572 m² gesamt, 112 m² Aussichtspunkt, 460 m² Kellereingang und Marktareal




















