Schillernder Schuppen: Werkstatt für Landmaschinen
Foto: Alexandra Timpau
Der Ort Opatov in Tschechien hat nur gut 1000 Einwohner. Über die Jahre hat sich dort verhältnismäßig viel Industrie angesiedelt, aber auch die Landwirtschaft spielt eine große Rolle. Für den Hof, auf dem das White Shed steht, entwarf das Prager Büro Atelier 111 bereits die Biogasanlage. Die beiden Gebäude sind unmittelbare Nachbarn, was die Architekten dazu veranlasst hat, die weiße Trapezblechverkleidung, mit der sie schon die runden Gasspeicher verkleiden ließen, für die Fassade des Werkstattgebäudes wieder aufzugreifen.
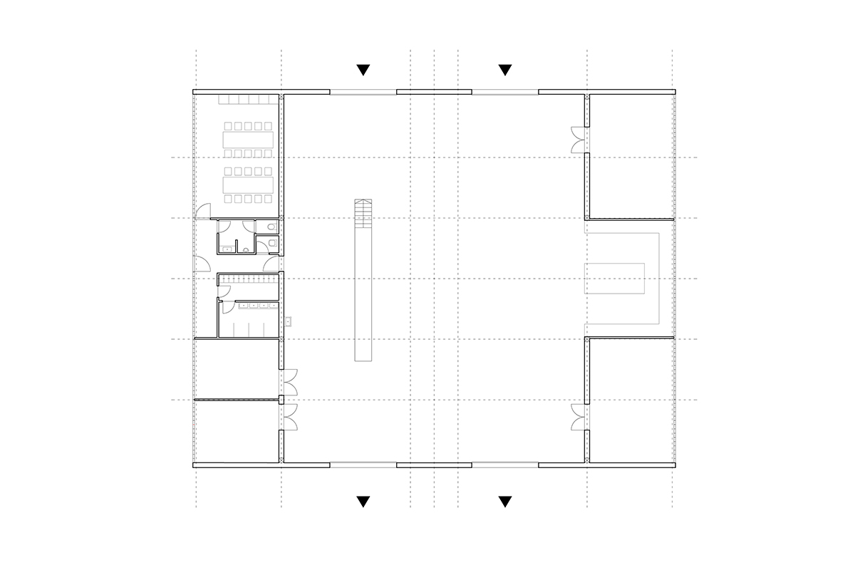
Sowohl die Giebelseiten als auch die Schrägen des Satteldachs strahlen deswegen in Weiß. Diese hellen Blechfassaden und auch große Hallen mit Satteldach sind für technische Bauten in der Landwirtschaft inzwischen recht typisch, aber die Form verrät, dass dieses Gebäude maßgeschneidert ist für die Bedürfnisse der Nutzer. Eine Dachlaterne, die sich über die gesamte Firstlänge erstreckt, lässt Tageslicht in den Hauptraum im Zentrum des Gebäudes dringen. Dort werden die Landmaschinen repariert und gewartet. Die Laterne ist an den Seitenwänden mit transluzenten Profilen verkleidet, sodass die dahinterliegenden Dachbinder aus Stahl durchschimmern und sie als Oberlicht für gleichmäßiges Licht sorgt.
In der äußeren Schicht der Halle liegen Räume für die Beschäftigten der Anlage: Umkleiden, Aufenthaltsräume und sanitäre Anlagen. Auch hier sind die Seitenwände mit transluzenten Profilen verkleidet – gelegentlich unterbrochen von einer Öffnung mit Fensterglas. Das Material offenbart und verbirgt zugleich, was im Inneren vorgeht – abhängig von den Lichtverhältnissen schillert die Fassade in changierenden Farben. Die Materialien lassen die Werkstatt leicht und zart wirken.
Weitere Informationen:
Team: Jiří Weinzettl, Veronika Indrová
Ingenieur: Michal Hamada



















