Pop-Up Wohnprojekt der HCU Hamburg
Schonmal im Büro gewohnt?
Studierende der Hafencity Universität und das Kollektiv vonwegenleer testen temporäres Wohnen in einer Büroetage am Alten Fischmarkt in Hamburg-Mitte. © Arman Jeddi
Zwischen 320 000 bis 373 000 neue Wohnungen werden in Deutschland jährlich benötigt, so die Prognosen des Bundesinstituts für Bau-, Stadt- und Raumforschung sowie des Instituts der deutschen Wirtschaft. Der Grund für den stetig steigenden Wohnraumbedarf: Immer mehr Menschen leben allein und die Bevölkerung wird älter. Bis 2030 wächst die Zahl der Haushalte auf voraussichtlich 42,6 Millionen.


Die offene Wohnküche lässt Platz zum gemeinsamen Kochen, Essen, Wohnen und Arbeiten. © Arman Jeddi
Wohnungsnot in Städten
Vor allem in den Großstädten ist die Lage angespannt. Besonders kleine Wohnungen in Mehrfamilienhäusern fehlen. Gleichzeitig geht der Neubau drastisch zurück. Das Ifo-Institut erwartet 2026 nur noch 175 000 neue Einheiten. Hohe Bau- und Lohnkosten, gestiegene Zinsen und immer strengere Bauvorgaben – etwa zur Energieeffizienz, Barrierefreiheit oder zum Schallschutz – bremsen die Bauaktivität. In Hamburg beispielsweise sank die Zahl der neu gebauten Wohnungen von 5200 (2022) auf 770 (2023) – ein Rückgang von über 85 %. Doch selbst wenn gebaut wird, bleibt eine entscheidende Frage offen: Wer kann sich diese Wohnungen überhaupt leisten? Rund eine Million Sozialwohnungen fehlen derzeit bundesweit – besonders für Menschen mit mittlerem oder niedrigem Einkommen.
Kontrastprogramm: Der Büroleerstand
Parallel wächst der Leerstand bei Büroflächen. Gründe gibt es viele: Der Homeoffice-Trend seit der Pandemie, veraltete Gebäudestandards, aber auch spekulative Leerstände. Und trotzdem wird weiter gebaut. Warum? Weil Büros für Investoren oft einfach profitabler sind: Aktuell liegt in Hamburg-Mitte die Monatsmiete pro Quadratmeter Bürofläche bei 26,60 €, bei Wohnraum dagegen bei 11,92 €.


Die Küchenarbeitsplatten und Regalbretter wurden zum Teil aus den herausgenommenen Bürotüren hergestellt. © Arman Jeddi
Idee gegen Leerstand: Zwischennutzen
Um die Problematik der Wohnungsnot zu thematisieren, rückt das Thema Umnutzung in den Fokus: Wie können Büroräume zu Wohnraum aktiviert werden? Der Lösungsansatz als Alternative zur dauerhaften Umnutzung: Zwischennutzen – schneller, reversibler und vor allem ohne größere bürokratische Hürden. Zudem sinkt bei einer Zwischennutzung der Wert der Immobilie nicht, wie es bei einer dauerhaften Umnutzung mit geringeren Mieteinnahmen der Fall wäre. Das macht eine stattdessen stattfindende Zwischennutzung auch für Eigentümer:innen attraktiv.


Der alte Türgriff dient nun als Handtuchhalter. © Arman Jeddi


Provisorisch geflickte Löcher im Teppichboden und Unterbrechungen der Abhangdecke erinnern an die zuvor hier verlaufenden Leichtbauwände. © Arman Jeddi
Herausforderungen und Potentiale ermitteln
Genau das passiert gerade in der Hamburger Innenstadt: Initiiert vom Kollektiv vonwegenleer erforschen sechzehn Studierende der HafenCity Universität Hamburg im Rahmen des Entwurfskurses „Wohnen Radikal Experimentell“ betreut von V.-Prof. Dr. Sabine Hansmann, wie sich gemeinschaftliches Wohnen im Büro auf Zeit gestaltet. Innerhalb von drei Wochen setzten die Studierenden auf Grundlage ihrer zuvor entwickelten Entwürfe die temporäre Zwischennutzung einer gesamten Büroetage um – von der konzeptionellen Raumplanung, über Möbelbau bis zur praktischen Auseinandersetzung mit bürospezifischen Herausforderungen wie ungünstiger Belichtung oder einer fehlenden Koch- und Duschmöglichkeit. Das Projekt ist ein Reallabor: Für einen Monat wollen die Studierenden selbst hier leben, um zu erforschen, was es bedeutet sich räumlich, materiell, sozial und politisch Büroräume anzueignen und weitere Herausforderungen und Potentiale von Büroleerstand zu ermitteln.


Der große Tisch im Gemeinschaftsraum bietet Platz für gemeinsames Mahlzeiten oder Co-Working-Sessions. © Arman Jeddi
Offene Gemeinschafts- statt beengte Teeküche
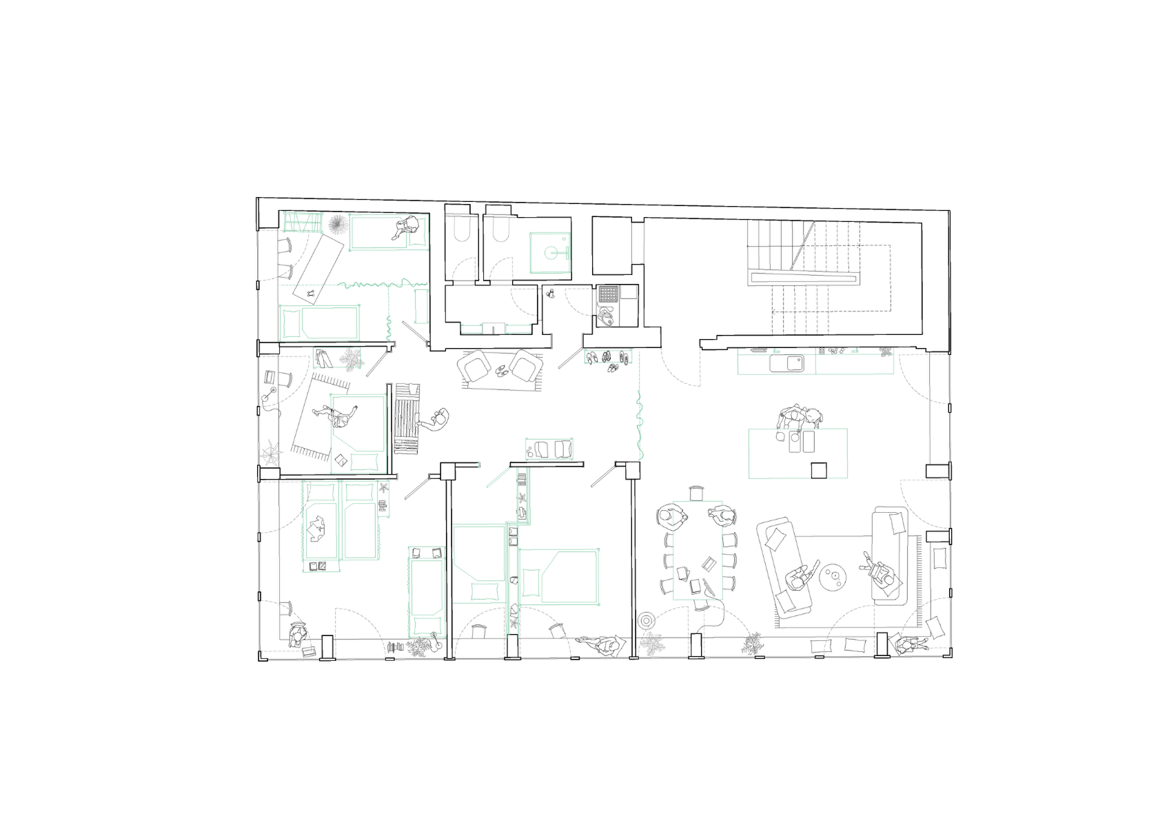
Die 150 m² große Büroetage am Alten Fischmarkt bietet jetzt Wohnraum für acht Personen. Durch die Zusammenlegung einiger ehemaliger kleiner Büros öffnet sich die Fläche nun zu einem großen Gemeinschaftsraum mit offener Wohnküche. Provisorisch geflickte Löcher im Teppichboden und Unterbrechungen der Abhangdecke erinnern an die zuvor hier verlaufenden Leichtbauwände. Offen an der Wand liegende Rohre, welche an die Zu- und Abwasserleitungen des kleinen vorhandenen Büro-Badezimmers angeschlossen wurden, versorgen die Küchenzeile mit Wasser. Das Möbelsystem wurde rückbaubar gedacht: Holzkonstruktion mit leicht zu lösenden Schraubverbindungen tragen die Küchenarbeitsplatten. Diese wurden zum Teil aus den herausgenommenen Bürotüren hergestellt.


Zwei der Schlafzimmer werden geteilt. Verschiedene Elemente kreieren Privatsphäre - hier ein flexibler Vorhang. © Arman Jeddi
Schonmal im Büro geschlafen?
In den Schlafzimmern wurden verschiedene Wohnkonzepte verwirklicht: Das kleinste Zimmer wird als Einzelzimmer einer klassischen Wohngemeinschaft genutzt. Der größte Raum des Büros erhielt eine neue Tür und eine Trennwand aus Holz, somit entstehen zwei Einzelzimmer. Die Trennwand fungiert gleichzeitig als Regal und ist ebenfalls aus dem rückbaubaren Holzsystem entwickelt. Die übrigen zwei Zimmer werden geteilt: Drei Personen testen die minimale Privatsphäre dreier Betten, welche sich durch direkt am Bettgestell befindende Vorhänge als Rückzugsort nutzen lassen. Ein quer durch das vierte Zimmer verlaufender Vorhang teilt dieses in zwei private Bereiche – eine textile, flexible Wand.


Das Möbelsystem ist durch Schraubverbindungen einfach rückbarbar. © Arman Jeddi


Das Möbelsystem ist durch Schraubverbindungen einfach rückbarbar. © Arman Jeddi
Schonmal im Büro geduscht?
Durch einen Wanddurchbruch wurde eine der beiden vorhandenen Toilettenzellen um die Nische der ehemaligen Teeküche vergrößert. Hier ist nun eine Dusche platziert: Konstruiert aus dem gleichen rückbaubaren System der Möbel – hier aus Aluminiumprofilen statt Holz. Eine Second-Hand Duschwanne und -armatur wurden in diese tragende Struktur integriert und an die Küchenanschlüsse angeschlossen.


Auch die Duschkonstruktion wurde aus dem gleichen System entwickelt - jedoch aus Aluminiumprofilen statt Holz. © Arman Jeddi


Eine gebrauchte Duschwanne wurde ins System eingehängt. © Arman Jeddi
Pilotprojekt in Hamburg
Das Projekt findet als eines von 22 Pilotprojekten im Hamburger Programm „Verborgene Potenziale – Gemeinschaftliche Entwicklung der Nutzungsvielfalt für eine lebendige und resiliente Hamburger Innenstadt“ statt und wird gefördert mit Mitteln aus dem Programm „Zukunftsfähige Innenstädte und Zentren“ des Bundesministeriums für Wohnen, Stadtentwicklung und Bauwesen. Das Kollektiv Vonwegenleer initiierte das Projekt und begleitet seine Umsetzung in enger Kooperation.
Vom 14. bis 19. Juli 2025 werden die Türen des Wohnbüros für verschiedene Veranstaltungen geöffnet: Am Mittwoch, dem 16. Juli sind Interessierte im Rahmen eines Arch+ features zur Projektvorstellung mit anschließender Wohnbürobesichtigung herzlich willkommen!
Standort: Alter Fischmarkt, Ecke Große Reichenstraße
Veranstaltung zum Projekt:
arch+ feature: Pop-Up Wohnen – Schonmal im Büro gewohnt? am 16. Juli 2025, 18 Uhr (hier anmelden);
Bürobesichtigung und Siebdruckwerkstatt am 14. Juli 2025 16–19 Uhr und 19. Juli 2025 15–18 Uhr
Mehr Informationen: vonwegenleer.de
Lehrende: V.-Prof. Dr. Sabine Hansmann (Fachbereich Architektur, Raum und Gesellschaft an der HafenCity Universität Hamburg)
Teilnehmende Studierende:
Michèle Armbrecht, Alicia Bastrup, Lucas Bryssinck, Amy Freitag, Franziska Jacobi, Berit Jagels, Arman Jeddi, Luise Kempf, Malte Koch, Vicent Mas Cabrera, Robin Paasen, Viktoria Probst, Lilli Ritter, Alireza Samadi Nazari, Soukey Seck, Duru Yigit
Initiierung & Umsetzung: vonwegenleer - Leona Erdmann, Juli Sottorf, Emma Stiehle
























