// Check if the article Layout ?>
Schule als Siedlung: Revius Lyceum in den Niederlanden fertiggestellt
Foto: Spring Architecten und MoederscheimMoonen Architecten
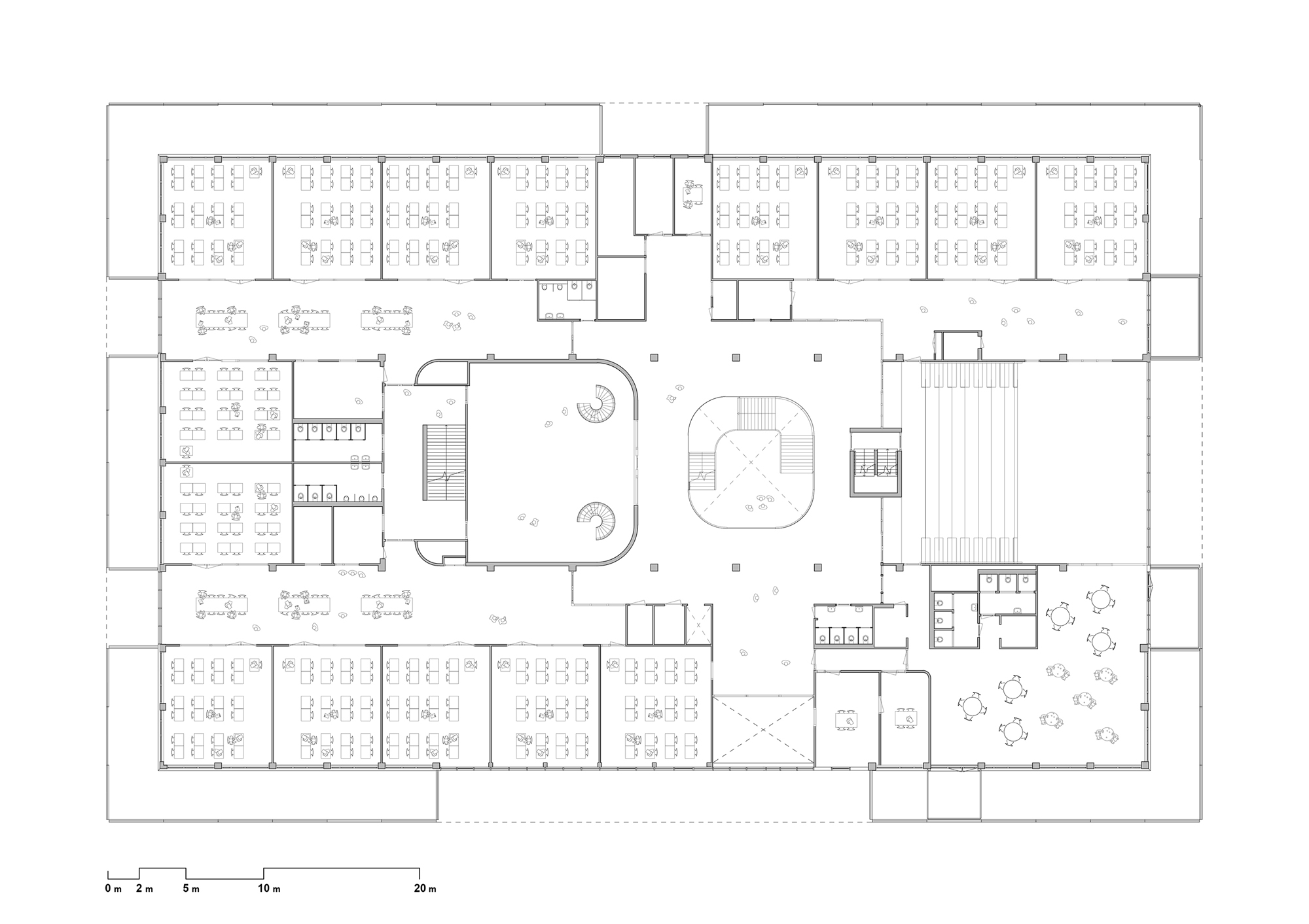
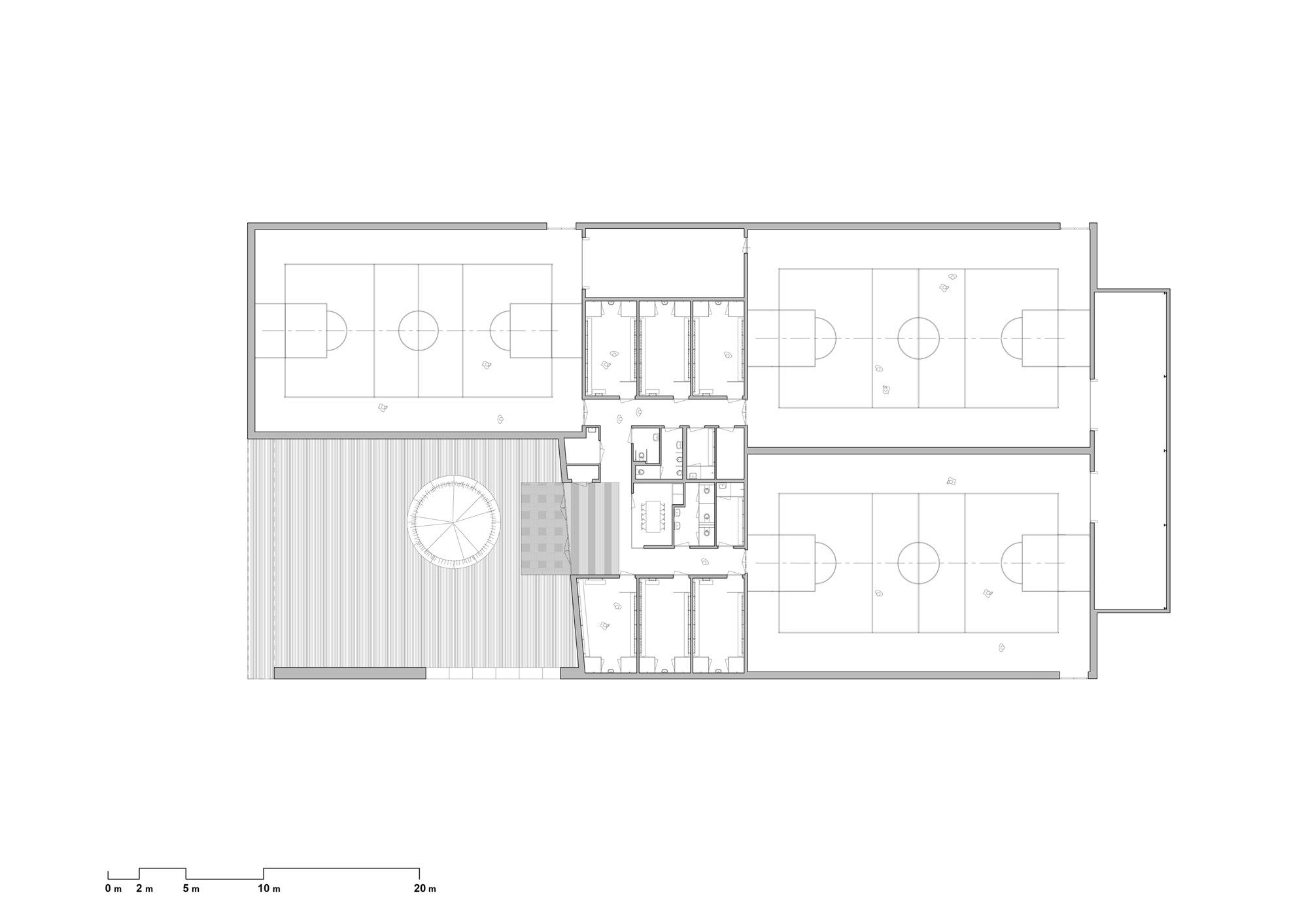
Ein wenig wie in Charles und Ray Eames Kurzfilm »Powers of Ten« erlaubt dieses Projekt einen Zoom vom Größten ins Kleinste und zurück. Wir beginnen ausgezoomt nicht ganz im Unendlichen, sondern in der Gemeinde Doorn, mitten in den Niederlanden. Dort verbrachte Kaiser Wilhelm II sein Exil im Anwesen Huis Doorn und auch für die Fassadengestaltung der Schule diente es als Referenz. Abseits der Wohngebiete bildet der Schulcampus mitten im Grünen seine eigenen Strukturen. Im Herzen des Grundstücks haben die Architekten das neue Schulgebäude platziert und östlich davon die Sporthalle mit drei Feldern. Umringt von den Klassenzimmern, die außen an der Fassade liegen, bleibt das Zentrum der Schule frei, ohne zur reinen Verkehrsfläche zu werden. In der Mitte stehen sich der offene Treppenraum und der zweigeschossige Studiensaal gegenüber. Letzterer wirkt durch die hohen Fenster mit Buntglas und zwei freistehende Wendeltreppen geradezu sakral. An den Tischen, in ihre Bücher vertieft, lernen Kinder. Wir sind am Ziel.
Um so viele effektive Lernorte wie möglich zu schaffen, versuchten MoederscheimMoonen architects und Spring architecten das Gebäude so kompakt wie möglich zu formen. Es kommt nun ohne Flure aus, sind doch alle Erschließungsflächen gleichzeitig Lernplätze, die sogenannten Plazas, für Gruppenarbeiten oder auch individuelles, freies Arbeiten. Ein Auditorium, das in Richtung der Sporthalle orientiert ist, fügt sich zwischen Treppenraum und Ostfassade ein.
Rund um das Schulgebäude sorgt eine zweite, der Gebäudehülle vorgelagerte Fassade aus farbigen Stahlleisten für ein einheitliches Bild und einen graduellen Übergang vom Innen- in den Außenraum. Wie auch beim Huis Doorn sind die drei Eingänge jeweils mittig auf den Gebäudeseiten platziert und liegen auf der hinteren Fassadenebene. Die Stahlleisten sind an dieser Stelle ausgespart. So entstehen an diesen Orten Tore, die als Gesicht des Gebäudes fungieren.
Die Bauphase für das Revius Lyceum war so organisiert, dass der Schulbetrieb ungehindert fortgesetzt werden konnte. Dank der Aufteilung in zwei Gebäude konnte erst die Sporthalle an einem neuen Standort auf dem Gelände errichtet werden, bevor die Schule auf dem Standort der alten Sporthalle gebaut wurde. Dank einer Wärmepumpe, welche die Außenluft als Energiequelle nutzt und dem Einsatz von Fotovoltaik kommt der Schulbau ohne Gasanschluss aus.






















