Neubaukomplex für Sport und Bildung
Schule in Vaterstetten von Balda Architekten
© Stefan Meyer
Lorem Ipsum: Zwischenüberschrift
Eine Grund- und Mittelschule für 450 Schüler, eine Sporthalle und ein Hallenbad für die Gemeinde kombinierten Balda Architekten in Vaterstetten bei München zu einem kompakten Schulcampus.


© Stefan Meyer
Lorem Ipsum: Zwischenüberschrift
Der nach dem Schauspieler Karlheinz Böhm benannte Neubau liegt am nordöstlichen Ortsrand neben einem bereits bestehenden Sportpark; das örtliche Gymnasium ist nur einen Steinwurf entfernt. Beste Voraussetzungen also für die gemeinschaftliche Nutzung der Schwimm- und der Sporthalle, die nach Schulschluss auch Vereinen zur Verfügung stehen.
Lorem Ipsum: Zwischenüberschrift
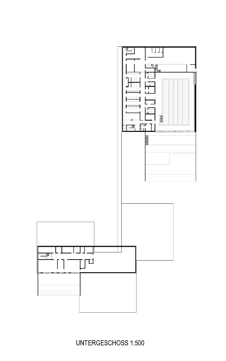
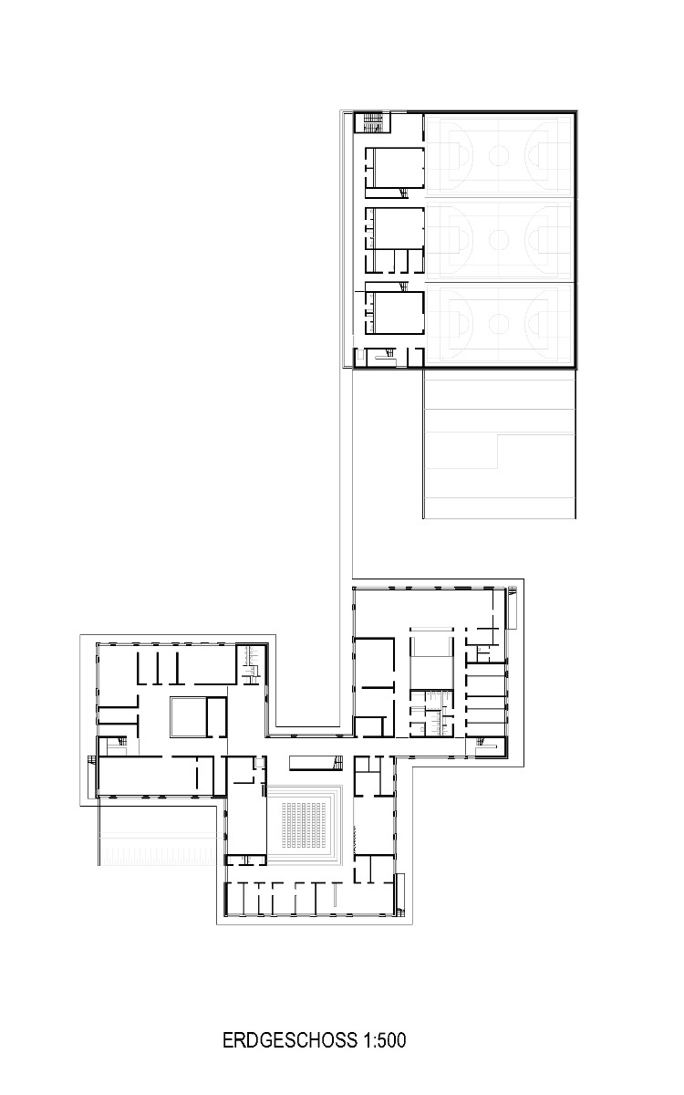
Die beiden Nutzungen sind in einem kompakten, mit Weißtannenholz verkleideten Kubus übereinander gestapelt – unten die halb ins Gelände eingegrabene Schwimmhalle, zu der ein terrassierter Hof hinabführt, und oben die Dreifeld-Sporthalle, die von zehn mächtigen Leimholzbindern überspannt wird. Eine transluzente Verglasung soll dafür sorgen, dass die Halle genügend Tageslicht erhält, ohne sich zu stark aufzuheizen.


© Stefan Meyer
Lorem Ipsum: Zwischenüberschrift
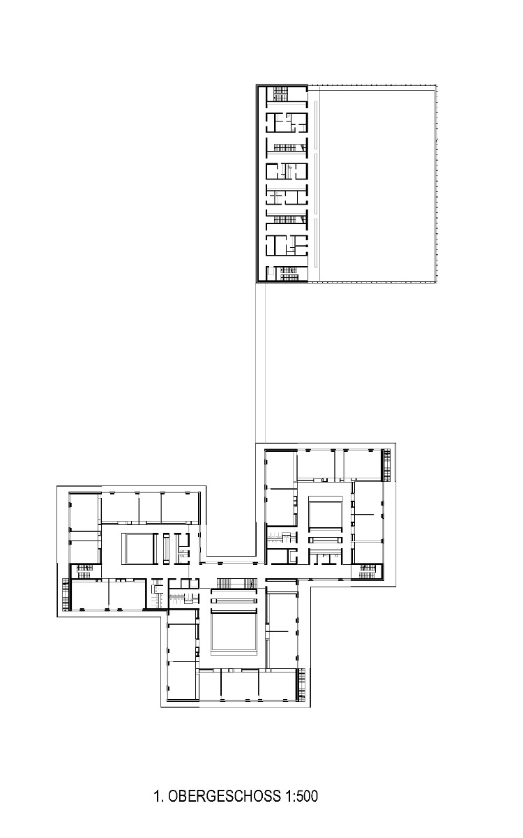
Ein überdachter Verbindungsgang führt vom Sportgebäude hinüber Richtung Schule – oder vielmehr Schulen: Eine vierzügige Grund- und eine zweizügige Mittelschule sind hier unter einem Dach vereint. Der dreigeschossige Komplex setzt sich aus drei im Grundriss fast quadratischen Baukörpern zusammen, die von breiten Fluchtbalkonen umgeben sind. Vor ihren Brüstungen sind geschosshohe Vertikallamellen angebracht, die auf drei Seiten weiß und auf der vierten in fünf Rot- und Violettönen beschichtet sind. Je nach Blickwinkel changieren daher die Farben und das Gebäude wechselt sein Erscheinungsbild.


© Stefan Meyer


© Stefan Meyer
Lorem Ipsum: Zwischenüberschrift
Hinter dem Eingangsbereich der Schule öffnet sich die gebäudehohe Aula, die sich bei Bedarf um die angrenzenden Musik- und Mehrzweckräume erweitern lässt und dann bis zu 800 Personen fasst. Große Fensterbänder erlauben aus den Obergeschossfluren Einblicke in den Veranstaltungssaal.


© Stefan Meyer
Lorem Ipsum: Zwischenüberschrift
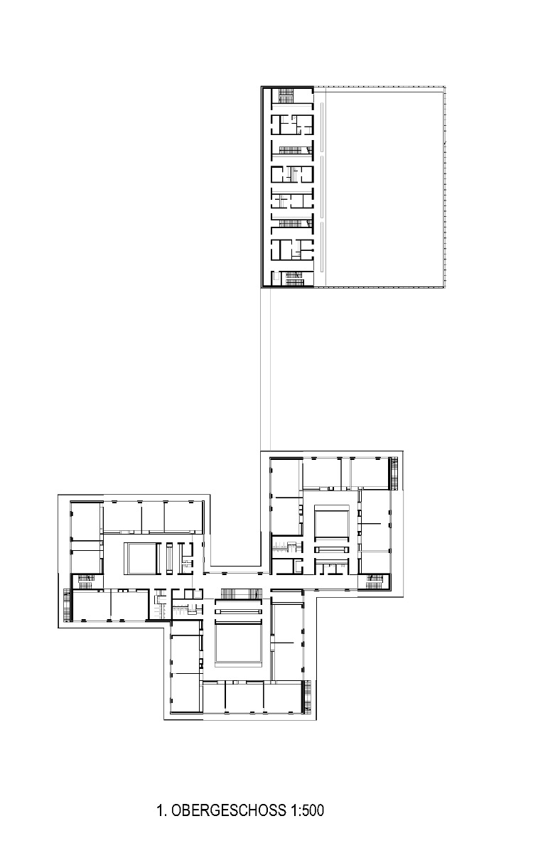
Auch die übrigen gemeinschaftlich genutzten Bereiche wie Verwaltung, Fachräume, die beiden Pausenhallen und die Mensa befinden sich im Erdgeschoss. Die Räume in den Etagen darüber sind zu Lernclustern gruppiert – je einem pro Gebäudeteil und Stockwerk. Jedes davon umfasst Klassen-, Differenzierungs- und Ganztagesräume mit eigenen Garderoben und Sanitärbereichen, die von einen ringförmigen breiten Flur erschlossen werden.


© Stefan Meyer
Lorem Ipsum: Zwischenüberschrift
Lichthöfe im Zentrum der Cluster belichten die Gemeinschaftsräume, in denen die Architekten wie auch im Rest des Gebäudes auf eine reduzierte Materialpalette setzten: Stabparkett auf den Böden, Akustikdecken aus Holzwolle-Leichtbauplatten, Sichtbeton und Glas sowie Einbaumöbel, Fensterlaibungen und -rahmen aus Holz prägen den Raumeindruck im ganzen Haus.
Architektur: Balda Architekten
Bauherr: Gemeinde Vaterstetten
Standort: Hans-Luft-Weg 6, 85591 Vaterstetten (DE)
Tragwerksplanung: bwp Burggraf + Reiminger Beratende Ingenieure
Landschaftsarchitektur: Büro Freiraum
HLSK-Planung: L&P Beratende Ingenieure
Elektroplanung: Burnickl Ingenieure
Bauphysik: PMI
Brandschutz: Brandschutz Consulting

























