Nachhaltiger Holzbau
Schule in Weinfelden von Isler Gysel Architekten
Das neue Schulgebäude in Weinfelden von Isler Gysel Architekten gründet auf einem Notspital. © Ladina Bischof
Konstruktions- und Materialechtheit lauten die Gestaltungsprinzipien des neuen Primarschulhauses in Weinfelden. Mit dem durchdachten Holzbau realisierten Isler Gysel Architekten einen Lernort, der auf Nachhaltigkeit setzt.


Die Schule zeichnet sich durch ihre großzügigen, hellen Räume aus. © Ladina Bischof
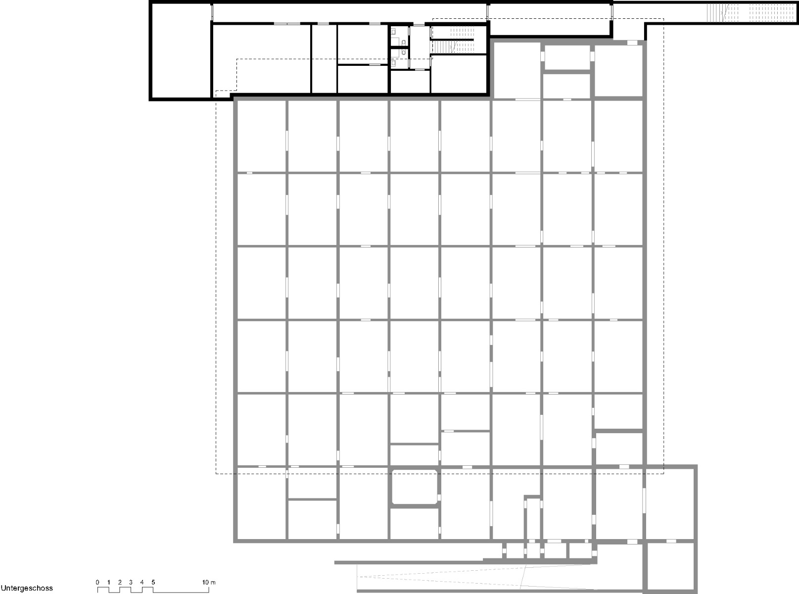
Weinfelden liegt im Kanton Thurgau im Nordosten der Schweiz. Auf dem von dichtem Gehölz bewachsenen Schulgelände ersetzt der Neubau einen in die Jahre gekommenen Vorgängerbau. Das neue Schulgebäude baut auf einem unterirdisch gelegenen Notspital auf und nutzt dieses als Grundraster.
Konzept
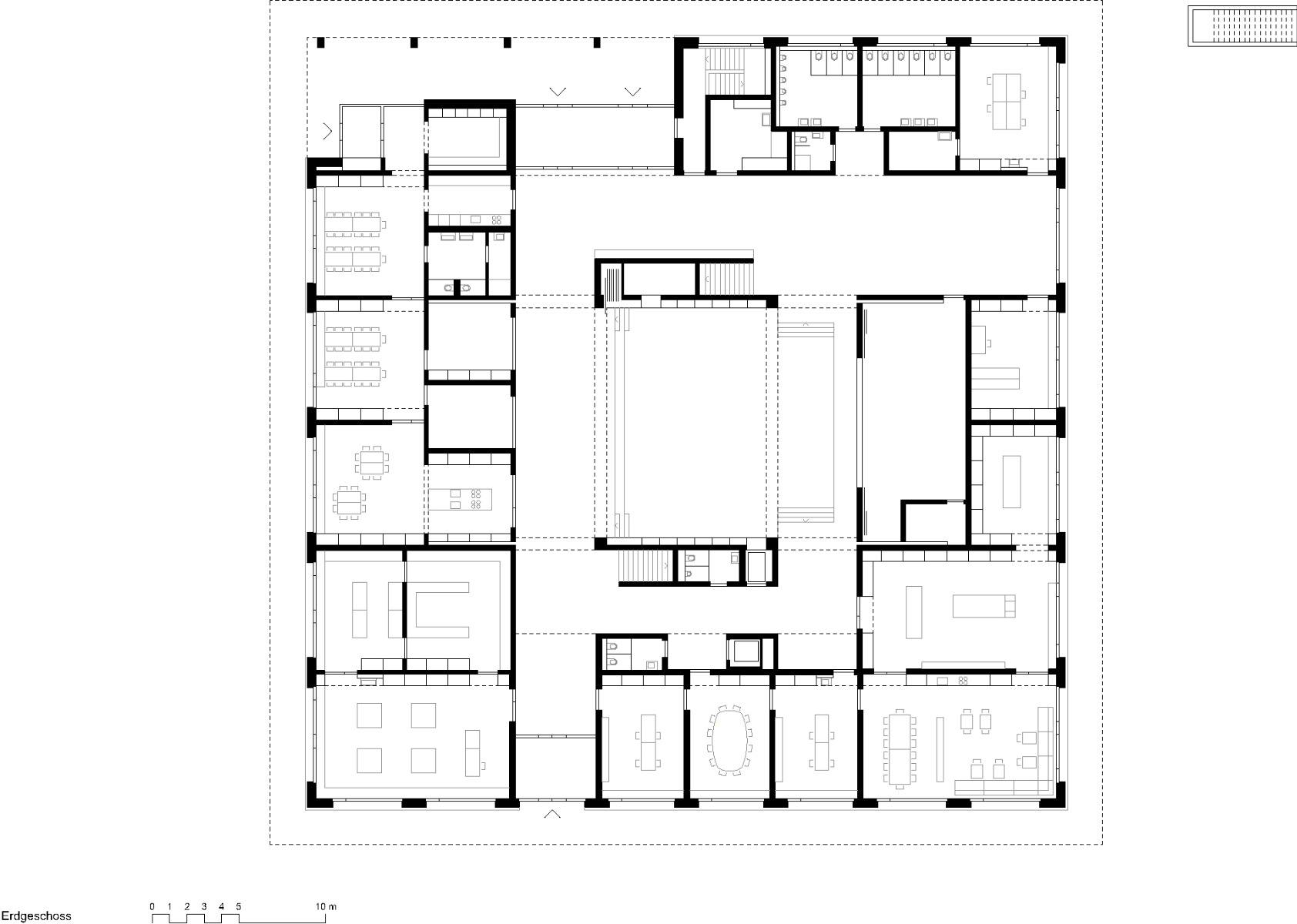
Es stellte sich daher die Aufgabe, die Grundfläche von 45 x 45 m optimal für die Nutzung als Schule zu gliedern. Isler Gysel Architekten lösen dies mit der Aufteilung in verschiedene Gebäudeteile, die sich um zwei Lichthöfe anordnen. Ein zentral eingestellter Block beherbergt die Gemeinschaftsbereiche und dient der Verbindung der Gebäudeteile.


Die abgesenkte Aula mit Bühne ist das Herzstück des Erdgeschosses. © Ladina Bischof
Im Zentrum des Erdgeschosses befindet sich die offen gestaltete Aula mit Bühne. In den beiden Obergeschossen ordnen sich die Unterrichtsräume kranzförmig entlang der Fassade an. Die in einer Flucht versetzten Türen verbinden diese miteinander, sodass sich die Raumkonfiguration dem jeweiligen Bedarf anpasst.


Einladende Enfilade: Die Türen lassen vielseitige Konfigurationen der Unterrichtsräume zu. © Ladina Bischof
Konstruktion aus Holz
Die Holzkonstruktion bleibt außen wie innen erfahrbar. Die Stützen und die Unterzüge der Rippendecke im Innenraum sind aus Nadelholz gefertigt. Abgestufte Grautöne und geschliffener Hartbeton gestalten die Wände. Alle Räume sind dank der beiden Lichthöfe ausgezeichnet belichtet. Sie schaffen spannende Sichtbezüge, die das Gebäude als Gesamtes erfahrbar machen und den Kindern Interaktionen erlauben.


Blick in den Lichthof und in die Unterrichtsräume, © Ladina Bischof
Ehrliche Fassade
Außen spiegelt die Holzfassade elegant das Tragen und Lasten der Bauteile. Breite, horizontal durchlaufende Gesimse unterbrechen die vertikalen Elemente. Die sägeraue Oberfläche des Holzes verleiht der Fassade eine grobe, robust wirkende Textur. Seinen Abschluss findet das Gebäude in einem weit auskragenden Dach, das das Raster der vertikalen Stützelemente aufgreift.


Die Fassade spiegelt die Tektonik des Gebäudes. © Ladina Bischof
Isler Gysel Architekten verwendeten für die Konstruktion ausschließlich einheimisches Holz. In Weinfelden ist ein vorbildlicher Schulbau mit einem ausgeklügelten Raumkonzept entstanden, der darüber hinaus durch den Fokus auf Nachhaltigkeit überzeugt.
Architektur: Isler Gysel Architekten
Bauherr: Primarschulbehörde Weinfelden
Standort: Giessenweg 10, 8570 Weinfelden (CH)
Holzbauingenieur, Bauphysik, Akustik, Brandschutzplanung: Pirmin Jung
Bauingenieur: Rolf Soller
Elektroplanung: Bühler + Scherler
HLKS-Planung: Amstein + Walthert
Landschaftsarchitektur: WMG Gartenarchitektur
Signaletik: TGG
Totalunternehmer: Implenia






























