Dorf im Dorf
Schule und Kindergarten in Haldenstein von Pablo Horváth
Das Schul- und Kindergartengebäude zeigt sich als Solitär mit großen Fensterflächen. Das kleinere Mensagebäude mit Satteldach öffnet sich zum Pausenhof. © Lukas Murer Fotoarbeiten
Im Osten der Schweiz ergänzte Pablo Horváth ein Schulareal um ein Schulgebäude mit Kindergarten und Speisehaus. Das ausgeklügelte Außenraumkonzept spiegelt das dörfliche Stadtgefüge in kindgerechtem Maßstab.


Das Schulareal liegt am Rand des Dorfzentrums. Der Entwurf nimmt Bezug auf die lokale Bebauung. © Lukas Murer Fotoarbeiten
Inmitten der Alpen liegt Haldenstein. Das Dorf gehört zum Kanton Graubünden und liegt an der linken Seite des Rheins. Am Rande des Dorfzentrums befindet sich das Schulareal. Der Abstand des Schulgebäudes zur Straße sowie die leichte Drehung ermöglichen einen sicheren Zugang.
Ein Gebäude – zwei Nutzungen
Schule und Kindergarten befinden sich im selben Gebäude. Separate Zugänge trennen die Kleinkinder von den Grundschülern. Das Erdgeschoss beherbergt den Kindergarten. Der zugehörige Außenbereich liegt vom Pausenhof abgewandt. Hier finden die Kleinsten einen geschützten Raum zum Spielen. Während des Schulbetriebs nutzen die Kinder den Spielplatz exklusiv. Zu allen anderen Zeiten steht der Spielplatz der Öffentlichkeit zur Verfügung.


Im Erdgeschoss befindet sich der Kindergarten. © Lukas Murer Fotoarbeiten
Lichtdurchflutete Klassenräume
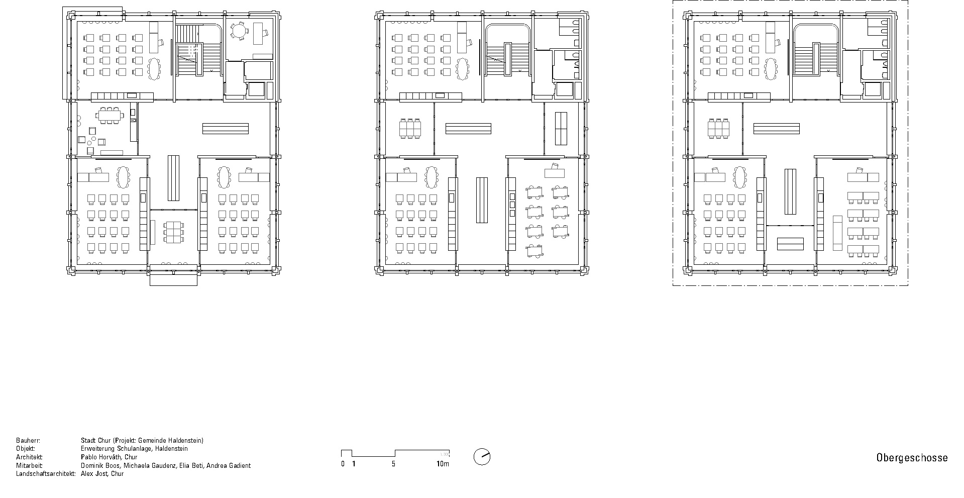
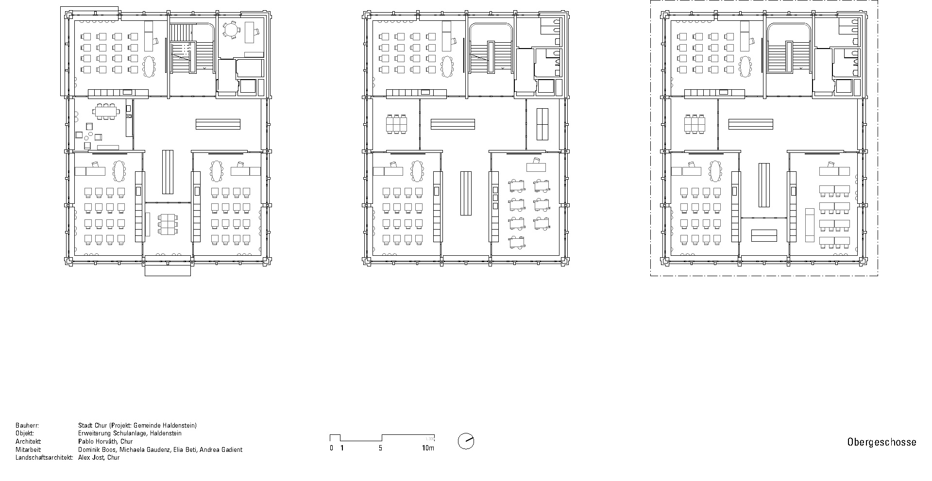
Im ersten bis dritten Obergeschoss haben die Grundschüler ihr Quartier. Aufgrund der Übereck-Konzeption der Klassenräume ergibt sich sowohl in den Zimmern als auch in den Gängen eine optimale Tageslichtversorgung. Die Abtrennung des Treppenhauses ermöglicht eine flexible Nutzung der Erschließungsflächen.


Die Erschließungsfläche zwischen den Klassenzimmern dient auch als Kommunikationsfläche. © Lukas Murer Fotoarbeiten
Kontrastierende Materialien
Außen verbergen Elemente aus Glas und Holz die tragende Betonstruktur. Im Inneren bleiben die tragenden Elemente aus Sichtbeton sichtbar. Die glatte, kühle Erscheinung des Betons kontrastiert mit den Einbauten aus Lärchenholz. Spezielle Schrankwände verstecken Leitungskanäle und versorgen jedes Klassenzimmer mit einer Waschmöglichkeit.


Die Klassenräume sind ideal belichtet. Die Einbauten bestehen aus Holz; die tragenden Bauteile zeigen sich in Sichtbeton. © Lukas Murer Fotoarbeiten
Lokale Bezüge
Ausgelagert aus dem Schulgebäude befindet sich die Mensa. In Anlehnung an die lokale Bebauung erscheint sie als kleines Häuschen mit eingefärbtem Außenputz und Satteldach. Das Speisehaus stellt zudem eine Verbindung zum bestehenden, südwestlich gelegenen Turnhallengebäude her.


Der Essbereich orientiert sich mit bodentiefen Fenstern zum Pausenhof hin. © Lukas Murer Fotoarbeiten
Kindgerechter Maßstab
Die ortstypische Siedlungsstruktur von Plätzen und Gassen übertrugen die Planenden auf die Gestaltung des Schulareals. Unterschiedliche Bodenbeläge wie Rasen oder Kiesel sowie schattenspendende Baumgruppen und ein Brunnen mit kühlendem Wasser erfüllen unterschiedliche Spielbedürfnisse der Kinder. Der Entwurf ragt heraus durch seine Ortsbezogenheit und durch die Orientierung an kindgerechten Maßstäben.
Architektur: Pablo Horváth
Bauherr: Gemeinde Haldenstein, Stadt Chur
Standort: Usserdorf 17, 7023 Haldenstein (CH)
Bauleitung: Andreas Lütscher
Landschaftsarchitektur: Alex Jost
Bauingenieur: Plácido Pérez
Brandschutzplanung: Bachofner
Bauphysik: Martin Kant
HLK-Planung: Collenberg Energietechnik
Elektroplanung: Nay Engineering
Signaletik: pure.



















