Weiterbauen im Bestand
Schulerweiterung bei Zürich von Schmid Schärer Architekten
Mit der Turnhalle und vier neuen Klassenzimmern hat das über 50 Jahre gewachsene Schulhaus einen vorläufigen Abschluss gefunden. © Jason Klimatsas
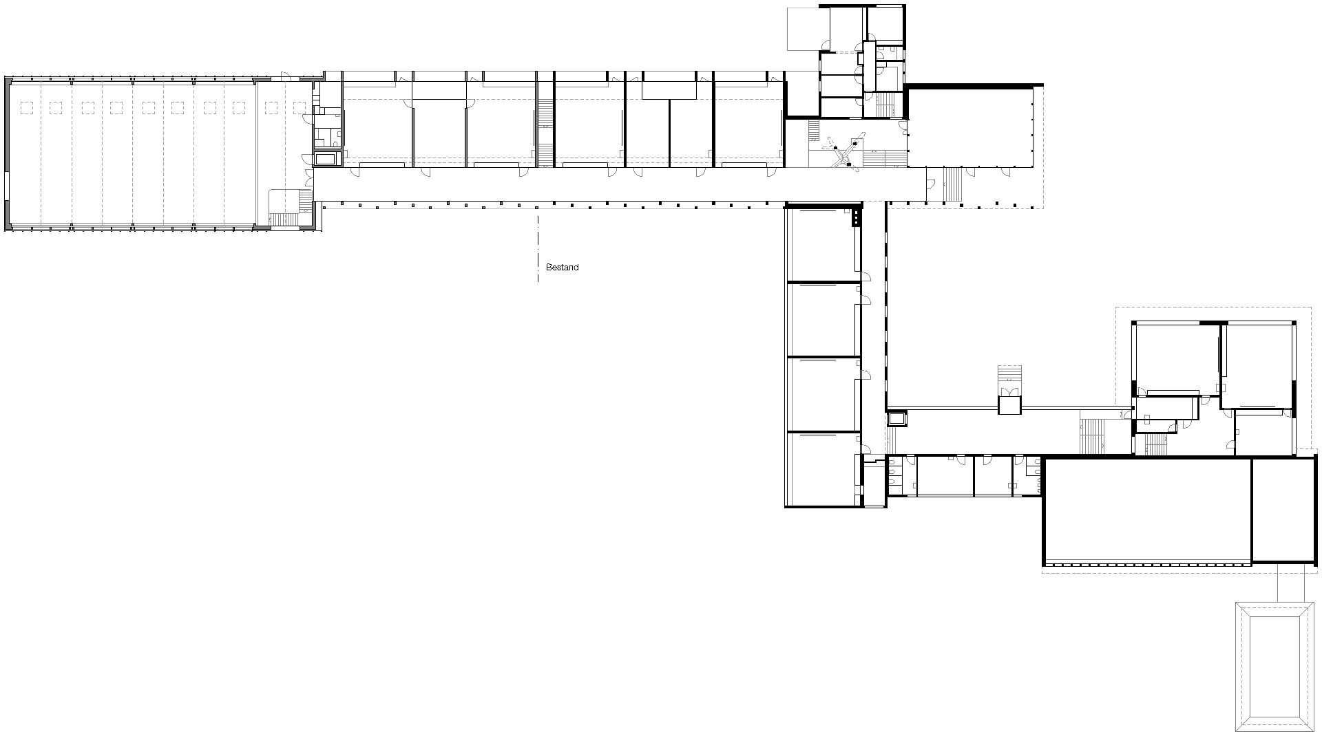
Die Primarschule Gsteig in Lufingen bei Zürich entstand ursprünglich in den 1960er-Jahren und ist heute denkmalgeschützt. 2013 wurde das ursprünglich kompakte, zweigeschossige Bauwerk um einen langgestreckten Anbau nach Süden erweitert. Weil die Gemeinde kein ausreichendes Budget freigegeben hatte, blieb dieser allerdings Stückwerk. Jetzt machte der gestiegene Platzbedarf der Schule einen neuerlichen Architektenwettbewerb erforderlich. Dabei setzten sich Schmid Schärer Architekten mit ihrer Idee durch, die Schule gemäß den ursprünglichen Plänen fertigzubauen. Sie fügten dem Betonbau von 2013 vier neue Klassenzimmer und zwei Gruppenräume hinzu. Den südlichen Abschluss des Gebäudekomplexes bildet nun eine Einfachturnhalle.


Zweischalige Kunststofffassaden filtern gedämpftes Tageslicht in die Turnhalle. © Jason Klimatsas
Frische Farben für den Gebäudekomplex
Während Kubatur und Konstruktion des Klassenzimmertrakts durch die Planung bereits vorgegeben waren, hatten die Architekten bei der Gestaltung der Turnhalle freie Hand. Sie versuchten dennoch, darin Elemente und Farben aus dem Bestandsgebäude aufzugreifen – und übertrugen umgekehrt die Farbigkeit der Turnhalle auch auf den Altbau. Als erster Bauteil des Ensembles wurde diese in Holzbauweise errichtet. Die Dachform aus gestaffelten Giebeldächern und auch die Fassadenverkleidung aus schmalen Holzlisenen sind von den Gewächshäusern einer nahe gelegenen Gärtnerei inspiriert.


Im Turnhallenflur und an der Außenfassade setzten Schmid Schärer Architekten frische Farbakzente. © Jason Klimatsas


© Jason Klimatsas
Zweischalige Polycarbonatfassade
Die hohen Längsfassaden der Turnhalle erhielten eine zweischalige Polycarbonatverkleidung aus Hohlkammerplatten auf der Außenseite und Lichtbauelementen innen. Vorteile dieser Konstruktion sind nach Angaben der Architekten die hohe Wärmedämmung und die blendfreie Lichtstreuung, die einen zusätzlichen Sonnenschutz entbehrlich macht. Sowohl die Turnhalle als auch die neuen Klassenzimmer werden über automatisch gesteuerte Klappen und Fenster natürlich belüftet – Letztere so, dass auch eine Auskühlung über Nacht gewährleistet ist.
Generalplanung: Schmid Schärer Architekten
Bauherr: Primarschule Lufingen
Standort: Hintermarchlen 31-33, 8426 Lufingen (CH)




























