Verzahnung von Alt und Neu
Schulerweiterung und Sanierung in Wien
Die farbigen Terrassen dienen als Orientierungshilfen und Freiräume für Schüler und Schülerinnen. © Schreyer David
Das 1900 erbaute, stadtbildprägende Schulgebäude in der Leystraße im 20. Wiener Gemeindebezirk Brigittenau benötigte dringend eine Sanierung und Erweiterung. Hey!architektur überzeugte die Stadt Wien durch architektonische Qualität und die Schaffung neuer Freiflächen. Nun wurde das erneuerte Gebäude zum Schuljahresbeginn 2024 eröffnet. Das Ergebnis zeigt, dass auch Schule Spaß machen darf.
Zwischen Alt und Neu
Die klassische Putzfassade der Bestandsgebäude wurde beibehalten. Der Neubau auf der Adalbert-Stifter-Straße hingegen erhielt eine Streckmetallfassade in derselben Farbe wie die Putzfassade. Zusätzlich dient die neue Fassade als Rankhilfe für die Begrünung. Durch die gleiche Farbgebung und die zukünftige Begrünung entsteht ein harmonischer Kontrast zwischen Alt und Neu.


Farbgebung und zukünftige Begrünung der Fassaden sorgen für einen harmonischen Kontrast zwischen Alt und Neu. © Schreyer David
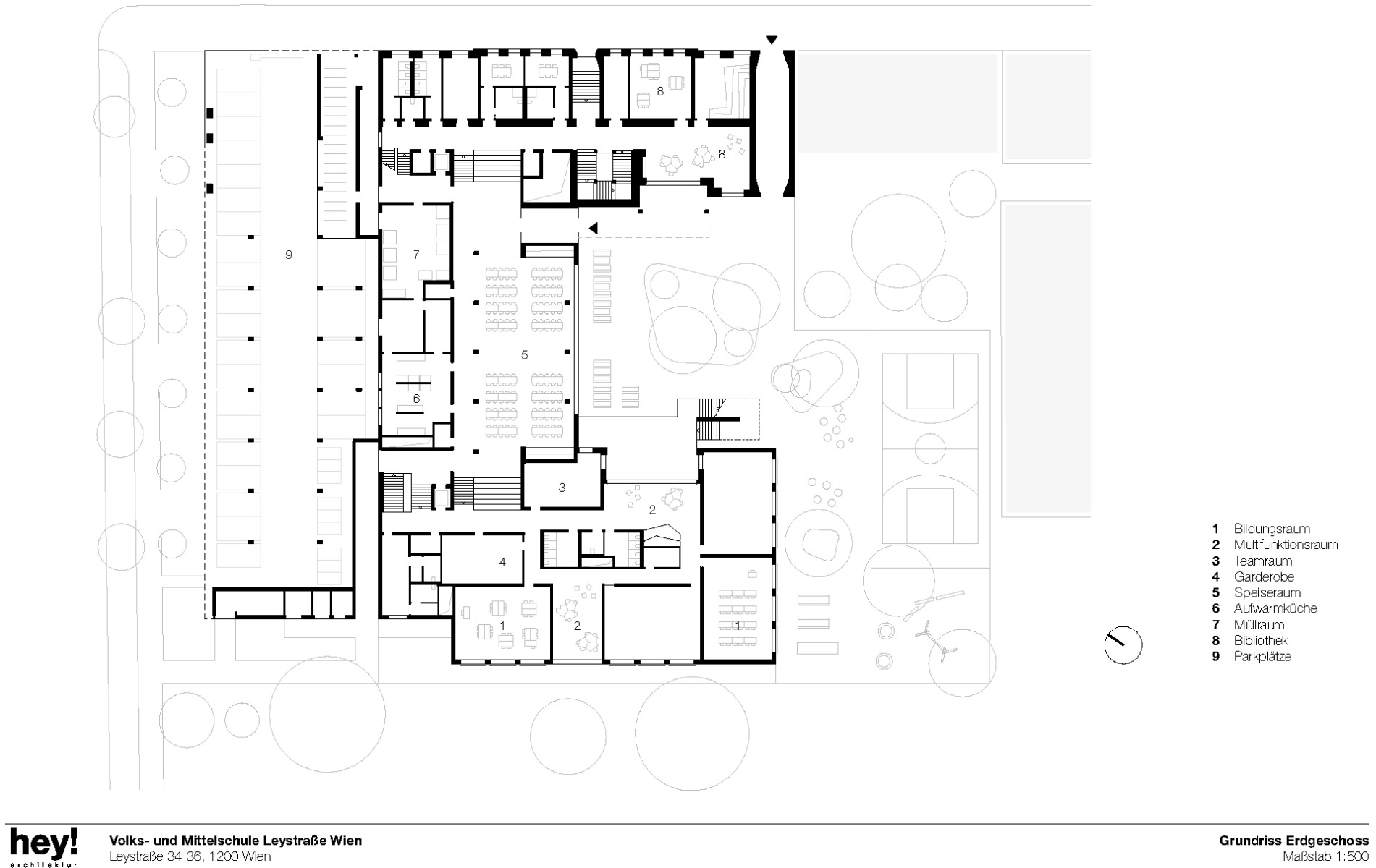
Innenhof als Herzstück
Die Struktur der historischen Schulgebäude ist gleichgeblieben, lediglich die klassischen Flure wurden durch Terrassen, die als Multifunktionsflächen im Freien dienen, ergänzt. Der Haupteingang wurde in die ehemalige Durchfahrt verlegt und führt direkt in den Innenhof. Der zentrale Schulhof ist somit barrierefrei zu Fuß oder auch mit dem Fahrrad zu erreichen. Er ist nicht nur ein Pausenbereich, sondern auch ein Ort für gemeinsame Aktivitäten und soziale Interaktion. Von hier aus können die Schülerinnen und Schüler in ihre Klassenzimmer finden. Auch der Speiseraum öffnet sich direkt zum Hof und verstärkt so die Transparenz und die Verbindung zwischen Innen- und Außenraum.


Der Speiseraum öffnet sich direkt zum Hof. © Schreyer David
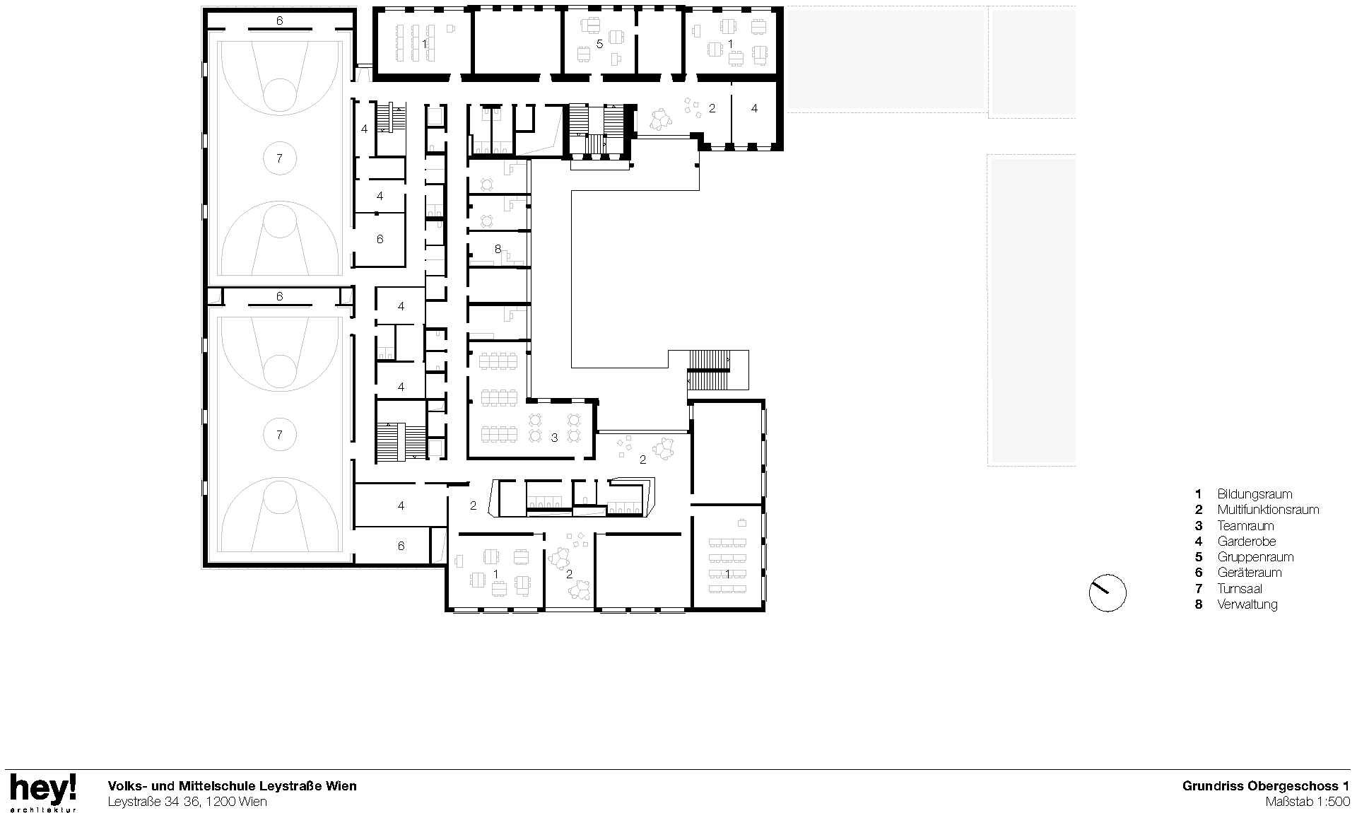
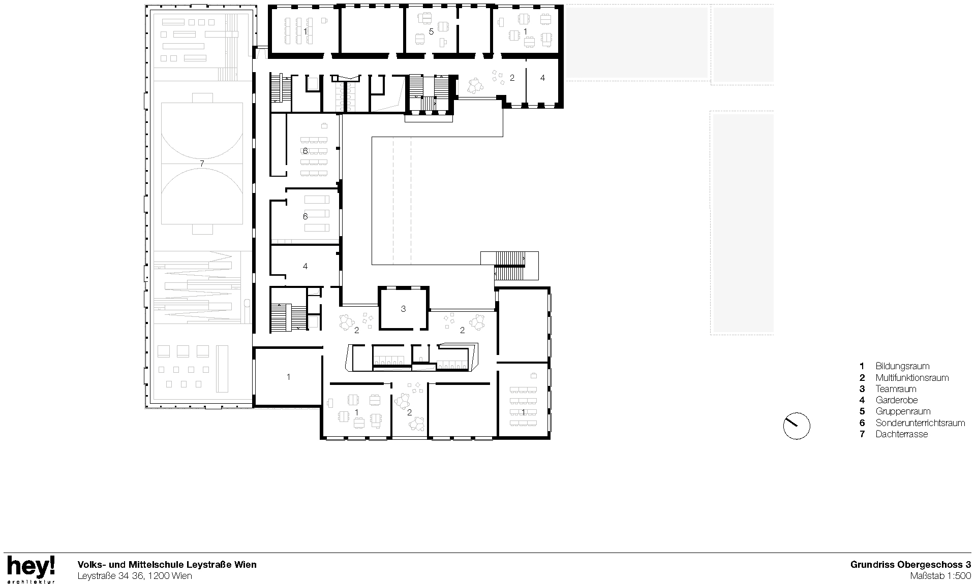
Freiräume und Orientierung
Die umlaufenden Terrassen sind je nach Stockwerk mit Streckmetallgeländern in Pastelltönen wie Rosa, Blau, Orange oder Gelb gestaltet, um Orientierung und Identifikation zu erleichtern. Zusätzlich entstanden auf dem Dach der neuen Turnhalle weitere Freiflächen. Gemeinsam mit den Terrassen erweitern sie den Außenbereich der Schule um rund 2000 m² und bieten vielseitige Nutzungsmöglichkeiten – vom Entspannen bis hin zu speziellen Unterrichtsformen. Die farbigen Akzente setzen sich im Innenraum fort und sorgen für Wiedererkennbarkeit in der sonst reduzierten Gestaltung.


Die farbigen Streckmetallgeländer der Terrassen erzeugen eine heitere Atmosphäre. © Schreyer David


Farbakzente erleichtern außen wie innen die Orientierung. © Schreyer David
Nachhaltigkeit
Die Fassaden der Gebäude sind begrünt, während die Dächer als Schulgärten und Ruhezonen dienen. Für das Lüftungssystem kommt ein hybrides Konzept zum Einsatz, das mechanische Belüftung mit einer automatischen Fensterspaltlüftung kombiniert. Eine großflächige Photovoltaikanlage liefert zusätzliche Energie und trägt zur nachhaltigen Gestaltung der Schule bei.
Architektur: hey!architektur
Bauherr: Stadt Wien
Standort: Leystraße 34–36, 1200 Wien (AT)
Tragwerksplanung, Bauphysik, Bauakustik: KPPK Ziviltechniker




















