// Check if the article Layout ?>
Schulzentrum in Stuttgart: Sanierung und Neustrukturierung
Foto: Markus Guhl
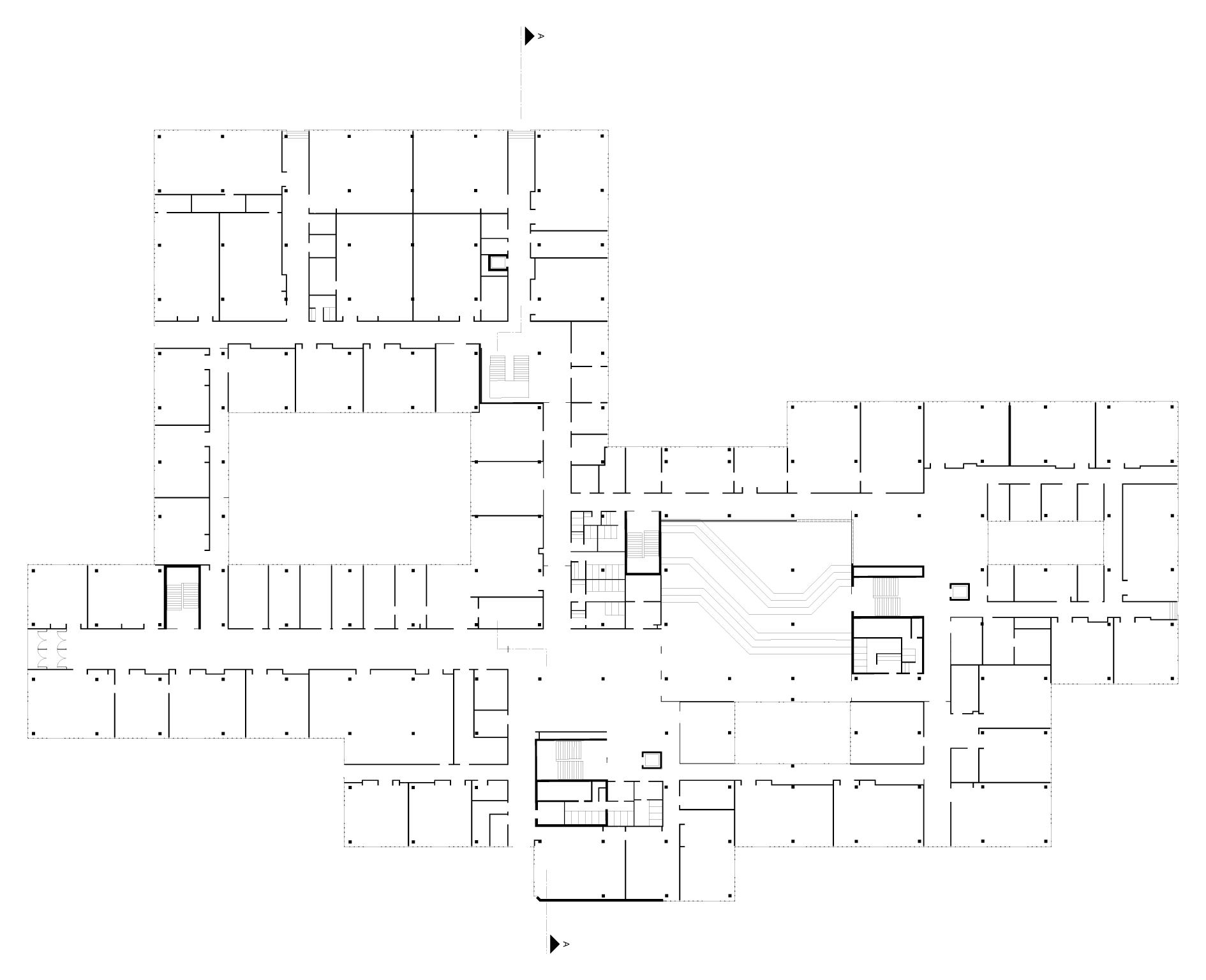
Das Schulzentrum, das die Werner-Siemens-Berufsschule sowie die Kaufmännische Schule Stuttgart-Nord beherbergt, wurde seit seiner Erbauung nur geringfügig modernisiert. Da eine Anpassung der Schule an aktuelle Anforderungen mit dem vorhandenen Grundriss nicht möglich war, haben die Architekten ein Konzept für eine umfassende Neustrukturierung entwickelt und so eine angenehme Lernatmosphäre für die ungefähr 3600 Schüler geschaffen. Im Herzen des Gebäudes lädt eine mit Sitzstufen ausgestattete Aula die Schüler zum Verweilen ein. Zusätzliche Oberlichter sorgen für einen lichten und frischen Charakter, der den Geist einer modernen Schule wiederspiegelt. Die breiten Flure sind mit einer durchgängig lichtblauen Bodenfläche ausgestattet und bilden ein großzügiges Raumgefüge. Der Mensa- und Cafeteria-Bereich erscheint als "Raum in Raum", da die kräftigeren Töne der umfassenden Wände und Fassaden das Farbkonzept unterbrechen. Die gekurvte und lebendig gestaltete Typographie des Leitsystems kontrastiert mit der Klarheit und strengen, orthogonalen Strukturierung der Schule.
Während die Kubatur des Gebäudes kaum eine Veränderung erfahren hat und auch die Lage der Zugänge weitestgehend beibehalten wurden, erscheinen die Fassaden durch einige wenige Maßnahmen wie verwandelt: Im Zuge der energetischen Sanierung wurden die Stirnseiten der Sichtbetondecken gedämmt und mit gelochten Aluminiumplatten bekleidet. Das Zurücksetzen der verglasten Flächen unterstreicht die Schichtung der Geschossebenen. Entscheidend für die harmonische Einfügung in den begrünten Hang ist die landschaftsplanerische Gestaltung der terrassenartigen Dachflächen.
Mit seiner neu geschaffenen Offenheit, Helligkeit und Leichtigkeit und der klar strukturierten Gebäudehülle mit ihren Anklängen an die typische Plattentextur der ursprünglichen Fassaden, ist den Architekten eine zeitgemäße und individuelle Neuinterpretation eines typischen Schulbaus der 1970er Jahre gelungen.
Während die Kubatur des Gebäudes kaum eine Veränderung erfahren hat und auch die Lage der Zugänge weitestgehend beibehalten wurden, erscheinen die Fassaden durch einige wenige Maßnahmen wie verwandelt: Im Zuge der energetischen Sanierung wurden die Stirnseiten der Sichtbetondecken gedämmt und mit gelochten Aluminiumplatten bekleidet. Das Zurücksetzen der verglasten Flächen unterstreicht die Schichtung der Geschossebenen. Entscheidend für die harmonische Einfügung in den begrünten Hang ist die landschaftsplanerische Gestaltung der terrassenartigen Dachflächen.
Mit seiner neu geschaffenen Offenheit, Helligkeit und Leichtigkeit und der klar strukturierten Gebäudehülle mit ihren Anklängen an die typische Plattentextur der ursprünglichen Fassaden, ist den Architekten eine zeitgemäße und individuelle Neuinterpretation eines typischen Schulbaus der 1970er Jahre gelungen.


















