// Check if the article Layout ?>
Sehnsuchtsort Fernost: Gästehaus in Hamburg
Gaestehaus Falkenstein, Foto: Klaus Frahm, Hamburg
Das eingeschossige, rechteckige Gästehaus liegt mit seiner Längsseite und mit Blick in Richtung Osten an einem künstlich angelegten Teich. Eine Remise befindet sich weiter oben am Hang und hat, ebenso wie das Haupthaus, ein mit Kupferschindeln gedecktes Satteldach. Dieses besteht aus Eichenholzbalken und einer Haupt-Tragkonstruktion aus Stahl. Die Wände wurden in Holzständerbauweise erstellt und innen und außen einheitlich horizontal mit Eichenholzbrettern verkleidet. Auch der Bodenbelag ist aus Eichenholz.
Räumlich getrennte Bereiche
Das Gäste- bzw. Badehaus vereint drei unterschiedlich große und räumlich getrennte Bereiche. In dem 65 m2 großen, zentralen Hauptraum gibt es gemäß japanischer Tradition eine in den Boden eingelassene, mit Tatamimatten ausgelegte Sitznische. Sauna und Toilette befinden sich in einem kleineren Kubus. Der dritte, ohne spezifische Funktion ausgestattete Raum ist optisch über raumhohe Verglasungen und Schiebwände mit dem Hauptvolumen verbunden. Erschlossen werden die drei Volumina von der Seite her über die Zwischengänge. Veranden an der Rück- und Teichseite bilden einen wettergeschützten Vorbereich bzw. Übergang zum Steg.
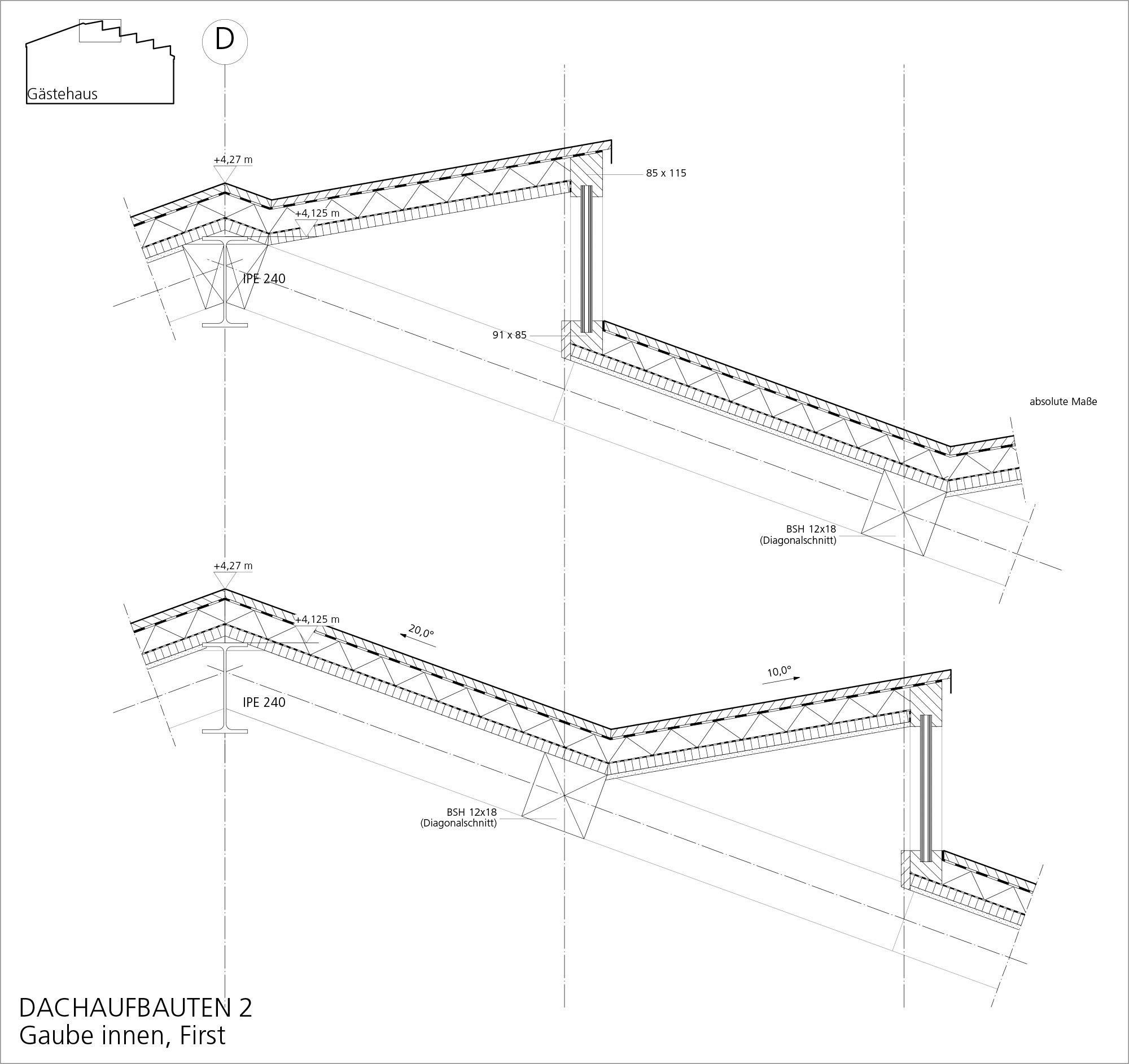
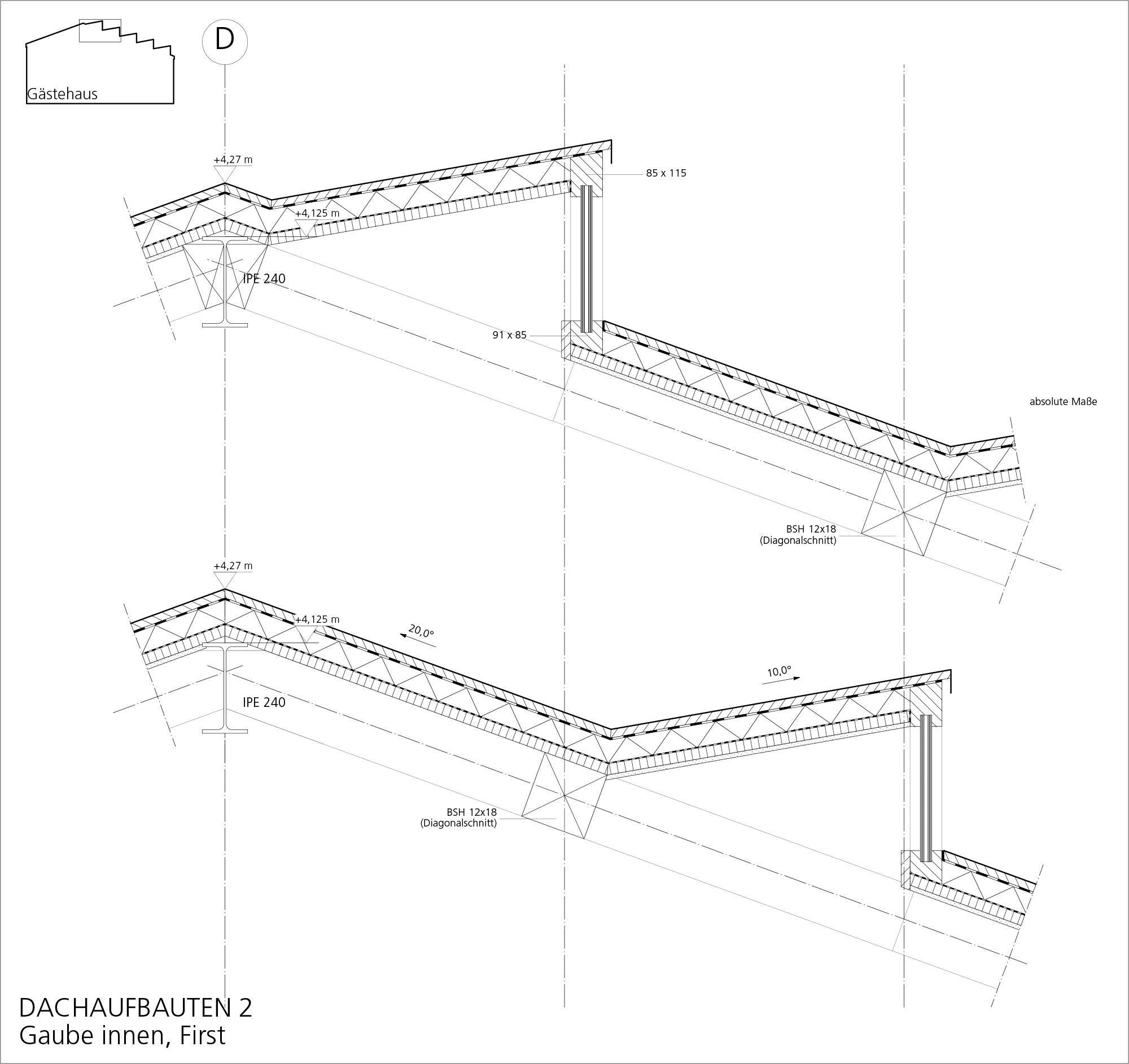
Sichtbares Dachtragwerk
Die Dachflächen zum Teich erinnern von außen an einen Schuppenpanzer. Dies ist auf die rund 40 Dachgauben zurückzuführen, die auf der Ostseite platziert und in drei Reihen versetzt angeordnet sind. Das Dachtragwerk selbst besteht aus einer Konstruktion aus Eichenholz-Balken, die ein von unten sichtbares, rautenförmiges Netz bilden. Darin eingebettet sind die Dachöffnungen, welche der Konstruktion räumliche Tiefe verleihen und im Gebäudeinneren ein lebendiges Licht- und Schattenspiel entstehen lassen. Um die Konstruktion insbesondere an der Ost- bzw. Teichfassade filigran erscheinen zu lassen, wurde die Haupt-Tragkonstruktion inklusive First in Stahl erstellt. Die Stahlprofile (IPE 240 und HEA 140) sind in Eisenglimmer-Farbe beschichtet und in ihrer Funktion als tragende Elemente sichtbar.
Räumlich getrennte Bereiche
Das Gäste- bzw. Badehaus vereint drei unterschiedlich große und räumlich getrennte Bereiche. In dem 65 m2 großen, zentralen Hauptraum gibt es gemäß japanischer Tradition eine in den Boden eingelassene, mit Tatamimatten ausgelegte Sitznische. Sauna und Toilette befinden sich in einem kleineren Kubus. Der dritte, ohne spezifische Funktion ausgestattete Raum ist optisch über raumhohe Verglasungen und Schiebwände mit dem Hauptvolumen verbunden. Erschlossen werden die drei Volumina von der Seite her über die Zwischengänge. Veranden an der Rück- und Teichseite bilden einen wettergeschützten Vorbereich bzw. Übergang zum Steg.
Sichtbares Dachtragwerk
Die Dachflächen zum Teich erinnern von außen an einen Schuppenpanzer. Dies ist auf die rund 40 Dachgauben zurückzuführen, die auf der Ostseite platziert und in drei Reihen versetzt angeordnet sind. Das Dachtragwerk selbst besteht aus einer Konstruktion aus Eichenholz-Balken, die ein von unten sichtbares, rautenförmiges Netz bilden. Darin eingebettet sind die Dachöffnungen, welche der Konstruktion räumliche Tiefe verleihen und im Gebäudeinneren ein lebendiges Licht- und Schattenspiel entstehen lassen. Um die Konstruktion insbesondere an der Ost- bzw. Teichfassade filigran erscheinen zu lassen, wurde die Haupt-Tragkonstruktion inklusive First in Stahl erstellt. Die Stahlprofile (IPE 240 und HEA 140) sind in Eisenglimmer-Farbe beschichtet und in ihrer Funktion als tragende Elemente sichtbar.
Weitere Informationen:
Projektart: Direktauftrag
Mitarbeit: Sona Kazemi (Projektleitung), Harm Hinrichs
Fläche: 100 m2 BGF
Betreute Leistung: LP 1 bis 9
Landschaftsplanung: Reiner Mertins, Hamburg
Fertigstellung: 2014
Projektart: Direktauftrag
Mitarbeit: Sona Kazemi (Projektleitung), Harm Hinrichs
Fläche: 100 m2 BGF
Betreute Leistung: LP 1 bis 9
Landschaftsplanung: Reiner Mertins, Hamburg
Fertigstellung: 2014















