Stadtentwicklung in der Vertikalen
Senckenberg Quartier in Frankfurt von Cyrus Moser Architekten
© WICONA
Mit dem vierteiligen Gebäudekomplex am Frankfurter Senckenberg-Museum haben Cyrus Moser Architekten einen vielfältigen Nutzungsmix realisiert, der sich an den Fassaden auch äußerlich abbildet. Ein Hochhausstandort war das Areal schon vor seiner Neubebauung – 2014 wurde hier der AfE-Turm, ein 116 m hohes Bauwerk mit Seminar- und Büroräumen der Johann-Wolfgang-von-Goethe-Universität, gesprengt.


© Faruk Pinjo
Nun jedoch sind gleich vier Neubauten an seine Stelle getreten – der Größe nach: der 145 m hohe Hotel- und Wohnturm One Forty West, der 106 m hohe Senckenberg Tower mit Büroflächen für etwa 1200 Mitarbeiter, das sechsgeschossige 21 West Office und eine Kindertagesstätte. 2016 hatten Cyrus Moser Architekten den Wettbewerb für das Quartier gewonnen, und auch die vier Einzelbauten tragen ihre Handschrift.
Beispielhaft zeigen die beiden Hochhäuser ihre Nutzungen nach außen: Der 26-geschossige Senckenberg Turm erhielt eine verglaste Elementfassade mit zurückspringenden, opaken Lüftungsklappen. Die Fassadenprofile sind hier aus Recyclingaluminium hergestellt. Zwei horizontal umlaufende, verglaste Einschnitte gliedern den Turm in Sockel, Schaft und Krone. Oben auf dem 23 m hohen Sockel ließen die Architekten eine begrünte Dachterrasse anlegen.


© WICONA
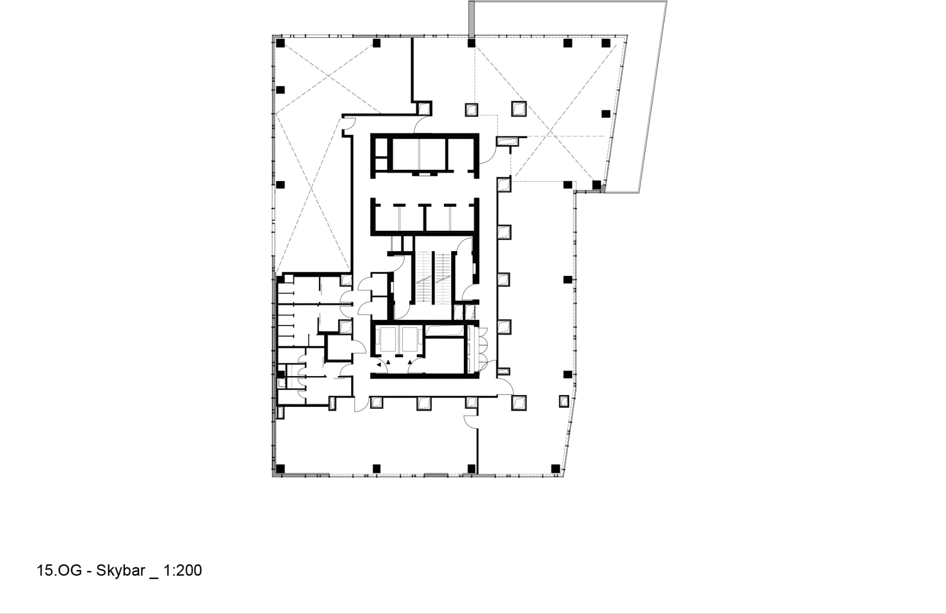
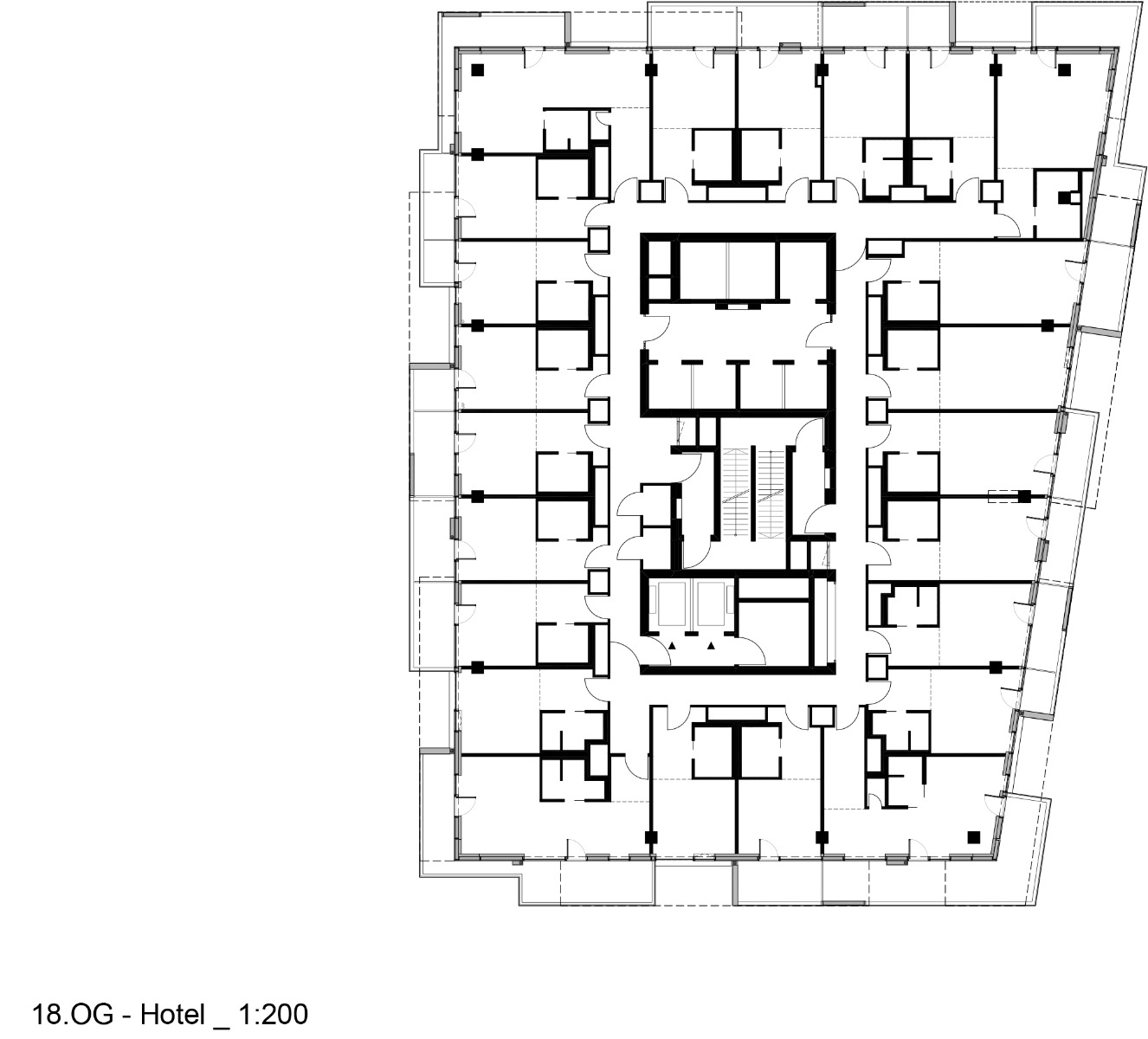
Ganz anders dagegen das höhere One Forty West mit seiner zweiteiligen Nutzung: unten 23 Geschosse mit Vier-Sterne-Plus-Hotel, oben 17 Wohnetagen mit 93 Miet- und 94 Eigentumswohnungen. Im 16. Obergeschoss liegt das öffentlich zugängliche Hotelrestaurant, das zugleich die Zäsur zwischen den beiden sehr unterschiedlichen Fassadentypen bildet: Der untere Teil des Turms trägt eine glatte Elementfassade, den oberen umgeben Balkone und Loggien, die sich spiralförmig ansteigend um den Turm legen.


© Faruk Pinjo


© Faruk Pinjo
Insgesamt 3 km dieser getreppten weißen Bänder wurden am Gebäude montiert – als C-förmige Elemente mit je 8,40 m Länge aus einer Stahlkonstruktion mit Verkleidung aus weißem Aluminiumblech und Ganzglasbrüstungen. Das Achsraster der Fassaden beträgt am ganzen Turm einheitlich 2,10 m. Das Fassadenkonzept war flexibel genug, um im Inneren des Hauses einen breiten Wohnungsmix zu realisieren und jeder Wohnung ihren eigenen, privaten Außenbereich zu geben.


Dies ist eine Bildunterschrift
Architektur: Cyrus Moser Architektenm Dietz Joppien Architekten AG (One Forty West, Leistungsphase 5; 21 West), a5 Architekten (Senckenberg Kita, Leistungphasen 3-9)
Innenarchitektur: Ippolito Fleitz Group (One Forty West)
Bauherren und Auslober: T-Rex Grundstücksentwicklung, ABG Frankfurt Holding, G&P Therapoda Grundstücksentwicklung
Standort: Senckenberganlage 15-19, 60325 Frankfurt am Main (DE)
Tragwerksplanung: Werner Sobek Frankfurt (One Forty West + Senckenberg Turm)
Projektmanagement: Groß & Partner, Drees & Sommer
Baumanagement: Drees & Sommer, Gassmann + Grossmann
Bruttogrundfläche: 110 890 m²
Fassaden: Rupert App, Lindner Group, Wicona





















