Landmarke aus Cortenstahl
Sendeturm in Çanakkale von IND und Powerhouse Company
Der knapp 100 m hohe Sendeturm erhebt sich auf einem Hügel unweit von Çanakkale am Marmarameer. © Fernando Alda
Früher waren Sendemasten für Fernsehen und Radio meist unzugängliche, technisch geprägte Infrastrukturbauten – zumal, wenn sie außerhalb besiedelter Gebiete standen wie auf dem 312 m hohen Antennenhügel oberhalb der westtürkischen Hafenstadt Çanakkale. Dort haben die beiden Planungsbüros IND und Powerhuse Company aus den Niederlanden mehrere bestehende Sendemasten zu einem skulpturalen, größtenteils auch für die Öffentlichkeit zugänglichen Neubau zusammengefasst.


Im Inneren des Rings schufen die Landschaftsarchitekten eine neue Grünanlage mit regionaltypischer Vegetation. © Fernando Alda
Infrastruktur und Tourismus Hand in Hand
Elegant, umweltfreundlich und wirtschaftlich sollte der Entwurf sein – so stand es schon in der Auslobung des internationalen Wettbewerbs, den IND und Powerhouse Company 2016 gewannen. Außerdem sollte das Gelände für die öffentliche Nutzung geöffnet und Aussichtsplattformen, ein Besucherzentrum und Gastronomieangebote in die Planung einbezogen werden. Leistbar war das nur, indem die Architekten eng mit Telekommunikationsexperten, Bauingenieuren und Landschaftsarchitekten zusammenarbeiteten. Wichtig war unter anderem ein sicherer Abstand zwischen dem Turm und dem öffentlichen Bereich, um Strahlungsrisiken zu mindern.
Der Sendemast als Eingangsportal
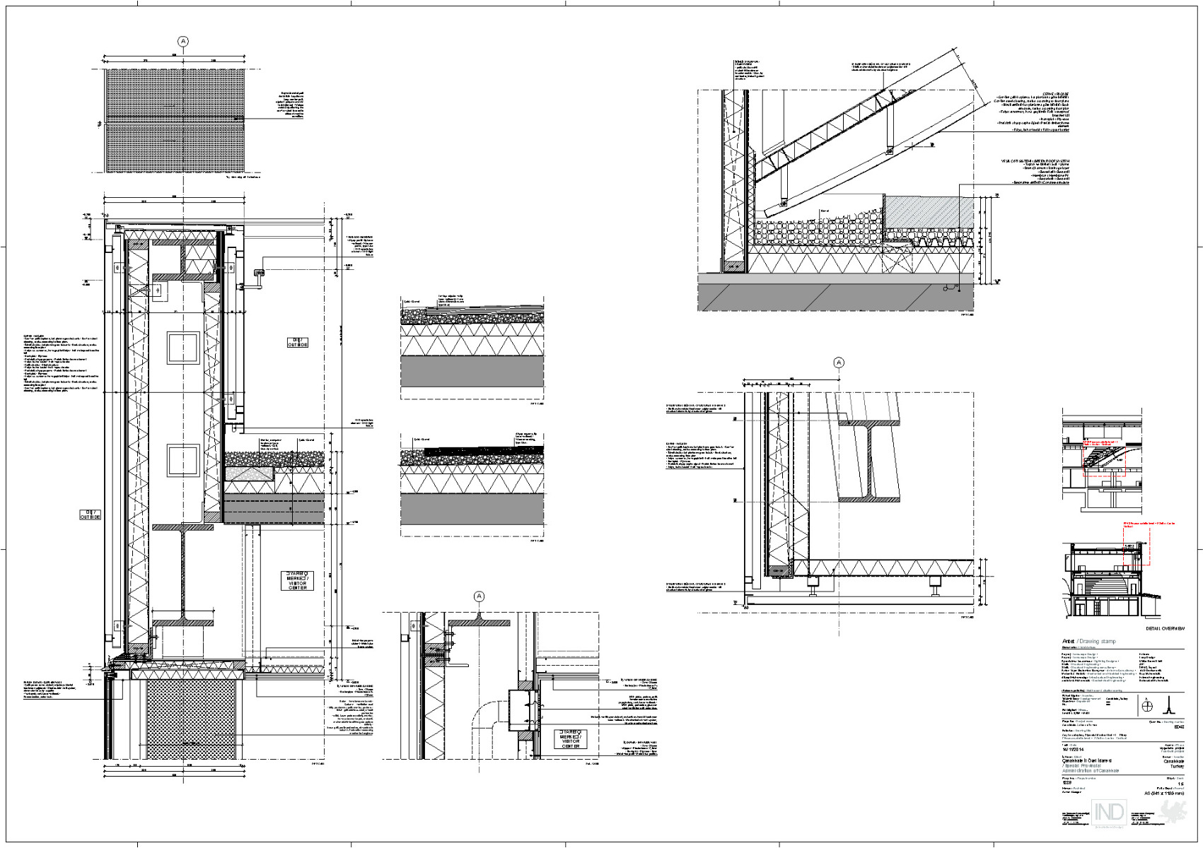
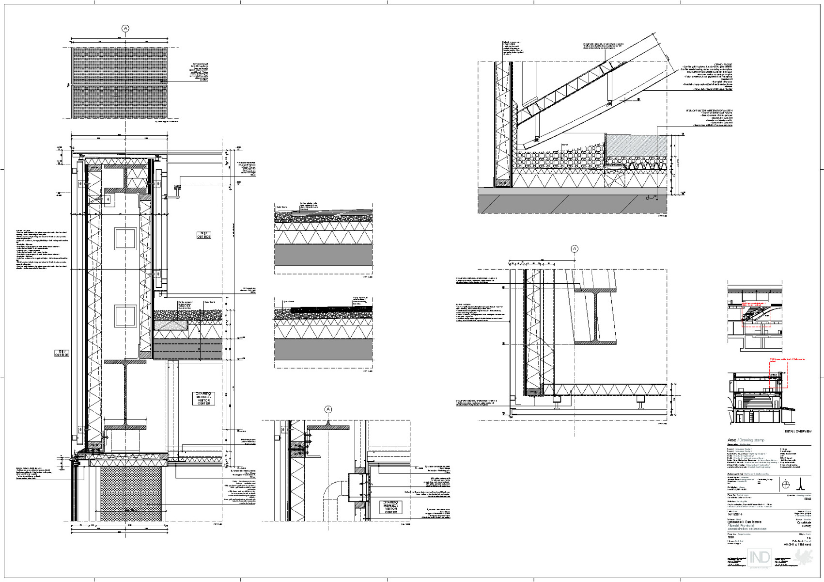
Der knapp 100 m hohe Sendemast bildet mit seinen beiden Megastützen aus Cortenstahl eine Art Tor auf der Ostseite der Anlage. Im Westen komplettiert ein Flachbau das Ensemble zu einem weitgehend geschlossenen Ring. In seinem Inneren ist das Besucherzentrum mit Restaurant untergebracht, von der mit Holz belegten Dachpromenade aus bieten sich weite Blicke über die Meerenge der Dardanellen.


Wie zwei massive Wälle begleiten die Cortenstahlbrüstungen den Weg über das Dach des Gebäudes. In dessen Inneren ist unter anderem ein Restaurant untergebracht. © Fernando Alda
Kaum gezähmte Natur
Im Zentrum der Anlage schufen die Landschaftsarchitekten einen naturbelassenen Park, der bewusst so gestaltet ist, dass er eine natürliche und ungezähmte Atmosphäre ausstrahlt. Auf diese Weise sollen die Grenzen zwischen der Vegetation des Grundstücks und der umgebenden Waldlandschaft verwischen.


Sendemast und öffentlicher Bereich ergänzen sich zu einem großen Ganzen, sind jedoch in sicherem Abstand voneinander platziert. © Sebastian van Damme


Öffentlicher Bereich, © Sebastian van Damme
Großskulptur aus Cortenstahl
Der Sendeturm ist so konstruiert, dass er Windgeschwindigkeiten von bis zu 160 km/h standhält. Er wurde vor Ort aus mehreren vorgefertigten Elementen zusammengesetzt, die wiederum aus bis zu 40 mm starken Stahlplatten mit zusätzlicher, innerer Versteifung bestehen. Der teils als Brücke auf Betonpfeilern gelagerte, ringförmige Flachbau wird im Inneren durch ein Stahlskelett stabilisiert und ist wie der Turm mit Cortenstahlplatten – hier in einer Dicke von rund 20 mm – verkleidet.
Architektur: IND [Inter.National.Design] & Powerhouse Company
Bauherr: Ministry of Transport and Infrastructure & Çanakkale Special Province Administration
Standort: 17100 Sarıcaeli/Çanakkale Merkez/Çanakkale (TR)
Tragwerksplanung: ABT B.V. & INTAÇ
Landschaftsarchitektur: Hugo Sánchez Paisaje, Taller de Paisaje Entorno & Loop Design
Geotechnik: İnşaat Müh, Jeoloji Müh
Infrastrukturplanung: Adnan Erokan
Elektroplanung: Küp Mühendislik
Lichtplanung: Ulrike Brandi, Benjamin Heine, Sarah Textor

























