// Check if the article Layout ?>
Setzkasten aus Messing: Musikschule am Hofsteig in Wolfurt
Foto: Martin Mischkulnig
Die Bregenzer Nachbargemeinde Wolfurt in Vorarlberg besitzt zwei Zentren: den historischen, kleinteiligen Ortskern und, rund 500 m weiter südlich, das eher weitläufige »Sternendorf«. Dort stehen sich die großformatigen Gebäudevolumina einer Mittelschule, einer Veranstaltungshalle, eines Vereinshauses sowie ein Supermarkt und ein Hotel an einer Straßenkreuzung gegenüber. 2014 machte sich die Gemeinde daran, die in Nord-Süd-Richtung verlaufende Durchgangsstraße durch das Strohdorf zum »Shared Space« mit Tempo 30 umzugestalten. Möglich wurde dies, nachdem ein Tunnel und ein neuer Autobahnanschluss am Ortsrand viel Autoverkehr aus dem Zentrum von Wolfurt abgezogen hatten.
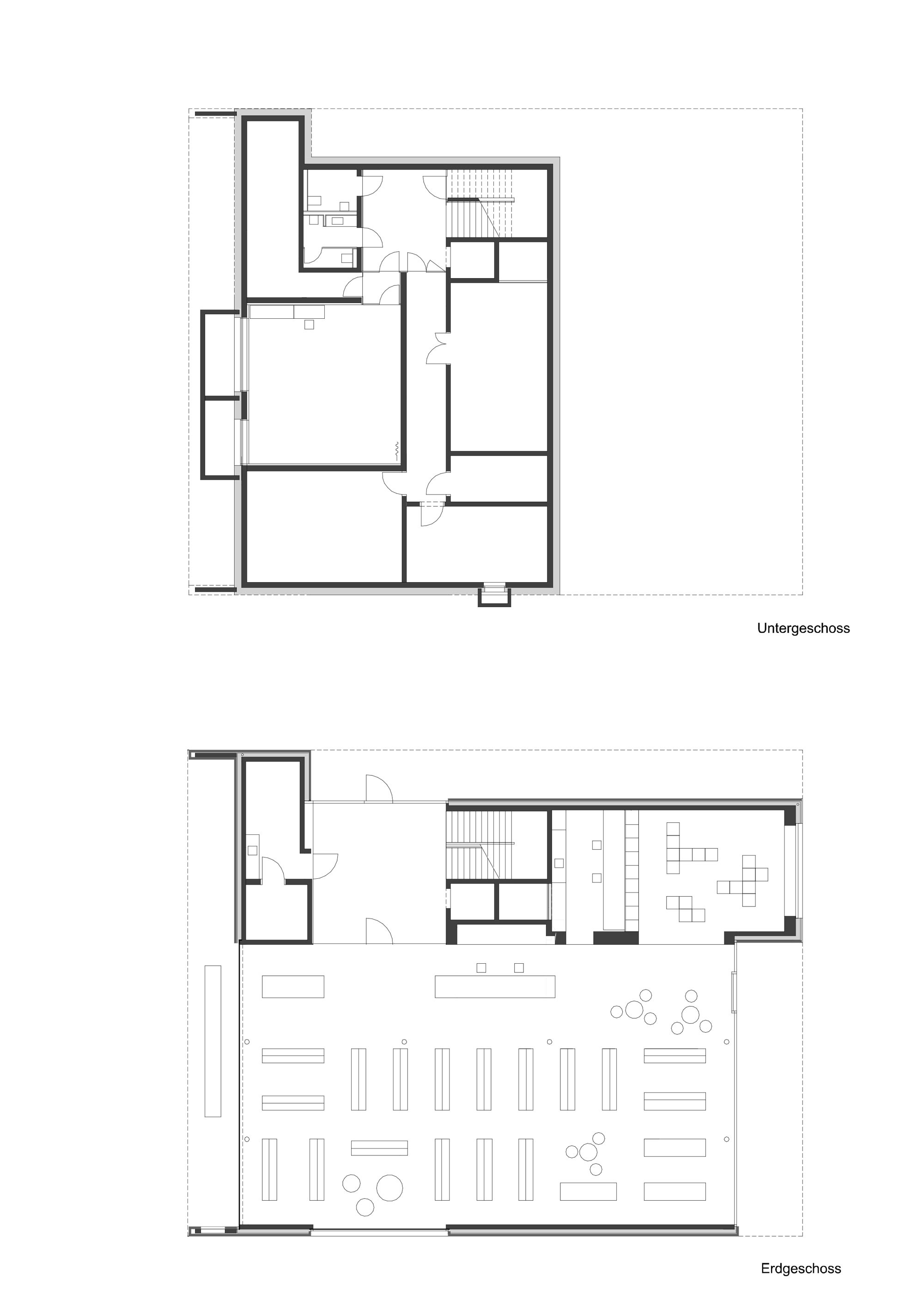
Der wenig später in Angriff genommene Neubau der örtlichen Musikschule und Bibliothek reagiert bereits auf diese neue Verkehrssituation. Seine Westfassade, in der breite Rahmen aus Messingblech die 15 Quadratfenster der Übungsräume einfassen, hätte zwar auch bei Tempo 50 noch einen passablen Blickfang abgegeben. Im zurückgesetzten Erdgeschoss hingegen kamen die Architekten mit überdachten Fahrradstellplätzen und einer integrierten Bushaltestelle dem Wunsch der Gemeinde nach »sanfter« Mobilität entgegen.
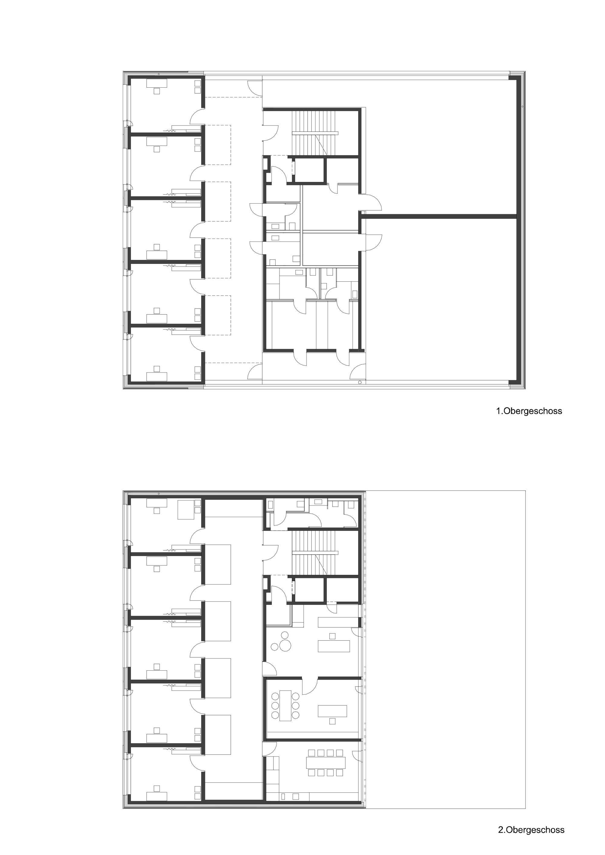
Die beiden Nutzungen sind im Gebäude übereinander angeordnet – die Bibliothek im Erdgeschoss und die Musikschule in den drei Ebenen darüber. Eine eingezogene Loggia verbindet den Lesesaal der Bibliothek im Osten mit dem Garten. Ein weiterer Rücksprung im Norden leitet die Besucher zum Haupteingang. Im ersten Obergeschoss kragen die beiden großen Säle der Musikschule nach Osten über die Bibliothek aus. In den beiden obersten Geschossen ist die Raumstruktur eher kleinteiliger, mit den Probenräumen im Westen sowie der Musikschulverwaltung und weiteren Unterrichtsräumen im Osten.
Als zentrales Bindeglied der Obergeschosse fungiert eine Art vertikales Foyer, das Tageslicht durch eine Dachverglasung erhält. Brücken verbinden die Erschließungsflure über den Luftraum hinweg mit den Probenräumen. Schon um die erforderliche akustische Trennung zwischen Bibliothek und Musikschule herzustellen, entschieden sich die Architekten für eine Massivkonstruktion aus Ortbeton, der innen über weite Strecken in Sichtqualität belassen wurde. Dielenböden, Lamellendecken und Wandpaneele aus Holz – erstere beide aus sägerauer unbehandelter Eiche – bilden dazu einen warmfarbigen Kontrast.
Für die geschlossenen Fassadenflächen wählten die Architekten ein beigefarbenes, hinterlüftetes Klinkermauerwerk im »dünnen Langformat« von 490 x 52 mm. Die Gebäudehülle ist so gut gedämmt und so luftdicht, dass das Haus mit 18 kWh/m2a nahezu den Heizwärmebedarf eines Passivhauses erreicht. Hocheffiziente Lüftungsanlagen mit Wärmerückgewinnung, Niedertemperaturheizungen, eine Nachtluftspülung zur Gebäudekühlung sowie eine Solaranlage auf dem Dach komplettieren das Energiekonzept.
Der wenig später in Angriff genommene Neubau der örtlichen Musikschule und Bibliothek reagiert bereits auf diese neue Verkehrssituation. Seine Westfassade, in der breite Rahmen aus Messingblech die 15 Quadratfenster der Übungsräume einfassen, hätte zwar auch bei Tempo 50 noch einen passablen Blickfang abgegeben. Im zurückgesetzten Erdgeschoss hingegen kamen die Architekten mit überdachten Fahrradstellplätzen und einer integrierten Bushaltestelle dem Wunsch der Gemeinde nach »sanfter« Mobilität entgegen.
Die beiden Nutzungen sind im Gebäude übereinander angeordnet – die Bibliothek im Erdgeschoss und die Musikschule in den drei Ebenen darüber. Eine eingezogene Loggia verbindet den Lesesaal der Bibliothek im Osten mit dem Garten. Ein weiterer Rücksprung im Norden leitet die Besucher zum Haupteingang. Im ersten Obergeschoss kragen die beiden großen Säle der Musikschule nach Osten über die Bibliothek aus. In den beiden obersten Geschossen ist die Raumstruktur eher kleinteiliger, mit den Probenräumen im Westen sowie der Musikschulverwaltung und weiteren Unterrichtsräumen im Osten.
Als zentrales Bindeglied der Obergeschosse fungiert eine Art vertikales Foyer, das Tageslicht durch eine Dachverglasung erhält. Brücken verbinden die Erschließungsflure über den Luftraum hinweg mit den Probenräumen. Schon um die erforderliche akustische Trennung zwischen Bibliothek und Musikschule herzustellen, entschieden sich die Architekten für eine Massivkonstruktion aus Ortbeton, der innen über weite Strecken in Sichtqualität belassen wurde. Dielenböden, Lamellendecken und Wandpaneele aus Holz – erstere beide aus sägerauer unbehandelter Eiche – bilden dazu einen warmfarbigen Kontrast.
Für die geschlossenen Fassadenflächen wählten die Architekten ein beigefarbenes, hinterlüftetes Klinkermauerwerk im »dünnen Langformat« von 490 x 52 mm. Die Gebäudehülle ist so gut gedämmt und so luftdicht, dass das Haus mit 18 kWh/m2a nahezu den Heizwärmebedarf eines Passivhauses erreicht. Hocheffiziente Lüftungsanlagen mit Wärmerückgewinnung, Niedertemperaturheizungen, eine Nachtluftspülung zur Gebäudekühlung sowie eine Solaranlage auf dem Dach komplettieren das Energiekonzept.
Weitere Informationen:
Statik: Andreas Gaisberger
HLS-Planung: GMI – Peter Messner GmbH
Landschaftsplanung: Markus Cukrowicz
Bauphysik: Bernhard Weithas
Brandschutz: K & M Brandschutztechnik
Elektroplanung: Ludwig Schneider
Lichtplanung: Conceptlicht
Statik: Andreas Gaisberger
HLS-Planung: GMI – Peter Messner GmbH
Landschaftsplanung: Markus Cukrowicz
Bauphysik: Bernhard Weithas
Brandschutz: K & M Brandschutztechnik
Elektroplanung: Ludwig Schneider
Lichtplanung: Conceptlicht



















