Umnutzung auf dem Land
Sigurd Larsen transformiert Scheune zum Gästehaus
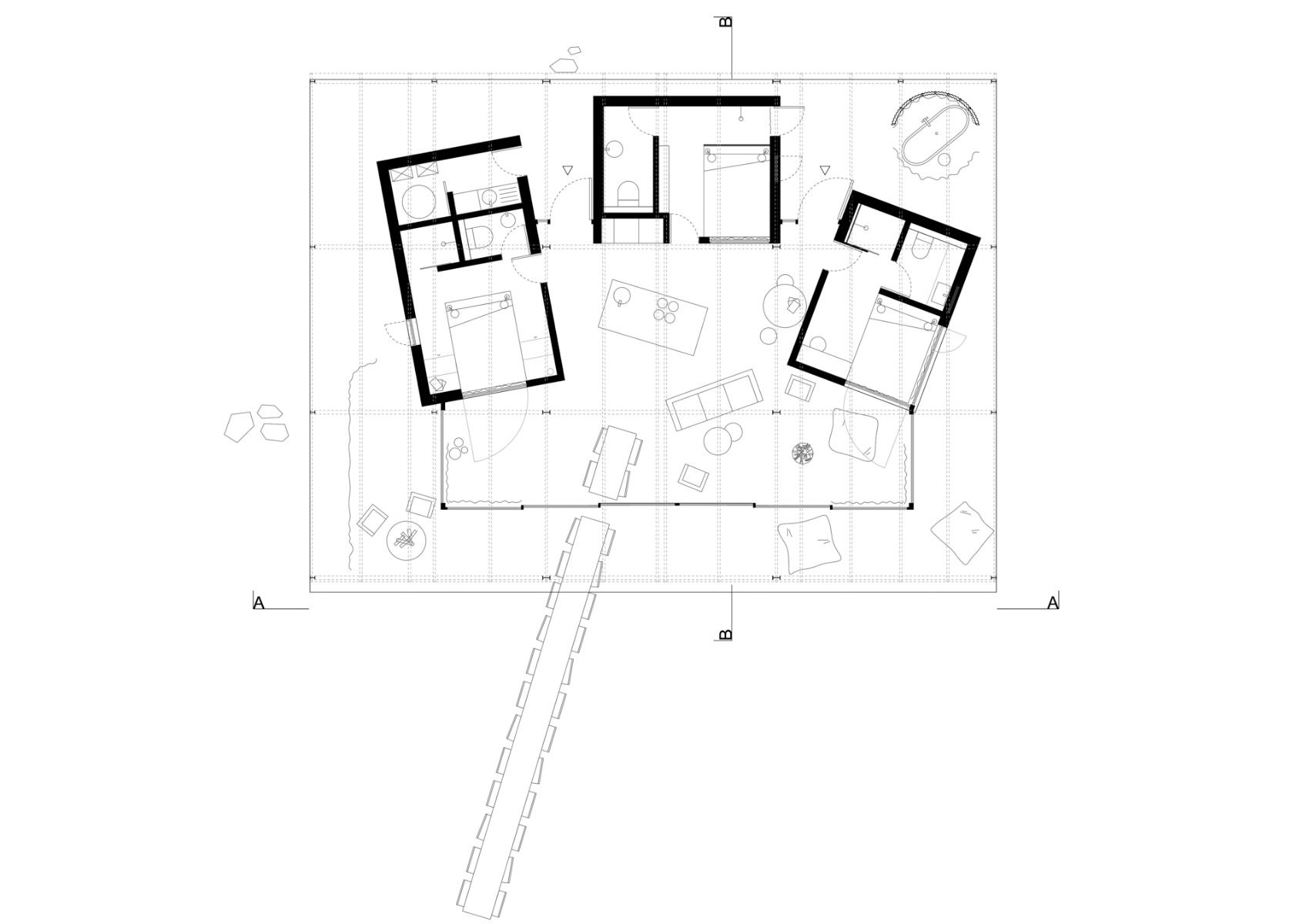
Unter dem großzügigen Dach finden sich drei separate Schlafzimmer, die wie eigenständige kleine Häuser gestaltet sind. Dazwischen liegt ein zentraler Gemeinschaftsbereich mit offener Küche. © Kkrom Services
Architekt Sigurd Larsen transformiert eine Scheune in der Auvergne zu einem roten Ferienhaus. Mit Erhalt des Bestands und klarer Struktur wird das Gebäude zur architektonischen Bühne für die Landschaft. La Grange Rouge liegt auf einem Hügel inmitten der bewaldeten Landschaft der Auvergne und ist ein Gästehaus, das einen einzigartigen Rückzugsort inmitten der alten Vulkane des Puy de Dôme bietet.


Der Übergang zwischen Innenraum und Landschaft ist fließend: Eine großzügige Terrasse liegt geschützt unter dem Dachvorsprung, große Glasflächen öffnen den Raum nach Westen. © Kkrom Services
Architektur als reduzierte Geste
Der Umbau von La Grange Rouge basiert auf einem einfachen, aber wirkungsvollen architektonischen Prinzip: Erhalt des Tragwerks und Konzentration auf räumliche Wirkung. Das bestehende Stahlgerüst mit seinem weit ausladenden Satteldach bleibt bestehen, ebenso wie die Grundform – ergänzt um ein klares architektonisches Farbstatement: Alles wird rot.
Nicht irgendein Rot, sondern ein industrieller Farbton aus der Stahlindustrie – bekannt von der Golden Gate Bridge. Dieses Rot zieht sich nicht nur über Fassade und Dach, sondern auch durch die Innenräume. Wände und Decken flammen in warmen Rottönen, die sich bei Sonnenuntergang in der grünen Umgebung beinahe flirrend vom Hintergrund abheben.


Eine große Kücheninsel aus gebürstetem Edelstahl bildet das Herzstück des Raums, kontrastiert das Holz der Einbauten und reflektiert zugleich das Lichtspiel der roten Umgebung. © Kkrom Services
Drei Rückzugsorte
Im Inneren der Scheune folgt die Raumaufteilung einer fast dörflichen Logik: drei Suiten, jeweils mit eigenem Bad, sind wie kleine Einzelhäuser unter dem großen Dach angeordnet. Sie bieten Rückzug, Intimität und jeweils einen direkten Blick auf die umliegenden Täler. Im Zentrum liegt ein gemeinschaftlich nutzbarer Bereich – gedacht als „Piazza“, wie Larsen es nennt. Eine große Kücheninsel aus gebürstetem Edelstahl bildet das Herzstück des Raums, kontrastiert das Holz der Einbauten und reflektiert zugleich das Lichtspiel der roten Umgebung.
Architektur: Sigurd Larsen Design & Architecture
Bauherr: Thibaud Guyonnet
Standort: Vollore Montage, Auvergne, Frankreich (FR)









