// Check if the article Layout ?>
Silhouetten der Nachbarschaft: Mehrzweckhalle in Saint-Louis
Foto: Luc Boegly
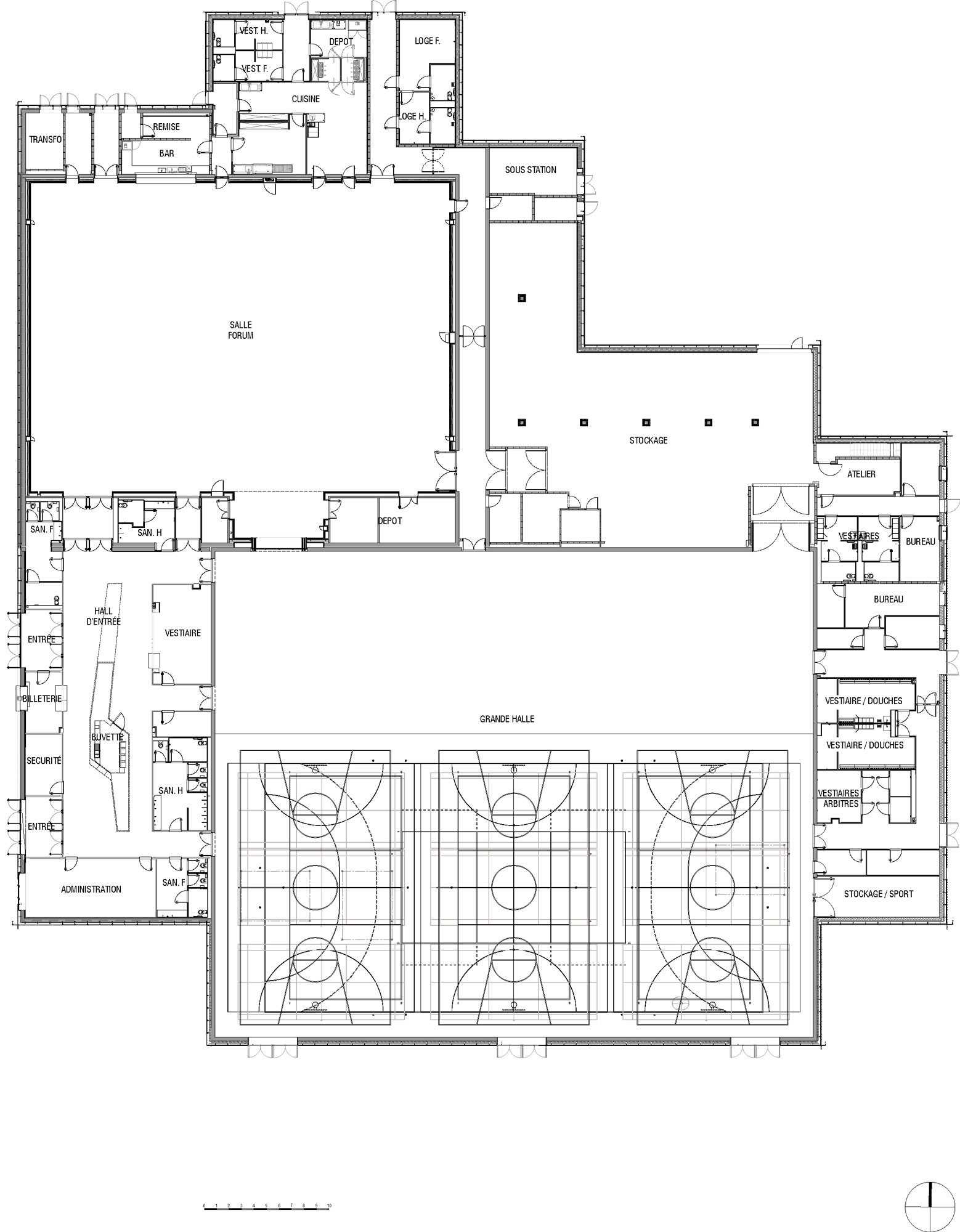
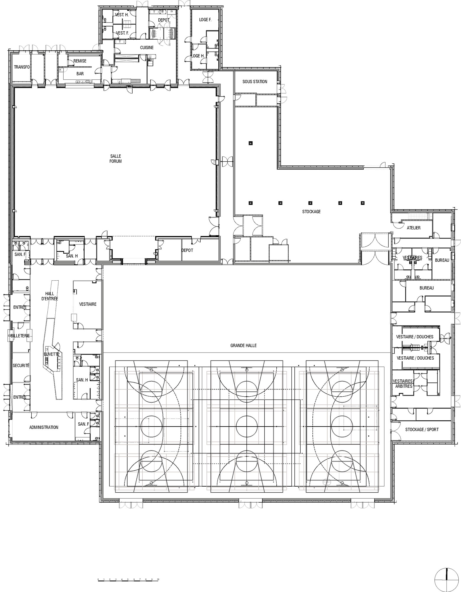
Im Dreiländereck, unweit von Basel, liegt die Stadt Saint-Louis. Sie ist seit Februar 2016 um eine Landmarke reicher. Zu meist ein- bis zweigeschossigen Wohnbauten, kleinen Werkstätten und öffentlichen Gebäuden, gesellt sich nun eine gigantische Mehrzweckhalle. Das große Grundstück ermöglichte es den Architekten, nicht in die Höhe bauen zu müssen. Für die Flexibilität bei der Raumnutzung ist das ein großer Vorteil. Um trotzdem zwischen den verschiedenen Höhen in der Umgebung zu vermitteln, haben sie die einzelnen Räume in unterschiedlich hohe Hüllen gekleidet. Ihre geneigten Dächer sind ebenfalls eine Hommage an das Umfeld. Die einzelnen Teile fügen sich zu einem großen Baukörper zusammen, wobei die höchsten Räume im Zentrum Platz finden und die niedrigeren sich außen herum anschließen. Die geneigten Dachflächen sind mal in der Nord-Süd- und mal in der Ost-West-Achse ausgerichtet. So entsteht ein Spiel zwischen der Zerstückelung des Gebäudes in Anlehnung an den urbanen Kontext und der homogenen Gebäudehülle.
Im Innenraum wird der größte Vorteil der Ebenerdigkeit ersichtlich. Über einen großen Eingangsbereich werden die beiden Hallen erschlossen. Je nach geplanter Nutzung können aber auch zwei getrennte Eingänge angeboten, oder die Hallen zusammengeschlossen werden. Der Festsaal im Norden misst 872 m² und wird für Versammlungen, Hochzeiten oder Ausstellungen vermietet. In der daran anschließenden Küche kann ein Festessen für bis zu 600 Gäste zubereitet werden. Die große Halle hingegen beherbergt drei Sportfelder und Platz für eine mobile Tribüne. Sie wird auch für den Schulsport genutzt, wobei die Schüler über einen gesonderten Eingang im Osten verfügen. Schiebewände ermöglichen es, im einen Teil der Halle eine Veranstaltung vorzubereiten, während die Schulkinder ungestört Unterricht haben. Mit 2.400 Stehplätzen ist sie bestens geeignet für Konzerte, aber auch für Messen und Ausstellungen.
Die Materialität der Gebäudehülle gab auch den Ton für die Gestaltung der Innenräume vor. Die lange Bar, die den öffentlichen Eingangsbereich durchzieht, ist mit dem gleichen Streckmetall verkleidet. Die Farbe, die von einer unter anderem kupferhaltigen Lasur herrührt, taucht an vielen Stellen wieder auf. Zur Betonung des Orangetons sind die Wände ansonsten in einem kontrastierenden Grau gehalten. So kommt die lebendige Farbe noch mehr zur Geltung und wird zum Identitätsstifter des Gebäudes. Bei der Auswahl der Möbel wurde auf einen stapelbaren Eames-Klassiker zurückgegriffen. Das liegt nur nahe, ist der Vitra-Campus doch gerade einmal 20 Kilometer vom Standort der Halle entfernt.
Im Innenraum wird der größte Vorteil der Ebenerdigkeit ersichtlich. Über einen großen Eingangsbereich werden die beiden Hallen erschlossen. Je nach geplanter Nutzung können aber auch zwei getrennte Eingänge angeboten, oder die Hallen zusammengeschlossen werden. Der Festsaal im Norden misst 872 m² und wird für Versammlungen, Hochzeiten oder Ausstellungen vermietet. In der daran anschließenden Küche kann ein Festessen für bis zu 600 Gäste zubereitet werden. Die große Halle hingegen beherbergt drei Sportfelder und Platz für eine mobile Tribüne. Sie wird auch für den Schulsport genutzt, wobei die Schüler über einen gesonderten Eingang im Osten verfügen. Schiebewände ermöglichen es, im einen Teil der Halle eine Veranstaltung vorzubereiten, während die Schulkinder ungestört Unterricht haben. Mit 2.400 Stehplätzen ist sie bestens geeignet für Konzerte, aber auch für Messen und Ausstellungen.
Die Materialität der Gebäudehülle gab auch den Ton für die Gestaltung der Innenräume vor. Die lange Bar, die den öffentlichen Eingangsbereich durchzieht, ist mit dem gleichen Streckmetall verkleidet. Die Farbe, die von einer unter anderem kupferhaltigen Lasur herrührt, taucht an vielen Stellen wieder auf. Zur Betonung des Orangetons sind die Wände ansonsten in einem kontrastierenden Grau gehalten. So kommt die lebendige Farbe noch mehr zur Geltung und wird zum Identitätsstifter des Gebäudes. Bei der Auswahl der Möbel wurde auf einen stapelbaren Eames-Klassiker zurückgegriffen. Das liegt nur nahe, ist der Vitra-Campus doch gerade einmal 20 Kilometer vom Standort der Halle entfernt.
























