Solitär im Ensemble: Schulgebäude von Bär Stadelmann Stöcker
Foto: Oliver Heinl
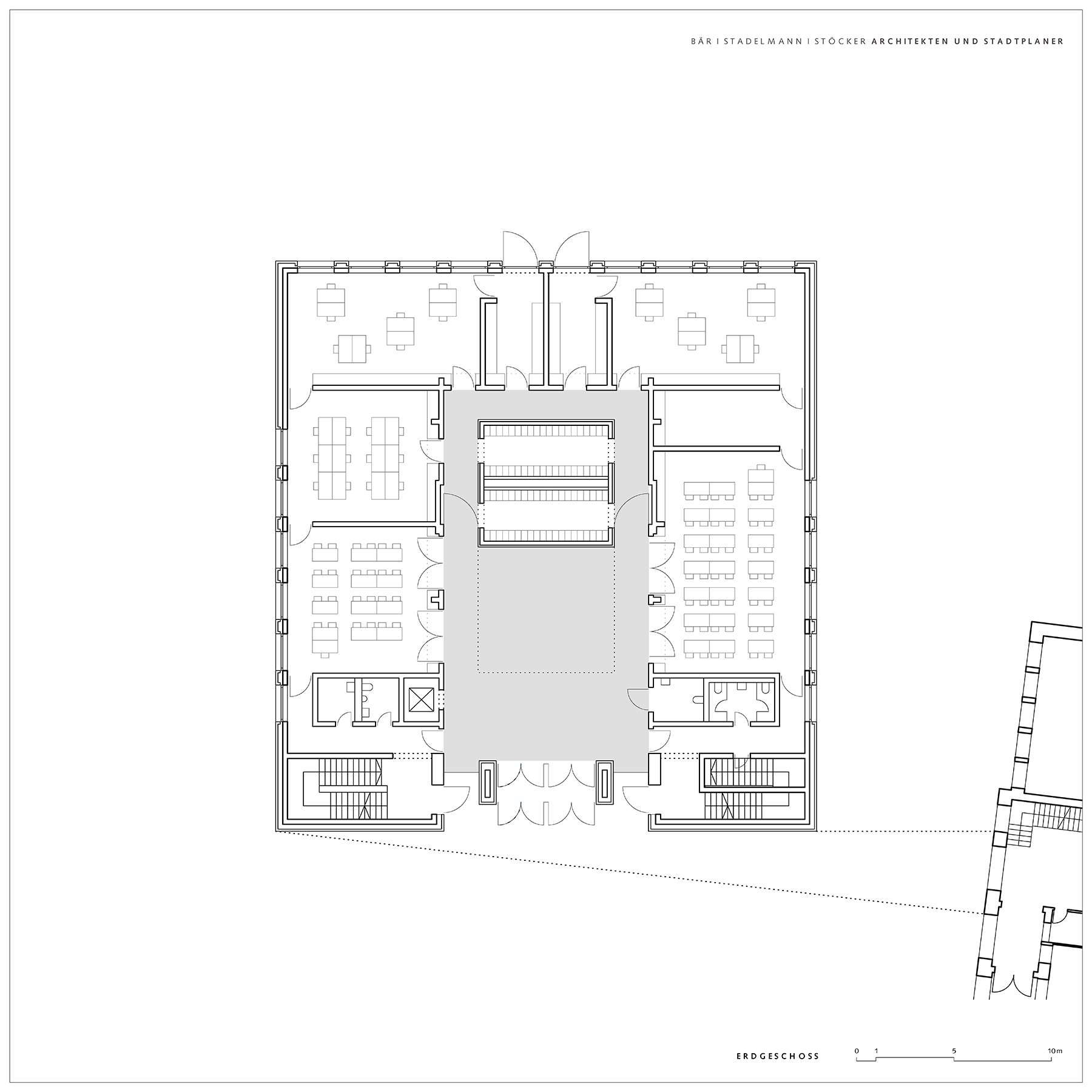
2015 lobte die Stadt Herzogenaurach ein VOF-Verfahren für den Neubau „Pavillon Carl-Platz-Schule“ aus. Das Nürnberger Büro Bär Stadelmann Stöcker Architekten erhielt mit seinem Vorschlag eines punktförmigen Baukörpers den Zuschlag. Das dreigeschossige Gebäude mit quadratischem Grundriss ist durch einen überdachten Übergang, der sich aus dem Gebäudevolumen entwickelt, mit den Bestandsgebäuden verbunden. Seine Lage ergab sich aus diesem notwendigen Anschluss. Darüber hinaus fasst der Neubau den Pausenhof im Süden ein und bildet eine deutliche Präsenz im Stadtbild aus.
Die Mauerwerksfassade aus hellbraunen Ziegeln wird durch ein umlaufendes Relief horizontal gegliedert. Fenster sind jeweils zu Fensterbändern zusammengefasst, die in ihrer Position variieren, sodass ein ruhiges und dennoch dynamisches Fassadenbild entsteht. Auch im Innenraum wurden die Wände der Erschließungsräume mit dem gleichen Ziegelmauerwerk verkleidet.
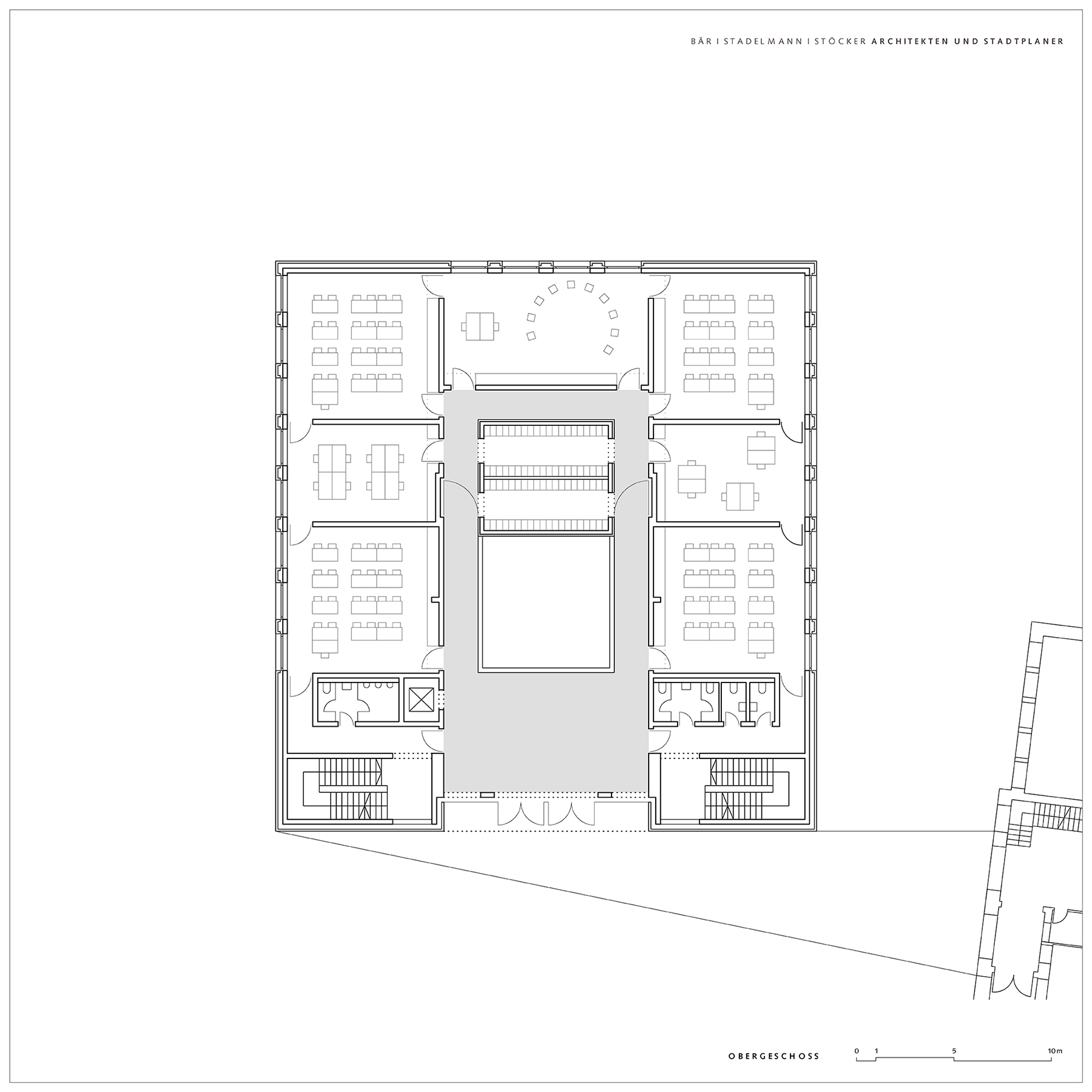
Ein alle Geschosse übergreifendes Atrium blickt nach Süden über den Pausenhof auf den nahe gelegenen Weiher. Um das Atrium herum liegen U-förmig die Nutzungsräume. Im Erdgeschoss befindet sich die Mittagsbetreuung sowie ein Mehrzweckraum, während in den Obergeschossen analog die Unterrichtsräume angeordnet sind. An der Südseite jeweils rechts und links vom Eingang führen Treppen nach oben. Da ein Großteil der Oberflächen mit hellem Holz verkleidet ist, bleibt das Farbspektrum im Foyer erdig und warm. Über Oberlichter in der Kassettendecke dringt zusätzliches Tageslicht in diesen auch als Pausenhalle genutzten Raum. Farbakzente in unterschiedlichen Blautönen kontrastieren mit den ansonsten gedeckten, natürlichen Farben der Schulerweiterung.
Weitere Informationen:
Bauzeit: 2015 – 2018
BGF: 2.425 m²
BRI: 9.269 m³
Gesamtbaukosten: 6,35 Mio. €













