Zwischen massiv und leicht
Sozialer Wohnungsbau von Atelier Régis Roudil
Für ein soziales Wohnbauprojekt mit acht Einheiten kombinierte Atelier Régis Roudil Beton und Stein mit Holz. © Florence Vesval
Gignac-la-Nerthe liegt rund 30 km nordwestlich von Marseille. Für ein soziales Wohnbauprojekt mit acht Einheiten kombinierte Atelier Régis Roudil Beton und Stein mit Holz. Der Neubau fügt sich harmonisch in ein junges Viertel mit vielen Einfamilienhäusern ein und greift dabei die Materialität der traditionellen Bebauung der 10 000-Einwohner-Gemeinde auf.


Der neue soziale Wohnungsbau liegt in Gignac-la-Nerthe bei Marseille. © Florence Vesval
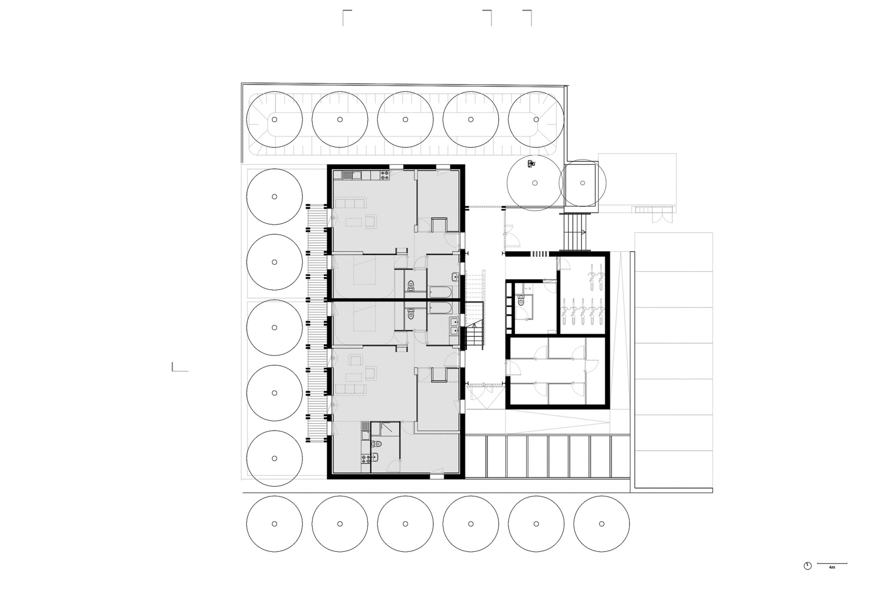
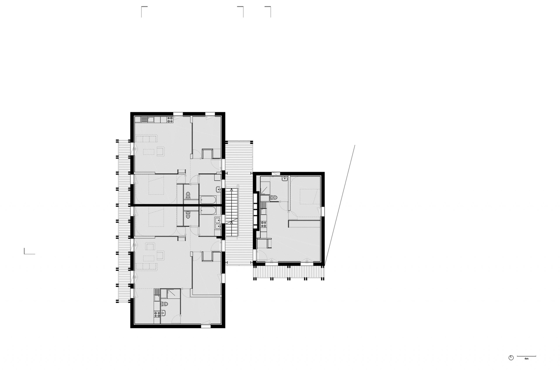
Das Projekt setzt sich aus zwei rechteckigen Volumen zusammen und lässt auf dem Grundstück genügend Platz für großzügige Freiräume. Beide Baukörper verfügen jeweils über drei Geschosse, unterscheiden sich jedoch in ihrer Grundfläche. Während der größere zwei Wohnungen pro Etage umfasst, gibt es im kleineren ein Apartment sowie Versorgungsräume und Lagerflächen im Erdgeschoss. Eine laubengangartige Treppenanlage verbindet die Wohnhäuser. Sie soll die Bewohner nicht nur zu ihren Wohnungen führen, sondern auch als kommunikativer Treffpunkt dienen.


Die Fassaden sind in lokalen Naturstein gehüllt. © Florence Vesval
Naturstein, Beton und Holz
Die Konstruktion beruht auf drei Hauptmaterialien: Stein, Beton und Holz. Fundamente und Sockelbereich sind in ockerfarbenem Beton ausgeführt. Dieser integriert die Bauten möglichst nahtlos in ihre Umgebung und schützt vor Bodenfeuchtigkeit. In den oberen Stockwerken setzt man auf lokalen Stein in derselben Farbe. Selbst die Fassaden sind rundum in das mineralische Material gehüllt. Mit großformatigen, dezent gemaserten Paneelen und tiefen Fensteröffnungen verleiht es den sozialen Wohnungsbauten einen monolithischen Charakter.


Leichte, vorgelagerte Holztragwerke ergänzen die massiv wirkenden Wohnbauten. © Florence Vesval


Als Pfosten-Riegel-Gerüst nehmen sie die externen Erschließungswege auf. © Florence Vesval
Vorgelagerte Holztragwerke
Die massiven Häuser werden rundum durch leichte, vorgelagerte Holztragwerke ergänzt. Als Pfosten-Riegel-Gerüst nehmen sie die externen Erschließungswege auf und erweitern die erschwinglichen Wohneinheiten um private Außenräume. Das helle Holz soll mit der Zeit eine graue Patina erhalten und einen sanften Kontrast zu den Steinoberflächen bilden.
Architektur: atelier Régis Roudil architectes
Bauherr: 3F SUD
Standort: 13180 Gignac-la-Nerthe (FR)
Tragwerksplanung: I2c















