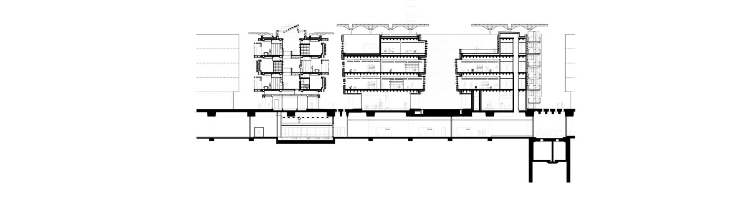
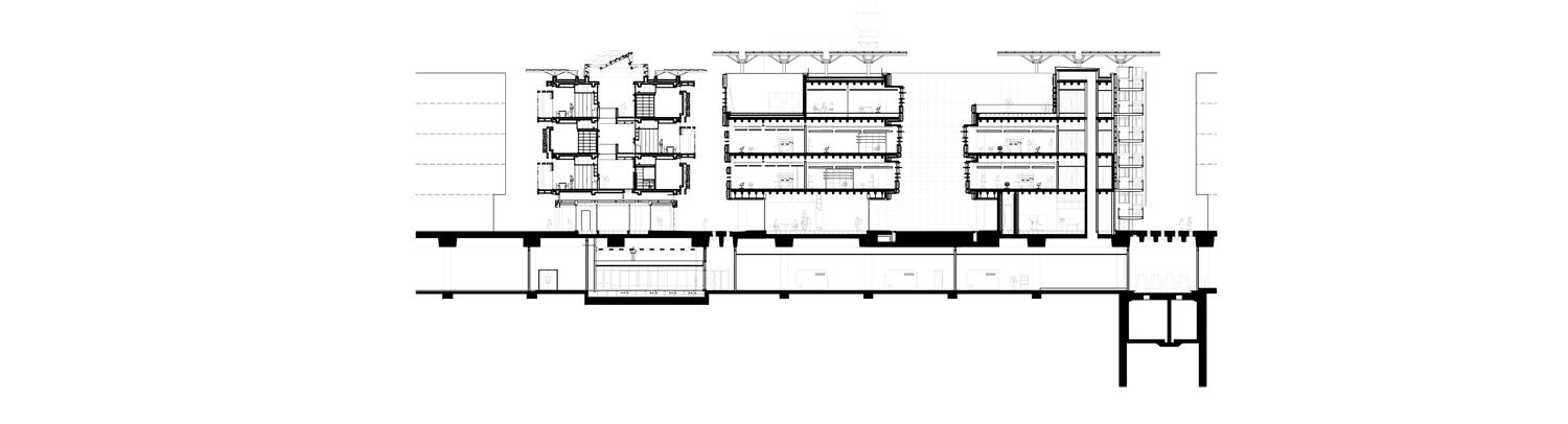
Spectacular reinterpretation: Battersea Arts Centre in London
In the subsequent reconstruction it is the Grand Hall in particular that stands out with its spectacular reinterpretation of the neo-baroque original. The destroyed vaulted ceiling was originally clad in plasterboard embellished in a pattern that was somewhat reserved in colouration and depth, with soft beige tones forming the decoration. The modern equivalent of the ceiling with its far more dramatic design instantly catches the eye, featuring a lattice in plywood panels that imitates the curvature and patterning of the predecessor. Spacers mounted between the panels intensify the shading. The result stands out clearly against the load-bearing brick walls, which the fire had left in a structurally compromised state. However, re-stabilisation made it possible to save them, and their surfaces have not been restored but rather kept as they were left by the fire, creating an irregular and erratic appearance that moreover heightens the effect of the new ceiling. In addition a complex technical system that enables natural ventilation and improved acoustics is concealed behind the suspended lattice structure, suiting the hall for a wide range of events.
Especially with the new atmosphere in the Grand Hall in mind, Haworth Tompkins collaborated with product designer Robert McIntyre to produce pendant luminaires that cast a warm glow. The architects also moved the organ to the gallery for more flexible use of the area below. Along with concerts and theatre productions, weddings and festivals are envisaged in future.
The bar in the Grand Hall was designed in collaboration with the artist Jake Tilson, who also oriented his work closely to the original. A new area called Scratch Hub has been created below the Grand Hall, providing a home for artists, clubs and companies. Various other changes have been introduced in the organisation of the building, making it possible to put the space at the Battersea Arts Centre to more efficient and versatile use.


