// Check if the article Layout ?>
Spiel mit der Topografie: Kulturzentrum in Saint-Germain-lès-Arpajon
Foto: Vincent Baur
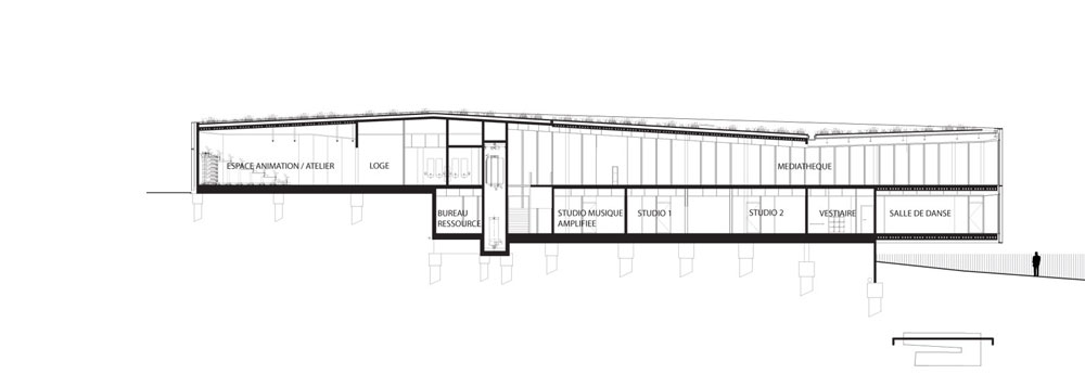
Durch den Haupteingang an der »Route de Leuville« gelangt der Besucher zunächst in eine zentrale Lobby. Von hier aus begibt er sich Schritt für Schritt durch die verschiedenen Räumlichkeiten des Gebäudes. Der U-förmige Grundriss generiert dabei nicht nur immer neue Ausblicke, sondern ermöglicht auch eine individuelle Orientierung der einzelnen Räume.
In einem tiefer liegenden Geschoss befinden sich Tanz- und Musikschule, die zusätzlich über einen Eingang an der großen Freitreppe erreicht werden können. Während sich Büros für die Administration und Schulungsräume an den Seitenflügeln ansiedeln, überkragen die großen Tanzräume den Hang und geben den Blick auf Ortschaft und Umgebung frei. Eine Etage darüber, im Eingangsgeschoss, befindet sich die offene, mit bunten Möbeln bestückte Mediabibliothek. Auch hier liegen die kleineren Büroräume im nördlichen Gebäudeflügel, während der Hauptraum vor allem den lesenden Besuchern eine bestechende Aussicht schenkt. Ein introvertierter Patio am Ende der »Schlaufe« bildet den Abschluss der Reise und ein räumliches Pendant zum Eingangsbereich.
Nahezu stützenfreie Räume lassen viel Spielraum bei der Möblierung und schaffen die notwendige Flexibilität des Gebäudes. Anstelle einer Terrasse fokussiert sich der Entwurf auf die räumlichen Bezüge von innen nach außen. Ein introvertierter Patio markiert das Ende des Weges und bildet den Endpunkt des Gebäudekörpers.
Die filigrane Vorhangfassade besteht aus geschlossenen, vertikal profilierten Aluminiumpaneelen, die je nach räumlicher Situation – auch über längere Distanzen – durch verglaste Elemente ersetzt werden. Bedruckungen in Form vertikaler Linien greifen dabei das Erscheinungsbild der Aluminiumpaneele auf: eine Modifikation, die der stringenten Gesamtkomposition eine spielerische Note verleiht. Während sich West- und Ostfassade mit großzügigen Räumlichkeiten zur Umgebung hin öffnen, verteilen sich kleinere Funktionseinheiten auf die Seitenflügel. Im Wechselspiel von innen und außen bietet die transparente Fassade großzügige Ein- und Ausblicke. Filigrane Fassadenelemente schaffen abwechselnd opake und offene Bereiche und stehen bewusst im Kontrast zu Sichtbeton und weißen Wänden im Innenraum.Der flache, zweigeschossige Baukörper fügt sich in Farbe und Volumen sensibel in sein unmittelbares Umfeld ein. Zwischen Friedhof und niedriger Nachbarbebauung ermöglicht die Lage des Gebäudes einen weiten Blick über die Ortschaft. Die überkragenden Räumlichkeiten wie die Mediathek und der Tanzsaal scheinen dem Besucher dabei die Umgebung noch ein Stückchen näher zu bringen. In Form einer baulich gelungenen formalen Lösung verbindet nun ein neuer Weg die zwei Straßen »Leuville road« und »the rive l’Orge« und interpretiert dabei – ganz »en passant« – die Topografie des Geländes.
Die filigrane Vorhangfassade besteht aus geschlossenen, vertikal profilierten Aluminiumpaneelen, die je nach räumlicher Situation – auch über längere Distanzen – durch verglaste Elemente ersetzt werden. Bedruckungen in Form vertikaler Linien greifen dabei das Erscheinungsbild der Aluminiumpaneele auf: eine Modifikation, die der stringenten Gesamtkomposition eine spielerische Note verleiht. Während sich West- und Ostfassade mit großzügigen Räumlichkeiten zur Umgebung hin öffnen, verteilen sich kleinere Funktionseinheiten auf die Seitenflügel. Im Wechselspiel von innen und außen bietet die transparente Fassade großzügige Ein- und Ausblicke. Filigrane Fassadenelemente schaffen abwechselnd opake und offene Bereiche und stehen bewusst im Kontrast zu Sichtbeton und weißen Wänden im Innenraum.Der flache, zweigeschossige Baukörper fügt sich in Farbe und Volumen sensibel in sein unmittelbares Umfeld ein. Zwischen Friedhof und niedriger Nachbarbebauung ermöglicht die Lage des Gebäudes einen weiten Blick über die Ortschaft. Die überkragenden Räumlichkeiten wie die Mediathek und der Tanzsaal scheinen dem Besucher dabei die Umgebung noch ein Stückchen näher zu bringen. In Form einer baulich gelungenen formalen Lösung verbindet nun ein neuer Weg die zwei Straßen »Leuville road« und »the rive l’Orge« und interpretiert dabei – ganz »en passant« – die Topografie des Geländes.
Einen geschützten Spaziergang durch die Landschaft generiert das neue Kulturzentrum im Pariser Stadtteil Saint-Germain, das sich in erster Linie an den topografischen Gegebenheiten des Grundstücks orientiert. Eingerahmt von Schule und Friedhof begibt sich der Besucher auf eine Reise durch das U-förmigen Gebäude und entdeckt die verschiedenen Räumlichkeiten dabei gewissermaßen »en passant«.
Architekten: Atelier O-S architectes, 24, rue Ramponeau 75020 Paris
Standort: Route de Leuville, Saint-Germain-lès-Arpajon, Paris
Architekten: Atelier O-S architectes, 24, rue Ramponeau 75020 Paris
Standort: Route de Leuville, Saint-Germain-lès-Arpajon, Paris
Durch den Haupteingang an der »Route de Leuville« gelangt der Besucher zunächst in eine zentrale Lobby. Von hier aus begibt er sich Schritt für Schritt durch die verschiedenen Räumlichkeiten des Gebäudes. Der U-förmige Grundriss generiert dabei nicht nur immer neue Ausblicke, sondern ermöglicht auch eine individuelle Orientierung der einzelnen Räume.
In einem tiefer liegenden Geschoss befinden sich Tanz- und Musikschule, die zusätzlich über einen Eingang an der großen Freitreppe erreicht werden können. Während sich Büros für die Administration und Schulungsräume an den Seitenflügeln ansiedeln, überkragen die großen Tanzräume den Hang und geben den Blick auf Ortschaft und Umgebung frei. Eine Etage darüber, im Eingangsgeschoss, befindet sich die offene, mit bunten Möbeln bestückte Mediabibliothek. Auch hier liegen die kleineren Büroräume im nördlichen Gebäudeflügel, während der Hauptraum vor allem den lesenden Besuchern eine bestechende Aussicht schenkt. Ein introvertierter Patio am Ende der »Schlaufe« bildet den Abschluss der Reise und ein räumliches Pendant zum Eingangsbereich.
Nahezu stützenfreie Räume lassen viel Spielraum bei der Möblierung und schaffen die notwendige Flexibilität des Gebäudes. Anstelle einer Terrasse fokussiert sich der Entwurf auf die räumlichen Bezüge von innen nach außen. Ein introvertierter Patio markiert das Ende des Weges und bildet den Endpunkt des Gebäudekörpers.
Die filigrane Vorhangfassade besteht aus geschlossenen, vertikal profilierten Aluminiumpaneelen, die je nach räumlicher Situation – auch über längere Distanzen – durch verglaste Elemente ersetzt werden. Bedruckungen in Form vertikaler Linien greifen dabei das Erscheinungsbild der Aluminiumpaneele auf: eine Modifikation, die der stringenten Gesamtkomposition eine spielerische Note verleiht.
Die filigrane Vorhangfassade besteht aus geschlossenen, vertikal profilierten Aluminiumpaneelen, die je nach räumlicher Situation – auch über längere Distanzen – durch verglaste Elemente ersetzt werden. Bedruckungen in Form vertikaler Linien greifen dabei das Erscheinungsbild der Aluminiumpaneele auf: eine Modifikation, die der stringenten Gesamtkomposition eine spielerische Note verleiht.
Während sich West- und Ostfassade mit großzügigen Räumlichkeiten zur Umgebung hin öffnen, verteilen sich kleinere Funktionseinheiten auf die Seitenflügel. Im Wechselspiel von innen und außen bietet die transparente Fassade großzügige Ein- und Ausblicke. Filigrane Fassadenelemente schaffen abwechselnd opake und offene Bereiche und stehen bewusst im Kontrast zu Sichtbeton und weißen Wänden im Innenraum.
Der flache, zweigeschossige Baukörper fügt sich in Farbe und Volumen sensibel in sein unmittelbares Umfeld ein. Zwischen Friedhof und niedriger Nachbarbebauung ermöglicht die Lage des Gebäudes einen weiten Blick über die Ortschaft. Die überkragenden Räumlichkeiten wie die Mediathek und der Tanzsaal scheinen dem Besucher dabei die Umgebung noch ein Stückchen näher zu bringen. In Form einer baulich gelungenen formalen Lösung verbindet nun ein neuer Weg die zwei Straßen »Leuville road« und »the rive l’Orge« und interpretiert dabei – ganz »en passant« – die Topografie des Geländes.
weitere Informationen:
Bauherr: Stadt Saint-Germain-lès Arpajon
Projektteam: Vincent Baur, Guillaume Colboc, Gaël le Nouëne, Pierre Teisseire, Jeremie Galvan
Bauleitung: Vincent Menuel
Wettbewerb: Januar 2011
Fertigstellung: Februar 2015
Budget: 5 934 000 €
Fassadenfläche: 2173 m²
weitere Informationen:
Bauherr: Stadt Saint-Germain-lès Arpajon
Projektteam: Vincent Baur, Guillaume Colboc, Gaël le Nouëne, Pierre Teisseire, Jeremie Galvan
Bauleitung: Vincent Menuel
Wettbewerb: Januar 2011
Fertigstellung: Februar 2015
Budget: 5 934 000 €
Fassadenfläche: 2173 m²



















