// Check if the article Layout ?>
Spiel mit Farbe: Büroerweiterung mit markantem Sonnenschutz
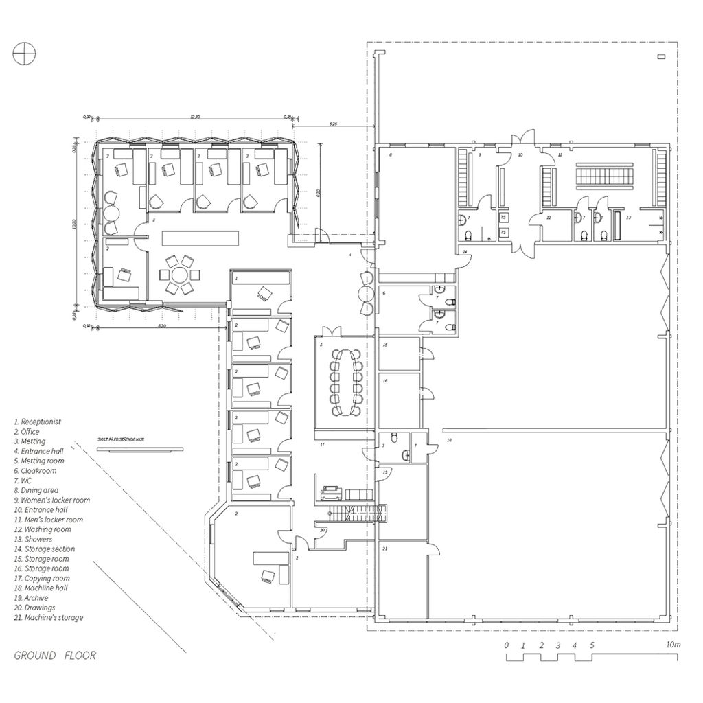
Die Büroerweiterung befindet sich in einem Industriegebiet am Rande der schwedischen Stadt Lund. Vorgabe des Bauherrn Byggom AB war, sich von anderen Industriebauten in Lund zu unterscheiden. Deshalb entschied sich Johan Sundberg Arkitektur AB in Zusammenarbeit mit Blasberg Andréasson Arkitekter AB für eine markante Fassadenbekleidung, die gleichzeitig auch als Blend- und Sonnenschutz fungiert. Für die Außenfassade sowie für die Fensterrahmen wählten die Architekten ein leuchtendes Blau. Während die ”zweite Haut” aus gefalteten, perforierten Metallelementen besteht.
Die Perforierungen der vorgesetzten Metallelemente erzeugen eine lebendige Fassade mit abwechslungsreichen Effekten durch Licht und Schatten - ein Spiel mit Farbe und Metall. Somit ergeben sich je nach Tageszeit und unterschiedlich starker Sonneneinstrahlung verschiedene Blautöne an der Fassade. Im Gegensatz zur Gebäudehülle legten Johan Sundberg Arkitektur AB und Blasberg Andréasson Arkitekter AB im Inneren des Gebäudes ihren Fokus auf eine schlichte reduzierte Formensprache: klare Raumaufteilungen, schlichtes Mobiliar, reduzierte Farben prägen das Erscheinungsbild.
Quelle: Johan Sundberg Arkitektur AB















