// Check if the article Layout ?>
Spiel mit Kontrasten: Europäisches Forschungshauptquartier von General Electric
Foto: Hiepler Brunier, Berlin
Es war 1879 als der Firmengründer von General Electric Thomas Alva Edison die Glühbirne erfand. Nach über 130 Jahren Forschungsgeschichte und stetigem Streben nach Innovation galt es daher nun ein Gebäude zu erbauen, das der Historie und dem Image der Firma in vielerlei Hinsicht gerecht wird. Neben fünf weiteren Innovationszentren auf der ganzen Welt bietet der Standort in Garching bei München auf 22.000 m² Platz für rund 200 Mitarbeiter und bildet damit die Forschungsbasis des Unternehmens.
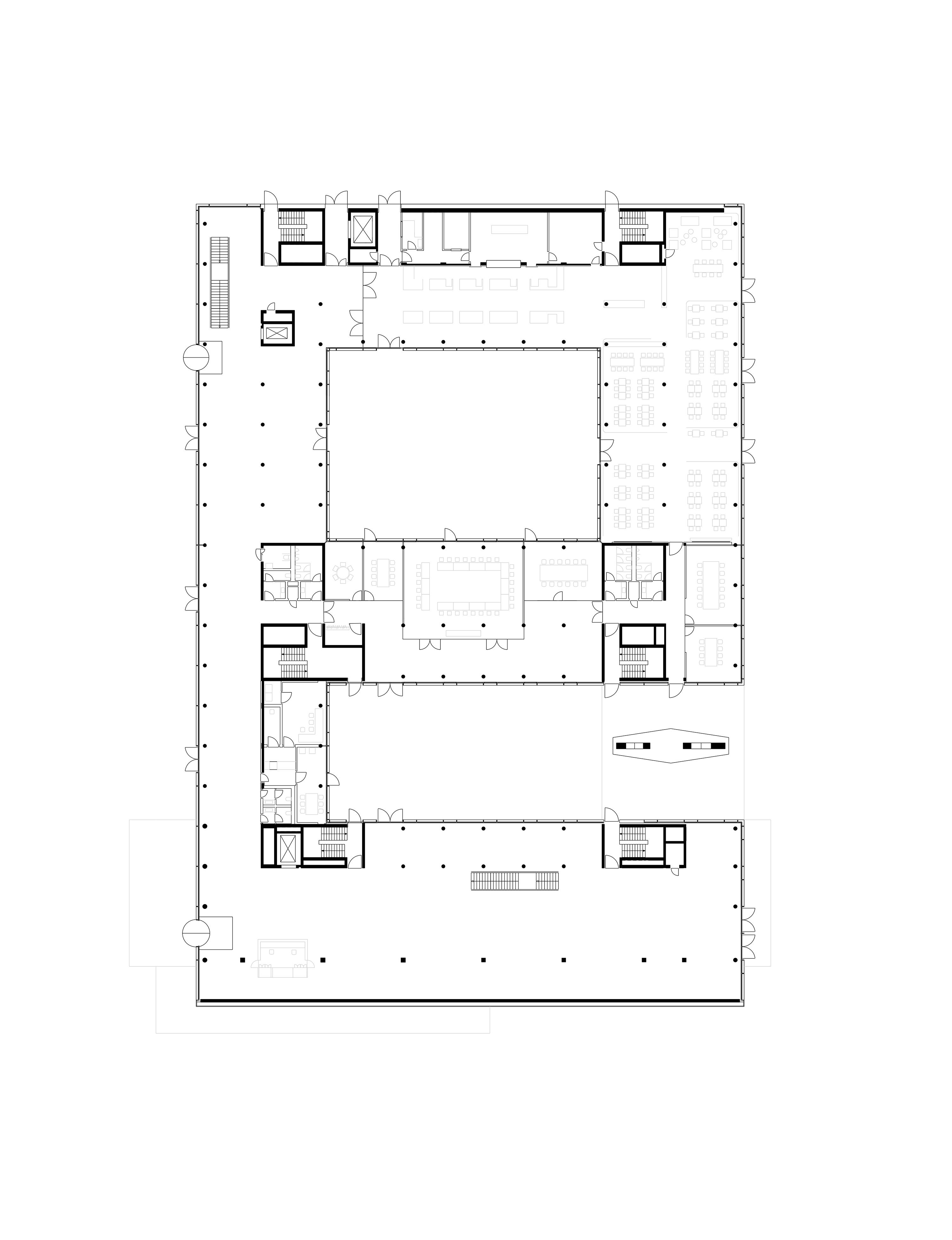
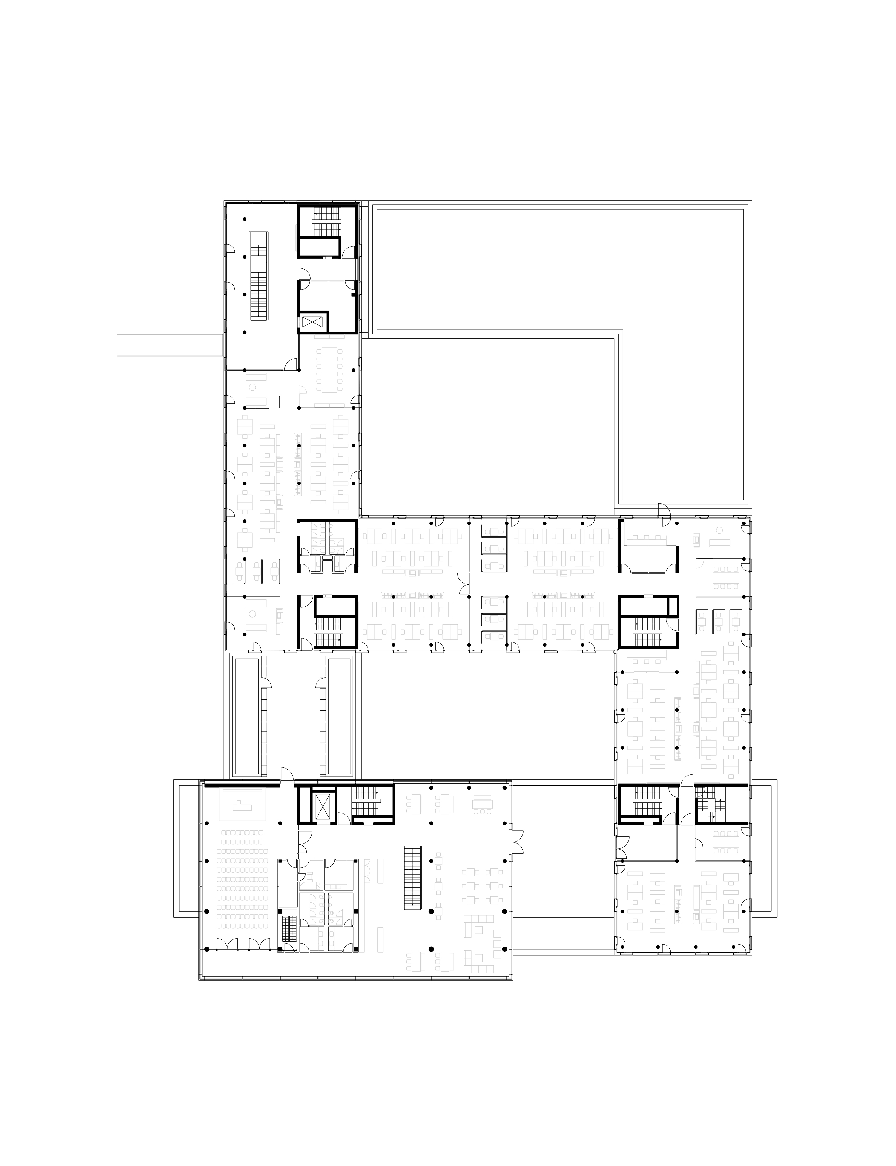
Die Grundform des in Stahlbeton-Verbundbauweise ausgeführten Forschungssitzes bildet eine eckige Acht, die zwei introvertierte und geschützte Innenhöfe einschließt. So sollte innerhalb des Gebäudes ein persönlicher Freiraum für Mitarbeiter und Besucher geschaffen werden, der nach außen nicht ablesbar ist. Mehrere Quader und Kuben stapeln sich auf der achtförmigen Grundform und rhythmisieren den Körper dabei durch Vor- und Rücksprünge. Durch einen dieser Vorsprünge erhält der Eingang ein Vordach und wird bewusst hervorgehoben. Diese Thematik der Orientierung und Geschütztheit bei gleichzeitiger Offenheit lässt sich auch in den Räumlichkeiten ablesen. Von außen massiv erscheinend, gibt der Komplex im Innenraum seine offene Skelettstruktur preis. Umlaufende Alugeschossbänder fassen die Gesamtkubatur zu einem einheitlichen Körper zusammen und schaffen eine Art Rahmen, der den Baukörper optisch zusammenhält.
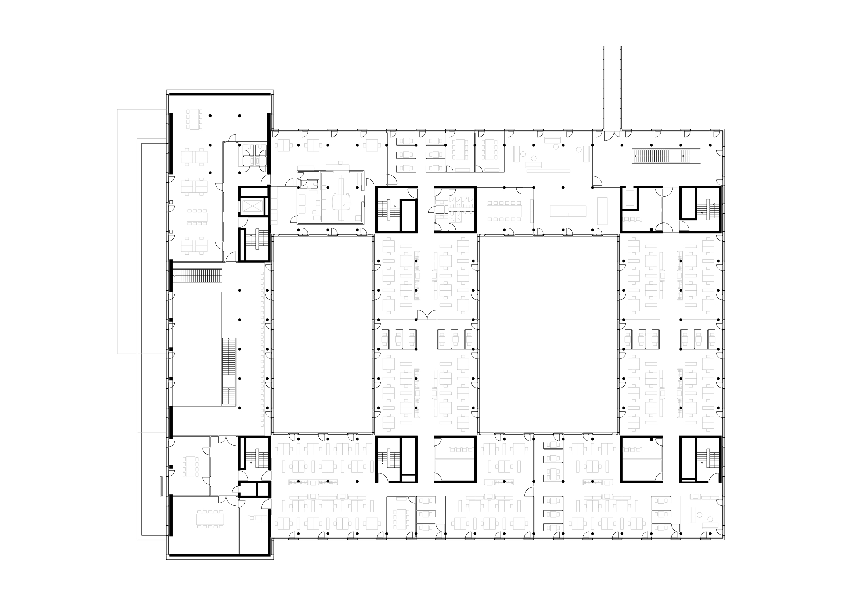
Betritt man das Gebäude erscheint eine farblich zurückhaltende und durch ein Atrium mehrgeschossig anmutende Eingangshalle. Hier sollen Besucher und Angestellte laut Architekten noch einmal »zu sich finden« bevor sie in das Reich der Forschung eintreten. Eine Freitreppe zieht sich bis in das zweite Geschoss und mündet in einem Glaskubus, der neben einem Saal für Pressekonferenzen und Veranstaltungen auch eine Lounge und einen Kaffeetresen bereitstellt. Alle Büroetagen und Forschungsplätze sind als »Open Space« angelegt. Kleinere abgetrennte »Huddle-Rooms« ermöglichen aber auch Rückzug und Intimsphäre für vertrauliche oder konzentrierte Gespräche in kleiner Runde. Helle Büroräume mit großen Fensteröffnungen schaffen hingegen einen starken Bezug nach außen und lassen viel Licht hinein. Erschlossen werden alle Geschosse über Erschließungskerne, die sich in allen Ecken der Achter-Grundrissordnung ansiedeln. Eine Brücke im ersten Obergeschoss verbindet zudem den neuen Baukörper mit dem bereits bestehenden Gebäude und führt in eine Cafeteria, die den Kommunikationspunkt des Gebäudes bildet. So werden beide Teile nicht nur konzeptuell, sondern auch funktional miteinander verbunden und funktionieren als gemeinsame Einheit.
Die Architekten beschreiben das Gebäude in erster Linie als Pendant zum Ursprung und zu Inhalten der Firma. Materiell bildet dabei der Sichtbeton das Gegengewicht zu Holz und Stahl und soll an das industrielle Gründerzeiterbe der Firma erinnern. Von außen massiv erscheinend, wirkt der Bau innen leicht und offen. Warmes Holz steht im Kontrast zur metallischen Fassade im Außenraum. So entsteht ein Wechselspiel von Kontrasten, Materialien und Bildern, die die Experimentierfreudigkeit ihrer Benutzer, in ihrer baulichen Ausführung aber vor allem auch die Bodenständigkeit der Institution ausdrücken.
Die Grundform des in Stahlbeton-Verbundbauweise ausgeführten Forschungssitzes bildet eine eckige Acht, die zwei introvertierte und geschützte Innenhöfe einschließt. So sollte innerhalb des Gebäudes ein persönlicher Freiraum für Mitarbeiter und Besucher geschaffen werden, der nach außen nicht ablesbar ist. Mehrere Quader und Kuben stapeln sich auf der achtförmigen Grundform und rhythmisieren den Körper dabei durch Vor- und Rücksprünge. Durch einen dieser Vorsprünge erhält der Eingang ein Vordach und wird bewusst hervorgehoben. Diese Thematik der Orientierung und Geschütztheit bei gleichzeitiger Offenheit lässt sich auch in den Räumlichkeiten ablesen. Von außen massiv erscheinend, gibt der Komplex im Innenraum seine offene Skelettstruktur preis. Umlaufende Alugeschossbänder fassen die Gesamtkubatur zu einem einheitlichen Körper zusammen und schaffen eine Art Rahmen, der den Baukörper optisch zusammenhält.
Betritt man das Gebäude erscheint eine farblich zurückhaltende und durch ein Atrium mehrgeschossig anmutende Eingangshalle. Hier sollen Besucher und Angestellte laut Architekten noch einmal »zu sich finden« bevor sie in das Reich der Forschung eintreten. Eine Freitreppe zieht sich bis in das zweite Geschoss und mündet in einem Glaskubus, der neben einem Saal für Pressekonferenzen und Veranstaltungen auch eine Lounge und einen Kaffeetresen bereitstellt. Alle Büroetagen und Forschungsplätze sind als »Open Space« angelegt. Kleinere abgetrennte »Huddle-Rooms« ermöglichen aber auch Rückzug und Intimsphäre für vertrauliche oder konzentrierte Gespräche in kleiner Runde. Helle Büroräume mit großen Fensteröffnungen schaffen hingegen einen starken Bezug nach außen und lassen viel Licht hinein. Erschlossen werden alle Geschosse über Erschließungskerne, die sich in allen Ecken der Achter-Grundrissordnung ansiedeln. Eine Brücke im ersten Obergeschoss verbindet zudem den neuen Baukörper mit dem bereits bestehenden Gebäude und führt in eine Cafeteria, die den Kommunikationspunkt des Gebäudes bildet. So werden beide Teile nicht nur konzeptuell, sondern auch funktional miteinander verbunden und funktionieren als gemeinsame Einheit.
Die Architekten beschreiben das Gebäude in erster Linie als Pendant zum Ursprung und zu Inhalten der Firma. Materiell bildet dabei der Sichtbeton das Gegengewicht zu Holz und Stahl und soll an das industrielle Gründerzeiterbe der Firma erinnern. Von außen massiv erscheinend, wirkt der Bau innen leicht und offen. Warmes Holz steht im Kontrast zur metallischen Fassade im Außenraum. So entsteht ein Wechselspiel von Kontrasten, Materialien und Bildern, die die Experimentierfreudigkeit ihrer Benutzer, in ihrer baulichen Ausführung aber vor allem auch die Bodenständigkeit der Institution ausdrücken.
weitere Informationen:
Volumen: 22.000 m² BGF
Fotos: hiepler, brunier, Berlin
Volumen: 22.000 m² BGF
Fotos: hiepler, brunier, Berlin



















