// Check if the article Layout ?>
Spiel mit Kontrasten: Sanierung und Erweiterung einer Schule bei Verona
Foto: Nicolo Galeazzi
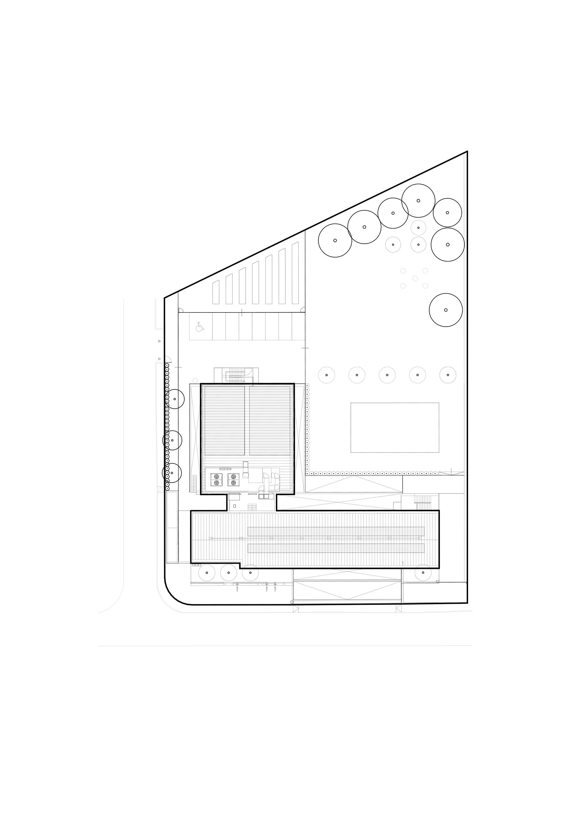
Die prägnante Lage der Grundschule »Giacomo Zanella« parallel zur großen Hauptstraße schafft eine verkehrsgünstige Anbindung, bedarf architektonisch aber einiger gestalterischer, sowie technischer Maßnahmen. Architektin Giulia de Appolonia beschreibt die Schule als »bewohnte Mauer«, die die Kinder von der angrenzenden, viel befahrenden Straße zu schützen versucht. Ein 3,5 m hohes Sockelgeschoss ohne Fenster verstärkt diese Absicht, während die darüber liegende, wesentlich leichter erscheinende Polycarbonat-Fassade das massive Gefüge aufbricht. Sie wirkt wie in den Betonbau eingeschoben, bringt den Gesamtkomplex bei Dunkelheit zum Leuchten und ergänzt ihn durch die nötige Leichtigkeit. Bei Tageslicht vermischt sich die Farbgebung des Kunststoffes mit dem Grau des Betons. Durch das transluzente Material erstrahlen einige der Klassenräume in gleichmäßig hellem, diffusen Licht und es kann die meiste Zeit auf künstliche Beleuchtung verzichtet werden.
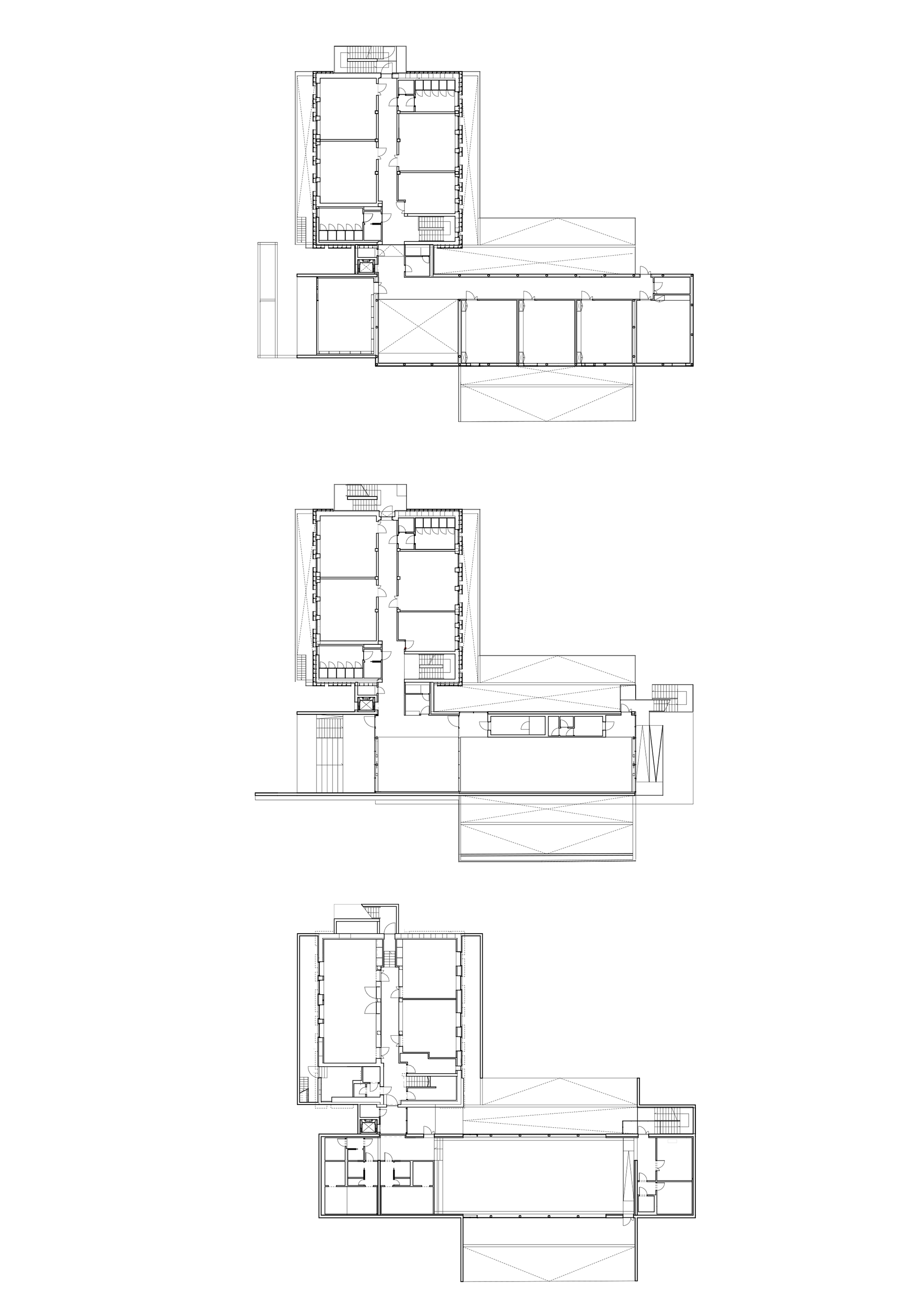
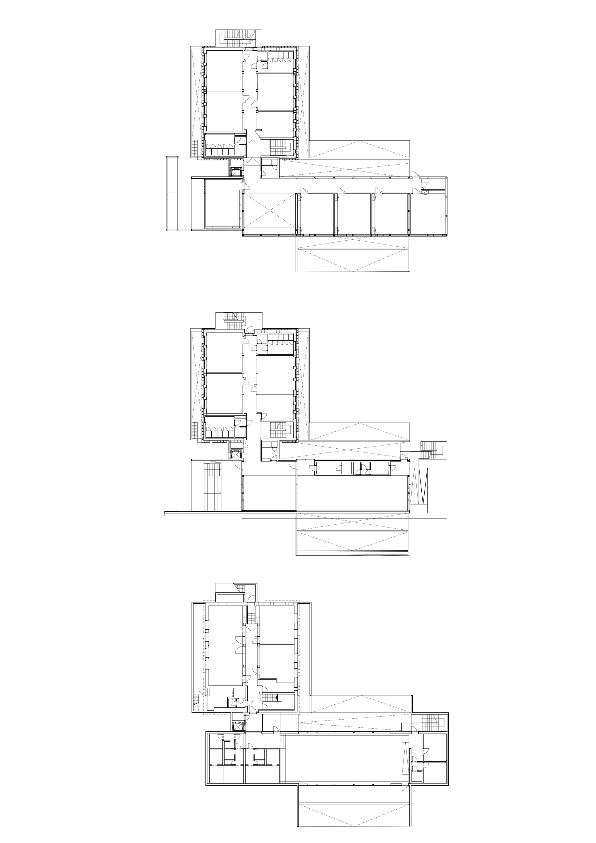
Das Gebäude bildet räumlich das natürliche Ende des Kirchplatzes und das Pendant zur gegenüber liegenden Kirche. Beide Gebäude kreieren so eine neue städtische Situation und treten in Interaktion miteinander. Die Eingangshalle der Schule bildet mit ihrer zweifachen Raumhöhe eine großzügige Schwelle und schafft eine Verbindung zwischen Außen- und Innenraum. Eine Überdachung vor dem Eingang fungiert dabei als Vermittlungselement zwischen den unterschiedlichen Maßstäben der Umgebung. Während der zweigeschossige Eingang die Großzügigkeit des Gebäudes betont, nimmt das vorgestellte Dach Bezug zur angrenzenden, vorstädtischen Bebauung und den kleinen Besuchern der Schule. Eingefärbte Holzfaserplatten dominieren den Innenraum. Mit ihrer auffallenden Farbigkeit stehen sie im bewussten Kontrast zum Grau des Stahlbetons und lassen sich dank ihrer Eigenschaften einfach verarbeiten und für Wandverkleidungen, sowie für Türen und verschiedenstes Mobiliar im Innenraum verwenden. Außerdem bieten die Farbakzente Orientierung für die Schüler und geben jedem Bereich seine eigene Identität.
Die baulichen Interventionen und Veränderungen im und am Bestandsgebäude lassen sich in erster Linie als energetische sowie gestalterische Aufwertung des Gebäudes und des Ortes verstehen. Im Fokus stand dabei unter anderem die Reorganisation des Erdgeschosses und dessen Umgestaltung in ein offenes, flexibles Raumprogramm mit kleinem Auditorium. Die Sanierung der Fassade umfasst neue Fensterelemente, die zusätzliche Verwendung von Polycarbonat für die Erreichung noch besserer U-Werte und zusätzliche Dämmschichten in den opaken Wandbereichen. Die in Teilen des Gebäudes entstehende Doppelfassade aus Polycarbonat im Außen- und einer Lochfassade im Innenraum ermöglicht zudem einen optimierten Schallschutz. Lüftungsgitter an der Unter- und motorisierte Lüftungsflügel an der Oberseite der Fassade sorgen für eine ausreichende, gute Belüftung. Im Kontrast von Hauptstraße und Ausbildungsort, grauem Beton und mutiger Farbe ergeben sich konzeptuelle Wechselspiele auf verschiedensten Ebenen. Dabei gelingt Giulia de Appolonia und ihrem Team ein schlichter, industriell anmutender Bau, der an den richtigen Stellen durch bewusst gesetzte Elemente überrascht. Es ergibt sich ein ambivalenter Körper, unauffällig und auffällig zugleich, so wie der Ort selbst.
Das Gebäude bildet räumlich das natürliche Ende des Kirchplatzes und das Pendant zur gegenüber liegenden Kirche. Beide Gebäude kreieren so eine neue städtische Situation und treten in Interaktion miteinander. Die Eingangshalle der Schule bildet mit ihrer zweifachen Raumhöhe eine großzügige Schwelle und schafft eine Verbindung zwischen Außen- und Innenraum. Eine Überdachung vor dem Eingang fungiert dabei als Vermittlungselement zwischen den unterschiedlichen Maßstäben der Umgebung. Während der zweigeschossige Eingang die Großzügigkeit des Gebäudes betont, nimmt das vorgestellte Dach Bezug zur angrenzenden, vorstädtischen Bebauung und den kleinen Besuchern der Schule. Eingefärbte Holzfaserplatten dominieren den Innenraum. Mit ihrer auffallenden Farbigkeit stehen sie im bewussten Kontrast zum Grau des Stahlbetons und lassen sich dank ihrer Eigenschaften einfach verarbeiten und für Wandverkleidungen, sowie für Türen und verschiedenstes Mobiliar im Innenraum verwenden. Außerdem bieten die Farbakzente Orientierung für die Schüler und geben jedem Bereich seine eigene Identität.
Die baulichen Interventionen und Veränderungen im und am Bestandsgebäude lassen sich in erster Linie als energetische sowie gestalterische Aufwertung des Gebäudes und des Ortes verstehen. Im Fokus stand dabei unter anderem die Reorganisation des Erdgeschosses und dessen Umgestaltung in ein offenes, flexibles Raumprogramm mit kleinem Auditorium. Die Sanierung der Fassade umfasst neue Fensterelemente, die zusätzliche Verwendung von Polycarbonat für die Erreichung noch besserer U-Werte und zusätzliche Dämmschichten in den opaken Wandbereichen. Die in Teilen des Gebäudes entstehende Doppelfassade aus Polycarbonat im Außen- und einer Lochfassade im Innenraum ermöglicht zudem einen optimierten Schallschutz. Lüftungsgitter an der Unter- und motorisierte Lüftungsflügel an der Oberseite der Fassade sorgen für eine ausreichende, gute Belüftung. Im Kontrast von Hauptstraße und Ausbildungsort, grauem Beton und mutiger Farbe ergeben sich konzeptuelle Wechselspiele auf verschiedensten Ebenen. Dabei gelingt Giulia de Appolonia und ihrem Team ein schlichter, industriell anmutender Bau, der an den richtigen Stellen durch bewusst gesetzte Elemente überrascht. Es ergibt sich ein ambivalenter Körper, unauffällig und auffällig zugleich, so wie der Ort selbst.
weitere Informationen:
Größe: 2.100 m² (1200m² Renovierung, 900m² Erweiterung)
Kosten: 2.200.000€
Fotos: Nicolo Galeazzi
Größe: 2.100 m² (1200m² Renovierung, 900m² Erweiterung)
Kosten: 2.200.000€
Fotos: Nicolo Galeazzi




























