Spiel mit Quadern: Einfamilienhaus von Gautschi Lenzin Schenker Architekten
Foto: Andreas Graber Photography Zürich
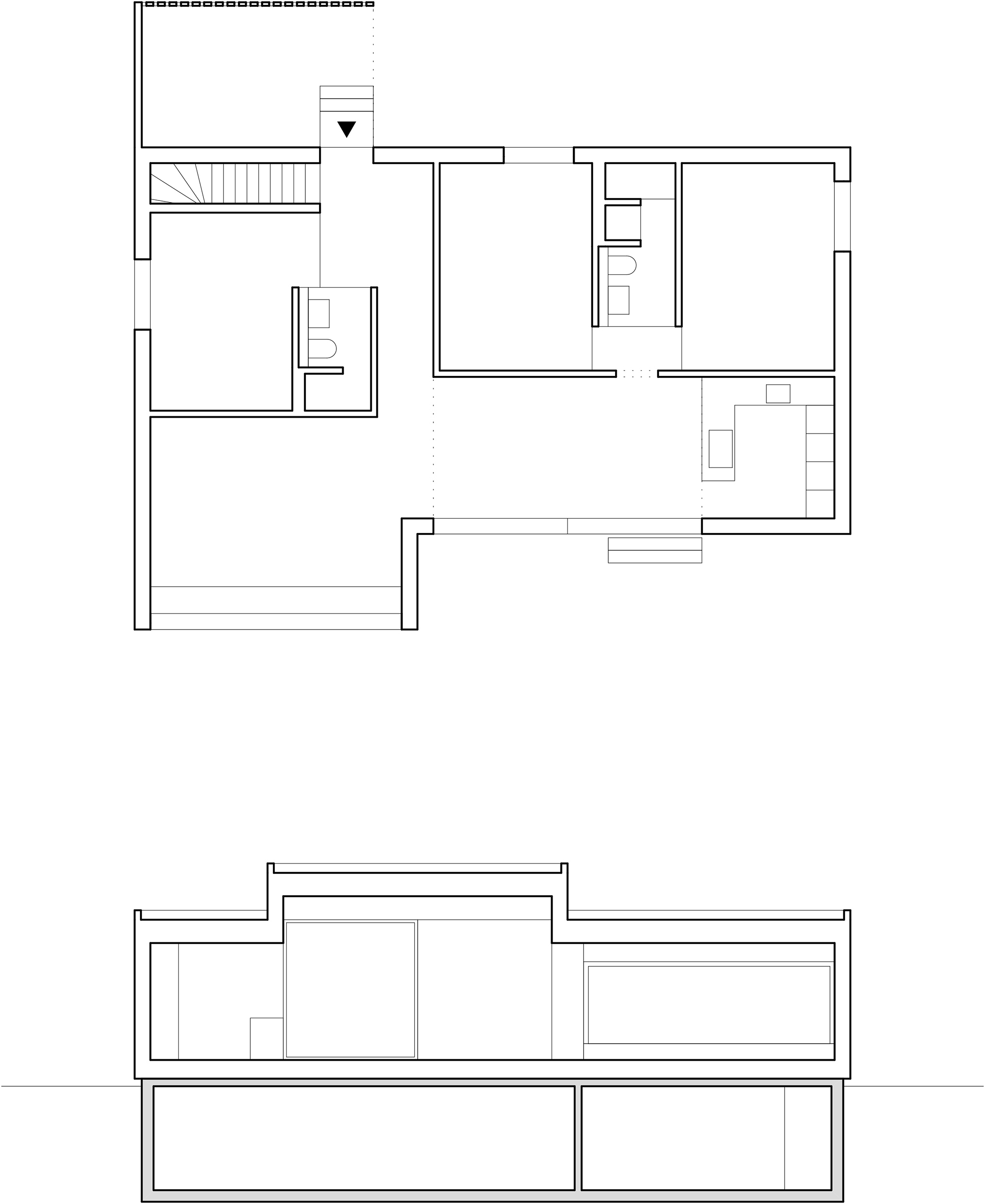
Rund 2000 Einwohner leben in der Schweizer Gemeinde Vordemwald im Kanton Aargau. Rund die Hälfte der Gemeindefläche ist bewaldet. Das Grundstück liegt an einem Hang mit schönem Blick auf das Dorf. Da der Bestandsbau aus den 1970er-Jahren den Bauherren nicht erhaltenswert erschien, entwarf das Aarauer Büro Gautschi Lenzin Schenker Architekten einen Ersatzneubau. Erhalten blieb einzig das Kellergeschoss. Dessen Betondecke wurde ertüchtigt und darauf eine minimalistische vorgefertigte Holzkonstruktion gesetzt.
Der Neubau besteht aus lediglich drei Materialien: Weißtanne, Beton und Chromstahl. Die Oberflächen sind unbehandelt. Dem engen Kostenrahmen wurde Rechnung getragen, indem auf alles Überflüssige verzichtet wurde. Dies entspricht dem Wunsch der Bauherren nach einem rohen, atelierartigen Wohngebäude.
Der gesamte Wohnbereich liegt leicht erhöht zum Gartenniveau und bildet den zentralen Aufenthaltsort für das Familienleben in einem Gefüge spannender Raumabfolgen. Ein großes Fenster mit Festverglasung inszeniert den Ausblick. Die Fensterbrüstung dient dabei als Sitzbank und Stauraum. Im Essbereich lässt eine schaufensterartige Hebeschiebeverglasung Innen und Außen verschmelzen. Das Spiel mit ineinander geschachtelten Quadern erzeugt spannende Körper und unterschiedliche Raumerlebnisse.
Weitere Informationen:
Holzbau: Schaerholzbau, Altbüron
Fenster, Schreinerarbeiten: Hunziker, Schöftland











