Spielscheune: Kinder- und Familienzentrum in Poppenweiler
Foto: Zooey Braun
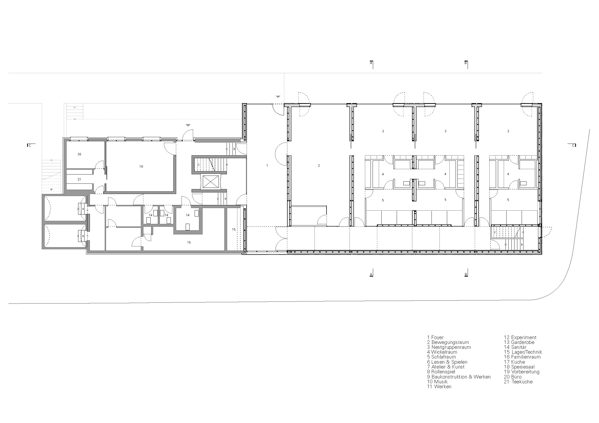
Für das Kinder- und Familienzentrum wurde zunächst das am Bauplatz ansässige Bestandsgebäude an die neuen Bedingungen angepasst und bis auf die tragenden Mauern zurückgebaut. Traditionelle Anbauten wie Erker oder Dachüberstände wurden zugunsten einer klaren, modernen Formensprache entfernt. Die Öffnungen blieben an ihrem ursprünglichen Ort, wurden jedoch in ein einheitliches bodentiefes Fensterformat gebracht. Auf diese Weise entstand ein klarer, prägnanter Putzbau, der aufgrund seiner reduzierten Kubatur den Anschluss an den angegliederten Neubau findet.
Der neu errichtete Anbau präsentiert sich als prägnanter Baukörper, der sich selbstbewusst in seinem heterogenen Umfeld behauptet und einzelne Motive aus der Umgebung aufgreift. Sowohl die Proportionen als auch das geneigte, rhythmisch gefaltete Dach lassen den Neubau mit den nachbarschaftlichen Gebäuden in Bezug treten. Als Holzbau steht dieser jedoch in bewusstem Kontrast zur Materialität des Umfeldes. Die Fassade mit ihrer vertikalen Holzverschalung interpretiert den ländlichen Charakter von Poppenweiler neu. Lamellen überdecken die straßenseitigen Fensteröffnungen und verleihen dem Baukörper ein homogenes Äußeres. Der von den Architekten verliehene Spitzname »Spielscheune« wird hier besonders deutlich.
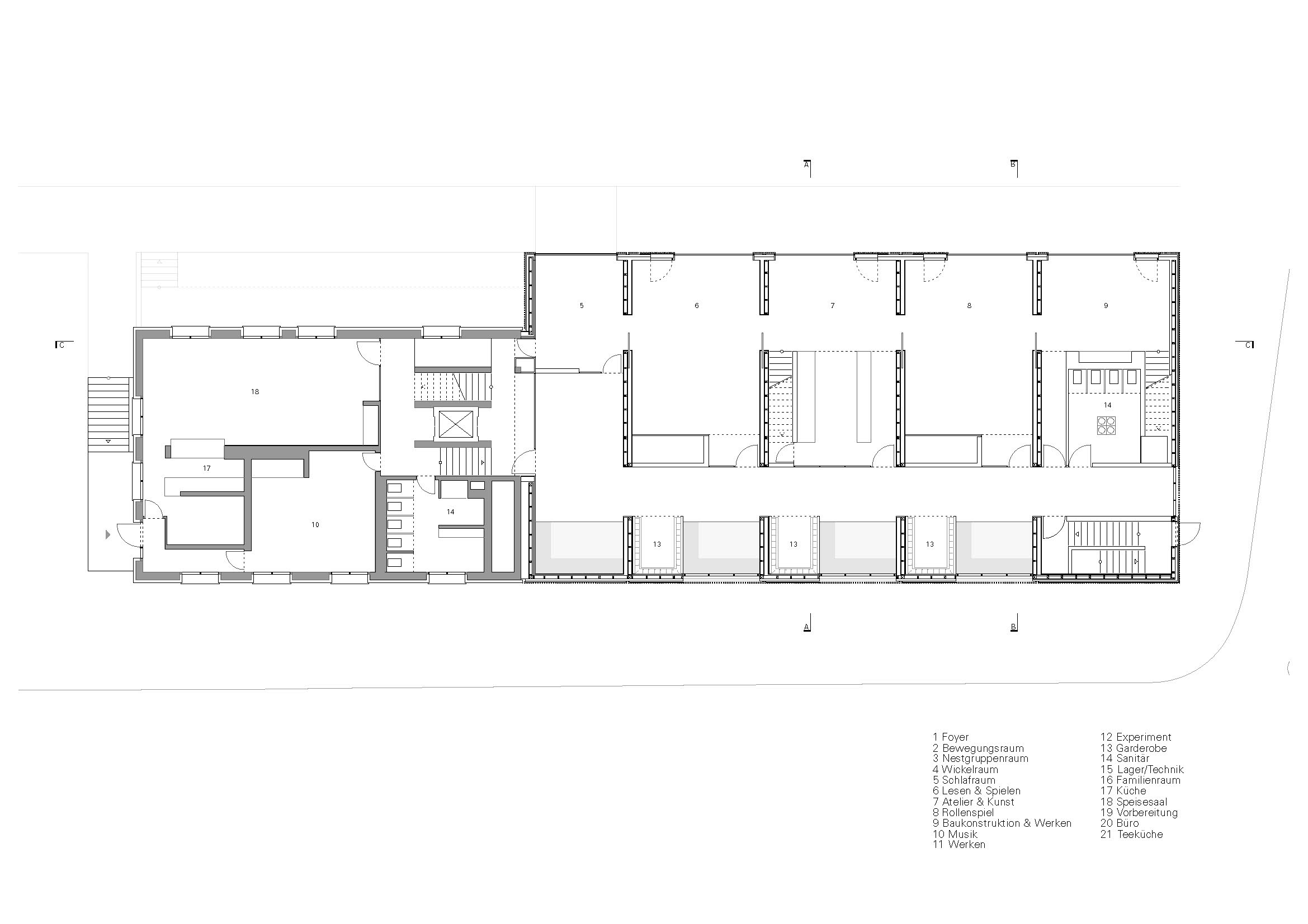
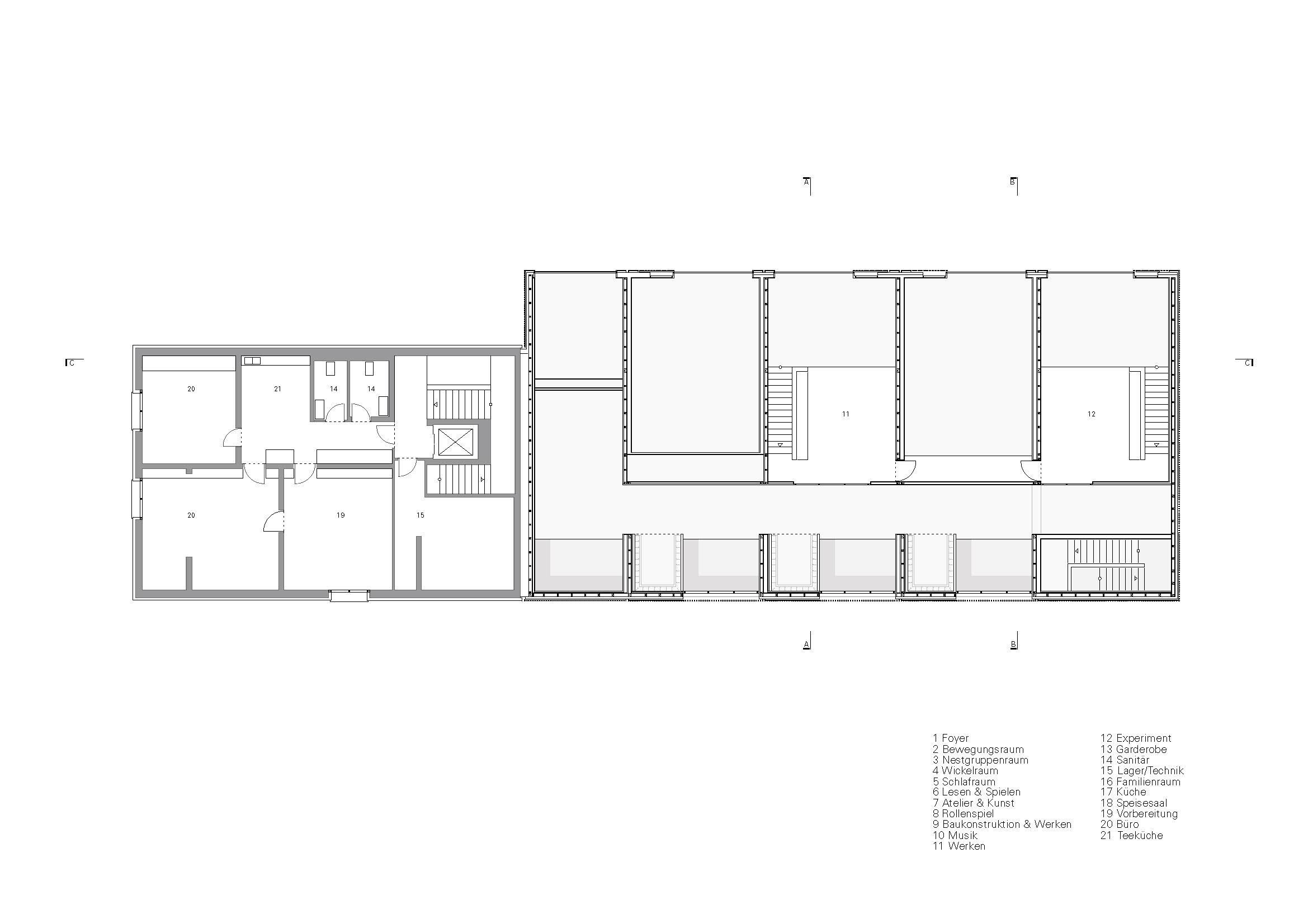
Neben den Spielräumen für die Kinder verteilen sich im Inneren von Alt- und Neubau auf 1425 m2 auch ein Speisesaal mit Küche sowie Räume für Verwaltung, Veranstaltungen und Elternberatung. Im Altbau wurden die vorhandenen Raumstrukturen nur punktuell an die neuen Funktionen angepasst. Lediglich das vorhandene Treppenhaus wurde durch ein neues ersetzt und verbindet nun die versetzten Ebenen der beiden Gebäude miteinander. Im Inneren des Neubaus bestehen sämtliche Oberflächen aus hell lasierten Dreischichtplatten. Sie verleihen den dortigen Räumlichkeiten eine helle und freundliche Atmosphäre. In Richtung Garten sorgen großzügige Fensteröffnungen für Ausblicke ins Grüne und für lichtdurchflutete Spielräume.
Die kindgerechte Gestaltung des Kinder- und Familienzentrums setzt sich bis ins kleinste Detail fort: Hölzerne Spielhäuschen greifen die Kubatur des Neubaus auf und bieten den Kindern ungestörte Rückzugsorte zum Spielen, Schlafen und Lesen. Entstanden ist so ein stimmiges Gesamtkonzept, welches von außen durch eine selbstbewusste aber gleichsam sensible Setzung und im Inneren durch liebevolle Detailplanung überzeugt.
Architekten: VON M
Team: Myriam Kunz, Dennis Mueller, Matthias Siegert
Mitarbeiter: Daniel Seiberts (Projektleitung), Antonia Blaer, Anna Brose, Julian, Kuhnle, Nina Schaal, Seda Yazici
Jahr: 2012–2015
Fläche: 1750 m2 (BGF)
Fotos: Zooey Braun, Stuttgart; Dennis Mueller, Stuttgart






























