Ersatzneubau mit markanter Dachkontur
Sporthalle Fasanenhofschule in Stuttgart von Dasch Zürn + Partner
Die oberhalb der Hauptdachfläche angeordneten Holz-Doppelbinder sind von außen als Dachlaterne ablesbar. © Henrik Schipper Photography
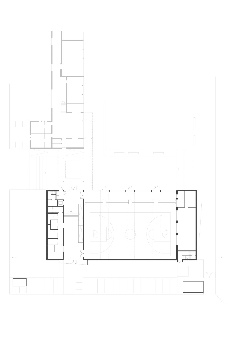
Nicht nur für den Schul-, sondern auch für den Wettkampfbetrieb im Basketball sollte die neue Sporthalle geeignet sein, die Dasch Zürn + Partner im Stadtteil Fasanenhof am südlichen Stadtrand von Stuttgart errichtet haben. Das hieß unter anderem: Neben Sportlerinnen und Sportlern sollen hier bis zu 150 Besucher Platz finden, außerdem sollten in der Halle und dem angrenzenden Foyer schulische Veranstaltungen mit bis zu 200 Personen stattfinden können. Die Halle ersetzt einen nicht mehr zeitgemäßen Vorgängerbau auf dem Areal der örtlichen Grundschule. Mit einem gemeinsamen Vordach dockt sie an den langgestreckten Gebäuderiegel des Schulhauses an und ergänzt diesen zu einem L-förmigen Ensemble.
Der Doppelnutzung für Schul- und Vereinssport entsprechend hat die Halle zwei Haupteingänge: einen vom Schulhof im Osten aus und einen von den Parkplätzen auf der Westseite. Die Hallenebene liegt rund 70 cm unter dem Höhenniveau des Schulhofs, höhengleich mit den Parkplätzen weiter westlich. Dadurch ergeben sich im Inneren des Gebäudes zwei gestaffelte Sitzreihen mit jeweils gut 50 Plätzen und ein Stehplatzumgang auf dem Niveau des Pausenhofs.


Hinter der Holzfassade des Gebäudes verbirgt sich ein Stahlbetontragwerk mit Sichtoberflächen im Inneren. © Henrik Schipper Photography
Neben der Sporthalle befinden sich im Erdgeschoss des Neubaus lediglich Geräteräume, Stuhllager, WCs und eine Teeküche. Die Umkleideräume sind dagegen im Obergeschoss untergebracht. Dort gibt es auch eine Vierzimmer-Hausmeisterwohnung mit separatem Zugang. Hinter der Holzfassade des Gebäudes verbirgt sich ein Stahlbetontragwerk mit Sichtoberflächen im Inneren. Die Halle selbst überspannen drei Holz-Doppelbinder, die oberhalb der Hauptdachfläche angeordnet sind und so von außen ablesbare, markante Dachlaternen ergeben. Die jeweils südlichen Träger der Laternen sind Vollwandträger, die nördlichen hingegen als Fachwerkträger aufgelöst. Zwischen ihren Diagonalen fällt blendfreies Nordlicht ins Innere der Halle.
Architektur: dasch zürn + partner
Bauherr: Landeshauptstadt Stuttgart
Standort: Markus-Schleicher-Str. 15, 70565 Stuttgart (DE)
Tragwerksplanung: tragwerkeplus
Landschaftsarchitektur: Planstatt Senner
Bauphysik: Bückle Bauphysik
HLS-Planung: IB Wagner













