// Check if the article Layout ?>
Spuren der Vergangenheit: Gedenkstätte von Rudy Ricciotti
Foto: Kevin Dolmaire
Es ist ein Ort voller Tristesse und Hoffnungslosigkeit: Mauerreste und Ruinen liegen verstreut über dem »Camp des Rivesaltes« und bilden die letzten Überreste der ehemaligen Baracken des Lagers. 1939 als Militärlager errichtet, diente es im Laufe des 20. Jahrhunderts als Auffanglager für alle »Unerwünschten« und Ausgegrenzten des Landes. »Gefährliche Ausländer«, Juden, Sinti und Roma waren es in der NS-Zeit, später Kriegsgefangene, algerische Hilfssoldaten (»harkis«) und zuletzt illegale Einwanderer, die auf ihre Abschiebung warteten. Der letzte Trakt des Lagers wurde 2007 geschlossen.
In den Folgejahren war das »Camp de Rivesaltes« ein karger Landstrich, bei der die Frage des angemessenen Umgangs erst geklärt werden musste. Es gab bereits Pläne zum Abriss, als der Entschluss fiel, auf dem Gelände eine Gedenkstätte zu errichten, die die Geschichte des Ortes aufarbeitet. Der Entwurf von Rudy Ricciotti, der in Zusammenarbeit mit Passelac & Roques studio entwickelt wurde, setzt ein kraftvolles Zeichen und bringt dem historischen Ort angemessenen Respekt entgegen.
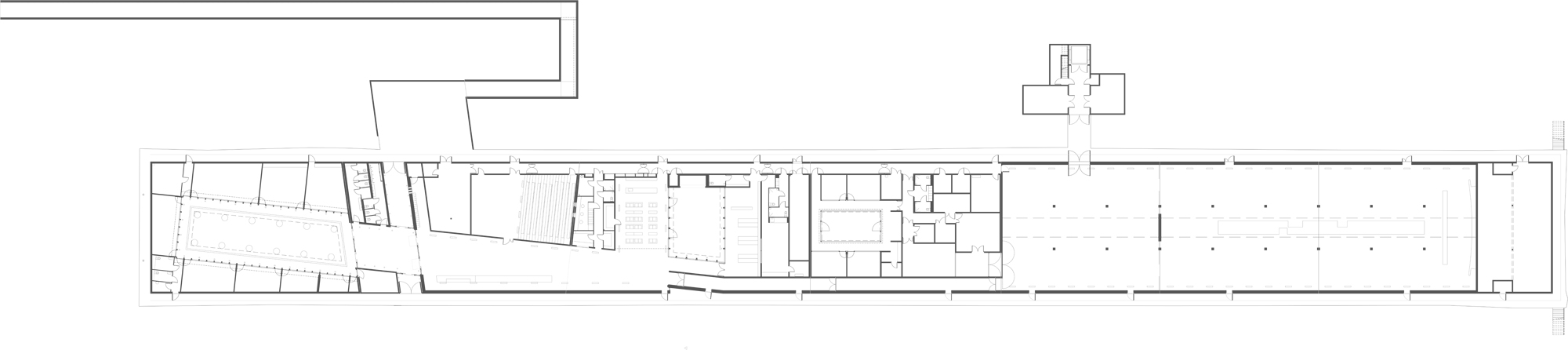
Ein 220 Meter langer und 20 Meter breiter Baukörper duckt sich flach in das umliegende Gelände. Wie eingegraben ist das Gebäude von außen kaum wahrnehmbar, lediglich bei genauerem Hinsehen ist ein leichter Anstieg des Daches von Ost nach West sichtbar. Aus Achtung vor den umliegenden Ruinen überragt die Gedenkstätte an keiner Stelle die Mauerreste, sondern ordnet sich unter und fügt sich ein. Auch farblich passt sich der monolithische Baukörper genau dem ockerfarbenen Sandboden an.
An der Nordseite führt eine Rampe den Besucher ins Innere. Die dortigen Räumlichkeiten werden lediglich über wenige kleine Öffnungen und über drei Patios belichtet. Unterrichtsräume mit einem angrenzenden Auditorium sowie ein Restaurant und Verwaltungsräume gruppieren sich um die Lichthöfe. Die eigentlichen Ausstellungsräume liegen ganz am Ende des Baukörpers. Vollständig geschlossen sind diese nur über zwei schmale, dunkle Gänge erreichbar, die den Besucher in die Tiefe der Geschichte eintauchen lassen.
In den Folgejahren war das »Camp de Rivesaltes« ein karger Landstrich, bei der die Frage des angemessenen Umgangs erst geklärt werden musste. Es gab bereits Pläne zum Abriss, als der Entschluss fiel, auf dem Gelände eine Gedenkstätte zu errichten, die die Geschichte des Ortes aufarbeitet. Der Entwurf von Rudy Ricciotti, der in Zusammenarbeit mit Passelac & Roques studio entwickelt wurde, setzt ein kraftvolles Zeichen und bringt dem historischen Ort angemessenen Respekt entgegen.
Ein 220 Meter langer und 20 Meter breiter Baukörper duckt sich flach in das umliegende Gelände. Wie eingegraben ist das Gebäude von außen kaum wahrnehmbar, lediglich bei genauerem Hinsehen ist ein leichter Anstieg des Daches von Ost nach West sichtbar. Aus Achtung vor den umliegenden Ruinen überragt die Gedenkstätte an keiner Stelle die Mauerreste, sondern ordnet sich unter und fügt sich ein. Auch farblich passt sich der monolithische Baukörper genau dem ockerfarbenen Sandboden an.
An der Nordseite führt eine Rampe den Besucher ins Innere. Die dortigen Räumlichkeiten werden lediglich über wenige kleine Öffnungen und über drei Patios belichtet. Unterrichtsräume mit einem angrenzenden Auditorium sowie ein Restaurant und Verwaltungsräume gruppieren sich um die Lichthöfe. Die eigentlichen Ausstellungsräume liegen ganz am Ende des Baukörpers. Vollständig geschlossen sind diese nur über zwei schmale, dunkle Gänge erreichbar, die den Besucher in die Tiefe der Geschichte eintauchen lassen.




























