Stadtbaustein aus Sichtbeton: Schulzentrum Antoine de Ruffi in Marseille
Foto: Luc Boegly
Marseille erobert sich sein Hafengebiet zurück – allen voran mit dem Stadterneuerungsprojekt Euroméditerrannee nordwestlich der Innenstadt. Zu Füßen der Hochhäuser La Marseillaise von Jean Nouvel und Tour CMA CGM von Zaha Hadid entsteht der Parc habité de l’Arenc, ein durchgrüntes Wohn- und Büroviertel nach Plänen des Pariser Stadtplaners Yves Lion. Voraussichtlich noch bis Ende 2022 werden dort rund 2000 Wohnungen und 130.000 m2 Büros gebaut.
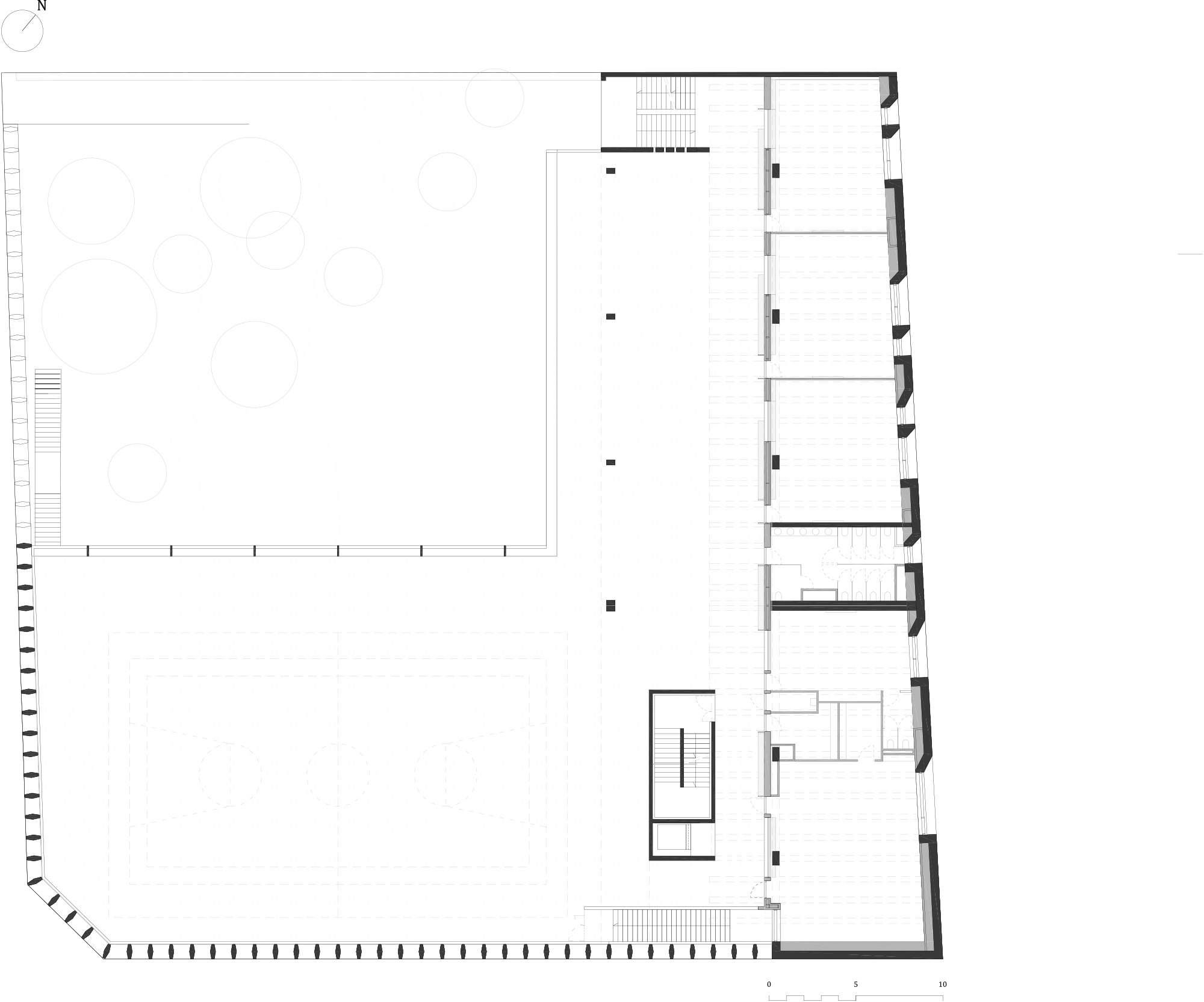
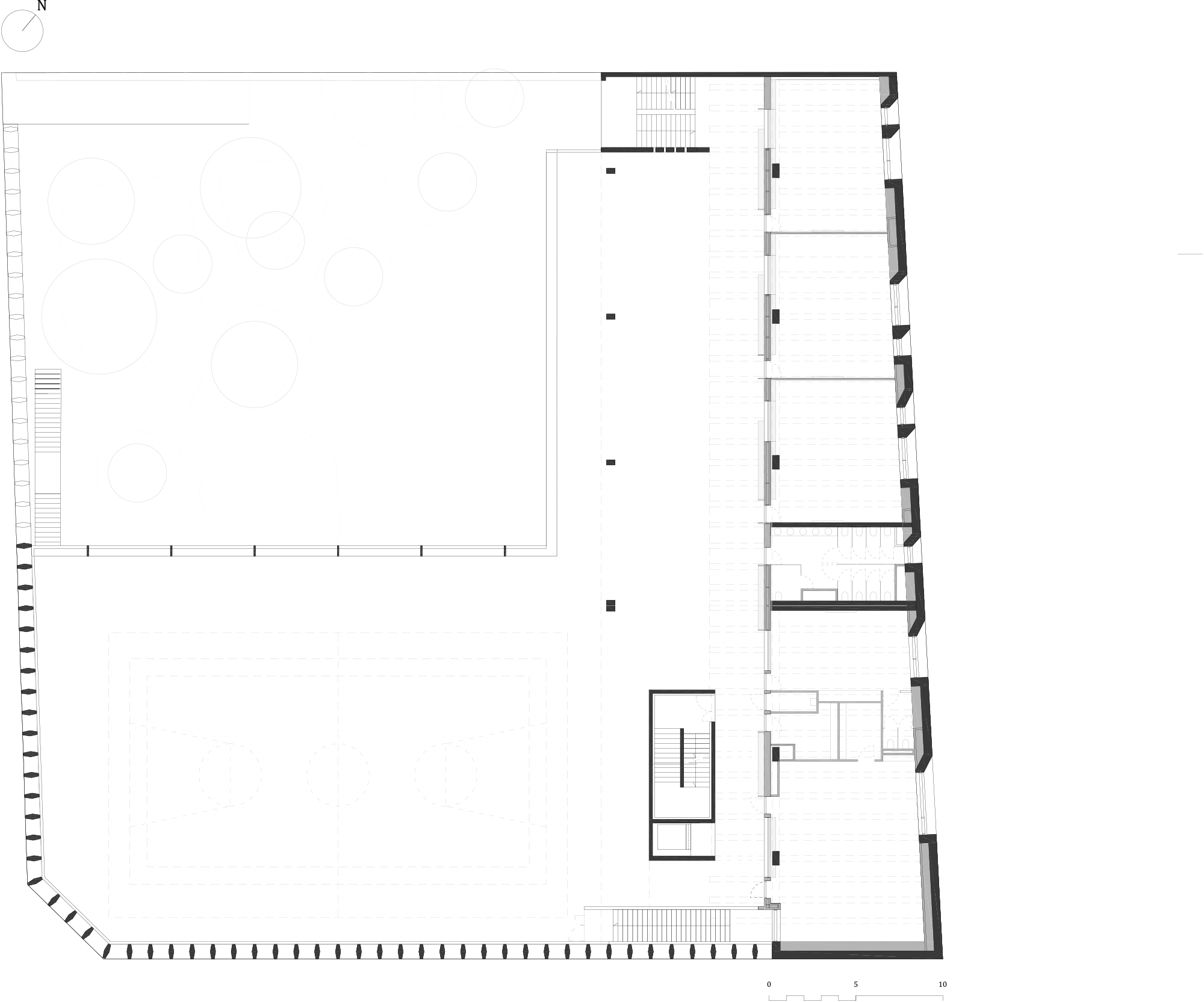
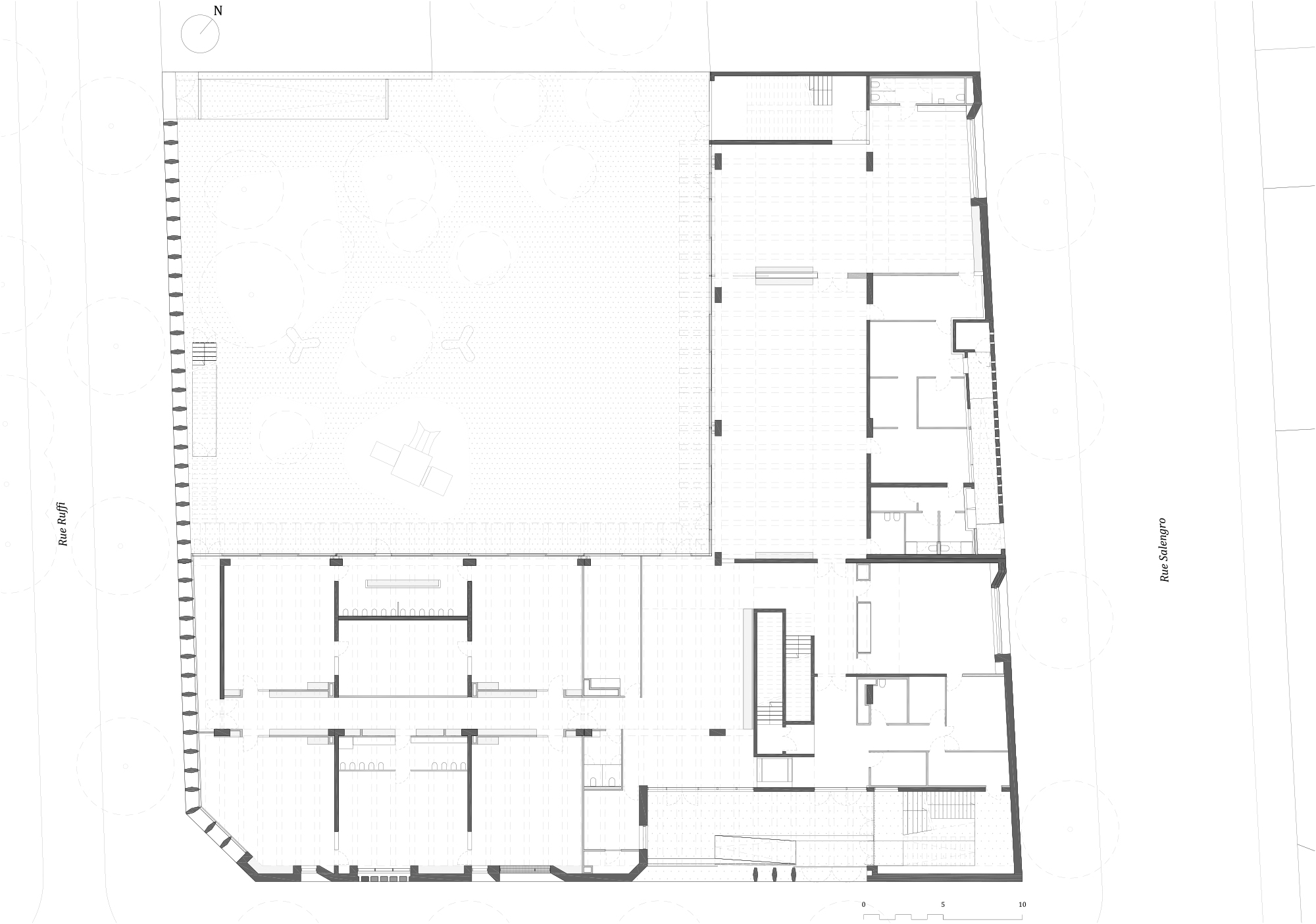
Entsprechend hoch ist auch der Bedarf an neuen Bildungseinrichtungen. Für die Jüngsten hält seit Mitte 2020 die Groupe Scolaire Antoine de Ruffi 22 Kindergartengruppen und Grundschulklassen bereit. Der Neubau von Tautem Architecture und bmc2 zeigt, welch differenzierte Fassadengestaltung mit nur einem Material – hellem Sichtbeton - möglich ist. Zu den Wohnblocks im Osten zeigt er eine viergeschossige, rund 1 m tiefe Lochfassade mit teils abgeschrägten Laibungen. Der Wechsel glatter und rauer Betonoberflächen gliedert diese Fassade zusätzlich. Im Westen und Süden hingegen grenzen hohe, von schlanken Betonpfählen gehaltene Maschendrahtzäune den Schulhof und die Dachterrassen vom Straßenraum ab. Sie vervollständigen die Konturen des Gebäudeblocks, während die hofseitigen Fassaden der Schule hinter Dachüberstände und Terrassen zurückgesetzt sind. Offene Kolonnaden vor einer Freitreppe auf der Ostseite und zweigeschossige Betonpilaster vor der Südfassade verzahnen die Massiv- und die Skelettstruktur miteinander.
Alle Betonbauteile – die zweischalige Lochfassade ebenso wie die Stützen, Unterzüge und Betondecks der Terrassen – wurden fugenlos vor Ort gegossen und bestehen aus CO2-armem Beton mit einem sehr hellen Kalksteinzuschlag aus der Region. Für eine helle Betonfarbe und eine günstige Ökobilanz des Baustoffs sorgt auch der Hüttensand aus den Stahlwerken im nahe gelegenen Fos-sur-Mer, der als Zementersatzstoff in der Betonmischung dient.
Als Kontrastmaterial zu dem vielen Beton wählten die Architekten Lärchenholz aus den Alpen. Diesen Werkstoff verwendeten sie relativ sparsam für Einbaumobiliar, Wand- und Deckenverkleidungen in den Innenräumen, die Rahmen der verglasten Innentrennwände sowie zur Verkleidung der zurückgesetzten Fassaden Richtung Innenhof.



















































