// Check if the article Layout ?>
Stählerner Schleier: Nationales Graphen-Institut der Manchester Universität
Das neue nationale Institut für Graphen-Forschung der Universität von Manchester entstand in enger Zusammenarbeit mit Sir Kostaya Novoselov und Sir Andre Geim, die aufgrund ihrer Entdeckung wichtiger Eigenschaften und der Darstellung freier, einschichtiger Graphenkristalle 2010 den Nobelpreis für Physik erhielten. Das Gebäude soll nun Räumlichkeiten für die Kooperation von Industrie und Universität zur Verfügung stellen und in Bezug auf die Anwendungen und Kommerzialisierung von Graphen den notwenigen Raum bieten. Das »Wundermaterial« ist unter anderem zum Beispiel bereits in Bleistiften und in anderen Graphiten zu finden.
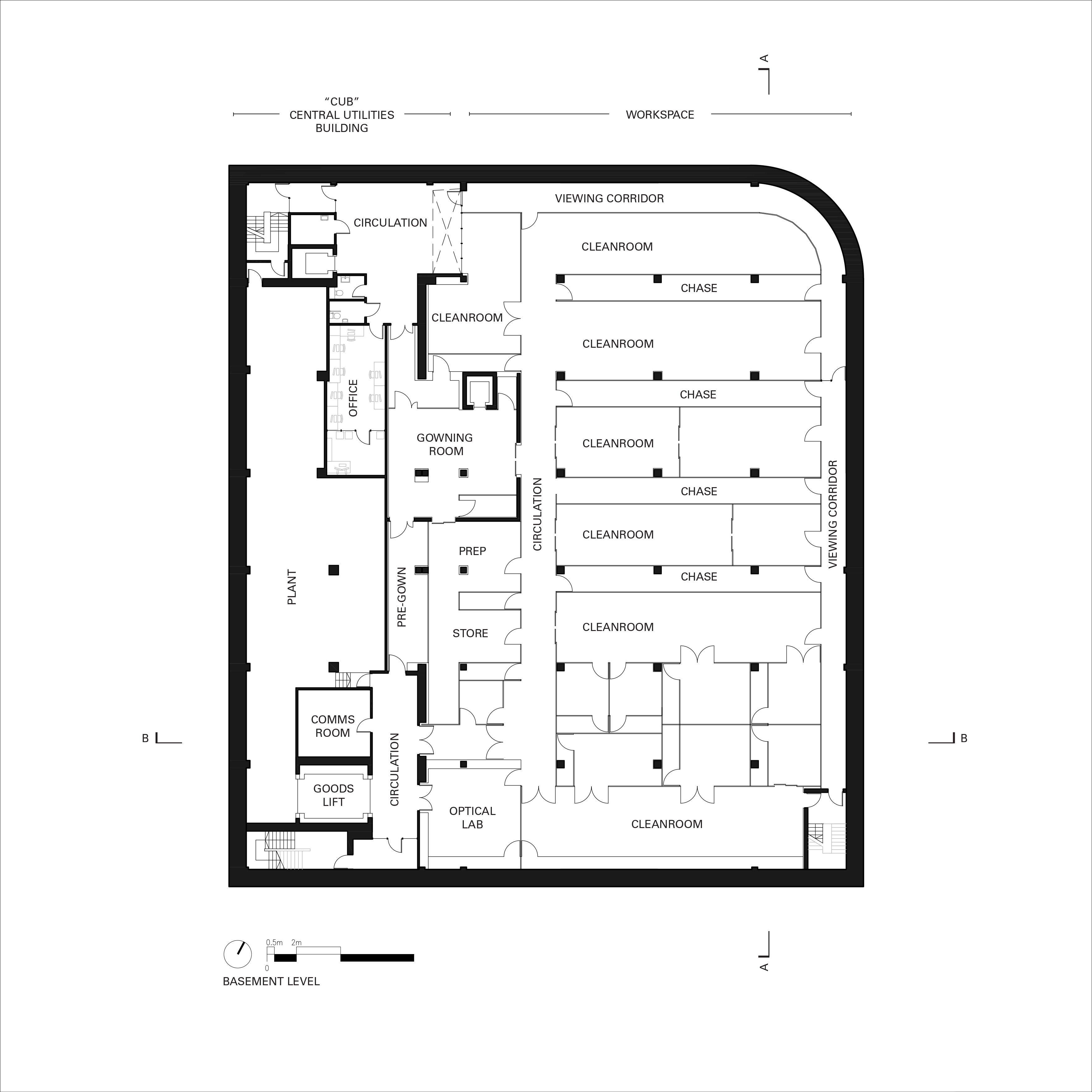
Auf einer Fläche von 7.825 m² und insgesamt fünf Geschossen erstreckt sich das Institut für Forschung und Entwicklung. In den unteren Geschossen befindet sich aufgrund der besseren Bedingungen bezüglich Gebäudeschwingungen das Herzstück des Gebäudes, der Haupt-Reinraum. Umschlossen von einem L-förmigen Korridor werden den Besuchern mithilfe gigantischer Glasscheiben Einblicke in die Forschungsprozesse gewährt. Gute Einsichtigkeit und Bezug zur Öffentlichkeit scheinen sich als Themen durch den gesamten Gebäudekomplex zu ziehen: Transparente, roh belassene und großzügige Räumlichkeiten bieten immer wieder Platz zum Zusammenkommen, Verweilen und Erforschen. Ein weiterer Reinraum und Räumlichkeiten für Laser, Licht-, Metrologie- und Chemielabore sowie Büros befinden sich in den oberen Geschossen. Insgesamt verfügt das Gebäude über 1.500 m² Reinraumfläche, einige Seminarräume und Unterkünfte. Eine großzügige Terrasse auf dem Dach, die 21 verschiedene Gras- und Wildpflanzen beherbergt und primär dazu dienen soll Bienen und andere Bestäuber anzuziehen, bietet zudem Raum für eine Forschungspause an der frischen Luft.
Aus konzeptuellen Gründen sind Büros und Labore kontinuierlich in allen Etagen gemischt anzutreffen, sodass den individuellen Forschungsteams passende Einrichtungen in zusammenhängenden Zonen zur Verfügung stehen, um gemeinsam zu arbeiten. Kollaborationen und die Zusammenarbeit zwischen industriellen Partnern und den Forschungsinstituten der Universität stehen an oberster Stelle des Gebäudekonzeptes – 35 Firmen aus aller Welt sind bereits Partner der Universität und forschen gemeinsam an verschiedensten Graphen-Projekten. Erschlossen wird das Gebäude von der Booth Street aus. Thermisch abgetrennt und isoliert wird es durch eine gläserne Gebäudehülle. Eine zweite Haut aus schwarzen, spiegelnden und perforierten Stahlpaneelen umschließt den gesamten Baukörper. Als eine Art Schleier schmiegt sie sich um die gesamte Konstruktion und schafft ein einheitliches Gesamtbild. Zudem soll sie gedanklich die Brücke zur gitterartigen Wabenstruktur des Werkstoffs Graphen schlagen.
Auf einer Fläche von 7.825 m² und insgesamt fünf Geschossen erstreckt sich das Institut für Forschung und Entwicklung. In den unteren Geschossen befindet sich aufgrund der besseren Bedingungen bezüglich Gebäudeschwingungen das Herzstück des Gebäudes, der Haupt-Reinraum. Umschlossen von einem L-förmigen Korridor werden den Besuchern mithilfe gigantischer Glasscheiben Einblicke in die Forschungsprozesse gewährt. Gute Einsichtigkeit und Bezug zur Öffentlichkeit scheinen sich als Themen durch den gesamten Gebäudekomplex zu ziehen: Transparente, roh belassene und großzügige Räumlichkeiten bieten immer wieder Platz zum Zusammenkommen, Verweilen und Erforschen. Ein weiterer Reinraum und Räumlichkeiten für Laser, Licht-, Metrologie- und Chemielabore sowie Büros befinden sich in den oberen Geschossen. Insgesamt verfügt das Gebäude über 1.500 m² Reinraumfläche, einige Seminarräume und Unterkünfte. Eine großzügige Terrasse auf dem Dach, die 21 verschiedene Gras- und Wildpflanzen beherbergt und primär dazu dienen soll Bienen und andere Bestäuber anzuziehen, bietet zudem Raum für eine Forschungspause an der frischen Luft.
Aus konzeptuellen Gründen sind Büros und Labore kontinuierlich in allen Etagen gemischt anzutreffen, sodass den individuellen Forschungsteams passende Einrichtungen in zusammenhängenden Zonen zur Verfügung stehen, um gemeinsam zu arbeiten. Kollaborationen und die Zusammenarbeit zwischen industriellen Partnern und den Forschungsinstituten der Universität stehen an oberster Stelle des Gebäudekonzeptes – 35 Firmen aus aller Welt sind bereits Partner der Universität und forschen gemeinsam an verschiedensten Graphen-Projekten. Erschlossen wird das Gebäude von der Booth Street aus. Thermisch abgetrennt und isoliert wird es durch eine gläserne Gebäudehülle. Eine zweite Haut aus schwarzen, spiegelnden und perforierten Stahlpaneelen umschließt den gesamten Baukörper. Als eine Art Schleier schmiegt sie sich um die gesamte Konstruktion und schafft ein einheitliches Gesamtbild. Zudem soll sie gedanklich die Brücke zur gitterartigen Wabenstruktur des Werkstoffs Graphen schlagen.
weitere Informationen:
Technischer Ausbau und M&E Berater: CH2M Hill
Hauptauftragnehmer: BAM Construct
Projektmanager: EC Harris
CDM Koordinatoren: Keelagher Okey Klein
Kosten: 61 Mio. £
www.graphene.manchester.ac.uk
Technischer Ausbau und M&E Berater: CH2M Hill
Hauptauftragnehmer: BAM Construct
Projektmanager: EC Harris
CDM Koordinatoren: Keelagher Okey Klein
Kosten: 61 Mio. £
www.graphene.manchester.ac.uk






















