Starke Gesten: Neuer Trakt für das Gymnasium Augustinianum in Greven
Foto: Christian Richters
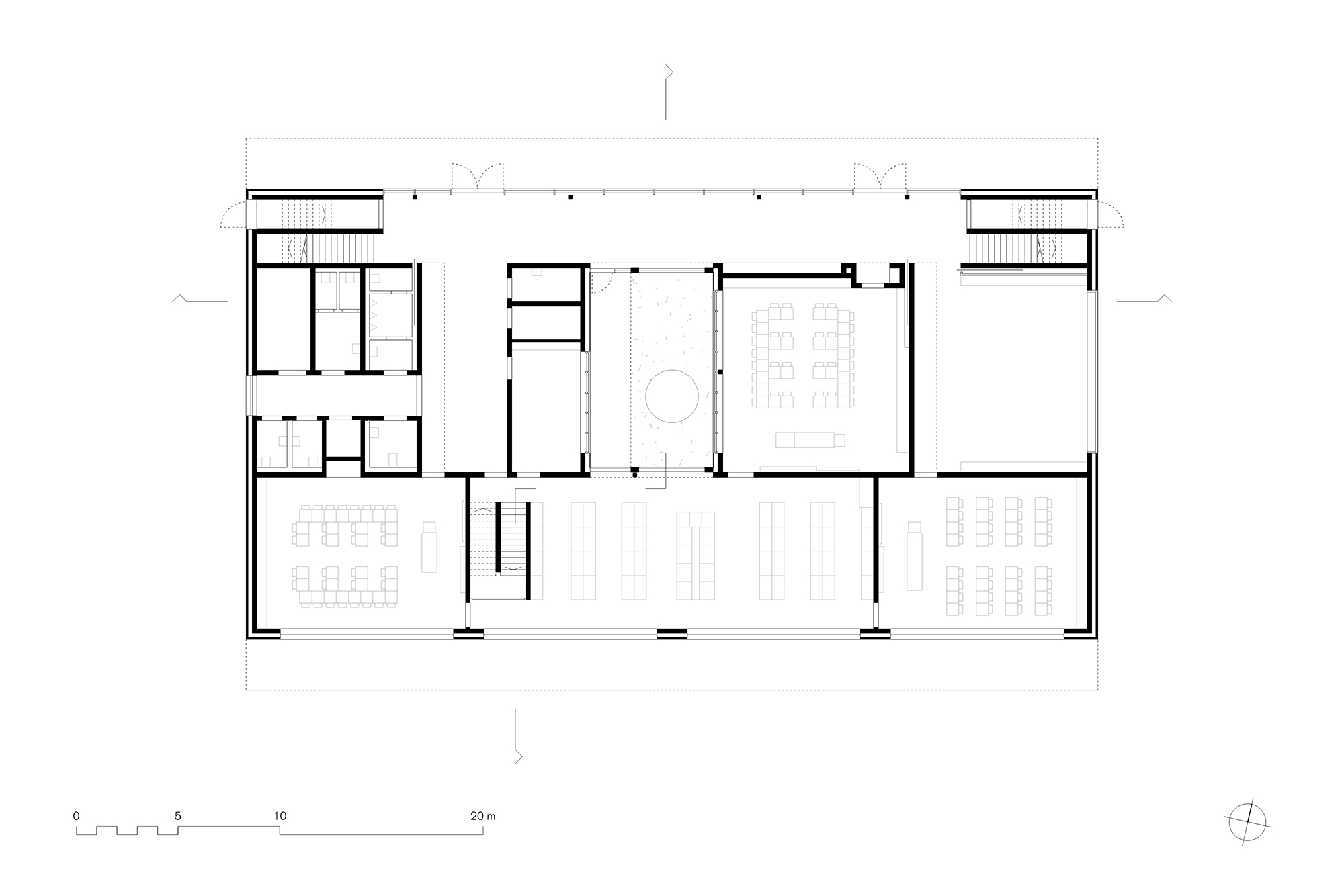
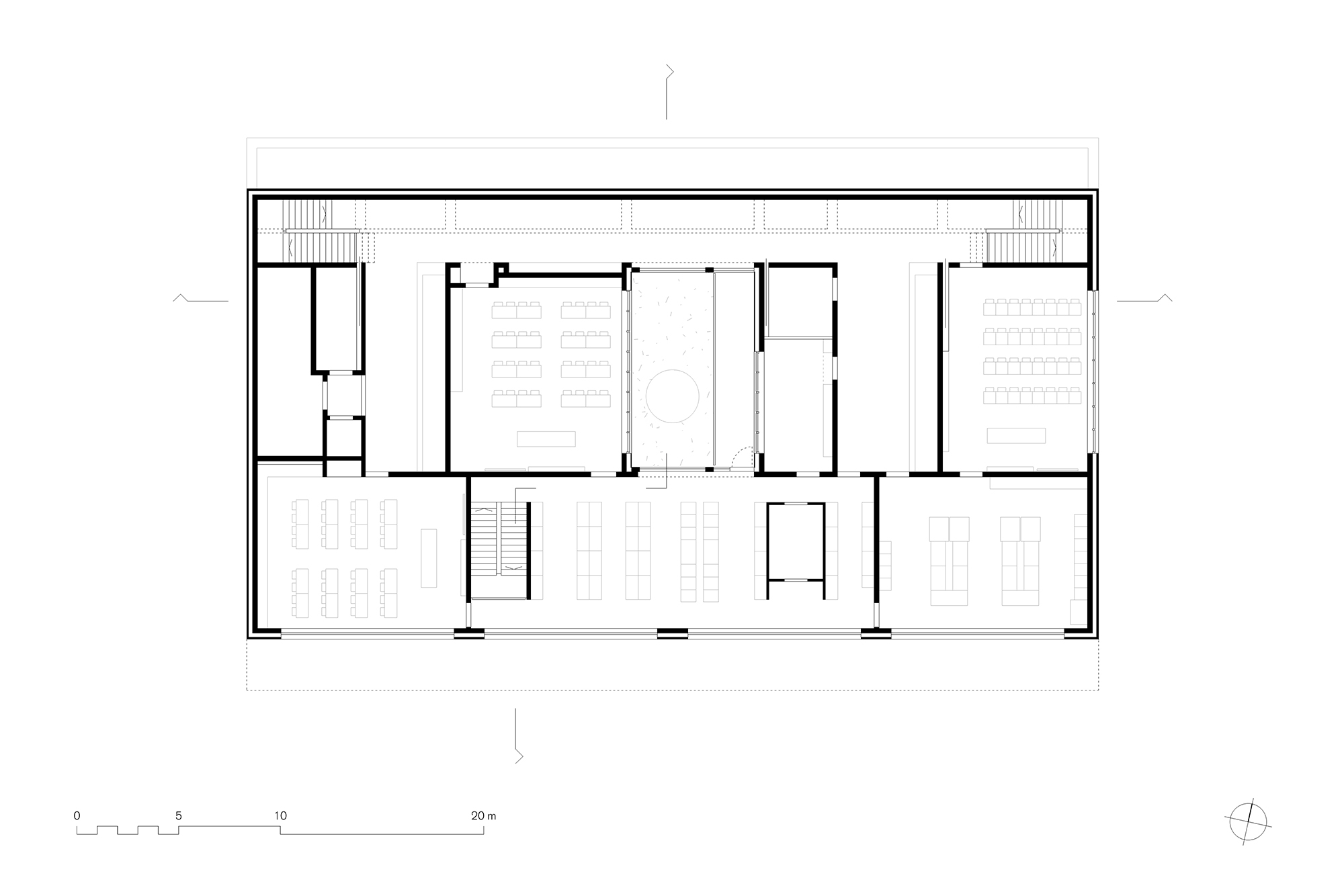
Auf dem Gelände des Gymnasium Augustinianum Greven im nördlichen Münsterland gliedern Bez+Kock Architekten den naturwissenschaftlichen Trakt zwischen die Sporthalle im Westen und das Hauptgebäude in das bauliche Ensemble ein. In östlicher Richtung von der erschließenden Lindenstraße begrenzt, wird der rechteckige Baukörper von Norden her betreten.
Der zweigeschossige Naturwissenschaftskomplex passt sich in seiner Optik an die Klinkerfassaden des Bestands an. Sämtliche Ansichten sind in regionalem Wasserstrichziegel ausgeführt und verleihen dem Neubau eine fließend verlaufende, braun-graue Farbe. Bez+Kock Architekten brechen die kompakte Hülle an mehreren Stellen in Form von horizontalen, streifenförmigen Elementen auf – nach Süden als Dachüberstand, an der Nordseite zum einen als Attika, zum anderen als Vordach. Letzteres schützt den zum nördlichen Schulhof orientierten Eingangsbereich, den raumhohe Verglasungen markieren. Die mit Bedacht gesetzten Öffnungen füllen schlichte Holz-Alu-Fenster mit Sonnenschutz aus gefaltetem Lochblech und dunkelgrünem Textil.
Im Inneren zeigt sich der naturwissenschaftliche Trakt des Augustinianums abwechslungsreich. Mittels eines Innenhofs und diversen Oberlichtern, in Kombination mit hellen Oberflächen, kreieren Bez+Kock Architekten eine luftige und doch funktionale Atmosphäre. Die Lehrbereiche gliedern sich in die beiden Geschosse auf: Physik im Erdgeschoss, Chemie im oberen Stockwerk. Das Foyer ist gleichzeitig als Expositionsfläche konzipiert und wird von den, an beiden Querseiten positionierten, Treppen flankiert. Während dort die Hauptzirkulation stattfindet, gibt es zentral einen weiteren Aufgang ausschließlich für das Lehrpersonal, der direkt zu den Besprechungsräumen führt.





















