// Check if the article Layout ?>
Stauraum neu interpretiert: Mills House in Melbourne
Foto: Peter Bennetts
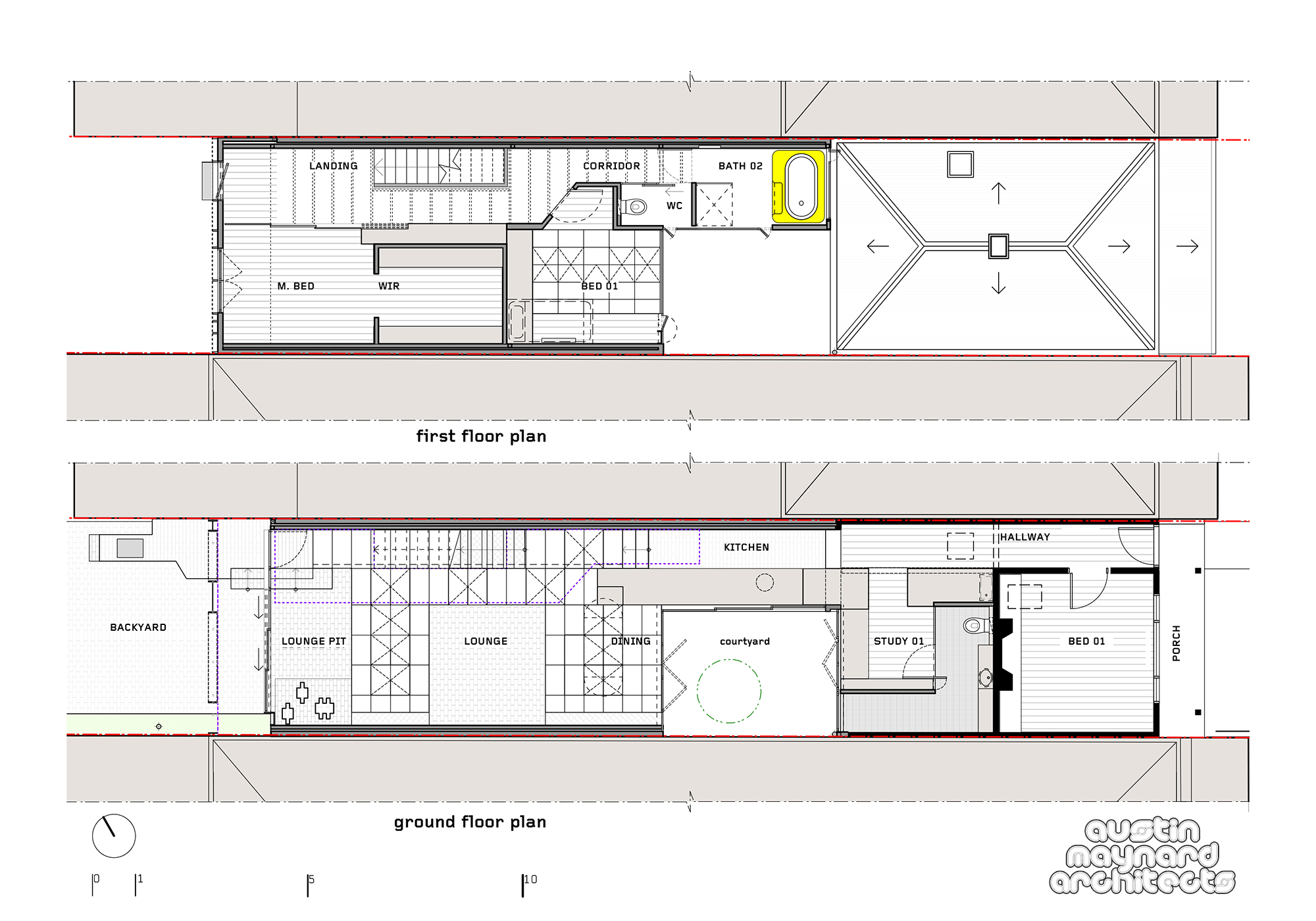
Zur Straße hin bietet sich Passanten ein einheitliches Bild: Auf den schmalen Parzellen reiht sich adrett Häuschen an Häuschen. Unter ihnen befindet sich das »Mills House«, das seine innovativen Qualitäten erst im Inneren offenbart. Austin Maynard Architects erweitern das eingeschossige Bestandsgebäude um einen Anbau. Er bietet Platz für einen loftartigen Wohn-, Essbereich mit Küche, sowie zwei Schlafzimmer und Bad im Obergeschoss. Alt und neu trennt ein großzügiger Lichthof, der viel Helligkeit in das enge Reihenhaus bringt.
Über den Bestand gelangt man in den facettenreichen Anbau. An den Korridor dorthin schließt linker Hand die schwarz gehaltene Küchenzeile an. Direkt dahinter befindet sich der Lichthof, der zur Küche und dem Essbereich hin komplett geöffnet werden kann.
Die Spielzeugkiste, das eigentliche Highlight des Neubaus, ist im Wohnbereich umgesetzt. Der 450 Millimeter hohe Holzeinbau aus modularen Boxen fungiert als Stauraumlösung mit Mehrwert. Er bietet nicht nur die Möglichkeit, jegliche Unordnung schnell zu verstecken, sondern ist zudem als Sitzgelegenheit konzipiert. Aussparungen lassen den originalen Ziegelboden punktuell zum Vorschein kommen; das Sofa scheint auf diese Art regelrecht eingegraben. Der Niveausprung von 450 Millimetern zieht sich wie ein roter Faden durch den Raum – die Arbeitsplatte der Küche ist 900 Millimeter hoch und wird so am anschließenden Esstisch, der auf dem doppelten Boden steht, zum aufklappbaren Sitzplatz. Glasflächen bilden den witterungsbeständigen Abschluss zum Garten hin. Um vor direkter Sonneneinstrahlung zu schützen und dennoch genügend Licht ins Innere zu lassen, gibt es eine vorgesetzte Fassade. Diese ist aus weißem Lochblech gefertigt und wirkt wie ein leichter, transluzenter Vorhang.
Um den leichten und offenen Charakter auch im Haus zu erreichen, setzt man hier bei der Treppe und Teilen des Bodens im Obergeschoss auf weißes Lochblech. Platzoptimierung wird beim Masterschlafzimmer in Form einer verschiebbaren Wand zum Flur hin zelebriert – fast zwei Meter werden auf diese Weise dazugewonnen.
Im Bad zieht eine Maßanfertigung alle Aufmerksamkeit auf sich: die gelbe Badewanne. Ihr futuristisches Design ist vor allem funktionalen Gründen geschuldet. Gefertigt aus Fieberglas ist sie fugenlos und deshalb leicht zu reinigen. Neben schlichtem Weiß gibt es einzelne Farbakzente in Gelb. Das Thema Nachhaltigkeit hält Eingang über Solarpaneele auf dem Dach des Erweiterungsbaus, Regenwassernutzung mittels Tank unterhalb des Lichthofs und die Verwendung von lokalen Materialien. Eine weiße Dachhaut sorgt für minimale Aufheizung und rundet das »Mills House«-Ensemble perfekt ab.
Die Spielzeugkiste, das eigentliche Highlight des Neubaus, ist im Wohnbereich umgesetzt. Der 450 Millimeter hohe Holzeinbau aus modularen Boxen fungiert als Stauraumlösung mit Mehrwert. Er bietet nicht nur die Möglichkeit, jegliche Unordnung schnell zu verstecken, sondern ist zudem als Sitzgelegenheit konzipiert. Aussparungen lassen den originalen Ziegelboden punktuell zum Vorschein kommen; das Sofa scheint auf diese Art regelrecht eingegraben. Der Niveausprung von 450 Millimetern zieht sich wie ein roter Faden durch den Raum – die Arbeitsplatte der Küche ist 900 Millimeter hoch und wird so am anschließenden Esstisch, der auf dem doppelten Boden steht, zum aufklappbaren Sitzplatz. Glasflächen bilden den witterungsbeständigen Abschluss zum Garten hin. Um vor direkter Sonneneinstrahlung zu schützen und dennoch genügend Licht ins Innere zu lassen, gibt es eine vorgesetzte Fassade. Diese ist aus weißem Lochblech gefertigt und wirkt wie ein leichter, transluzenter Vorhang.
Um den leichten und offenen Charakter auch im Haus zu erreichen, setzt man hier bei der Treppe und Teilen des Bodens im Obergeschoss auf weißes Lochblech. Platzoptimierung wird beim Masterschlafzimmer in Form einer verschiebbaren Wand zum Flur hin zelebriert – fast zwei Meter werden auf diese Weise dazugewonnen.
Im Bad zieht eine Maßanfertigung alle Aufmerksamkeit auf sich: die gelbe Badewanne. Ihr futuristisches Design ist vor allem funktionalen Gründen geschuldet. Gefertigt aus Fieberglas ist sie fugenlos und deshalb leicht zu reinigen. Neben schlichtem Weiß gibt es einzelne Farbakzente in Gelb. Das Thema Nachhaltigkeit hält Eingang über Solarpaneele auf dem Dach des Erweiterungsbaus, Regenwassernutzung mittels Tank unterhalb des Lichthofs und die Verwendung von lokalen Materialien. Eine weiße Dachhaut sorgt für minimale Aufheizung und rundet das »Mills House«-Ensemble perfekt ab.
Weitere Informationen:
Projektteam: Andrew Maynard, Mark Austin, Natalie Miles
Fotos: Peter Bennetts, www.peterbennetts.com
Fotos: Peter Bennetts, www.peterbennetts.com























