// Check if the article Layout ?>
Stein auf Stein: Wohnhaus in Stoke Newington
Foto: Tim Soar
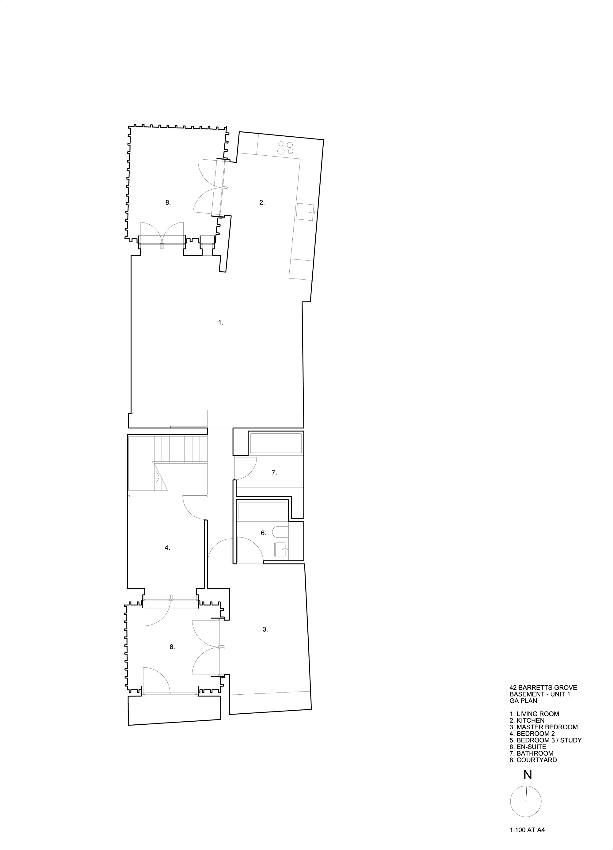
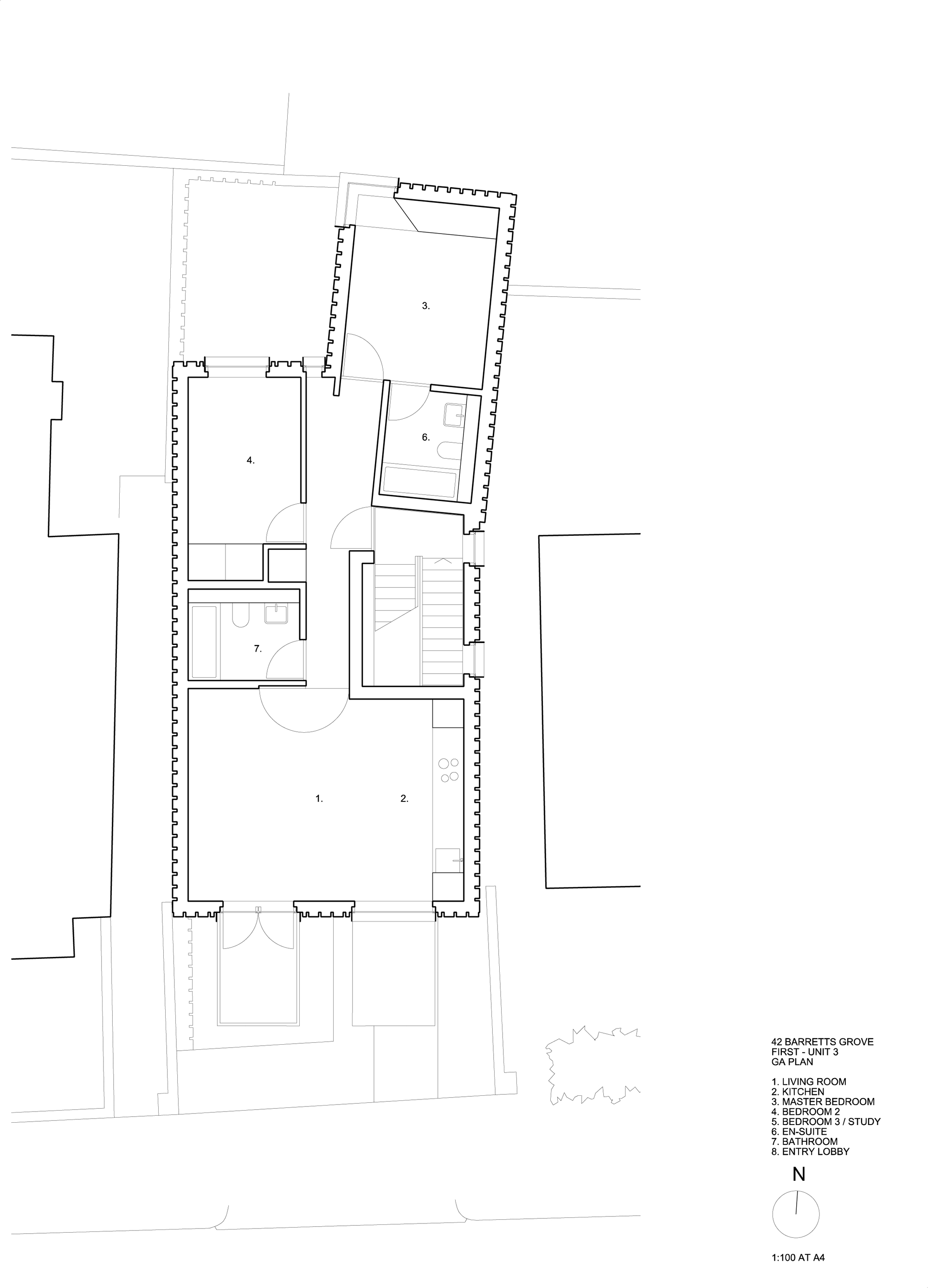
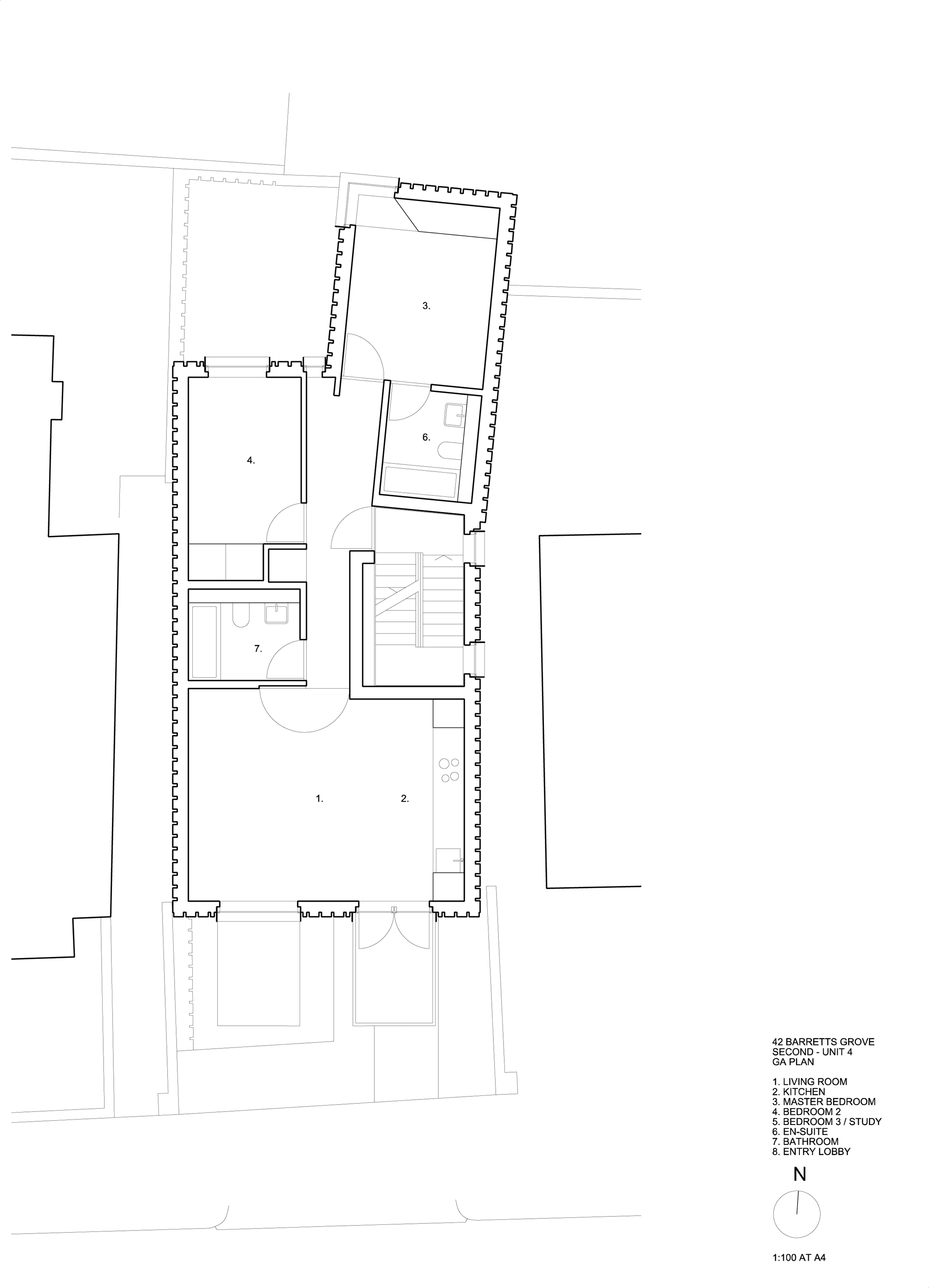
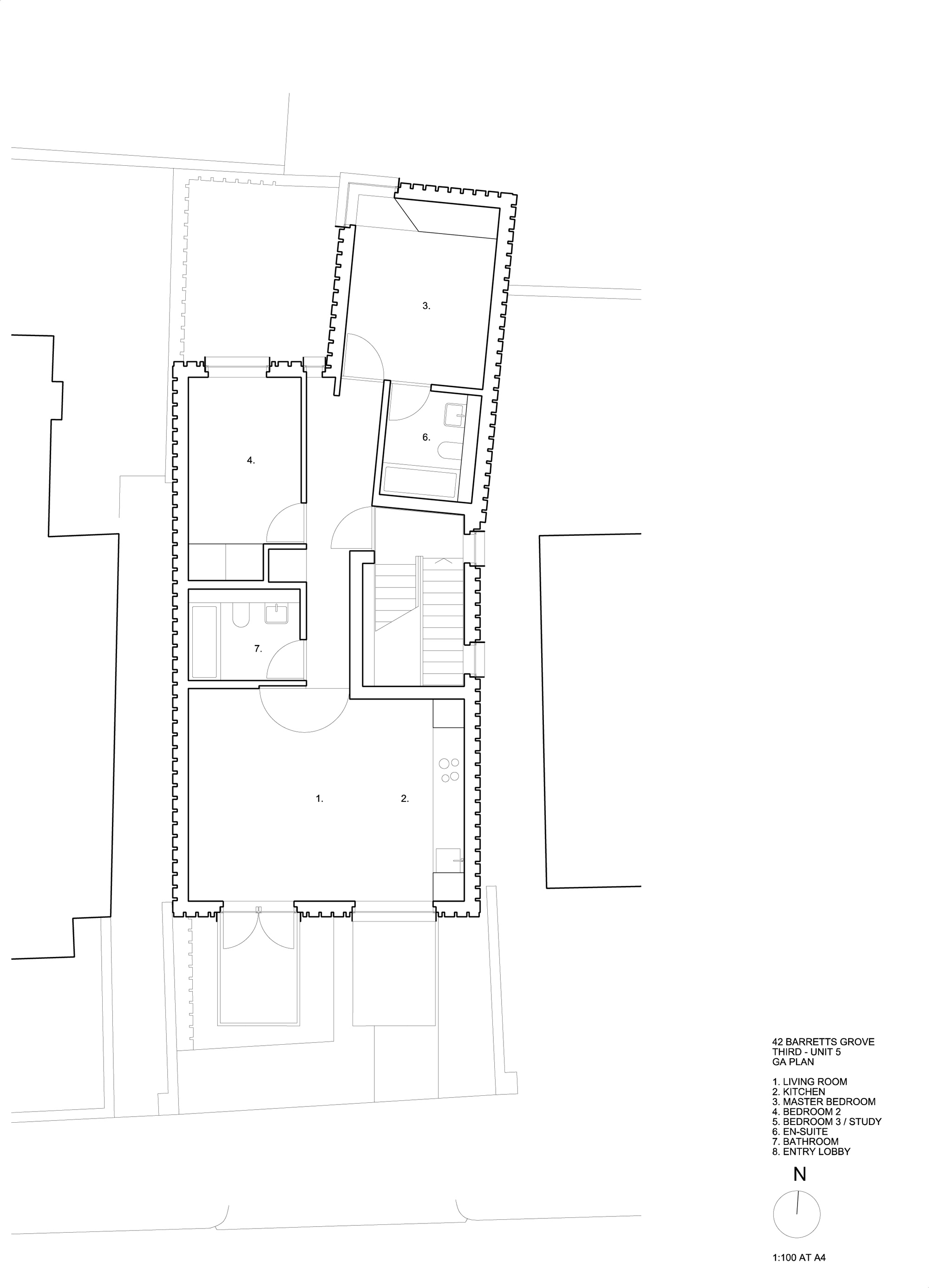
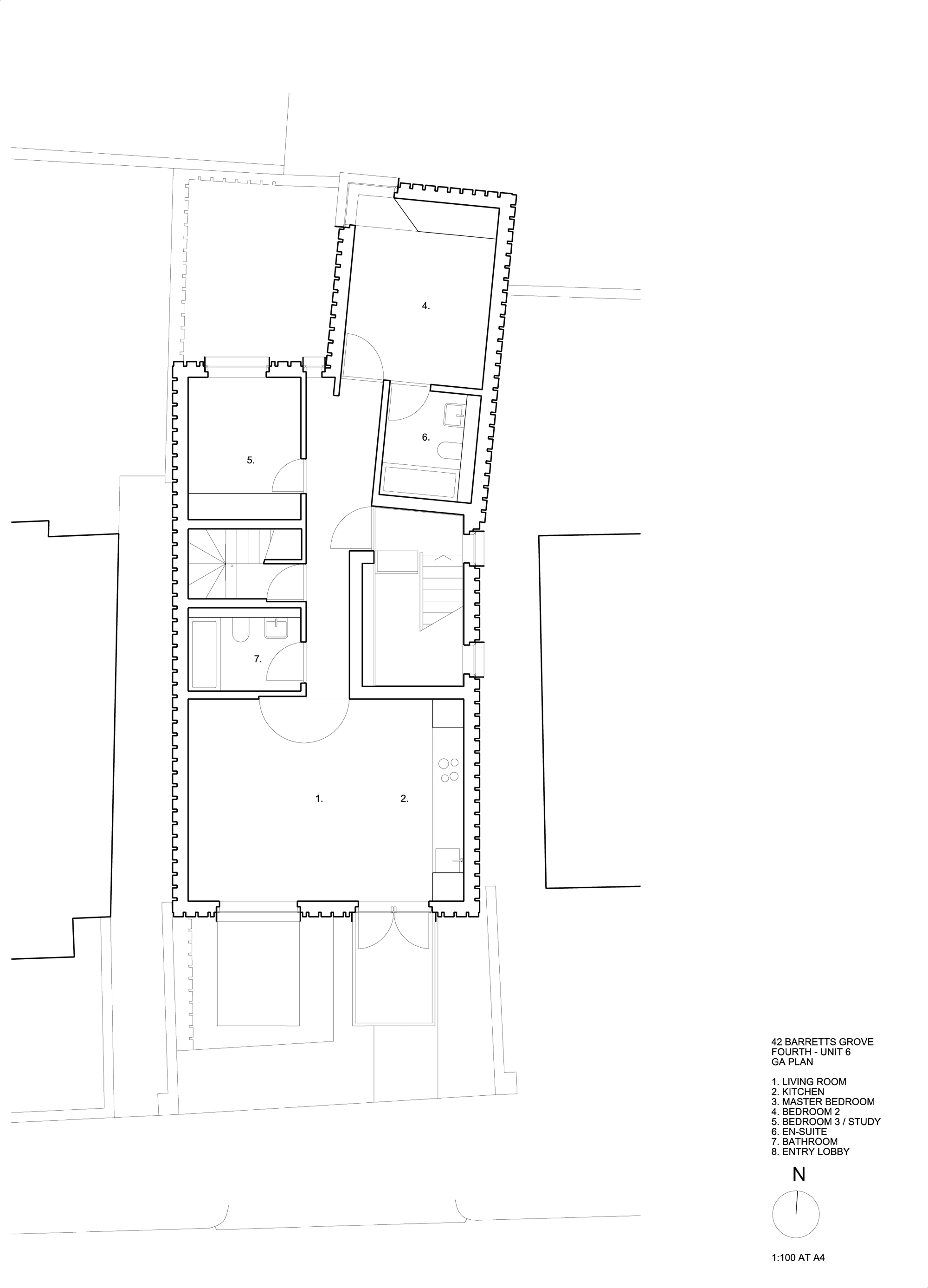
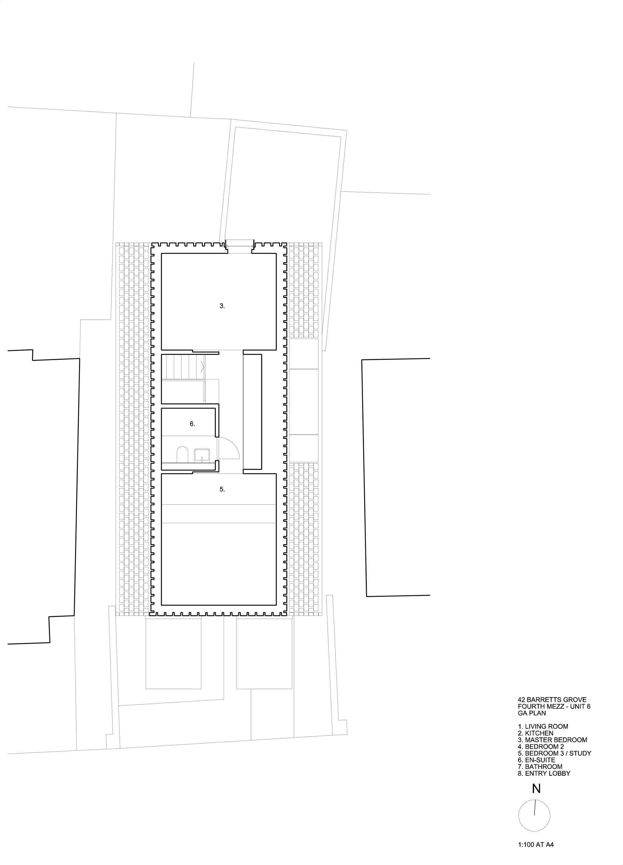
Barrets Grove wurde als Wohnhaus mit Maisonette- und Etagenwohnungen für Familien und Singles gebaut. Das Haus steht zwischen einer Grundschule und einem Einfamilienhaus in London. Das auffallendste Merkmal des Hauses ist die hohe Giebelwand aus rotem Backstein mit großen Öffnungen und weit auskragenden Balkonen. Es ist eine massive und beeindruckende Konstruktion mit doppellagigem Mauerwerk, welches das gesamte Gebäude umhüllt und mit seiner Höhe die Schule weit überragt. Es ist außerdem perfekt integriert, da das Mauerwerk durch seinen offenen Verband selbst zeigt, dass es nichttragend ist und damit eine Leichtigkeit gewinnt, die ideal zum nebenstehenden, leicht geneigten Einzelhaus passt. Das Tragwerk aus Brettsperrholz ist innerhalb jedes Raumes dauerhaft sichtbar. Das Wechselspiel zwischen den exponierten Details und dem Tragwerk ist eine clevere Art, wenige Materialien zu verwenden.
Die rauen Materialien der vor Regen schützenden Backsteinfassade und des Tragwerks aus Holz arbeiten zusammen und wirken sowohl gegen Witterung als auch als Wärmedämmung. Diese Handhabung der Konstruktion reduzierte nicht nur die Kosten, sondern erzeugt in Kombination mit den exponierten Decken, mit Weide überflochtenen Stahlbalkonen und den bronzefarbenen Fensterrahmen ein einzigartiges Gefühl von Zuhause. Sitzbänke an den Fenstern, Holzeinbauten und raumhohe Türen mit Ledergriffen und maßgefertigten Metallschlössern vervollständigen die Raumarchitektur. Die Zugangstür ist wie die Fenster in Bronze gehalten und führt zu einem Vorraum mit einer Holzbank, die einlädt sich dort mit Nachbarn zu treffen oder Besuchern eine Möglichkeit zum Ausruhen vor dem Eintritt ins Haus gibt. Nicht nur der weite Eingang, sondern auch die weit auskragenden Balkone, die den Gemeinschaftsgarten ersetzen, sollen das gemeinschaftliche Beisammensein fördern. Die sauberen und einfach gehaltenen Räume mit ihren Holzwänden geben den Bewohnern ausreichende Freiräume für eigene Gestaltung.
Durch die Minimierung der Materialdicken und die intelligente Verwendung verschiedener Elemente entstand ein Gebäude, dass sich perfekt in seine Umgebung einpasst und eine angenehme Atmosphäre außen wie innen verbreitet. Diese Neuinterpretation eines Backsteinhauses zeigt, dass die experimentelle Entwicklung eines Wohnhauses, ein Heim lebendig machen und dabei effektiv bleiben kann.





















