// Check if the article Layout ?>
Strukturelle Extravaganz: WRAP Haus
Foto: Masao Nishikawa
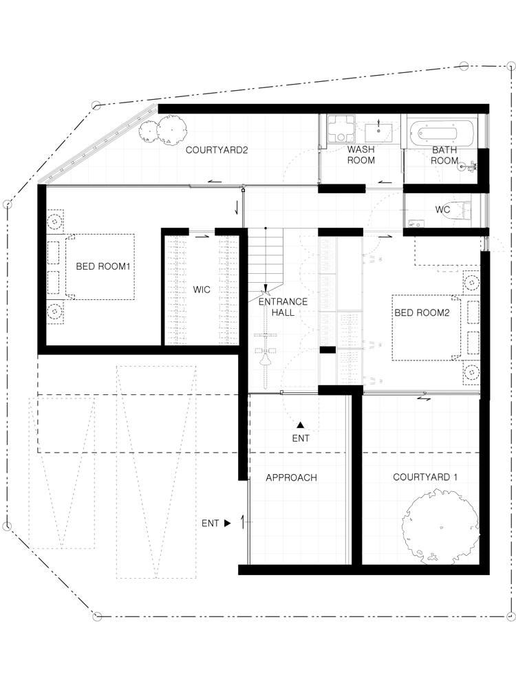
Von Außen offenbart das Gebäude, aufgrund der wenigen Öffnungen und geschosshohen Mauer nur wenig von seiner strukturellen und konstruktiven Besonderheit. Auch die Raumaufteilung bleibt hinter der überwiegend geschlossenen Fassade verborgen. Erst nach dem Durchschreiten des Holztores und beim Betreten des Hauses wird die innere Zonierung klar.
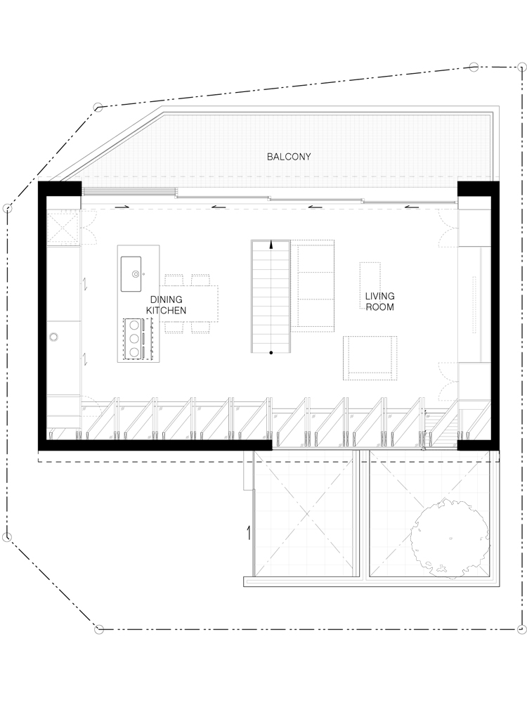
Ein zentraler Eingangsbereich mit einer kunstvoll gestalteten Treppe dient als Verteilerraum für die angrenzenden Schlaf- und Badezimmer, die über zwei Innenhöfe natürlich belichtet werden. Freischwebende, in der Wand verankerte Stahlstufen reihen sich aneinander und führen in das obere Geschoss, das als offener, stützenfreier Raum Platz für Küche, Wohn- und Essbereich bietet.
Vom Boden über Wand und Decke bis zur Traufe reicht die hölzerne Konstruktion die sowohl für den Raum an sich, als auch für die Dachform prägend ist. Über vier verglaste Schiebetüren der offenen Längsseite gelangt man auf den Balkon, der mit einem transparenten Geländer aus Hartglas abschließt. Weiße Einbaumöbel an beiden Giebelseiten sorgen für Stauraum im Küchen- und Wohnbereich.
Ein zentraler Eingangsbereich mit einer kunstvoll gestalteten Treppe dient als Verteilerraum für die angrenzenden Schlaf- und Badezimmer, die über zwei Innenhöfe natürlich belichtet werden. Freischwebende, in der Wand verankerte Stahlstufen reihen sich aneinander und führen in das obere Geschoss, das als offener, stützenfreier Raum Platz für Küche, Wohn- und Essbereich bietet.
Vom Boden über Wand und Decke bis zur Traufe reicht die hölzerne Konstruktion die sowohl für den Raum an sich, als auch für die Dachform prägend ist. Über vier verglaste Schiebetüren der offenen Längsseite gelangt man auf den Balkon, der mit einem transparenten Geländer aus Hartglas abschließt. Weiße Einbaumöbel an beiden Giebelseiten sorgen für Stauraum im Küchen- und Wohnbereich.
Weitere Informationen:
Grundfläche: 113,04 m2
Fertigstellung: März 2015
Grundfläche: 113,04 m2
Fertigstellung: März 2015








