Fußgängerfreundliche Architektur
Studentisches Wohnen in Los Angeles von LOHA
Das Wohnprojekt Granville1500 von Lorcan O’Herlihy Architects befindet sich am Santa Monica Boulevard. © Here And Now Agency
Lorcan O’Herlihy Architects (LOHA) entwarfen in West Los Angeles einen quartierbildendenden Wohnkomplex für Studierende. Das Grundstück, das sich über einen ganzen Block erstreckt, war früher ein Autohaus und dient nun als Modell für gemischt genutzte Gebäude mit sozialem Zweck.


Der Wohnkomplex besteht aus drei Gebäuden mit dazwischenliegenden Freiflächen. © Here And Now Agency
Gelegen am Santa Monica Boulevard, befindet sich das Wohnheim mit dem Namen Granville1500 an einer wichtigen Verkehrsstraße im Los Angeles County. Das Ziel der Planenden war es, in dieser autogerechten Stadt ein Wohnkonzept zu entwickeln, das das akademische Leben in den städtischen Kontext einbettet.
Studentisches Wohnen
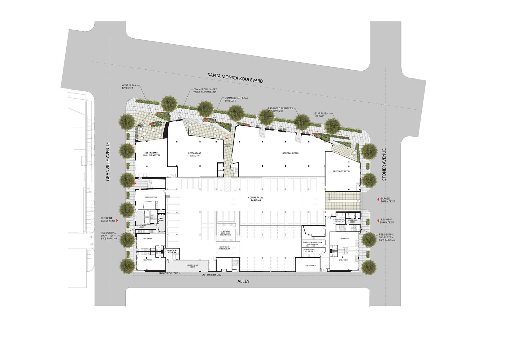
Das Projekt umfasst 153 Wohneinheiten, zwei Restaurants, mehrere Flächen für den Einzelhandel und eine Tiefgarage auf 320 000 m². Medizinstudierende und Mitarbeitende der University of California, Los Angeles (UCLA) dürfen hier vergünstigt wohnen. Neu eingerichtete Verbindungen der öffentlichen Verkehrsmittel ermöglichen in wenigen Minuten eine schnelle Anreise zum Campus.


Die Durchgänge sind zugleich Innenhöfe. Brücken verbinden die oberen Wohnetagen. © Here And Now Agency
Der Wohnkomplex teilt sich in drei keilförmige Gebäude mit unterschiedlichen Grundrissformen. Schmale Brücken verbinden die Gebäudeteile in den Obergeschossen. Die Zwischenräume bilden Durchgänge mit Sitzgelegenheiten sowie kleine, bepflanzte Innenhöfe aus. Die größte Plattform bietet Platz für einen Swimmingpool, der gemeinschaftlich genutzt wird. Im Erdgeschoss sind die Volumen an ihren Ecken abgeschrägt. Dieser Kniff hebt das Gebäude optisch vom Boden ab und verbreitert den Fußweg.


Die Gebäudeecken sind von den Wegen zurückgesetzt und geben den Fußgängern mehr Platz. © Here And Now Agency
Nachhaltigkeit
Die Fassade zeigt sich als graue, geriffelte Metallverkleidung, die das Sonnenlicht in Richtung der Innenhöfe reflektiert. Mit ihrem Entwurf verfolgen die Architekten nachhaltige Strategien. So geschieht die Aufbereitung des gesammelten Regenwassers vor Ort. Zudem ergänzen Fahrradabstellplätze, Ladestationen für Elektrofahrzeuge und Solaranlagen auf dem Dach das nachhaltige Konzept.


Die kleinen Wohneinheiten beherbergen die Studierenden der University of California, Los Angeles. © Here And Now Agency
Die UCLA kaufte den Wohnkomplex kurz nach dessen Fertigstellung. Gemeinsam mit dem ebenfalls von Lorcan O’Herlihy Architects entworfenen, benachbarten Wohnblock Westgate1515, entsteht ein urbanes, fußgängergerechtes Quartier mit Vorbildcharakter für den Wohnungsbau in Los Angeles.
Architektur: Lorcan O’Herlihy Architects
Bauherr: CIM Group
Standort: 1500 Granville Ave, Los Angeles, CA 90025 (US)
Tragwerksplanung, Bauingenieurwesen: John Labib & Associates
Landschaftsplanung: LA Group Inc.
Innenarchitektur: Ariel Fox Design
Bauunternehmen: Suffolk Construction






















