// Check if the article Layout ?>
STUDIO CHAMANGA: Research Design Build Ausstellung
Foto: Studio Chamanga
Sogenannte »Design-Build«-Projekte sind Projekte, bei denen Gebäude gemeinsam mit Studierenden entworfen, geplant und anschließend in Eigenregie gebaut werden. Das Lehrkonzept basiert auf der Idee, angehenden Architekten und Ingenieuren im Rahmen ihres Studiums die Prozesse des Planens nicht nur in der Theorie zu vermitteln, sondern darüber hinaus Einblicke in die Konsequenzen der praktischen Umsetzung zu ermöglichen.
Praxisprojekt
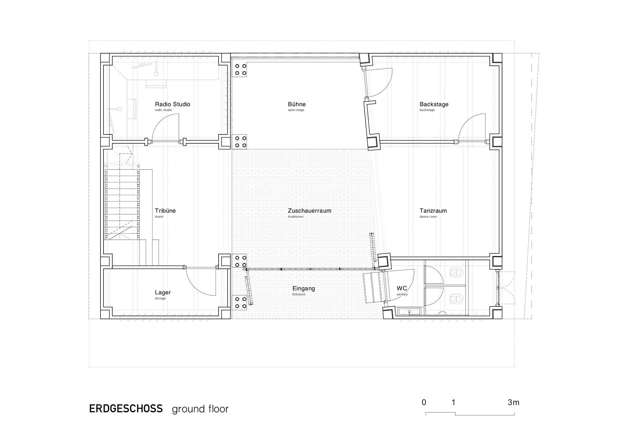
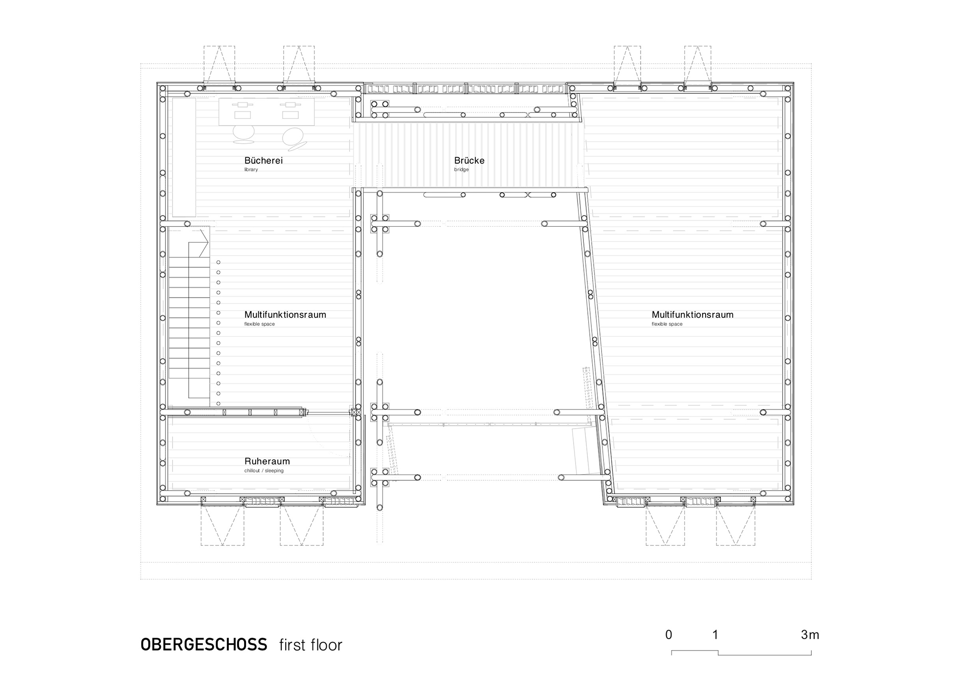
Das Studio Chamanga ist ein disziplinübergreifendes »Design-Build«-Projekt: Ein Entwurfs- und Konstruktionsprojekt im Masterstudiengang der Fakultät für Architektur in Zusammenarbeit mit der Fakultät für Bauingenieurwesen der Hochschule München.
Das Lehrkonzept ermöglicht angehenden Architekten und Bauingenieuren ein Kulturzentrum in Chamanga in Ecuador gemeinschaftlich zu planen und dann mit lokalen Partnern vor Ort selbst zu bauen.
Das Ergebnis ist ein erdbebensicheres, nachhaltiges und mit lokalen Ressourcen errichtetes Gebäude. Eine Kombination aus zwei Ziegel-Beton-Kuben und einer aufgesetzten, luftigen Bambuskonstruktion – realisiert in nur fünf Wochen Bauzeit.
Ausstellung ab 9. Juli
Der gesamte Entwicklungsprozess des Projekts, das Gebäude und die aktuelle Nutzung werden in der Studio Chamanga – Research Design Build Ausstellung vom 9. bis 28. Juli 2018 öffentlich präsentiert. Die Eröffnung findet am 9. Juli 2018 ab 19.00 Uhr in der Aula der Hochschule München, Karlstraße 6, statt.
Darüber hinaus gibt es Begleitveranstaltungen wie Führungen am 12. und 19. Juli 2018 jeweils 18.00 Uhr und eine Finissage am 27. Juli 2018 mit der Buchpräsentation zum Projekt. Die Termine der Diskussionsrunden sind unter https://www.ar.hm.edu/ veröffentlicht.
Buchtipp: »Design-Build«-Projekte
»Design-Build«-Projekte, wie das Studio Chamanga gewinnen in der Architekturlehre zunehmend an Bedeutung. Passend dazu veröffentlichte die Edition DETAIL dieses Jahr das Buch »Bella Vista – Regionale Lösungen für globale Herausforderungen«. Hier wird ein deutsch-bolivianisches Projekt vorgestellt, das auf dem »Design-Build«-Lehrkonzept beruht. Eine interdisziplinäre Zusammenarbeit des Fachgebiets Entwerfen und Baukonstruktion der TU Berlin und der NGO Fundación Cristo Vive Bolivia. Ergebnis ist der Bau einer Landwirtschaftsschule für das Dorf Bella Vista in Bolivien.
Praxisprojekt
Das Studio Chamanga ist ein disziplinübergreifendes »Design-Build«-Projekt: Ein Entwurfs- und Konstruktionsprojekt im Masterstudiengang der Fakultät für Architektur in Zusammenarbeit mit der Fakultät für Bauingenieurwesen der Hochschule München.
Das Lehrkonzept ermöglicht angehenden Architekten und Bauingenieuren ein Kulturzentrum in Chamanga in Ecuador gemeinschaftlich zu planen und dann mit lokalen Partnern vor Ort selbst zu bauen.
Das Ergebnis ist ein erdbebensicheres, nachhaltiges und mit lokalen Ressourcen errichtetes Gebäude. Eine Kombination aus zwei Ziegel-Beton-Kuben und einer aufgesetzten, luftigen Bambuskonstruktion – realisiert in nur fünf Wochen Bauzeit.
Ausstellung ab 9. Juli
Der gesamte Entwicklungsprozess des Projekts, das Gebäude und die aktuelle Nutzung werden in der Studio Chamanga – Research Design Build Ausstellung vom 9. bis 28. Juli 2018 öffentlich präsentiert. Die Eröffnung findet am 9. Juli 2018 ab 19.00 Uhr in der Aula der Hochschule München, Karlstraße 6, statt.
Darüber hinaus gibt es Begleitveranstaltungen wie Führungen am 12. und 19. Juli 2018 jeweils 18.00 Uhr und eine Finissage am 27. Juli 2018 mit der Buchpräsentation zum Projekt. Die Termine der Diskussionsrunden sind unter https://www.ar.hm.edu/ veröffentlicht.
Buchtipp: »Design-Build«-Projekte»Design-Build«-Projekte, wie das Studio Chamanga gewinnen in der Architekturlehre zunehmend an Bedeutung. Passend dazu veröffentlichte die Edition DETAIL dieses Jahr das Buch »Bella Vista – Regionale Lösungen für globale Herausforderungen«. Hier wird ein deutsch-bolivianisches Projekt vorgestellt, das auf dem »Design-Build«-Lehrkonzept beruht. Eine interdisziplinäre Zusammenarbeit des Fachgebiets Entwerfen und Baukonstruktion der TU Berlin und der NGO Fundación Cristo Vive Bolivia. Ergebnis ist der Bau einer Landwirtschaftsschule für das Dorf Bella Vista in Bolivien.
Begleitveranstaltungen:
Führungen: 12. und 19. Juli 2018 jeweils 18.00 Uhr
Finissage: 27. Juli.2018 mit Buchpräsentation
Termine der Diskussionsrunden unter https://www.ar.hm.edu/
Weitere Information: fuersten@hm.edu
Führungen: 12. und 19. Juli 2018 jeweils 18.00 Uhr
Finissage: 27. Juli.2018 mit Buchpräsentation
Termine der Diskussionsrunden unter https://www.ar.hm.edu/
Weitere Information: fuersten@hm.edu
Weitere Informationen zum Studio Chamanga Projekt:
Projektleitung: Prof. Ursula Hartig, LB Ursula Schmid, Prof. Dr. Lars Schiemann
Team: 18 Studierende im Masterstudium der Architektur, 3 Studierende im Masterstudium des Bauingenieurwesens
Finanzierung: Mittel der Hochschule München, Fördergelder und private Spenden
Projektleitung: Prof. Ursula Hartig, LB Ursula Schmid, Prof. Dr. Lars Schiemann
Team: 18 Studierende im Masterstudium der Architektur, 3 Studierende im Masterstudium des Bauingenieurwesens
Finanzierung: Mittel der Hochschule München, Fördergelder und private Spenden












