Studium trifft Sandstein: Hochschul-Informationszentrum von Atelier 30 Architekten
Foto: Constantin Meyer Fotografie
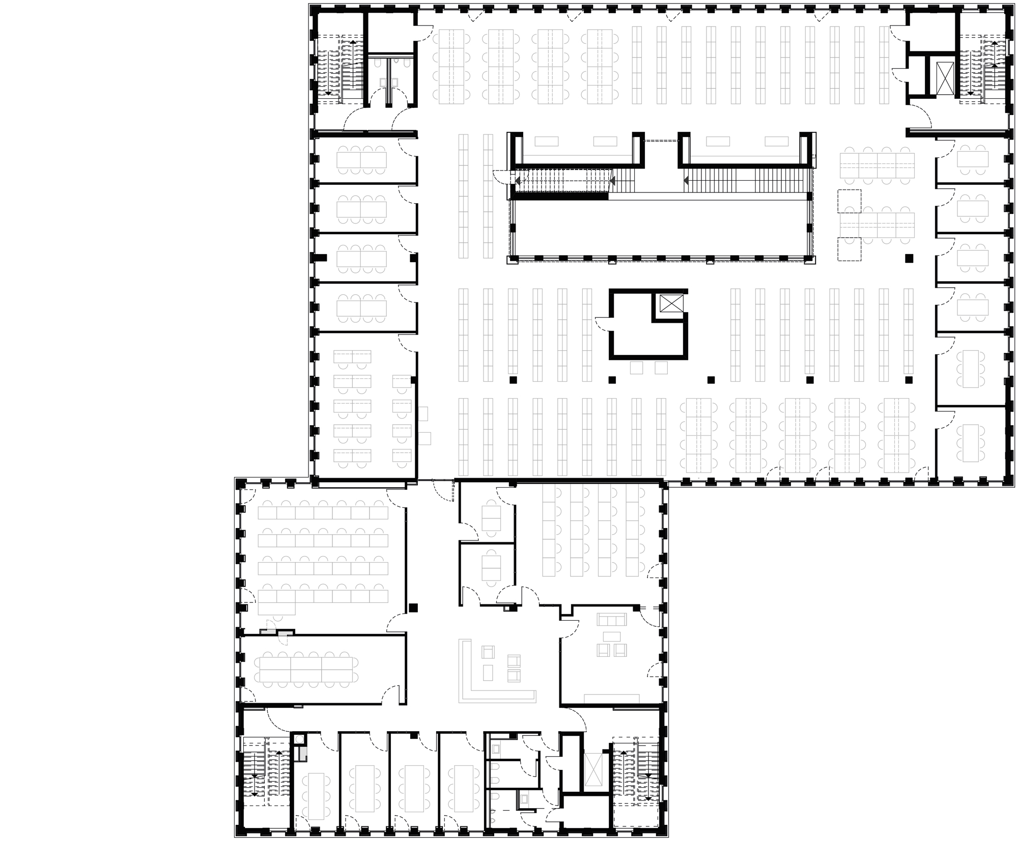
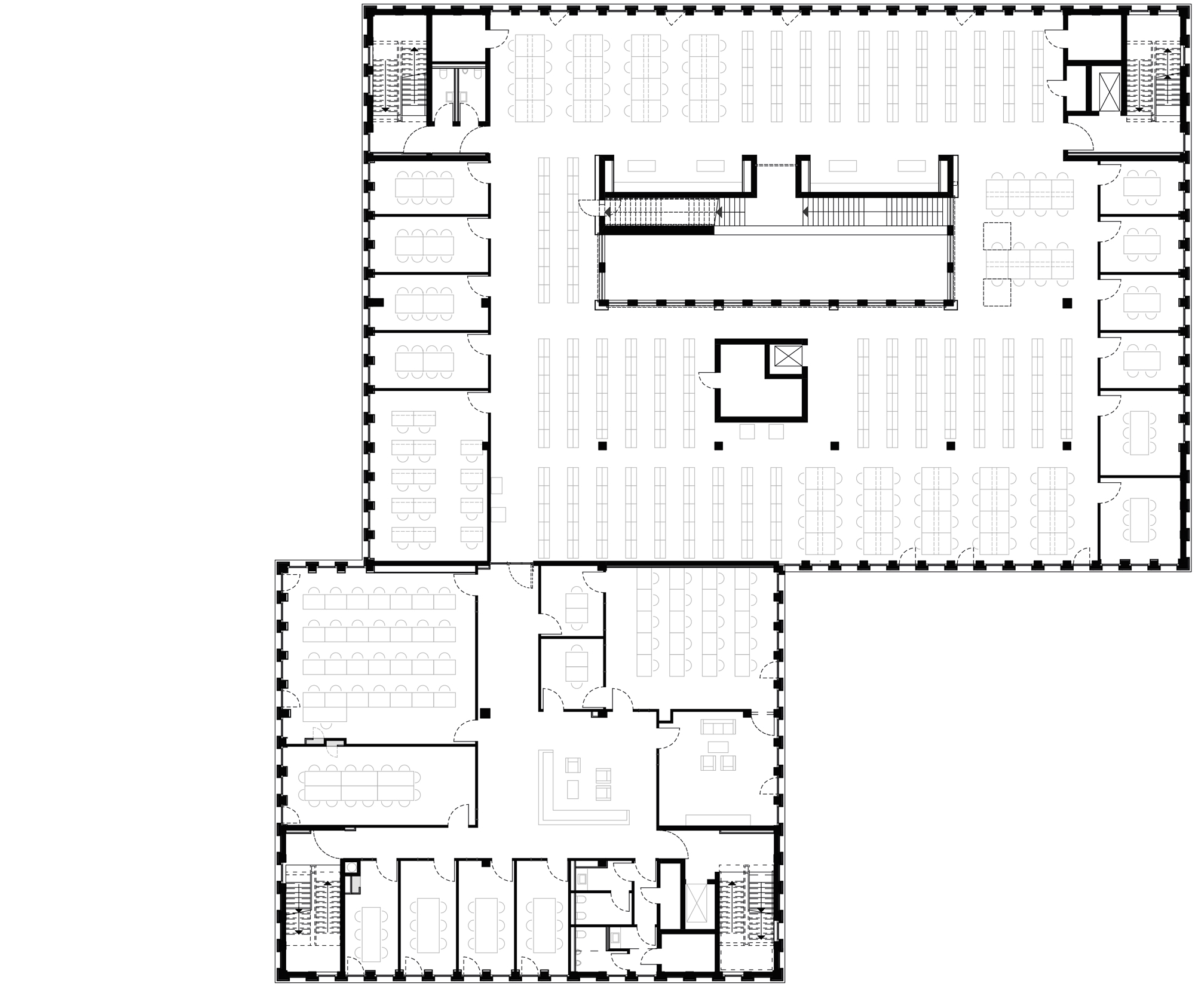
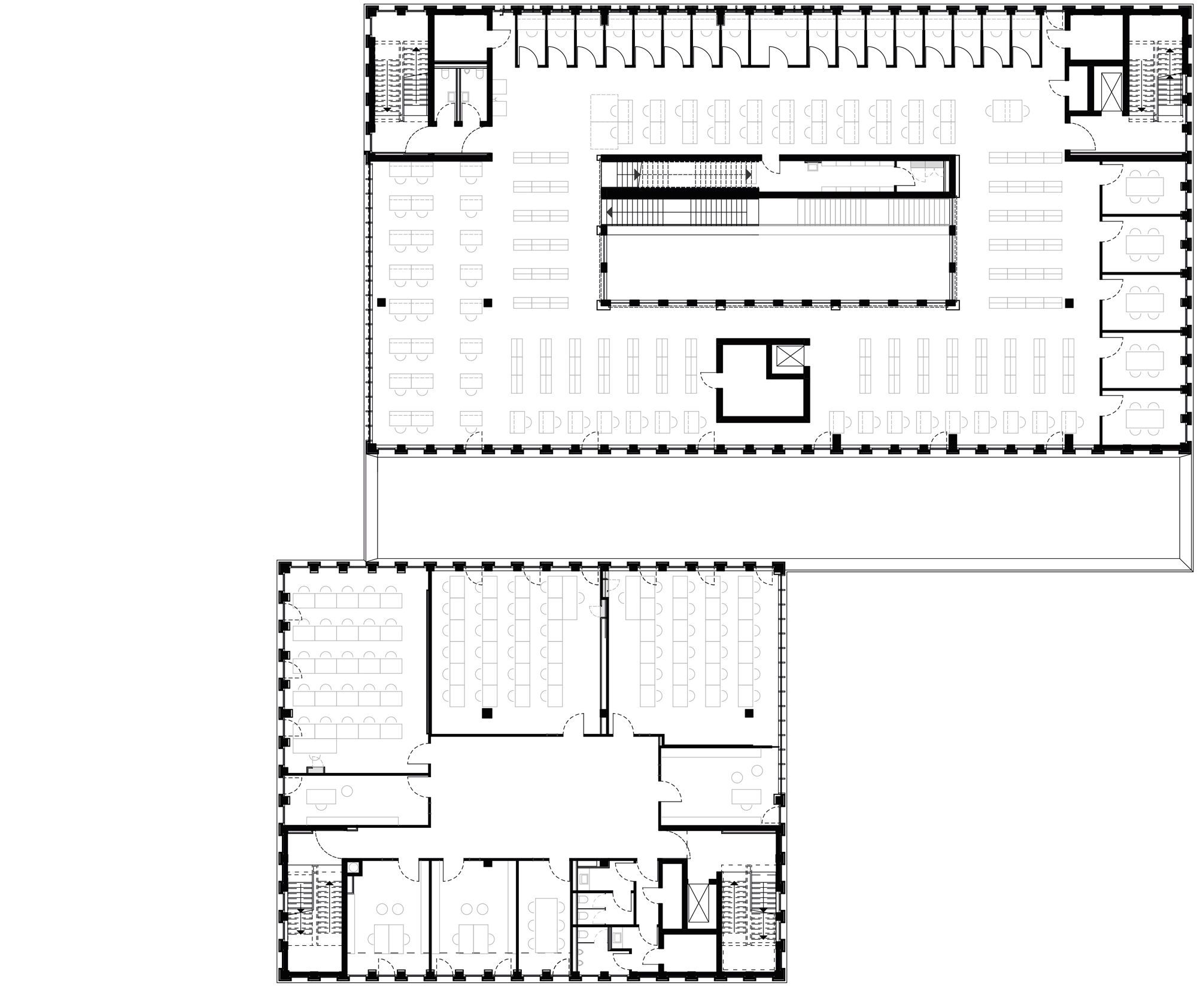
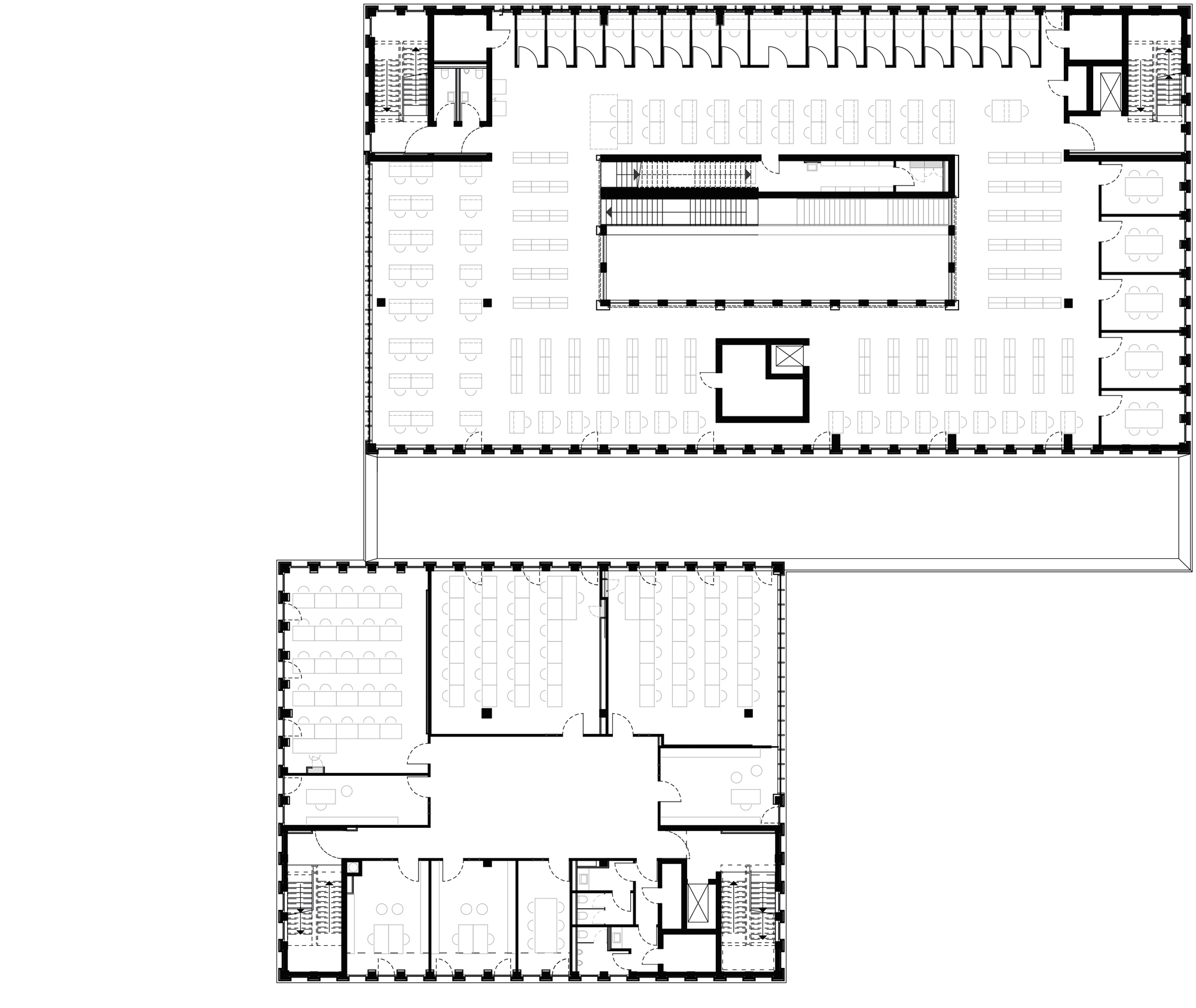
Das Areal der Technischen Hochschule schließt nahe dem Stadtzentrum nördlich der Pegnitz an. Für das Projekt lässt sich Atelier 30 Architekten vom urbanen Kontext inspirieren und kreiert einen Neubau, der Rhythmus und Maßstab der umgebenden Trakte aufnimmt und diese fortführt. Das bewegte Gelände nutzen die Planer und gestalten Sitzstufen, die zum kommunikativen Treffpunkt für die Studierenden werden.
Regionaler Bezug
Das neue Informationszentrum setzt sich aus zwei länglichen Baukörpern zusammen, deren Querseiten zum Ufer ausgerichtet sind. Versetzt zueinander positioniert, verbindet die beiden ein flaches Volumen. Mit der Fassadengestaltung schaffen Atelier 30 Architekten einen regionalen Bezug. Sie verwenden mit rotem Sandstein ein Material, das seit jeher bei vielen Bauten Nürnbergs zum Einsatz kam. Das Raster der Ansichten wirkt zunächst streng, bei näherer Betrachtung zeigt es sich aber nahezu filigran. Auf ihm bilden sich in horizontaler Richtung die Geschossplatten ab. Stelen und Pfeiler sorgen für eine vertikale Gliederung. Dazwischen wechseln sich – je nach Funktion im Inneren – geschlossene Paneele und großflächige Verglasungen ab. Durch dezente Vor- und Rücksprünge erhält die Hülle ihren besonderen Facettenreichtum.
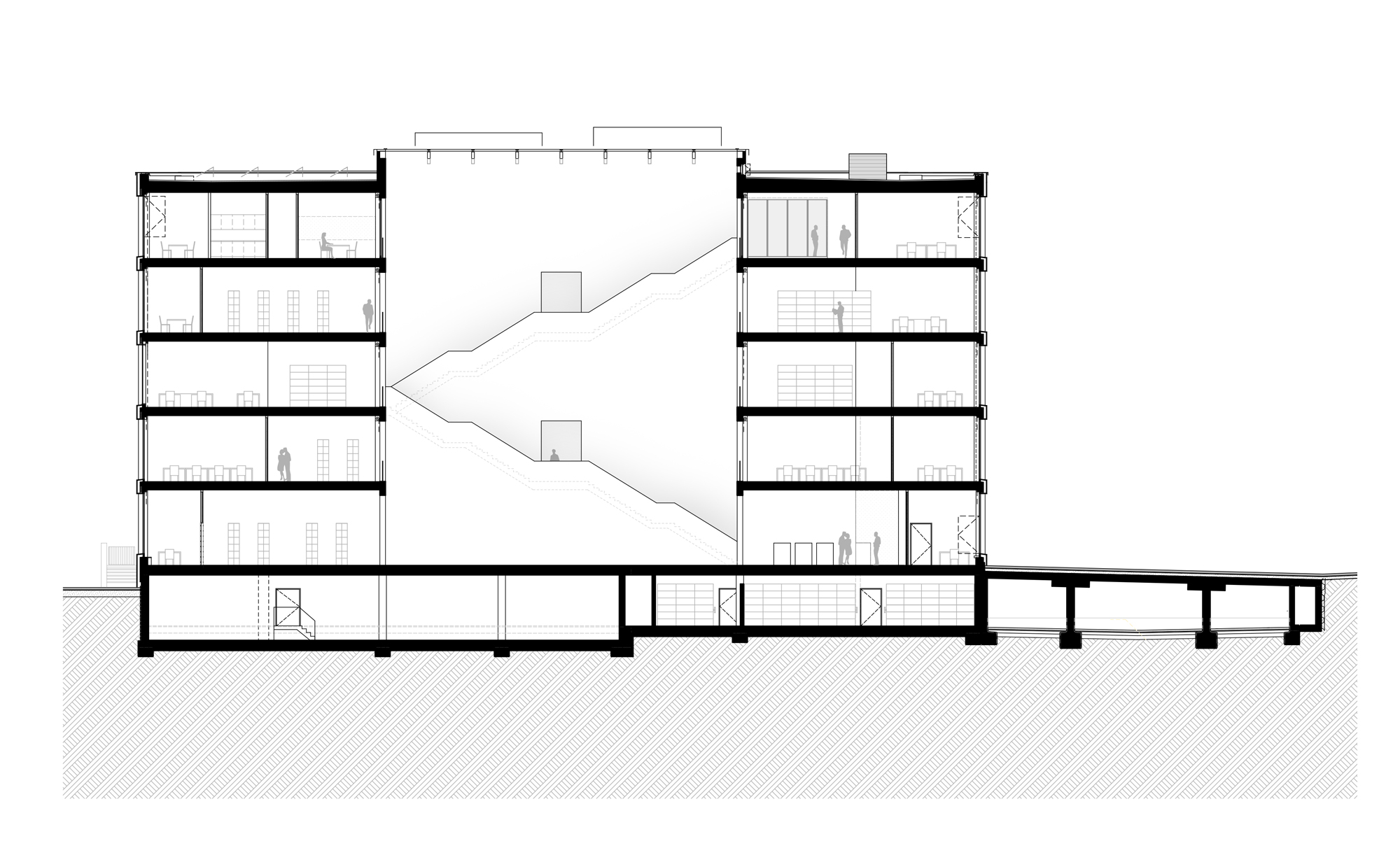
Auffälliges Foyer als Herzstück
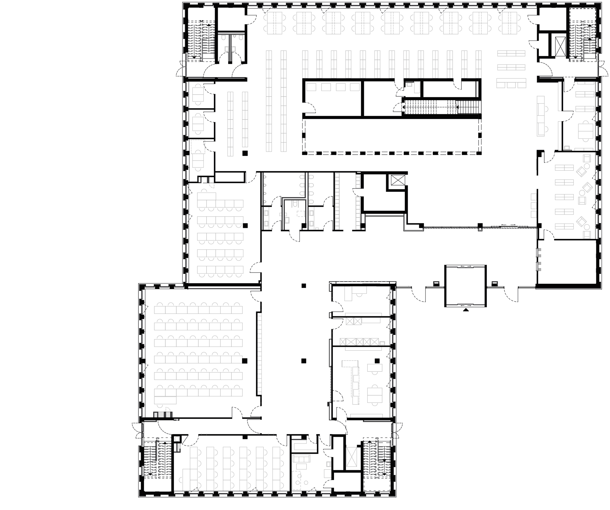
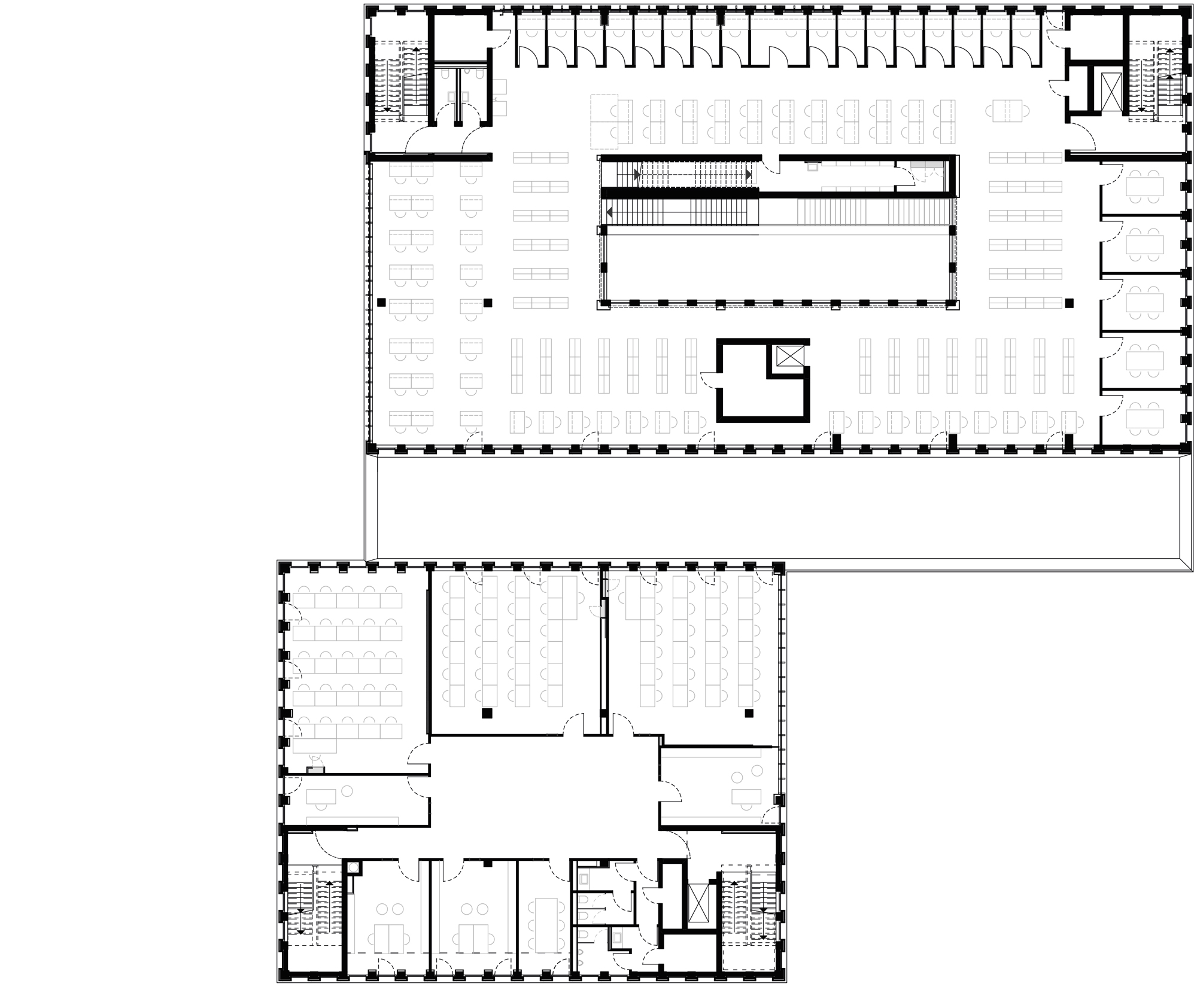
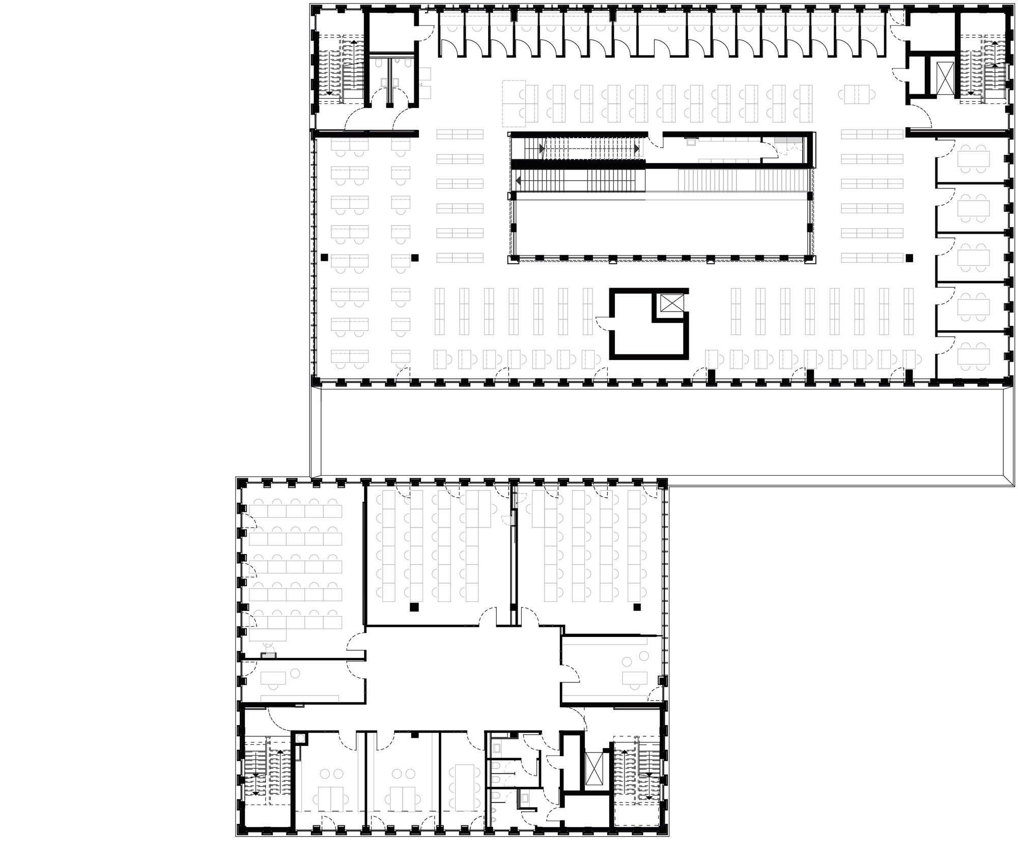
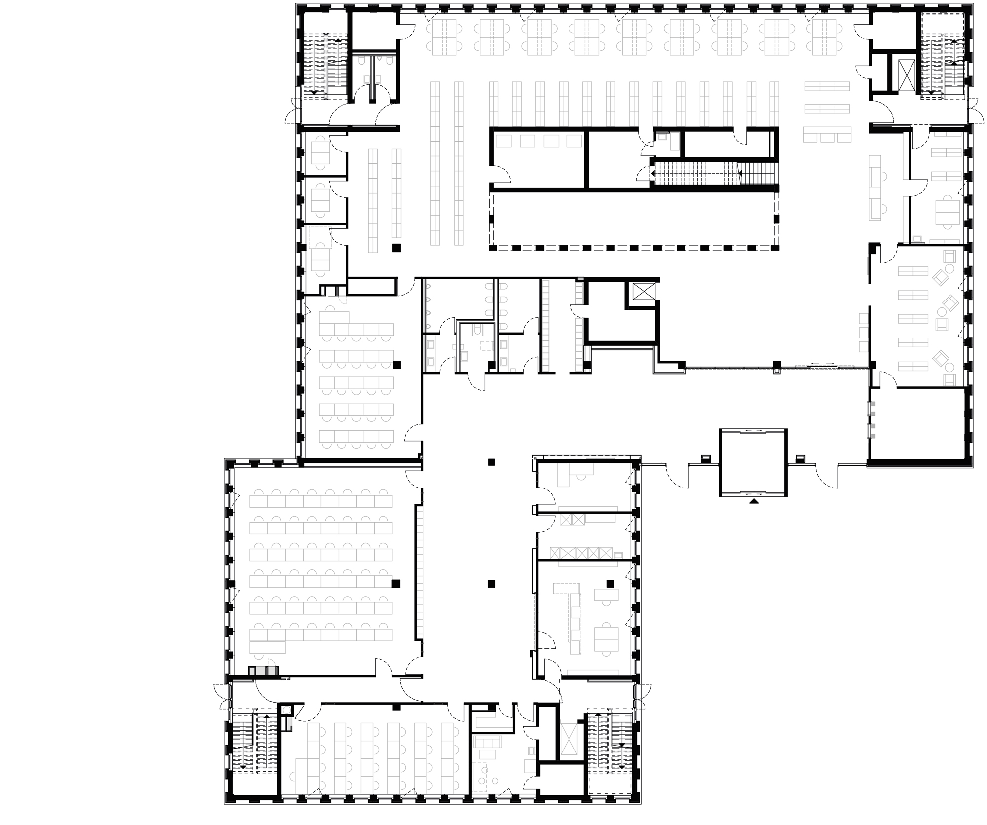
Das Raumprogramm im Inneren teilt sich mit über 12.000 m2 auf die beiden Baukörper auf. Während im niedrigeren Volumen das Rechenzentrum untergebracht ist, befindet sich im größeren die Bibliothek mit hellen Lern- und Lesezonen und dem gemeinsamen Zugang. Vom Vorplatz, den der Neubau am Campusgelände der Fachhochschule aufspannt, werden beide Gebäudeteile erschlossen. Wie ein riesiger Innenhof öffnet sich hier ein Foyer über sämtliche Geschosse zu einem Oberlicht hin. Es wird von einer großen Treppe seitlich eingefasst und von den angrenzenden Räumen überblickt. In sandgestrahltem Sichtbeton ausgeführt, machen die Architekten und Architektinnen von Atelier 30 den auffälligen Bereich zum Herzstück des neuen Informationszentrums.
Weitere Informationen:
BGF: 12.262,88 m²
Baukosten KG 200-700: 40,70 Mio € brutto
Rohbau: Mickan General-Bau-Gesellschaft
Natursteinarbeiten/ Fassade: Czapla Solutions


















