Subtil beschwingt: Bürohaus in Wien
Foto: Christoph Panzer
Der Neubau rückt an die Stelle eines Bestandsgebäudes aus dem Jahre 1980 inmitten der österreichischen Hauptstadt. Bei seiner Gestaltung orientieren sich die Architekten an der umgebenden Bebauung und übersetzen diese in eine zeitgemäße Architektursprache. Das Ergebnis ist ein kompaktes Volumen mit einem zentralen Lichthof. Von allen Seiten betretbar, nimmt es mit streng gegliederten Ansichten den Rhythmus und die einzelnen Höhen der Nachbarbauten auf. Die Fassade fällt durch eine klare, horizontale Betonung der einzelnen Geschosse und eine mehrschichtige Konstruktion auf, welche ihr eine spannende Tiefe verleiht. Mit einer Prallscheibe außen und zu öffnenden Fenstern an der Innenseite soll die zweischalige Verglasung an historische Kastenfenster erinnern. Edelstahlpaneele in champagnerfarbenen Farbnuancen komplettieren die Hülle des Bürohauses und verleihen ihm je nach Tageszeit und Lichteinfall ein unterschiedliches Äußeres.
Im Bereich der beiden obersten Stockwerke tanzt die Fassade aus der Reihe. Sie weicht von der Geradlinigkeit ab und verleiht dem Neubau trotz seiner Größe Leichtigkeit. Dieser Eindruck entsteht, weil die Ansichten jeweils zur Mitte hin um 2 m weiter nach innen versetzt sind. Auch die hohe Sockelzone hebt sich in ihrem Design von den Geschossen darüber ab. Sie ist von umlaufenden Kolonnaden geprägt und spannt geschützte Eingangsbereiche auf.
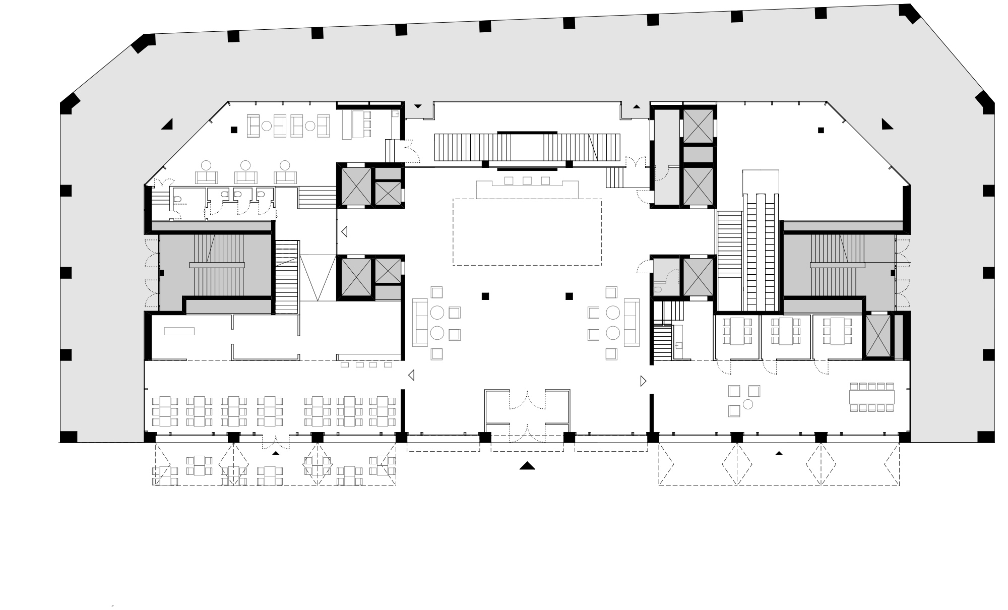
Im Inneren gelangen Nutzer zuerst in das Foyer. Dieses gibt durch ein Glasdach den Blick nach oben in das zentrale Atrium frei. Das Eingangsniveau umfasst großzügige Ladenflächen und Gastronomiebereiche sowie einen öffentlichen Saal und das Kundenzentrum. Von der ersten bis zur sechsten Etage sind Büros untergebracht. Sie ordnen sich, ebenso wie die beiden Erschließungskerne, rund um den Lichthof an und bieten abwechslungsreiche Arbeitsplätze mit flexiblen Grundrissen.
Weitere Informationen:
Interior: Atelier Heiss
Freianlagengestaltung: Lindle + Bukor
Lichtplanung: podpod Design
Statik, Bauphysik: Gmeiner & Haferl




















