// Check if the article Layout ?>
Take a Seat: Revitalisierung eines Firmenbaus von Chybik + Kristof
Foto: Lukas Pelech
Der Entwurf entwickelt sich nach Vorgabe des Bauherrn unter dem Motto: »Billig, im besten Fall gratis.« Auf den ersten Blick erscheint der rechteckige Eingeschosser, mit Außenmaßen von ca. 18 x 30 m, in seiner Geometrie relativ simpel. Erst beim genaueren Hinsehen offenbart sich die schwarze, leicht ornamental anmutende Fassade als eine Konstruktion aus Plastikstühlen. Wie eine Visitenkarte repräsentiert sie nach außen die »MY DVA group«, die sich der Herstellung von Sitzmöbeln jeglicher Art widmet. Die Fassade wird damit unter Aufwendung minimaler finanzieller Mittel zum Corporate Design-Element.
Die Sitzschalen sind in Reihen und gleichermaßen in einem Winkel von 45 Grad auf einer Stahlunterkonstruktion montiert. In der Vertikalen jeweils um die Hälfte zueinander verschoben positioniert, zaubern sie eine dunkle und trotz ihrer Simplizität lebendige Hülle. Die Plastikstühle überzeugen aber nicht nur auf optischer Ebene. Sie trotzen Wetter- und UV-Einwirkungen, lassen sich einfach reinigen und können individuell ausgetauscht werden. Unterbrochen wird die Fassade lediglich durch den Eingangsbereich. Ihn markiert eine ebenfalls schwarze, rechteckige Einfassung, die herausragt und den Besucher ins Gebäude leitet.
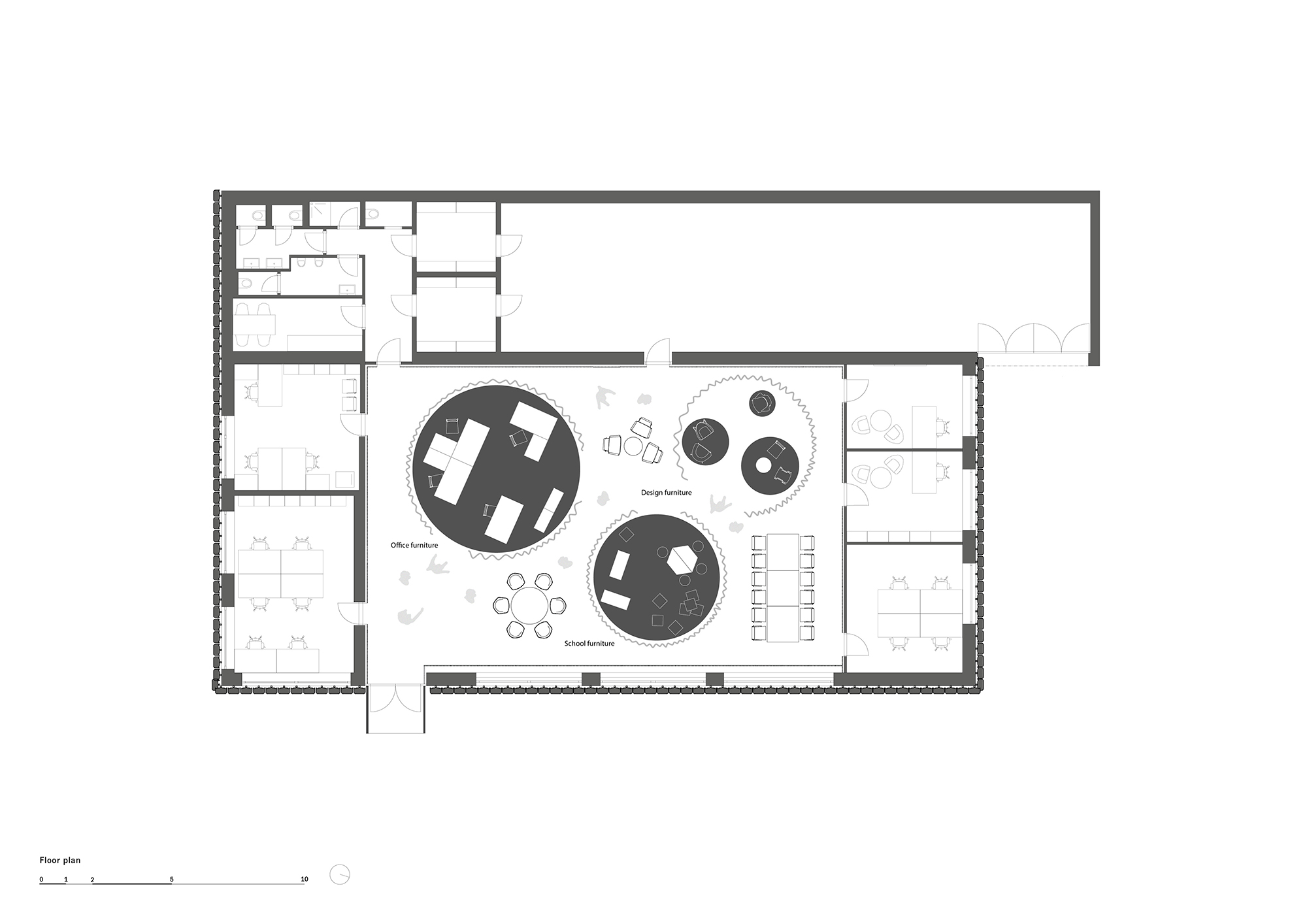
Das Raumprogramm des eingeschossigen Baus organisiert sich rund um den zentralen Ausstellungsraum, der das Herzstück des Inneren bildet. Er schließt direkt an den Eingang an und fasst die angrenzenden administrativen Räume und Büros zusammen. Die gesamte Gestaltung wirkt schlicht: Sichtbetondecken mit offenliegenden Installationen und weißer Estrichboden sorgen für einen rohen Charakter.
Hauptelement des Ausstellungsraums bilden drei kreisförmige Bereiche. Diese sind lediglich durch ihren Bodenbelag, sowie durch leichte weiße Vorhänge, die umlaufend auf feinen schwarzen Leisten von der Decke hängen, abgegrenzt. In unterschiedlichen Größen repräsentieren sie die unterschiedlichen Firmensektoren: Ausstattung für Schule, Büro und Designerstücke. So bietet sich die Möglichkeit, den Raum je nach Bedarf neu zu zonieren und verschiedene Bereiche abzugrenzen. Aus der großen Fläche wird dadurch abwechselnd eine kleinteilige Ausstellung oder ein Raum für Lesungen, Parties und Produktpräsentationen.
Weitere Informationen:
Team: Ondrej Chybik, Michal Kristof, Victor Cojocaru, Mrtin Holy, Vojtech Kouril, Sarka Kubinova, Ondrej Mundl, Matei Strba
Größe: 550 qm
Größe: 550 qm















