// Check if the article Layout ?>
Tanzen mit Weitblick: Konservatorium in Nantes
Foto: Audrey Cerdan
Für das Konservatorium Nantes und die Akademie der Darstellenden Künste Bretagne-Pays realisierten die Architekten einen scharfkantigen Baukörper, der im Inneren großzügige und lichtdurchflutete Tanz- und Übungssäle bietet.
Auf einem gläsernen Sockel erhebt sich ein kantiger, zweigeschossiger Kubus aus Beton. Großformatige, zweigeschossige Öffnungen durchbrechen die homogene Fassade und geben erste Eindrücke über das Innenleben preis. Der Mittelteil der Südwestfassade ist zusätzlich von einer Fläche aus Backsteinen gegliedert, die von spielerisch angeordneten Fenstern unterteilt wird. Ein vorgelagerter Platz mit Sitzstufen dient als kommunikativer Aufenthaltsbereich und kann mittels Faltschiebeläden mit dem Erdgeschoss zusammengeschaltet werden.
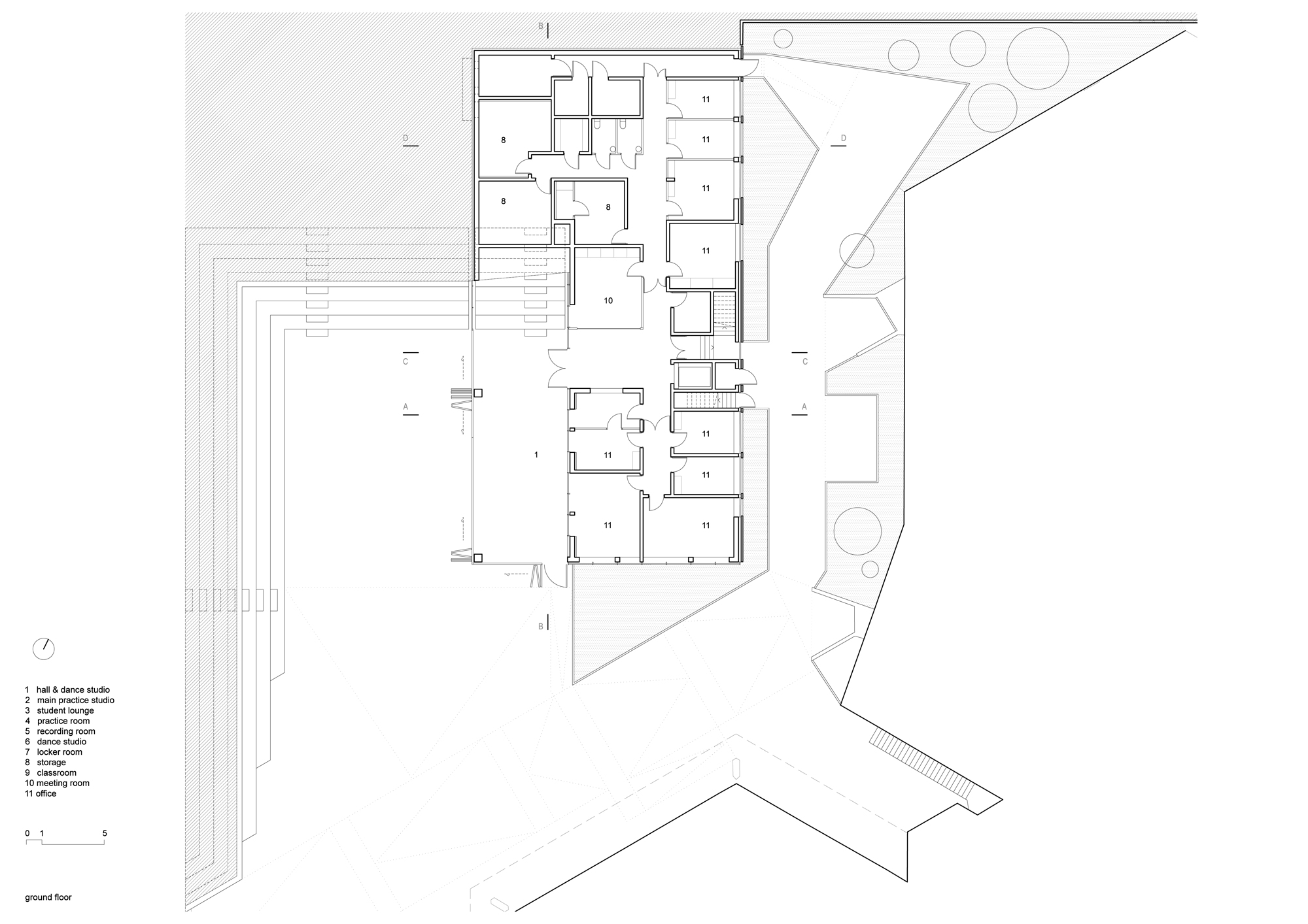
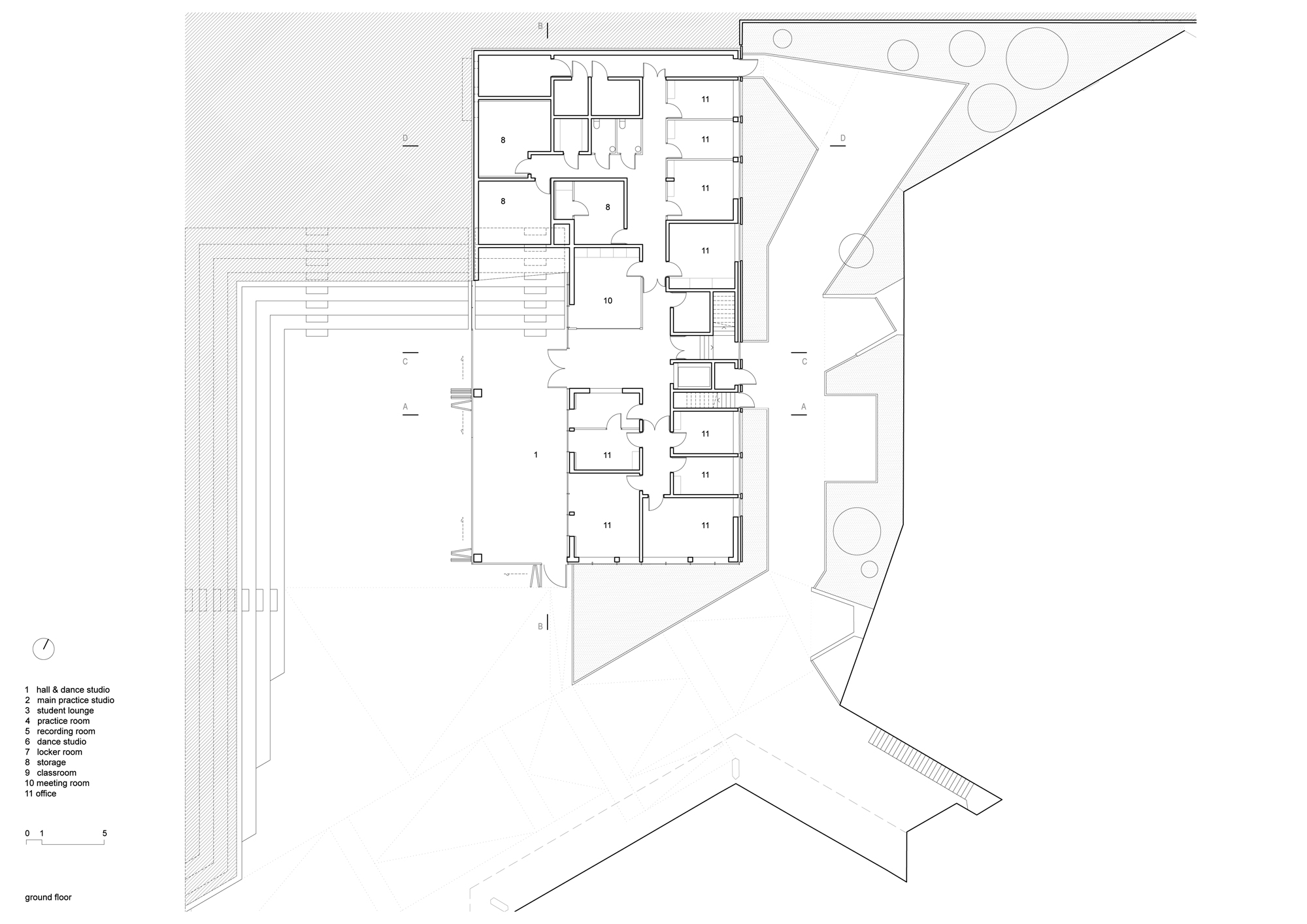
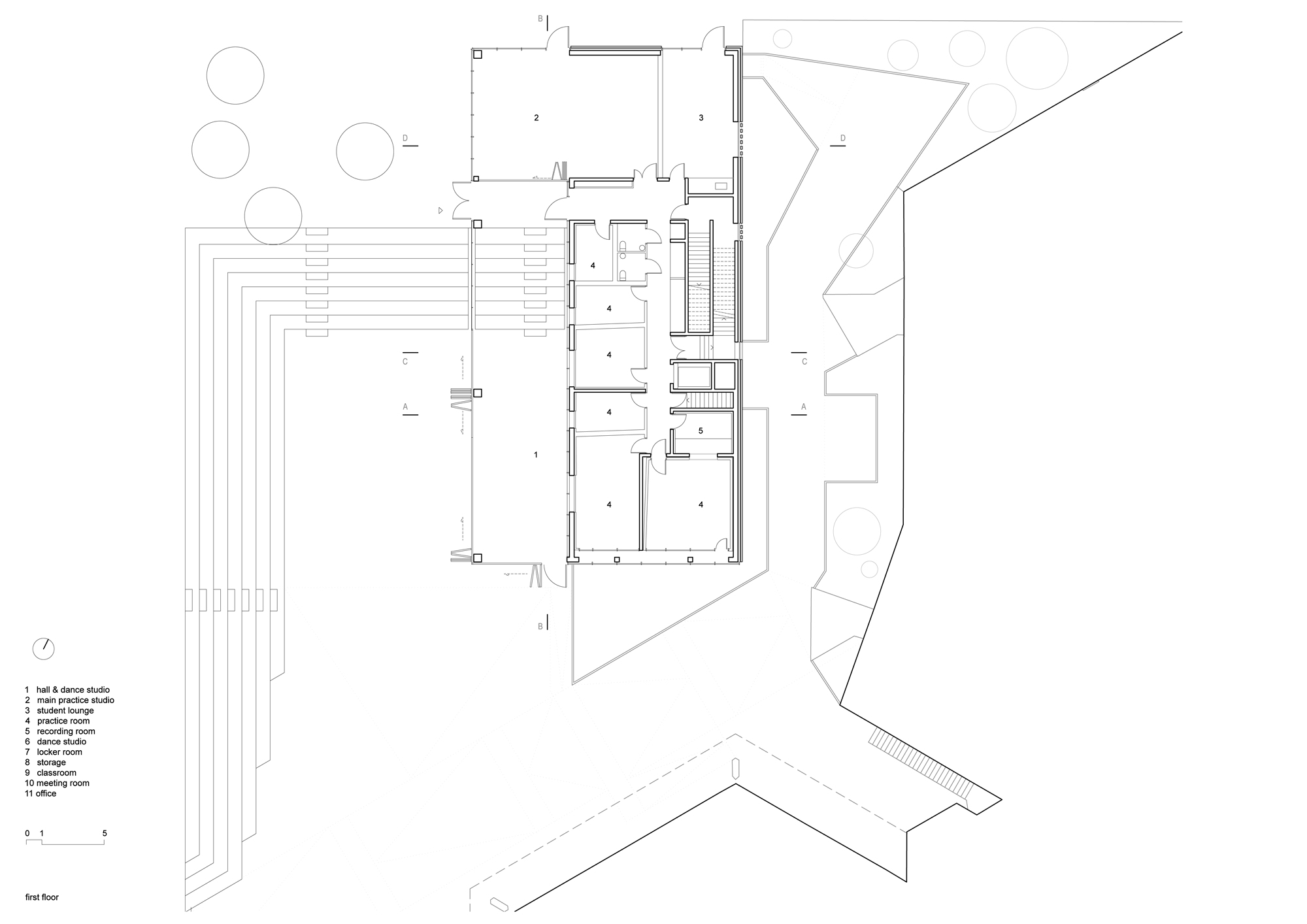
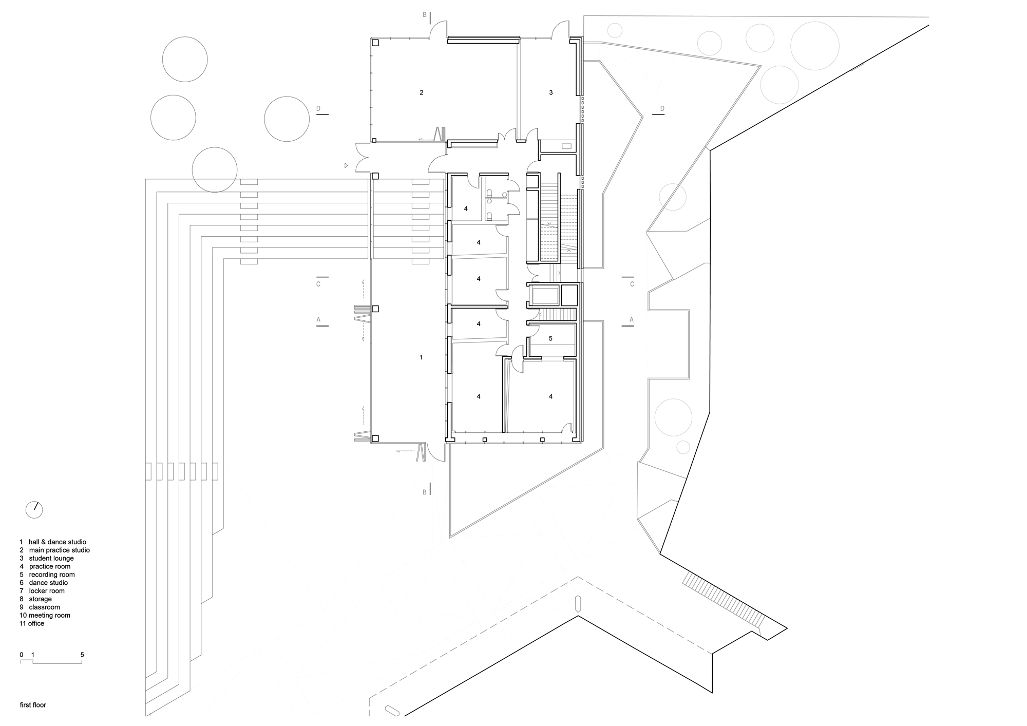
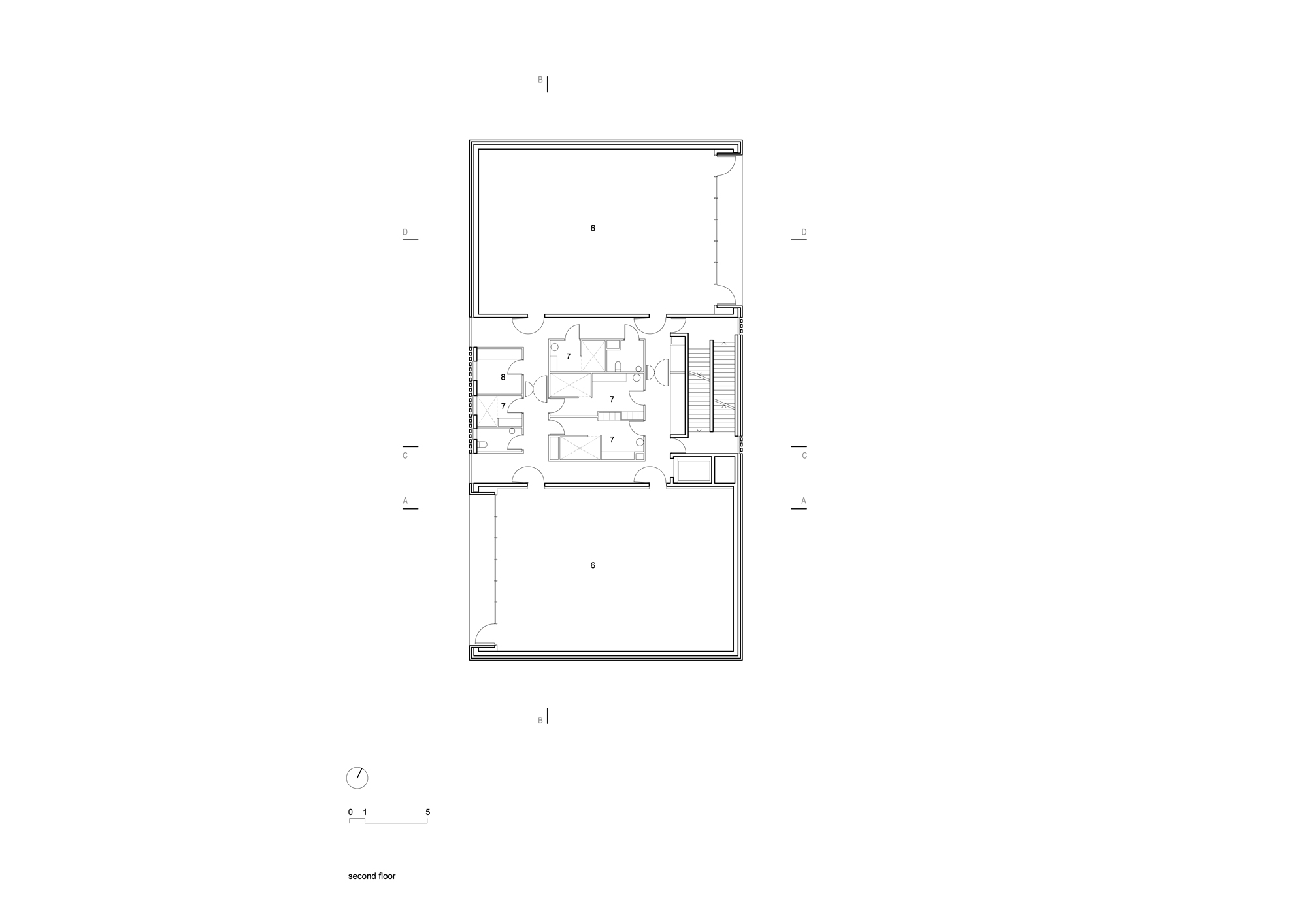
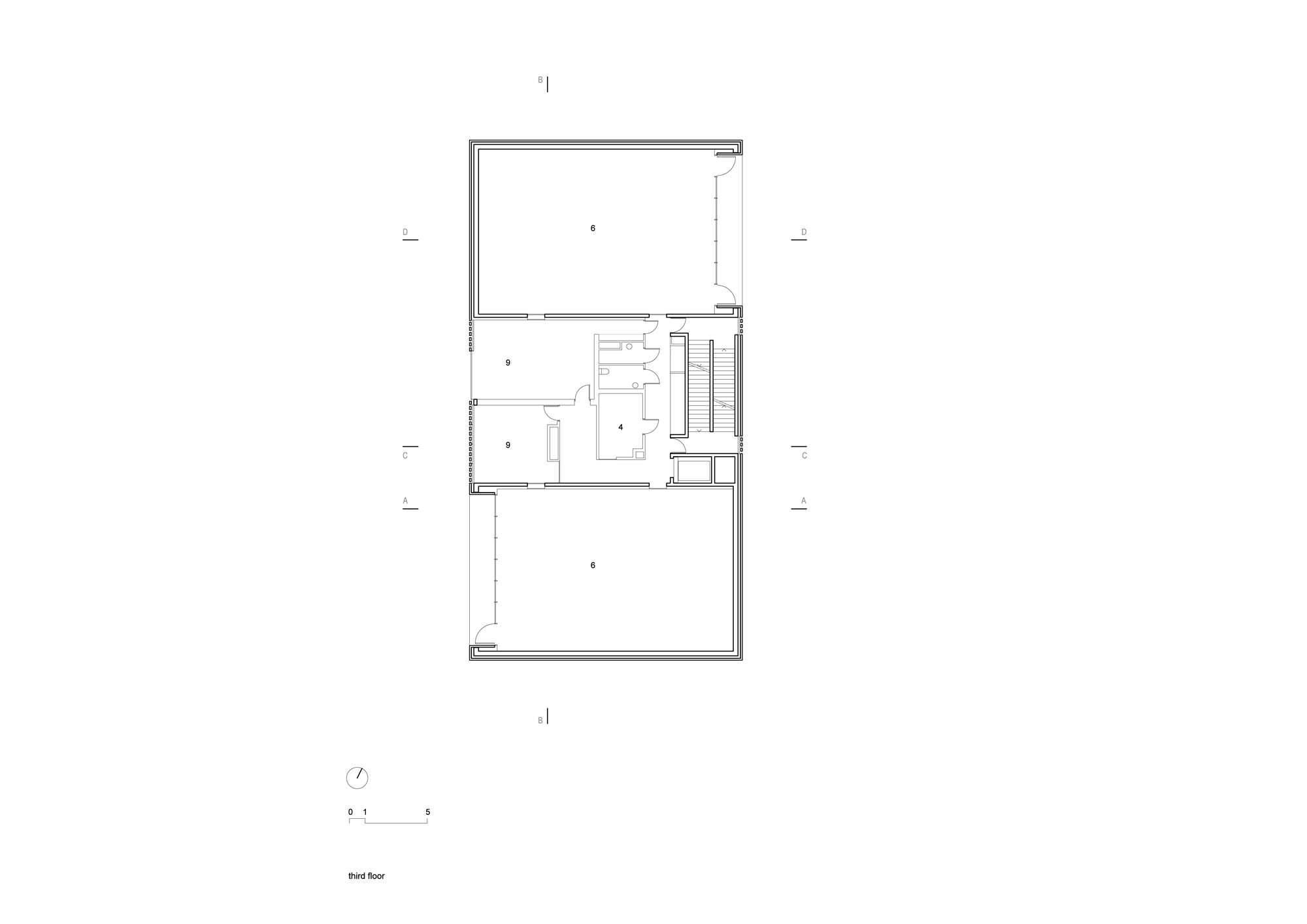
Die unterschiedlichen Fensterformate des Konservatoriums bilden gleichsam ein Abbild seines heterogenen Raumprogramms. Das Innenleben des Baukörpers zeichnet sich durch einen Wechsel von kleinformatigen Büros, Proberäumen, diversen Nebenräumen sowie großzügigen, zweigeschossigen Tanzsälen aus. Jeder Saal öffnet sich mittels großformatiger Öffnungen auf je einer Seite zum Außenraum. Die Fensterflächen bieten neben der Möglichkeit einer natürlichen Lüftung auch weitreichende Ausblicke über die Stadt Nantes. Was von außen wie eine äußerst tiefe Laibung erscheint, erweist sich im Inneren als schmale, vorgelagerte Loggien, die jedem Tanzsaal Austritte nach draußen bieten.
Der Entwurf von RAUM Architekten übersetzt die Genres Tanz, Musik und darstellende Künste in ein modernes und zeitgemäßes Raumkonzept. Der klare Baukörper bildet nicht nur eine selbstbewusste Figur, die sich präzise in seine städtebauliche Umgebung eingliedert. Vor allem das Innere des neuen Konservatoriums bietet den Studenten großzügige und lichtdurchflutete Räumlichkeiten, die zum Proben, Musizieren und Tanzen einladen.
Die unterschiedlichen Fensterformate des Konservatoriums bilden gleichsam ein Abbild seines heterogenen Raumprogramms. Das Innenleben des Baukörpers zeichnet sich durch einen Wechsel von kleinformatigen Büros, Proberäumen, diversen Nebenräumen sowie großzügigen, zweigeschossigen Tanzsälen aus. Jeder Saal öffnet sich mittels großformatiger Öffnungen auf je einer Seite zum Außenraum. Die Fensterflächen bieten neben der Möglichkeit einer natürlichen Lüftung auch weitreichende Ausblicke über die Stadt Nantes. Was von außen wie eine äußerst tiefe Laibung erscheint, erweist sich im Inneren als schmale, vorgelagerte Loggien, die jedem Tanzsaal Austritte nach draußen bieten.
Der Entwurf von RAUM Architekten übersetzt die Genres Tanz, Musik und darstellende Künste in ein modernes und zeitgemäßes Raumkonzept. Der klare Baukörper bildet nicht nur eine selbstbewusste Figur, die sich präzise in seine städtebauliche Umgebung eingliedert. Vor allem das Innere des neuen Konservatoriums bietet den Studenten großzügige und lichtdurchflutete Räumlichkeiten, die zum Proben, Musizieren und Tanzen einladen.





















