// Check if the article Layout ?>
Textilfabrik in Changzhou: Strebewerk zur Dekoration
Foto: Su Shengliang
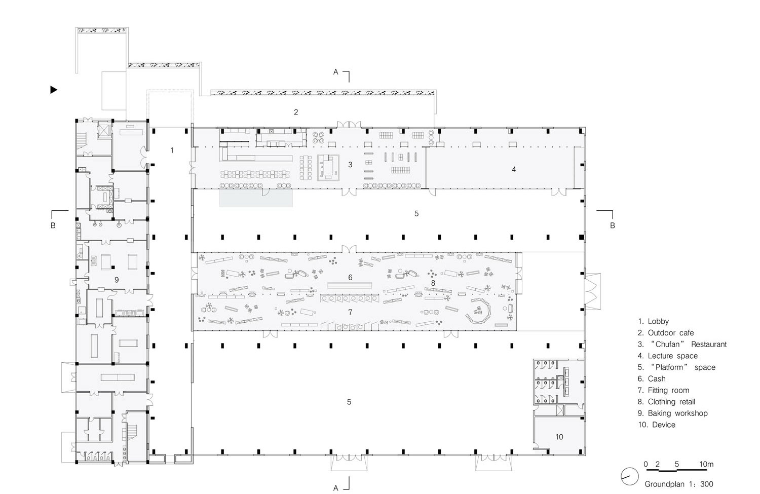
Nicht nur in China setzen Online-Händler verstärkt auf eine reale Entsprechung ihres Geschäfts in Form von Outletstores. Das Portal Tmall (ehem. Taobao Mall) hat in Changzhou eine 6.300 m² große Textilfabrik zum realen »Marktplatz« gemacht. Das Volumen wird neu gegliedert durch zwei eingestellte, parallel angeordnete Pavillonstrukturen von jeweils rd. 50 m Länge. Eine davon besteht aus Stahl, die andere aus Holz: Es ist ein klassisches Haus-im-Haus-Prinzip.
Ästhetisierte Dachstühle
Beide adaptieren die Grundprinzipien eines Dachstuhls, bei dem eine Art Pfettenkonstruktion eine abstrahierte Sparrenlage trägt. Formal haben diese Raumfachwerke eine Baldachinfunktion, um die Nutzflächen nach oben zu abschließen. Die Stahlstruktur umhüllt die Verkaufsfläche, das hölzerne Pendant das Restaurant mit Namen »Chufan«. Sowohl die stählerne als auch die hölzerne Konstruktion sind stützenfrei angelegt. Anders als bei einer klassischen Dachstuhlkonstruktion wird das Gewicht der eingestellten Satteldachflächen nicht über Stützen senkrecht nach unten abgetragen, sondern über Wechsel aus Holz und Diagonalstreben aus Stahl zu den Seitenwänden beider Pavillonbauten geleitet. Die ankommenden Massen sind nicht zu vernachlässigen, da die Interior-Dachschrägen mit Glasscheiben belegt sind. Es handelt sich zwar um denselben Innenraum, ein schweres Isolierglas ist nicht erforderlich, jedoch erzwingt die Überkopfverglasung die Verwendung von Verbundsicherheitsglas (VSG). Gut erkennbar ist die erhöhte Scheibenstärke an den breiteren Fensterdichtungen.
Baustoffadäquate Konstruktion
Bewusst haben die Architekten die konstruktiven Materialvorteile genutzt. Die Stahlkonstruktion arbeitet mit lang gestreckten, auf Zug ausgelegten Diagonalstreben, das hölzerne Pendant verteilt die ankommenden Kräfte auf vertikale und horizontale Druckstäbe. Sie sind so angelegt sind, dass sie ohne eingespannte Ecken auskommen - also weitgehend biegemomentfrei.
Kontrast und Außenwirkung
In Ergänzung zu den beiden Strebewerken wurden auch die Lüftungskanäle grün angelegt und einer markant diagonalen Anordnung montiert. Dieses zweite räumliche Gestaltungselement kontrastiert die beiden Pavillonbauten. Umgeben sind die internen Pavillonstrukturen von einer zeitgemäßen Neugestaltung der ehemaligen Fabrikfassade. Ein modern angelegter Risalit wurde vor diese gestellt, er markiert den neuen Haupteingang.
Ästhetisierte Dachstühle
Beide adaptieren die Grundprinzipien eines Dachstuhls, bei dem eine Art Pfettenkonstruktion eine abstrahierte Sparrenlage trägt. Formal haben diese Raumfachwerke eine Baldachinfunktion, um die Nutzflächen nach oben zu abschließen. Die Stahlstruktur umhüllt die Verkaufsfläche, das hölzerne Pendant das Restaurant mit Namen »Chufan«. Sowohl die stählerne als auch die hölzerne Konstruktion sind stützenfrei angelegt. Anders als bei einer klassischen Dachstuhlkonstruktion wird das Gewicht der eingestellten Satteldachflächen nicht über Stützen senkrecht nach unten abgetragen, sondern über Wechsel aus Holz und Diagonalstreben aus Stahl zu den Seitenwänden beider Pavillonbauten geleitet. Die ankommenden Massen sind nicht zu vernachlässigen, da die Interior-Dachschrägen mit Glasscheiben belegt sind. Es handelt sich zwar um denselben Innenraum, ein schweres Isolierglas ist nicht erforderlich, jedoch erzwingt die Überkopfverglasung die Verwendung von Verbundsicherheitsglas (VSG). Gut erkennbar ist die erhöhte Scheibenstärke an den breiteren Fensterdichtungen.
Baustoffadäquate Konstruktion
Bewusst haben die Architekten die konstruktiven Materialvorteile genutzt. Die Stahlkonstruktion arbeitet mit lang gestreckten, auf Zug ausgelegten Diagonalstreben, das hölzerne Pendant verteilt die ankommenden Kräfte auf vertikale und horizontale Druckstäbe. Sie sind so angelegt sind, dass sie ohne eingespannte Ecken auskommen - also weitgehend biegemomentfrei.
Kontrast und Außenwirkung
In Ergänzung zu den beiden Strebewerken wurden auch die Lüftungskanäle grün angelegt und einer markant diagonalen Anordnung montiert. Dieses zweite räumliche Gestaltungselement kontrastiert die beiden Pavillonbauten. Umgeben sind die internen Pavillonstrukturen von einer zeitgemäßen Neugestaltung der ehemaligen Fabrikfassade. Ein modern angelegter Risalit wurde vor diese gestellt, er markiert den neuen Haupteingang.
Weitere Informationen:
TGA: Xueyuan Jiao, Yang Cao, Renjie Lu, Jian Shen
Baufirma: Changzhou Haige Decoration Engineering Co., Ltd.
Schreinerarbeiten: Shanghai SKF Builder
TGA: Xueyuan Jiao, Yang Cao, Renjie Lu, Jian Shen
Baufirma: Changzhou Haige Decoration Engineering Co., Ltd.
Schreinerarbeiten: Shanghai SKF Builder


























