Hängende Gärten auf 66 Etagen
The Spiral in New York von BIG
Eine spiralförmige Kaskade begrünter Balkone ist das wesentliche Erkennungzeichen des 66-geschossigen Bürohochhauses. © Laurian Ghinitoiu
Vom Central Park einmal abgesehen sind Grünflächen rar in Manhattan. Architekten und Stadtplanerinnen begannen daher schon früh, sie in drei Dimensionen zu denken. Paradebeispiele dieser neuen Art von Stadtgrün sind etwa der High Line Park von Diller + Scofidio und die künstliche Insel Little Island von Heatherwick Studio.


The Spiral steht unweit des Hudson River im Neubaugebiet Hudon Yards. © Laurian Ghinitoiu
Erster Bürobau von BIG in Manhattan
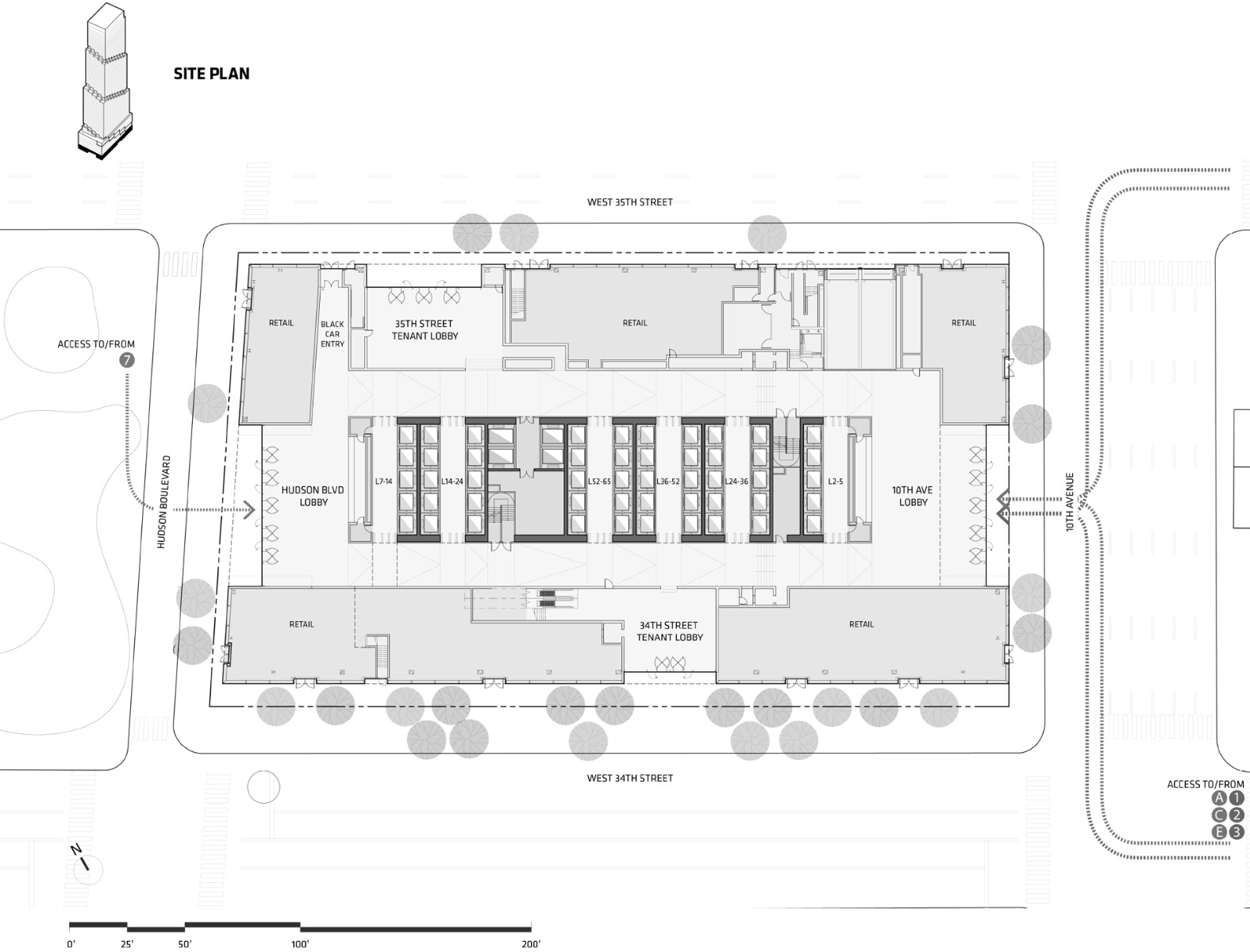
Mit dem Büroturm The Spiral treibt die Bjarke Ingels Group diesen Ansatz nun in neue Höhen. Der 66-geschossige Neubau steht unweit des Nordendes der High Line im Neubaugebiet Hudson Yards. Mit 314 m ist er das höchste Gebäude des Büros bisher.
Park in der dritten Dimension
Die Entwurfsidee ist so einprägsam wie vermarktungsträchtig: Der benachbarte Bella Abzug Park setzt sich am Gebäude gleichsam in die Vertikale fort – in Form von Außenterrassen auf jeder Ebene. Auf diese Weise verjüngt sich das Gebäudevolumen gleichzeitig nach oben hin. Die charakteristische abgetreppte Silhouette klassischer New Yorker Wolkenkratzer – bestes Beispiel: Empire State Building – ist hier gleichsam in eine Diagonalbewegung versetzt. Alle 75 m in der Vertikalen folgt ein weiterer Rücksprung. Gleichzeitig liegen die Terrassen in jeder Etage an einer anderen Stelle.


Die Balkone bieten eine willkommene Abwechslung vom Büroalltag. Ihre Bepflanzung wurde auf die jeweilige Himmelsrichtung, Sonneneinstrahlung und Windstärke abgestimmt. © Laurian Ghinitoiu
Subtile Fassadenvariationen
Begleitet wird die abgetreppte Balkonkaskade von einem Rücksprung in der Fassade und einem Verglasungswechsel: In den Bereichen hinter den Terrassen spiegeln die Scheiben weniger und erlauben mehr Durchsicht als im Rest des Gebäudes. Deutlich ablesbar sind in den Fassaden außerdem die drei Technikbereiche im fünften, im 36.–38. sowie im 65. Obergeschoss. In der obersten Etage wurde außerdem ein Clubhaus für die Mieterinnen und Mieter des Gebäudes eingerichtet. Darunter sind mehrere Banken und Anwaltskanzleien, der Pharmakonzern Pfizer und das Bauunternehmen Turner Construction, das das Gebäude auch selbst errichtet hat.


In der Lobby von The Spiral dominieren Stahlblechverkleidungen in unterschiedlichen Farben. © Tommy Agriodimas
Farbig beschichtete Stahlbleche
Ganz unten mündet die Spirale, die das Gebäude umgibt, in die Eingangshalle. Gleich hinter dem Eingang wird der mächtige Aufzugskern sichtbar, der zur Erschließung des „supertall high-rise“ erforderlich war. Nicht weniger als sieben Aufzuglobbys gibt es, die BIG allesamt in Stahlblech mit unterschiedlich farbigen Beschichtungen gekleidet hat. Nur zehn der Aufzüge fahren indes in die obersten Geschosse durch, weil die Geschossflächen dort immer kleiner werden und weil der Aufzugsverkehr in Hochhäusern nach oben hin generell abnimmt.


Rücksprünge in der verspiegelten Glasfassade begleiten die Balkone und geben ihnen so mehr Tiefe, ohne unnötig vermietbare Bürofläche zu verschenken. © Laurian Ghinitoiu
Genau abgestimmte Pflanzenwahl
Die Bepflanzung der Balkone haben die Architekten genau auf die Himmelsrichtungen, die Höhenlage, die Sonneneinstrahlung und die zu erwartenden Windstärken abgestimmt. Insgesamt bedecken die 66 hängenden Gärten eine Fläche von rund 1200 m² – was viel klingt, aber angesichts der Geschossfläche von insgesamt 260 000 m² auch nicht überbewertet werden sollte. Für die Büroangestellten bieten sie allemal eine attraktive Gelegenheit, Pausen im Freien zu verbringen, ohne dafür den Aufzug Dutzende von Geschossen hinunter zur Straße nehmen zu müssen.
Architektur: Bjarke Ingels Group (BIG), Adamson Associates
Projektentwickler: Tishman Speyer
Standort: 66 Hudson Blvd E, New York, NY 10001 (US)
Tragwerksplanung: WSP Cantor Seinuk
TGA-Planung: Cosentini
Aufzugsplanung: Edgett Williams Consulting Group
Generalunternehmen: Turner Construction


























