Grüner Holz-Hybrid
Timber Office in Hamburg
Das Timber Office in Hamburg ist in Holz-Beton-Hybridbauweis realisiert. © Brüninghoff
Im Hamburger Stadtteil Bahrenfeld Ottensen ist ein neues Bürogebäude, das Timber Office, in Holz-Beton-Hybridbauweise (Cree Buildings-System) entstanden. Geplant haben es die ortsansässigen LH Architekten Landwehr Henke + Partner. Brüninghoff realisierte das sechsgeschossige Gebäude aus vorgefertigten Modulen zwischen Dezember 2019 und August 2022. Fertiggestellt ist es seit Anfang 2023.


Die grüne Keramikfassade greift den kleinteiligen Charakter der umgebenden Backsteinfassaden auf. © Brüninghoff
Großflächige Fensterbänder
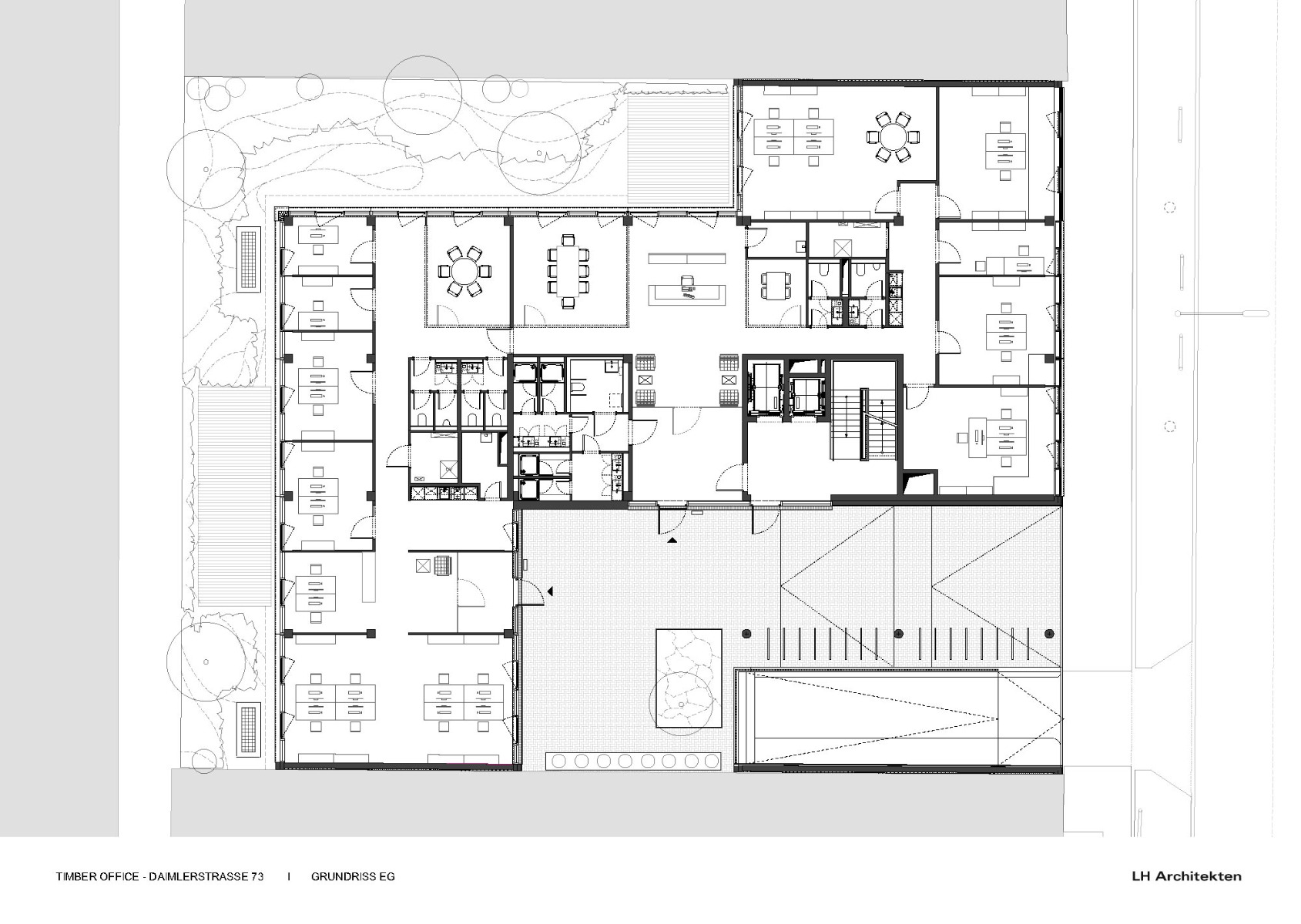
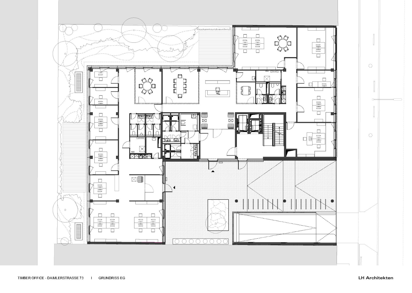
Auf etwa 3500 m² Fläche sind rund 250 Arbeitsplätze untergebracht. Die sechs Stockwerke sind teilweise als Staffelgeschosse ausgebildet. Im Gebäudeinneren sorgen eine lichte Raumhöhe von 3 m und großflächige, isolierverglaste Fensterbänder für Tageslicht.
Holz-Beton-Verbundelemente
Die Geschossdecken bestehen aus Holz-Beton-Verbundelementen mit Abmessungen von rund 1,25 x 6,25 m. Für den vertikalen Lastabtrag sorgen quadratische Betonteil- sowie Holzfassadenstützen aus Brettschichtholz. Die horizontalen Lasten werden über den Treppenhauskern und die Brandwänden aufgenommen.
Hybride Deckenkonstruktion
Die hybride Deckenkonstruktion hat eine Spannweite von 6,25 m. Dies ermöglicht eine flexible Raumaufteilung und -nutzung. Die Elemente bestehen aus einer 12 cm dicken Betonschicht, die mit einer 16 cm starken Brettsperrholzlage verzahnt wird. Die Unterseite bleibt als gestalterisches Element im Innenraum sichtbar. Alle Anforderungen an den Brand- und Schallschutz werden erfüllt.


Die große Spannweite der Deckenelemente ermöglicht eine flexible Raumaufteilung und -nutzung. Credit: Brüninghoff
Grüne Fliesen, grüne Terrassen
Auch die vorgehängten Fassadenelemente sind vorgefertigt. Brüninghoff hat dafür grüne Keramikfliesen von Marazzi im Fischgrätmuster verlegt und diese gemeinsam mit den Tragwerksstützen montiert. Weiteres Grün wächst auf den insgesamt fünf Terrassen, die sich hier zu einer Landschaft formen. Sie sollen zum Durchatmen und zum Gärtnern einladen. HK
Architektur: LH Architekten Landwehr Henke + Partner
Bauherr: AVW Immobilien
Standort: Daimlerstraße 73, Hamburg (DE)
Produktkategorie: Modulbau
Bauunternehmen: Brüninghoff
Produkt: Holz-Hybridbau im Cree Buildings-System









