// Check if the article Layout ?>
Tore in die Utopie: Huawei Entwicklungszentrum von gmp
Foto: Christian Gahl
Im Nordwesten der chinesischen Hauptstadt, vor der idyllischen Silhouette der West Mountains liegt der Zhongguancun Environmental Protection Park. Was sich anhört wie ein Naturschutzgebiet, ist vielmehr ein größtenteils noch grünes Areal, in dem nach und nach Firmengebäude entstehen. Sie eint das Vorhaben, den Umweltschutz sowie erneuerbare Energien weiterzuentwickeln.
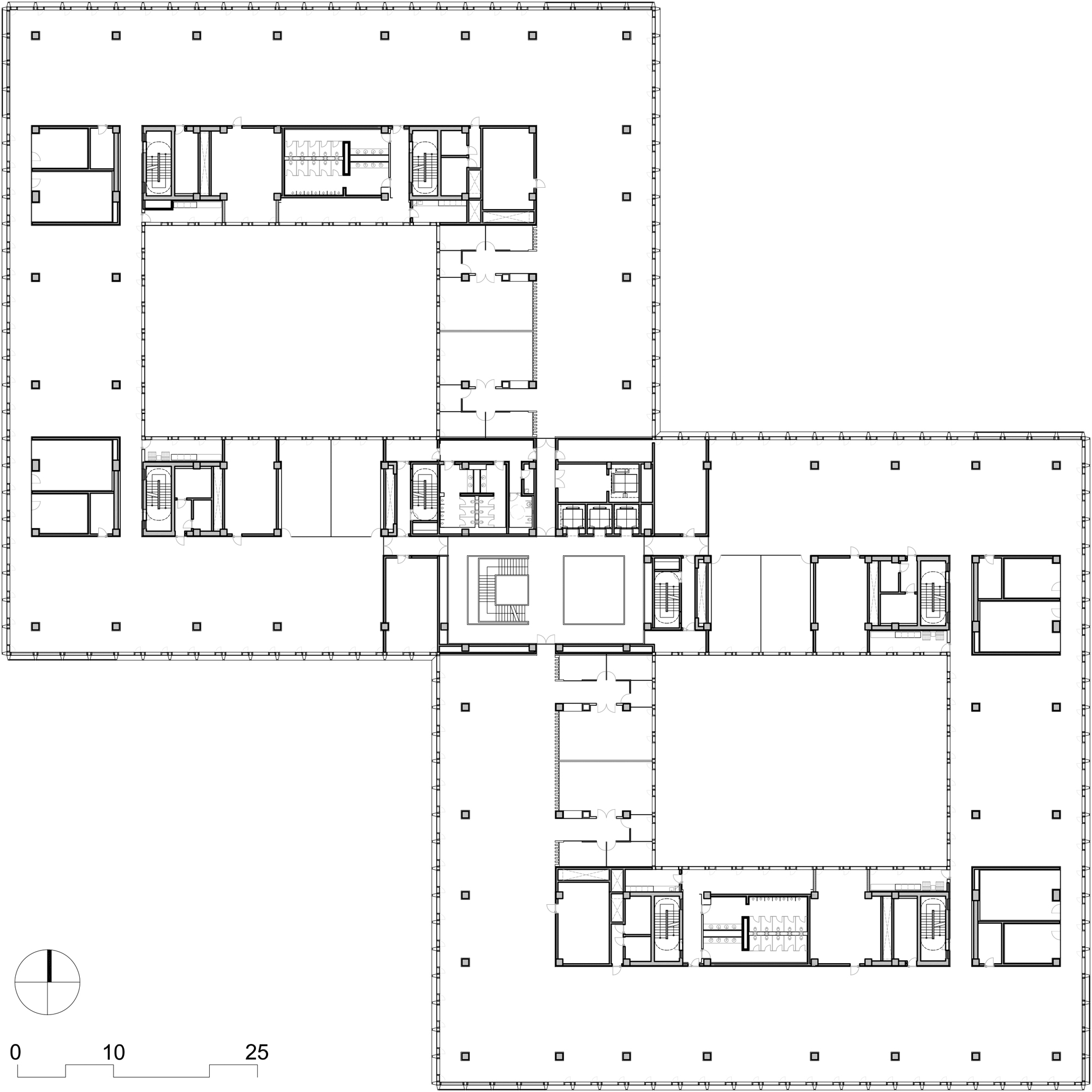
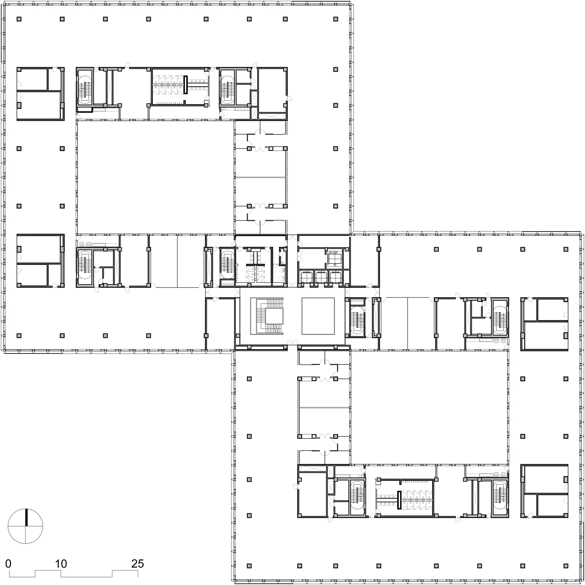
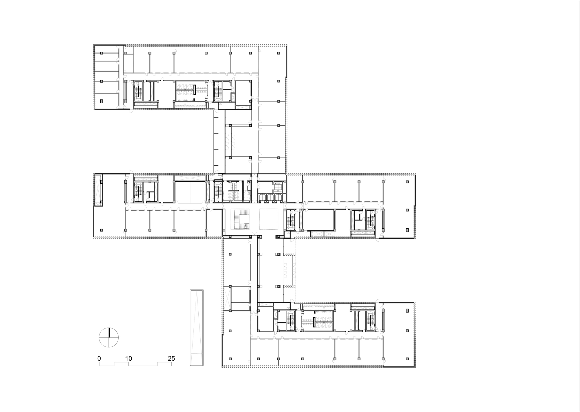
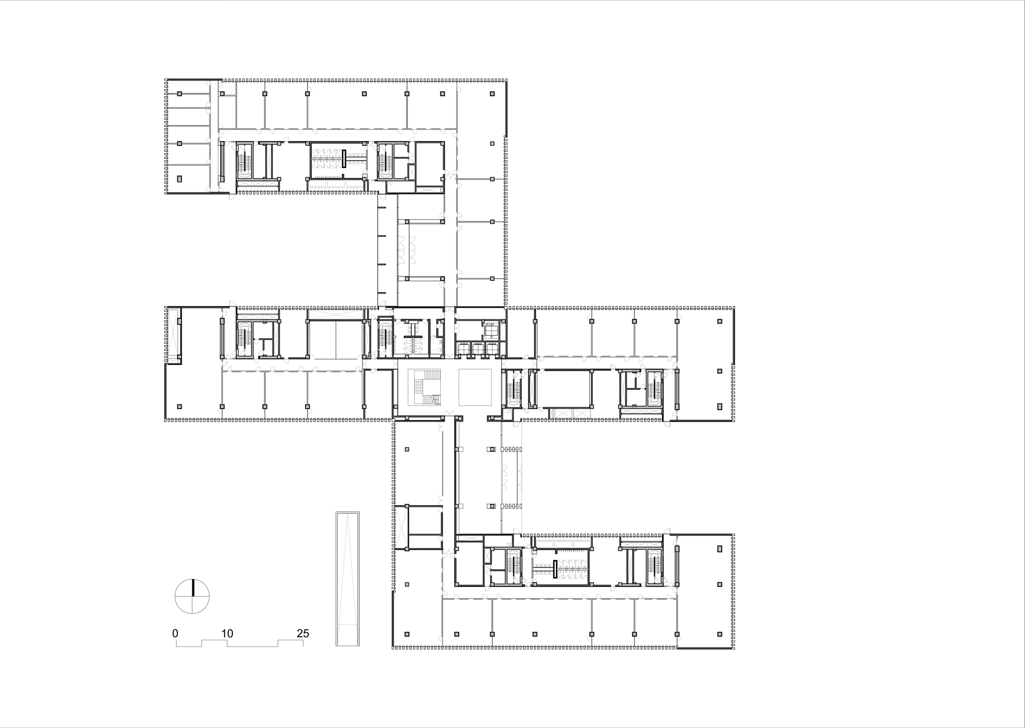
Auf einem länglichen Grundstück in besagtem Park wurde nun der Entwurf von gmp Architekten realisiert. Drei Baukörper in Form einer Acht beherbergen die Arbeitsplätze, während die Kantine in einem Bau mit quadratischem Grundriss untergebracht ist. Vor dem zentral gelegenen Kantinengebäude spannt sich eine weite, helle Erschließungsfläche auf. Einzelne Beete und Gärten, sowie üppige Begrünung um die restlichen drei Baukörper herum verleihen dem Campus einen Parkcharakter. Auch die Innenhöfe der Forschungsbauten sind bepflanzt, sodass nahezu jeder Arbeitsplatz ins Grüne orientiert ist.
Der Autoverkehr wurde auf eine Ringstraße um den Campus herum verbannt. Auf abwechslungsreichen Fußwegen über das Gelände ergeben sich immer wieder Torsituationen mit Blicken in die angelegte, sowie in die natürliche Landschaft.
Die viergeschossigen Forschungs- und Entwicklungsgebäude ruhen auf massiv wirkenden Sockeln mit hellen Natursteinlamellen. Durch eine zurückgesetzte, verglaste Fuge setzten sich die dunkel gehaltenen oberen Geschosse nicht nur farblich davon ab. Im oberen Teil wechseln sich dann Metallpaneele mit Festverglasung und Lüftungsflügeln ab und erzeugen eine klare, vertikale Fassadenstruktur.
Im Gegensatz dazu wirkt die helle Fassade des Kantinenbaus monolithisch und stellt einen klaren Bezug zum weiten Vorplatz her. Unterstützt von vier großen Toren, die den Eingang markieren, wird so die öffentliche und kommunikative Bedeutung des Ortes deutlich.
Weitere Informationen
Entwurf: Meinhard von Gerkan und Stephan Schütz mit Nicolas Pomränke und Stephan Rewolle
Projektleiter: Patrick Pfleiderer, Helga Reimund, Zheng Fei
Team: Stefan Both, Chen Lan, Jan Deml, Christian Dorndorf, Johannes Erdmann, Matthias Fruntke, Guo Fuhui, Bernd Gotthardt, Kuno von Häfen, Peter Jänichen, Clemens Kampermann, Tobias Keyl, Lian Kian, Liuyan, Andreas Maue, Mengxin, Christoph Millotat, Mulyanto, Fidel Reig, Michele Restivo, Katina Roloff, David Schenke, Sabine Stage, Jochen Sültrup, Wang Zheng, Matthias Wiegelmann, Wu Di, Yang Li, Thilo Zehme, Zhou Bin, Elisabeth Gänge, Konstanze Hößel, Hu Shan, Xia Yun, Yuan Rui, Zhang Xiaotong, Zhu Huan Kang Yuqing, Li Jun, Li Yingying, Wang Yue, Li Wenli, Zhao Jiantong, Zhao Ying, Zhu Jianing
Partnerbüro in China: CADG
BGF: 85.355 (oberirdisch), 54.000 (unterirdisch)
Projektleiter: Patrick Pfleiderer, Helga Reimund, Zheng Fei
Team: Stefan Both, Chen Lan, Jan Deml, Christian Dorndorf, Johannes Erdmann, Matthias Fruntke, Guo Fuhui, Bernd Gotthardt, Kuno von Häfen, Peter Jänichen, Clemens Kampermann, Tobias Keyl, Lian Kian, Liuyan, Andreas Maue, Mengxin, Christoph Millotat, Mulyanto, Fidel Reig, Michele Restivo, Katina Roloff, David Schenke, Sabine Stage, Jochen Sültrup, Wang Zheng, Matthias Wiegelmann, Wu Di, Yang Li, Thilo Zehme, Zhou Bin, Elisabeth Gänge, Konstanze Hößel, Hu Shan, Xia Yun, Yuan Rui, Zhang Xiaotong, Zhu Huan Kang Yuqing, Li Jun, Li Yingying, Wang Yue, Li Wenli, Zhao Jiantong, Zhao Ying, Zhu Jianing
Partnerbüro in China: CADG
BGF: 85.355 (oberirdisch), 54.000 (unterirdisch)













