Traditionen auf die Essenz reduziert: Punchbowl Moschee in Sydney
Foto: Deutsches Jugendherbergswerk (DJH), Landesverband Bayern
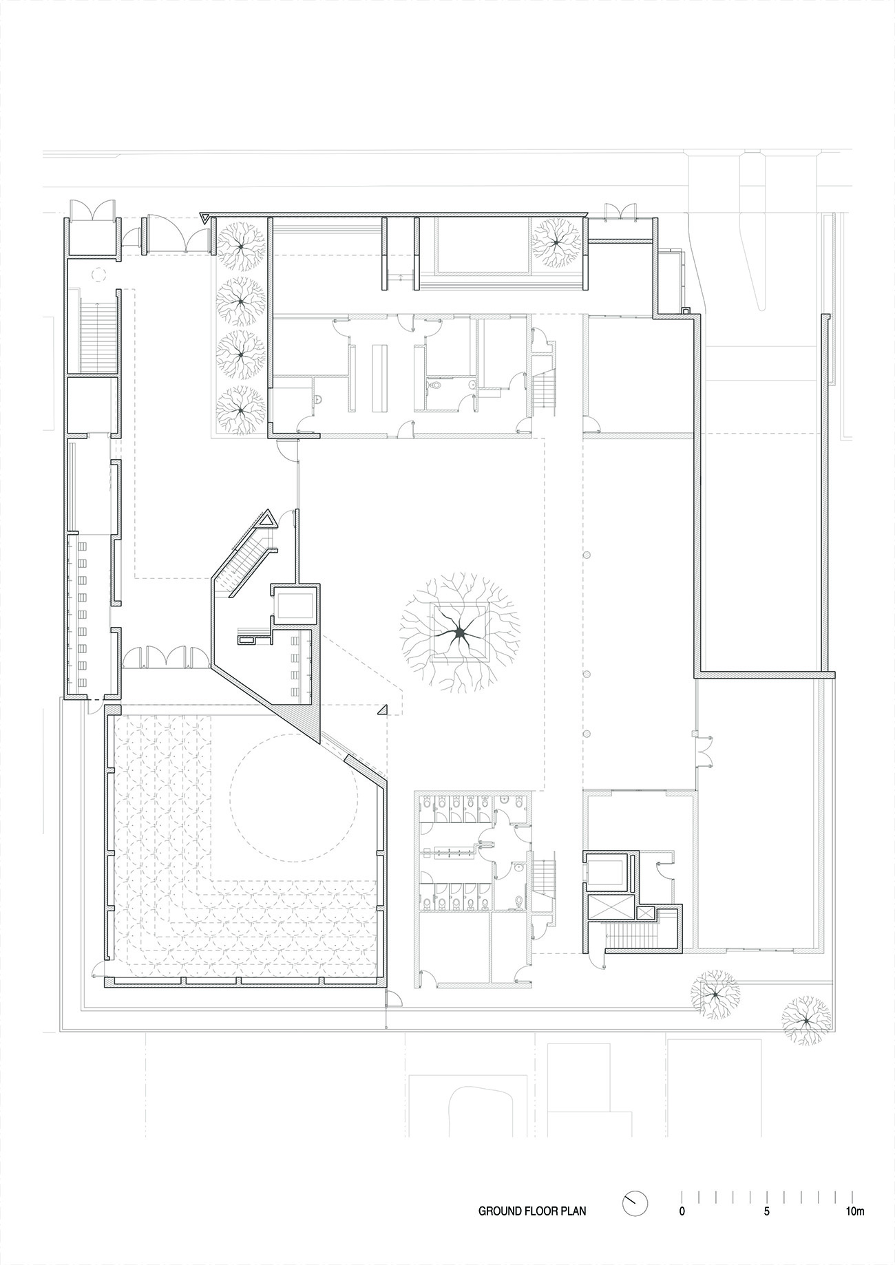
Viel roher Beton fasst die Räume der Punchbowl Moschee. Doch nicht zuletzt durch die dynamische und detailliert ausgeformte Kubatur wirkt das Gebäude in hohem Maße einladend, geradezu anziehend. Zusammen mit weiteren Einrichtungen für das Gemeindeleben, die in einer zweiten Bauphase realisiert werden, ist die Moschee in einem Karree angeordnet. Über einen Innenhof, der sich zur Straße hin öffnet, wird der gesamte Komplex erschlossen. Ein zweiter, privaterer Innenhof dient als Trennung zwischen den verschiedenen Funktionen und kann bei Veranstaltungen mit dem ersten Hof zusammengeschlossen werden.
Für Männer führt der Weg in die Moschee seitlich über einen niedrigen Raum mit geneigter Decke, in dem sie die Waschung vollziehen können. Fensterbänder in der Decke fluten diesen Raum mit Tageslicht. Frauen benutzen dafür den Eingang des auffallend unauffälligen Minaretts, dass sich nur durch einen tonnenförmigen Vorsprung in der Fassade offenbart. Über die Treppe des Turmes gelangen sie dann auch auf die zwei Geschosse der Galerien, von denen aus sie dem Gottesdienst beiwohnen. Candalepas Associates sehen in dieser Platzierung direkt unter der holzverkleideten Kuppel mit Opaion eine Platzierung der Frauen im Herzen der Moschee. Die Neuinterpretation des Minaretts erklärt Angelo Candalepas damit, dass es mehr als auf die bauliche Form doch auf die Tradition und den Klang der menschlichen Stimme ankomme, die vom Minarett ausgeht.
Die Decke über dem Gebetsraum ist mit 102 halbierten Kuppeln bestückt, angelehnt an Muqarnas, eine hängende Gewölbeform, die ihren Ursprung in der persischen Architektur hat. Jede der in Ortbeton ausgeführten Kuppeln hat in der Mitte ein 30 mm großes Loch, durch das Lichtstrahlen auf die Innenwände fallen. Vom ersten Gebet in der Morgendämmerung bis zum Sonnenuntergang können die Gläubigen diese Strahlen über die Wände wandern sehen. Durch das Weiterdenken der traditionellen Details ist ein erhabener, zeitgemäßer Ort zum Praktizieren des Glaubens entstanden.



















