Traditionspflege in 286 Teilen: Lehmbau „L’Orangérie“ in Lyon
Foto: Studio Erick Saillet
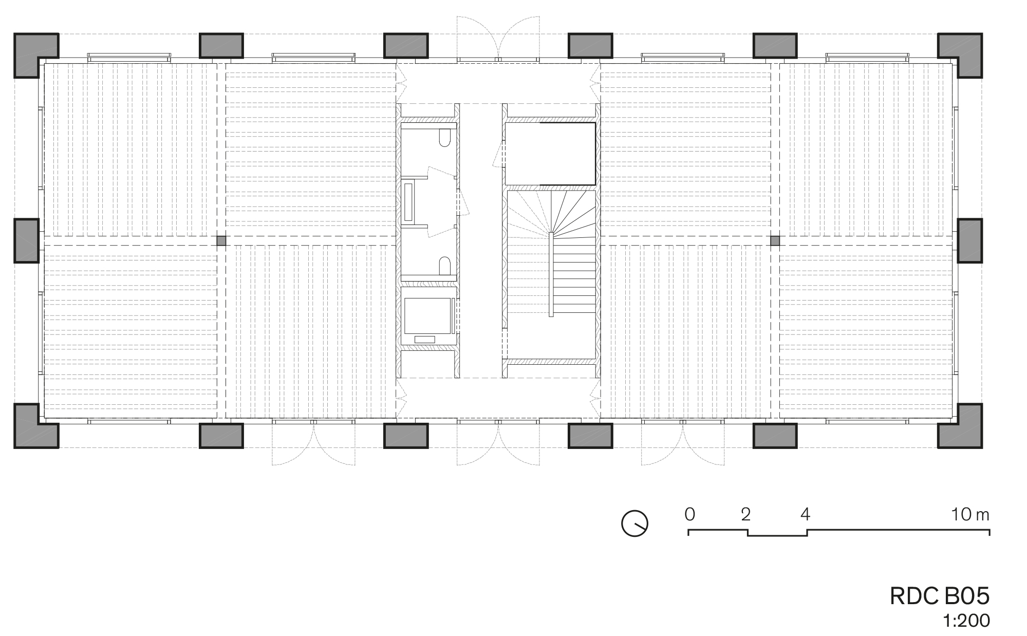
Stampflehm ist druckfest, kann aber ohne Bewehrung keine Zug- und Biegekräfte aufnehmen. Und auf eine solche wollten Clément Vergély Architectes und Diener & Diener bei ihrem Bürogebäude „L‘Orangérie“ im Viertel Lyon-Confluence tunlichst verzichten. So erklärt sich auch die markante Fassadenstruktur mit seinen dreigeschossigen Parabelbögen, die an ihrem unteren Ende eine Spannweite von rund 4,75 m erreichen.
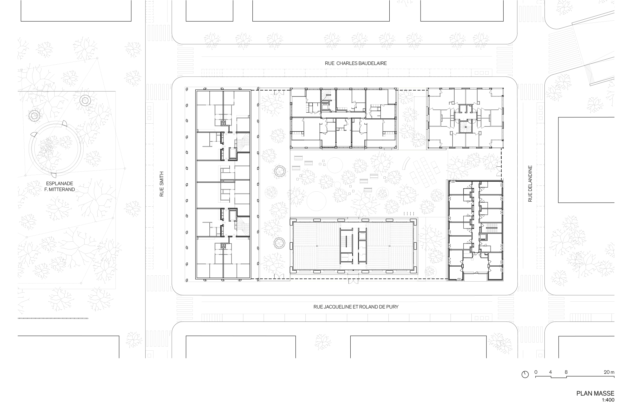
Gemeinsam mit drei konventionell errichteten und deutlich höheren Wohngebäuden bildet der Neubau ein vierteiliges Ensemble. Für jeden Baublock hatte der Masterplan des Quartiers von Herzog & de Meuron ein solches, nur dreigeschossiges Gebäudevolumen vorgesehen. Die Architekten nutzten diese Vorgabe, um eine historische Tradition aus der Region wieder aufleben zu lassen. Seit dem Mittelalter wurden in und um Lyon zahlreiche Stampflehmbauten errichtet. In der Stadt selbst haben sie nur in den höher gelegenen Vierteln überlebt, nachdem zwei Überschwemmungen 1840 und 1854 die Wohnquartiere in Flussnähe verwüsteten. Daraufhin verboten die Behörden das Bauen mit gestampftem Lehm in Lyon komplett.
Nicht nur der Aufriss, sondern auch der Querschnitt der 11 m hohen Außenwände der Orangérie folgt den darin auftretenden Kräften: Von unten nach oben reduziert sich die Wandstärke geschossweise von 80 auf 65 und weiter auf 50 cm. Insgesamt besteht der Lehmbau aus 286 vorgefertigten Einzelblöcken. Den Sockel bilden drei Lagen Natursteinblöcke im gleichen Format und als Attikaabdeckung wählten die Architekten ebenfalls Natursteinplatten, deren Verzahnung miteinander den Lehm darunter vor Regenwasser schützen soll. Das Flachdach dahinter ist intensiv begrünt und für die Nutzer des Gebäudes zugänglich. Der Lehm selbst ist Aushubmaterial einer 30 km entfernten Baustelle, da der aufgeschüttete Baugrund in Lyon-Confluence sich nicht für den Stampflehmbau eignete. Geschossdecken und Innenstützen bestehen aus Brettsperrholz und Brettschichtholz, das aus den Vogesen sowie aus Österreich angeliefert wurde.
Weitere Informationen:
Landschaftsarchitektur: Michel Desvigne


















