Traditionspflege mit Fertigteilen
Marokkanischer Expo-Pavillon von Oualalou + Choi
Foto: Boegly + Grazia
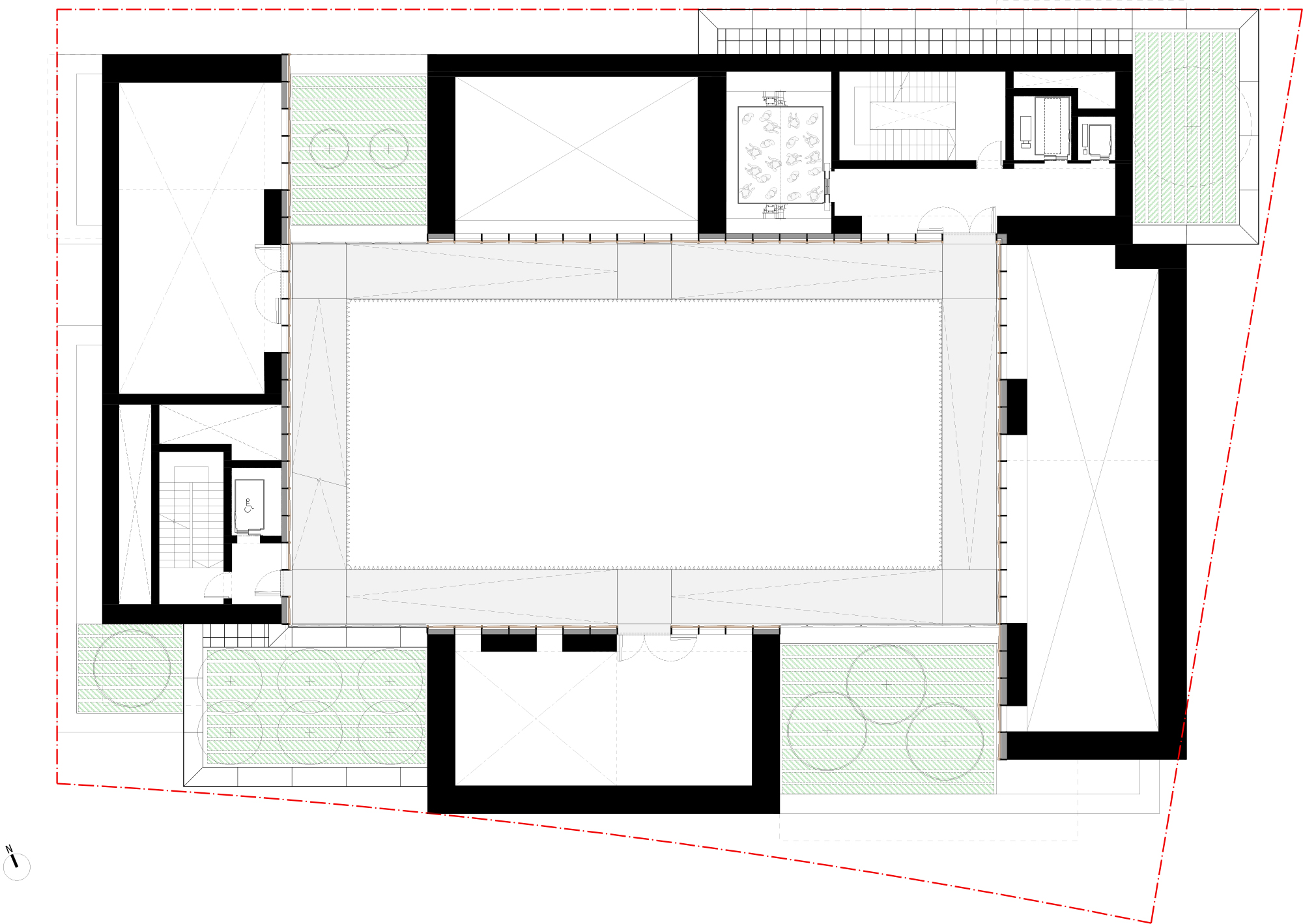
Für die Maßstäbe Dubais dürfte der Pavillon, den Oualalou + Choi für das Königreich Marokko auf dem Expo-Gelände entworfen haben, kaum als Hochhaus durchgehen. Und doch ist er mit seinen 34 Metern ein ernsthafter Anwärter auf den Titel des höchsten Gebäudes mit Stampflehmfassade weltweit. In den 22 gestapelten Kuben sind auf rund 6000 m2 Fläche 14 Ausstellungssäle, ein marokkanisches Restaurant, ein Café und Büros untergebracht. Als „gestapeltes marokkanisches Dorf“ haben die Pariser Architekten ihren Neubau konzipiert und wollen damit auf die in Marokko weit verbreitete Stampflehmbauweise hinweisen. Basis des Neubaus ist – anders als beim traditionellen Vorbild – ein Stahlbetonskelett. Und auch die Fassaden bestehen aus Stahlbetonfertigteilen, die außen mit je vier bis acht Stampflehmelementen verkleidet sind. Letztere sind einheitlich 15 cm dick, variieren in der Breite von 2,10 bis 3 m und sind 1,20 bis 1,80 m hoch. Bei ihrer Entwicklung arbeiteten die Architekten eng mit dem australischen Lehmbauspezialisten Rick Lindsay und seinem Unternehmen Earth Structures Group zusammen.
Erschlossen werden die Räume über einen zentralen Innenhof, in dem sich eine Rampe über alle Etagen nach oben windet. Die sie umgebenden Fassaden basieren auf einem Aluminium-Pfosten-Riegel-System, dessen Deckleisten mit Holz verkleidet wurden. In den Fassaden wechseln sich opake Glasscheiben und durchsichtiges Sonnenschutzglas ab. Auf eine Klimatisierung des Pavillons wollten die Architekten weitgehend verzichten. Zwischen den gestapelten Kuben bleiben daher Lücken frei, durch die der Wind streicht. Die hier angelegten Dachgärten sollen für zusätzliche Kühlung sorgen.
Ein so aufwändig konstruiertes Haus nach sechs Monaten Expo-Dauer rückzubauen, wäre ökologisch kaum zu verantworten. Ursprünglich war deshalb geplant, den Pavillon später als Wohngebäude umzunutzen. Die dafür notwendigen Fensteröffnungen in den Fassaden sind schon vorhanden und für die Dauer der Expo durch kleinere, herausnehmbare Stampflehmelemente verschlossen. Inzwischen wird diskutiert, ob nicht eine kulturelle Nutzung geeigneter wäre. In jedem Fall bleibt zu hoffen, dass dem „gestapelten Dorf“ das Schicksal der „gestapelten Landschaften“ von MVRDV in Hannover erspart bleibt. Deren holländischer Pavillon nämlich gammelt und rostet im Jahr 22 nach der Expo 2000 immer noch vor sich hin.
Weitere Informationen:
Beratung Stampflehmbau: Earth Structures Group
TGA-Planung: Mace
Fassadenplanung: T/E/S/S





























