// Check if the article Layout ?>
Transluzente Ruine: »The Mansio« reist durch England
Foto: brotherton-lock
Als das Hexham Book Festival den Wettbewerb für ein mobiles Teehaus auslobte, setzten sich Matthew Butcher, Kieran Wardle und Owain Williams gegen andere eingeladene Konkurrenten durch. Am Ende standen noch Entwürfe von FleaFolly Architects, Sean Griffiths Modern Architecture, NEON und der niederländischen Künstlerin Krijn de Koning zur Auswahl.
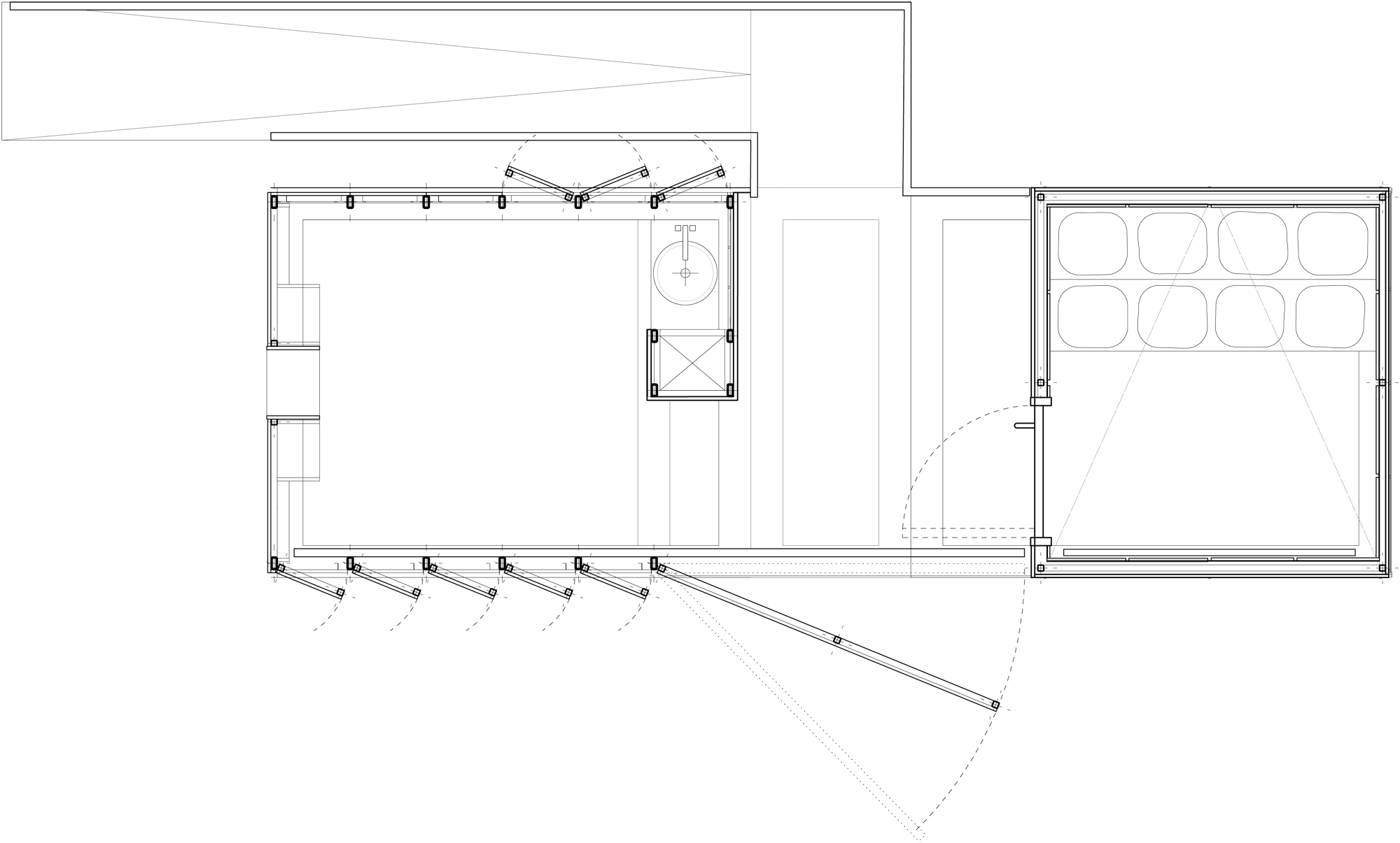
Gesucht wurde ein mobiler Ort, an dem Autoren ihre Werke präsentieren können. Entlang des Hadrianswalls bespielt die Installation bis Mitte September verschiedene Orte, meist in Blickweite einer tatsächlichen Ruine. »The Mansio« selbst ist vielmehr der Geist einer Ruine. Aus einem Stahlgerüst, das mit semitransluzentem Polycarbonat verkleidet ist, formen Butcher, Wardle und Williams einen Körper. Dieser zollt gleichermaßen dem klassischen römischen Mansio (lat. Rastplatz, Herberge) Tribut wie der industriellen Architektur Nordenglands. Dank des englischen Wetters, das im Sommer häufig vom schnellen Wechsel zwischen Sonne und Wolken geprägt ist, verändert sich die Transluzenz des Polycarbonats. Damit einhergehend variiert die gesamte Optik von »The Mansio«.
Die Figur formt auf der einen Seite ein Torhaus, wobei das Tor hier in aufklappbare Kiemen übersetzt wurde. Luft und Licht halten so Einzug in den Raum, der vor allem dem Teetrinken und der Betrachtung der Landschaft vorbehalten ist. In der Mitte öffnet sich der Baukörper und ein zur Hälfte überdachter Hof entsteht. Bei gutem Wetter können dort Filme an der frischen Luft gezeigt werden. Am anderen Ende befindet sich der geschlossenste Raum. Dort laufen Kurzfilme, die Autoren und Poeten vorstellen. Seine Form erinnert an einen stilisierten Pferdekopf, was laut Butcher zwar nicht beabsichtigt, aber wenig überraschend ist. Der Architekt John Hejduk, der ebenfalls zoomorphe und anthropomorphe Formen verwendet, beeinflusse seine Arbeit. Ihm gefalle der Gedanke, dass man durch solche Gebilde möglicherweise Empathie bauen kann. Gekrönt wird die Figur von einem Turm – die deutlichste Referenz zu den Industriebauten in der Umgebung. Da »The Mansio« während der sechs Monate immer wieder den Standort wechselt, dient der Turm auch dazu, Anwesenheit zu signalisieren.
Matthew Butcher lehrt an der UCL Bartlett School of Architecture, ist Gründer des Büros Postworks und des Magazins P.E.A.R. (Paper for Emerging Architecture Research). Letzteres ist ein Magazin abseits der Mainstream Presse, dass das breite Feld der Interessen von Architekten beleuchtet. Dieses Jahr soll nach gut zwei Jahren Pause wieder eine Ausgabe erscheinen.
Gesucht wurde ein mobiler Ort, an dem Autoren ihre Werke präsentieren können. Entlang des Hadrianswalls bespielt die Installation bis Mitte September verschiedene Orte, meist in Blickweite einer tatsächlichen Ruine. »The Mansio« selbst ist vielmehr der Geist einer Ruine. Aus einem Stahlgerüst, das mit semitransluzentem Polycarbonat verkleidet ist, formen Butcher, Wardle und Williams einen Körper. Dieser zollt gleichermaßen dem klassischen römischen Mansio (lat. Rastplatz, Herberge) Tribut wie der industriellen Architektur Nordenglands. Dank des englischen Wetters, das im Sommer häufig vom schnellen Wechsel zwischen Sonne und Wolken geprägt ist, verändert sich die Transluzenz des Polycarbonats. Damit einhergehend variiert die gesamte Optik von »The Mansio«.
Die Figur formt auf der einen Seite ein Torhaus, wobei das Tor hier in aufklappbare Kiemen übersetzt wurde. Luft und Licht halten so Einzug in den Raum, der vor allem dem Teetrinken und der Betrachtung der Landschaft vorbehalten ist. In der Mitte öffnet sich der Baukörper und ein zur Hälfte überdachter Hof entsteht. Bei gutem Wetter können dort Filme an der frischen Luft gezeigt werden. Am anderen Ende befindet sich der geschlossenste Raum. Dort laufen Kurzfilme, die Autoren und Poeten vorstellen. Seine Form erinnert an einen stilisierten Pferdekopf, was laut Butcher zwar nicht beabsichtigt, aber wenig überraschend ist. Der Architekt John Hejduk, der ebenfalls zoomorphe und anthropomorphe Formen verwendet, beeinflusse seine Arbeit. Ihm gefalle der Gedanke, dass man durch solche Gebilde möglicherweise Empathie bauen kann. Gekrönt wird die Figur von einem Turm – die deutlichste Referenz zu den Industriebauten in der Umgebung. Da »The Mansio« während der sechs Monate immer wieder den Standort wechselt, dient der Turm auch dazu, Anwesenheit zu signalisieren.
Matthew Butcher lehrt an der UCL Bartlett School of Architecture, ist Gründer des Büros Postworks und des Magazins P.E.A.R. (Paper for Emerging Architecture Research). Letzteres ist ein Magazin abseits der Mainstream Presse, dass das breite Feld der Interessen von Architekten beleuchtet. Dieses Jahr soll nach gut zwei Jahren Pause wieder eine Ausgabe erscheinen.











