// Check if the article Layout ?>
Treppen und Stege: Firmensitz in Lille
Foto: David Boureau
Direkt an einer großen Zugangsstraße in das neue Quartier steht der Firmensitz an einer prominenten Stelle. Trotz seiner Größe soll das Gebäude nicht monumental wirken, sondern Leichtigkeit und Transparenz vermitteln. Fensterbänder und feine Lamellen betonen die Horizontalität des Baukörpers. An einzelnen Stellen durchbrechen große, vertikale Einschnitte die lange Fassade und bieten auf jeder Etage überdachte Freisitze für die Mitarbeiter.
Der Übereck-Zugang in das Gebäude ist deutlich über einen Rücksprung der Fassade markiert. Im Inneren erwarten den Besucher raue Materialien aus Sichtbeton, Stahl, Glas und Holz. Auf abgehängte Decken wurde zugunsten der integrierten Bauteilaktivierung bewusst verzichtet, was den Innenräumen einen nüchternen und »ehrlichen« Charakter verleiht. Neben einer natürlichen Lüftung legten die Architekten zudem besonderen Wert auf die natürliche Belichtung aller Räume. Auf der Südfassade sorgen horizontale Aluminiumelemente für passiven Sonnenschutz ohne den Ausblick ins Freie einzuschränken.
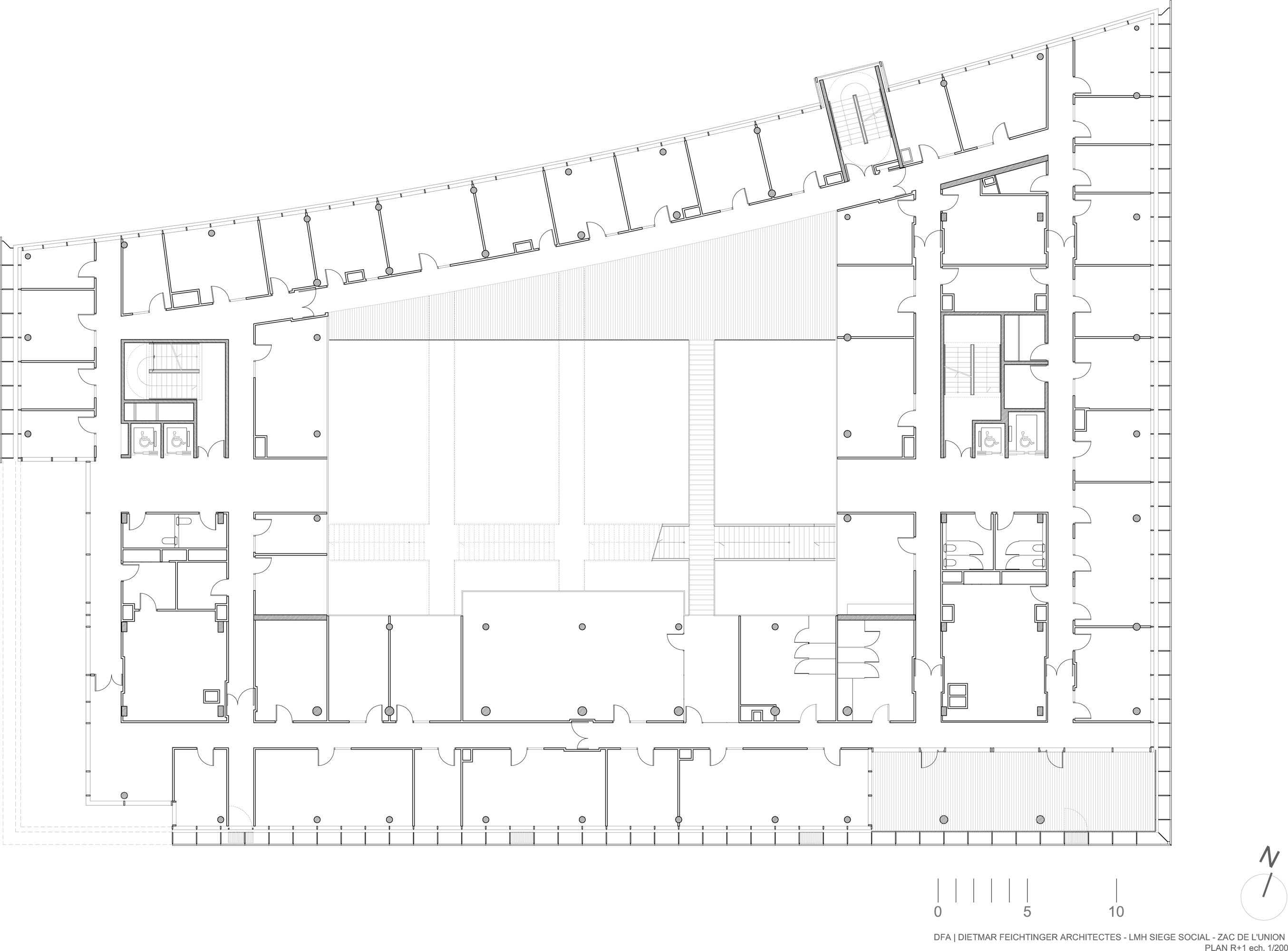
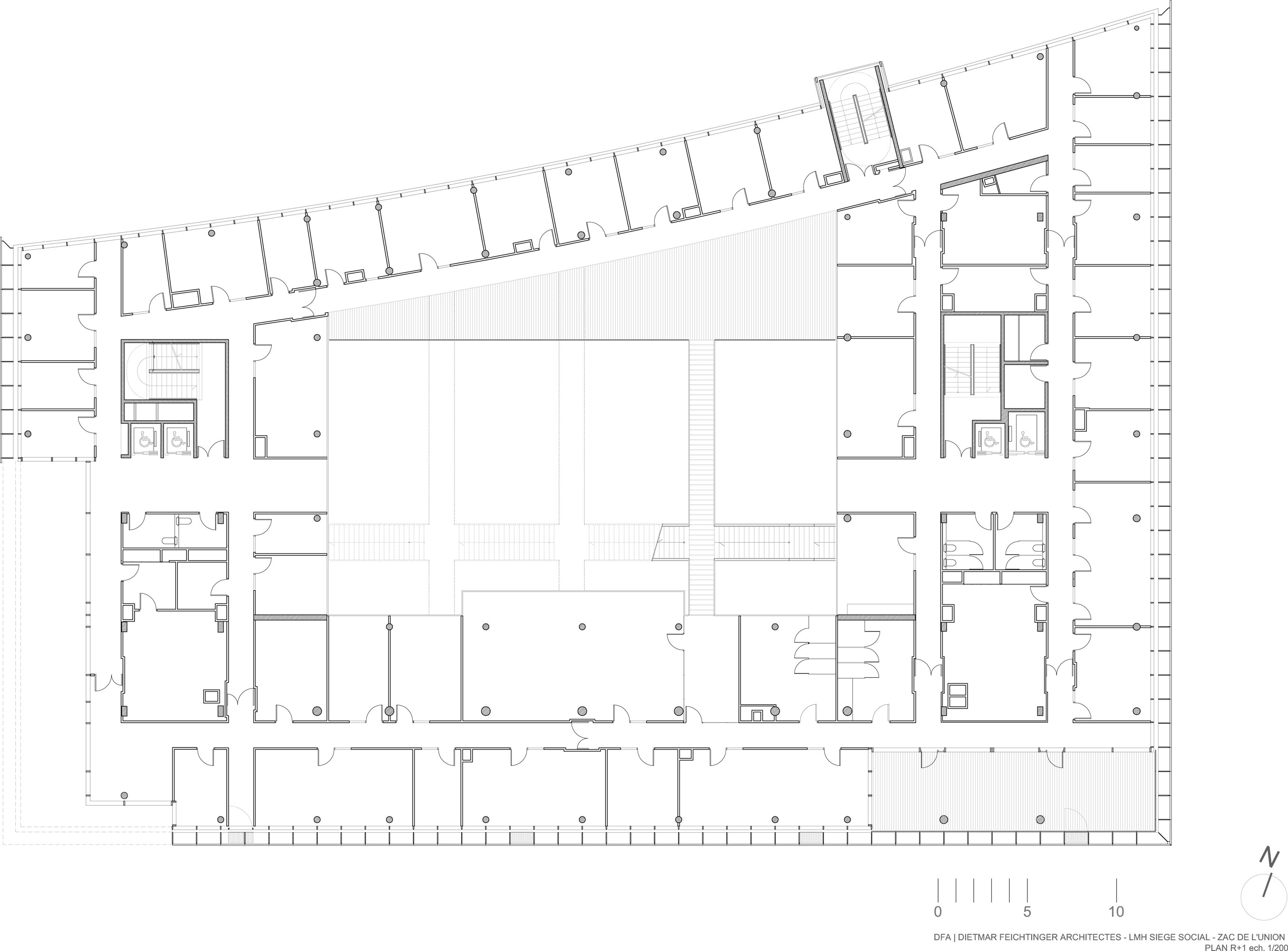
So zurückhaltend sich das Gebäude von außen auch präsentiert, im Inneren überrascht der Firmensitz den Besucher mit einem beeindruckenden, fünfgeschossigen Atrium, welches von einem Glasdach bekrönt wird. Eine lange, viergeschossige Treppe erschließt nahezu alle Etagen des Firmensitzes und wird durch ein System aus orthogonal angeschlossenen, horizontalen Stegen in alle Richtungen verbunden. Lediglich die Generaldirektion im fünften Obergeschoss ist nicht an das Haupterschließungssystem angeschlossen.
Kranzförmig um das Atrium angeordnet gibt es Büroräume, Besprechungszimmer und Pausenräume, die an einzelnen Stellen in das Atrium hineinkragen und so die innenliegende Fassade beleben. Entstanden ist ein insgesamt stimmiges Gesamtkonzept mit nüchterner aber nicht eintöniger Atmosphäre, die ihre Qualität durch lichterfüllte Räume und das zentrale Atrium erhält. Dieses bietet kommunikativen Raum für zwanglose Zusammenkünfte, Ausstellungen oder Veranstaltungen aller Art.
Der Übereck-Zugang in das Gebäude ist deutlich über einen Rücksprung der Fassade markiert. Im Inneren erwarten den Besucher raue Materialien aus Sichtbeton, Stahl, Glas und Holz. Auf abgehängte Decken wurde zugunsten der integrierten Bauteilaktivierung bewusst verzichtet, was den Innenräumen einen nüchternen und »ehrlichen« Charakter verleiht. Neben einer natürlichen Lüftung legten die Architekten zudem besonderen Wert auf die natürliche Belichtung aller Räume. Auf der Südfassade sorgen horizontale Aluminiumelemente für passiven Sonnenschutz ohne den Ausblick ins Freie einzuschränken.
So zurückhaltend sich das Gebäude von außen auch präsentiert, im Inneren überrascht der Firmensitz den Besucher mit einem beeindruckenden, fünfgeschossigen Atrium, welches von einem Glasdach bekrönt wird. Eine lange, viergeschossige Treppe erschließt nahezu alle Etagen des Firmensitzes und wird durch ein System aus orthogonal angeschlossenen, horizontalen Stegen in alle Richtungen verbunden. Lediglich die Generaldirektion im fünften Obergeschoss ist nicht an das Haupterschließungssystem angeschlossen.
Kranzförmig um das Atrium angeordnet gibt es Büroräume, Besprechungszimmer und Pausenräume, die an einzelnen Stellen in das Atrium hineinkragen und so die innenliegende Fassade beleben. Entstanden ist ein insgesamt stimmiges Gesamtkonzept mit nüchterner aber nicht eintöniger Atmosphäre, die ihre Qualität durch lichterfüllte Räume und das zentrale Atrium erhält. Dieses bietet kommunikativen Raum für zwanglose Zusammenkünfte, Ausstellungen oder Veranstaltungen aller Art.
weitere Informationen:
Bebaute Fläche: ~4500m²
Fertigstellung: Mai 2015
Fertigstellung: Mai 2015













