// Check if the article Layout ?>
Turmstube und Patio: Wohnhäuser in Aamchit
Foto: Wissam Chaaya
Aamchit, etwa 40 Kilometer nördlich von Beirut, ist mit seinen 25000 Einwohnern ein typischer Ferienort an der libanesischen Küste. Letztere ist hier von schmalen Kiesstränden gesäumt, hinter denen das Terrain rasch ansteigt. Weitläufige Sandstrände wird man in der Gegend vergeblich suchen. Wer es sich leisten kann, legt sich daher einen eigenen Swimmingpool vor dem Haus an.
Deren zwei gibt es auch auf dem Grundstück, das Hashim Sarkis und sein Architekturbüro in den letzten Jahren mit vier Wohnhäusern nachverdichtet haben. Darüber hinaus erhielten sie den Auftrag, die weitläufigen Freiflächen neu zu gestalten. Das Terrain fällt zum Meer hin spürbar ab, aber nicht so stark, dass die Häuser einander bei einer traditionellen Bauweise nicht die Sicht genommen hätten. Daher verlegten die Architekten den größten Teil der Wohnräume unter die Erde. Lediglich auf der Westseite öffnen sie sich zu einer ins Gelände eingeschnittenen Terrasse und zum Meer. Der Aushub wurde verwendet, um die beiden landseitigen Häuser auf kleine, künstlich aufgeschüttete Hügel zu setzen.
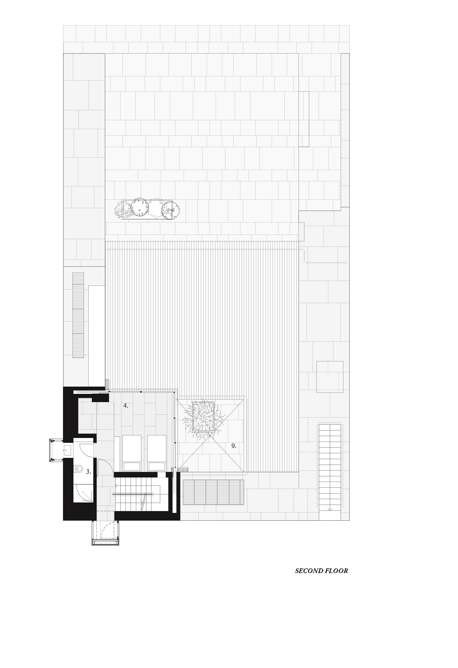
Die Grundrisse der vier Häuser sind weitestgehend gleich. Im untersten Geschoss umgeben das Wohnzimmer, die Küche und eines der drei Schlafzimmer einen kleinen Patio. Die Umfassungsmauern im Norden, Osten und Süden sind zweischalig, um die Räume gegen das kühle Erdreich zu dämmen. Außerdem konnten auf diese Weise alle Installationsstränge im Wandzwischenraum unterkommen. Der innen liegende Patio bringt nicht nur Tageslicht in die Wohnräume, sondern unterstützt auch die Querlüftung.
Die beiden anderen Schlafzimmer jedes Hauses verteilen sich auf die beiden Obergeschosse. Hier setzt sich das Zwiebelprinzip der Grundrisszonierung fort: Im Süden und Osten – den Seiten mit der höchsten Sonneneinstrahlung – liegen die Treppe und die Bäder hinter dicken, natursteinverkleideten Betonmauern. Kleine, ausgestülpte (und als Stahlkonstruktion realisierte) Erker nehmen den Hauseingang sowie zwei Waschbeckennischen in den Bädern auf. Die Schlafzimmer liegen hingegen an der Nordwestecke des Turms. Die Holzläden lassen sich komplett auffalten und die Schiebefenster vollständig in seitliche Wandaussparungen verfahren. Weil auch die Geschossdecken stützenfrei von den Außenwänden gegenüber auskragen, werden die Schlafzimmer in diesem Fall zu offenen Balkonen mit rund 4x4 Meter Grundfläche.
Deren zwei gibt es auch auf dem Grundstück, das Hashim Sarkis und sein Architekturbüro in den letzten Jahren mit vier Wohnhäusern nachverdichtet haben. Darüber hinaus erhielten sie den Auftrag, die weitläufigen Freiflächen neu zu gestalten. Das Terrain fällt zum Meer hin spürbar ab, aber nicht so stark, dass die Häuser einander bei einer traditionellen Bauweise nicht die Sicht genommen hätten. Daher verlegten die Architekten den größten Teil der Wohnräume unter die Erde. Lediglich auf der Westseite öffnen sie sich zu einer ins Gelände eingeschnittenen Terrasse und zum Meer. Der Aushub wurde verwendet, um die beiden landseitigen Häuser auf kleine, künstlich aufgeschüttete Hügel zu setzen.
Die Grundrisse der vier Häuser sind weitestgehend gleich. Im untersten Geschoss umgeben das Wohnzimmer, die Küche und eines der drei Schlafzimmer einen kleinen Patio. Die Umfassungsmauern im Norden, Osten und Süden sind zweischalig, um die Räume gegen das kühle Erdreich zu dämmen. Außerdem konnten auf diese Weise alle Installationsstränge im Wandzwischenraum unterkommen. Der innen liegende Patio bringt nicht nur Tageslicht in die Wohnräume, sondern unterstützt auch die Querlüftung.
Die beiden anderen Schlafzimmer jedes Hauses verteilen sich auf die beiden Obergeschosse. Hier setzt sich das Zwiebelprinzip der Grundrisszonierung fort: Im Süden und Osten – den Seiten mit der höchsten Sonneneinstrahlung – liegen die Treppe und die Bäder hinter dicken, natursteinverkleideten Betonmauern. Kleine, ausgestülpte (und als Stahlkonstruktion realisierte) Erker nehmen den Hauseingang sowie zwei Waschbeckennischen in den Bädern auf. Die Schlafzimmer liegen hingegen an der Nordwestecke des Turms. Die Holzläden lassen sich komplett auffalten und die Schiebefenster vollständig in seitliche Wandaussparungen verfahren. Weil auch die Geschossdecken stützenfrei von den Außenwänden gegenüber auskragen, werden die Schlafzimmer in diesem Fall zu offenen Balkonen mit rund 4x4 Meter Grundfläche.
Weitere Informationen:
Mitarbeiter: Rola Idris, Sandra Frem, Wissam Chaaya, Samir Bitar, Pablo Roquero, Cynthia Gunadi, Penn Ruderman, Christopher Johnson, Charif Tabet, Helena Briones
Bauüberwachung: Polygon, sal
Tragwerksplanung: Rudolphe Mattar
TGA-Planung: Roger Kazopoulo
Energietechnik: Transsolar Energietechnik GmbH
Elektroplanung: Roger Njeim
Landschaftsarchitektur: Hashim Sarkis Studios
Gartenbau: Exotica
Bauüberwachung: Polygon, sal
Tragwerksplanung: Rudolphe Mattar
TGA-Planung: Roger Kazopoulo
Energietechnik: Transsolar Energietechnik GmbH
Elektroplanung: Roger Njeim
Landschaftsarchitektur: Hashim Sarkis Studios
Gartenbau: Exotica























