// Check if the article Layout ?>
Turnen und Entspannen: Inteltion-Office von Onion in Bangkok
Foto: Wworkspace
Die neuen Büroräumlichkeiten für das thailändische IT-Beratungsunternehmen Inteltion umfassen nur 170 m2. 60 Mitarbeiter der Firma arbeiten normalerweise in den Büros ihrer Kunden. Im Hauptbüro von Inteltion sind sie hauptsächlich in den Zwischenzeiten zwischen den Aufträgen anzutreffen. Deswegen bestand keine Notwenigkeit, für jeden der Mitarbeiter einen Büroplatz zu entwerfen. Viel wichtiger war die Bewahrung von Flexibilität, die für die Firma einen großen symbolischen Wert hat.
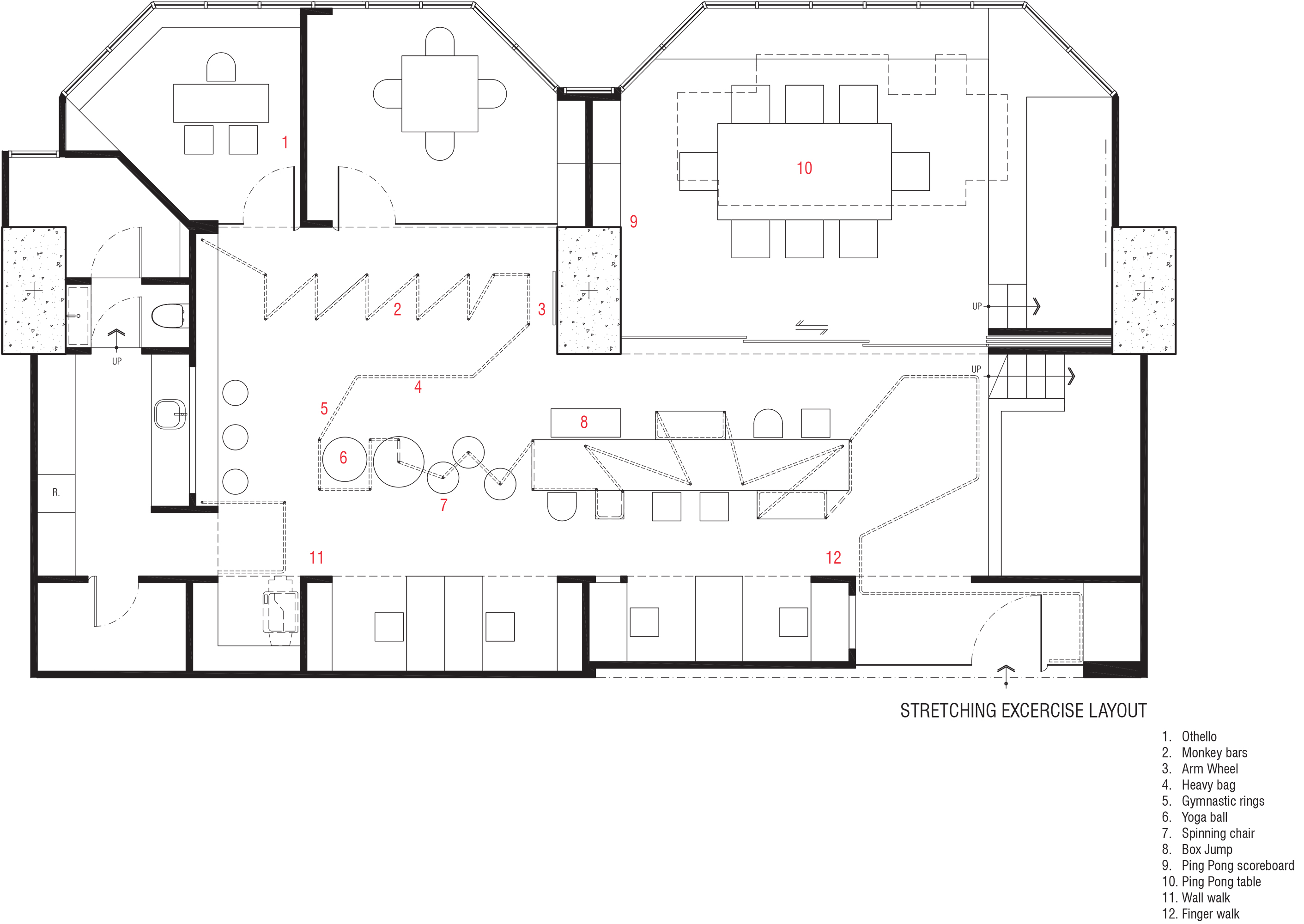
Das neue Designkonzept beinhaltet einen Hauptraum, in dem Kunden empfangen werden oder interne Besprechungen stattfinden können. Die hauptsächlich jungen Mitarbeiter verbringen den ganzen Tag vor Computerbildschirmen. Deswegen schlugen die Designer von Onion vor, das neue Büro in verschiedene Trainings- und Entspannungszonen aufzuteilen.
Ein multifunktionales Eisenrohr dominiert den Hauptbüroraum: als Handlauf im Eingangsbereich, als Tragstruktur für die Tisch- und Sitzmöbel in der Mitte des Raumes und als Stange für Dehnübungen im hinteren Raumbereich. Auch kugelförmige Schrankgriffe, die etwas höher als üblich platziert sind, können für Stretch-Übungen genutzt werden. Eine erhöhte Plattform über den Aktenschränken lädt dagegen zum Entspannen ein – alles in einem eine wunderbare Interpretation einer zeitgenössischen Bürolandschaft.











